Home | House Plans 4-Bedroom 1-Story Country Barndominium with Home Office and Wrap-Around Porch (Floor Plan)
Home | House Plans 5 Bedroom 1-Story New American with Two Flex Rooms and Side-Entry 3-Car Garage (Floor Plan)
Home | House Plans 4 Bedroom 2 Story New American with Flexible Bedrooms and Front or Side Entry Garage (Floor Plan)
Home | House Plans 4-Bedroom Single-Story Transitional Home with Bonus Room and Side-Entry Garage (Floor Plan)
Home | House Plans 4-Bedroom 1-Story Ranch House Plan with Vaulted Great Room and Side-Entry Garage (Floor Plan)
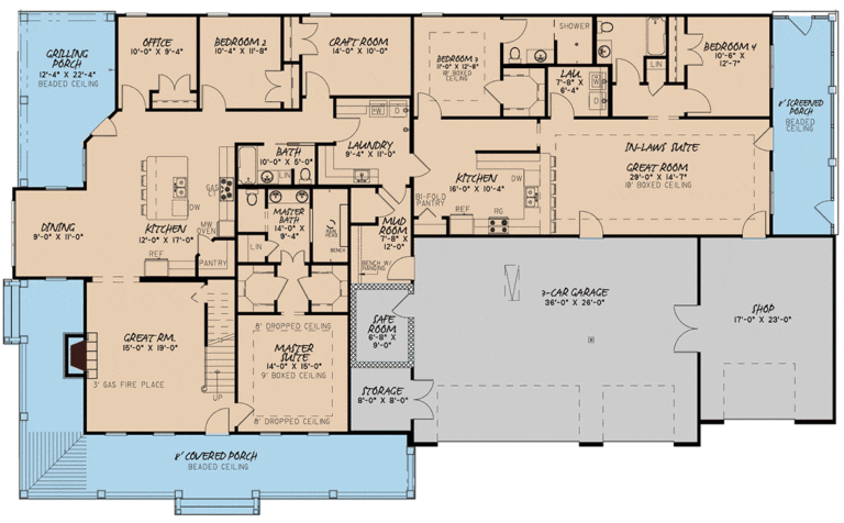
Home | House Plans 4-Bedroom Single-Story Transitional Home with Spacious Porches and 3-Car Garage (Floor Plan)
Home | House Plans 4-Bedroom 1-Story French Country Plan with Home Office and Expansive Rear Porch (Floor Plan)
Home | House Plans 5-Bedroom 1-Story Barndominium with a 2-Sided Fireplace in a Vaulted Great Room (Floor Plan)
Home | House Plans 4-Bedroom 1-Story Modern Farmhouse with Bonus Room and Expansive Rear Porch (Floor Plan)
House Plans | Home 4-Bedroom 2-Story Transitional New American House with Outdoor Kitchen (Floor Plan)