Two-Story 4-Bedroom Modern Farmhouse with Drive-Under Garage (Floor Plan)

Specifications:
- 3,231 Sq Ft
- 3 – 4 Beds
- 3.5 – 4.5 Baths
- 2 Stories
- 2 – 4 Cars
If you’ve ever caught yourself daydreaming about a home that combines rustic farmhouse charm with sleek modern comforts, you’re in the right place.
This 2-story modern farmhouse plan comes in at a comfortable 3,231 square feet—big enough to impress, but not so massive it needs a golf cart to get around.
With flexible living spaces, stunning architectural details, and practical perks throughout, it’s the kind of house that makes you wonder why you didn’t buy it yesterday.
Stay Tuned: Detailed Plan Video Awaits at the End of This Content!



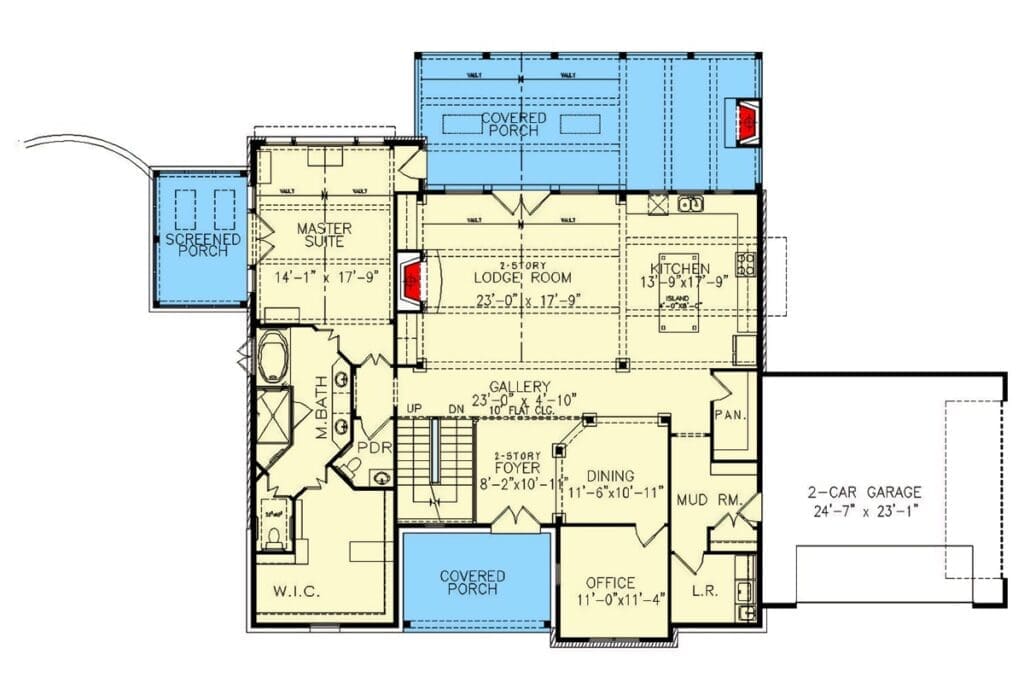
A Main-Level Master Suite That Redefines Comfort
One of the biggest wins in this floor plan is the main-level master suite.
It’s not just tucked away for privacy—it’s practically its own mini-resort.
The master boasts a spacious walk-in closet, a luxurious 5-fixture bathroom, and best of all, a private screened porch.
Morning coffee, late-night book reading, or midday power naps with birds chirping in the background—this porch makes all of that feel just right.

Having the primary bedroom on the main floor is not just about convenience.
It’s a strategic investment in your future comfort, especially as you think long-term.
Whether you’re considering the purchase as your forever home or even looking to refinance your mortgage for a better deal, this layout supports aging in place without sacrificing style.
Vaulted Lodge Room
Now let’s talk drama—the good kind.

The 2-story vaulted lodge room is the centerpiece of this home, featuring exposed beams that give the space that “I live in a magazine” kind of look.
This is the place where you’ll host movie nights, birthday parties, and possibly one or two awkward Thanksgiving dinners.
The tall ceilings and open sightlines create a light, airy feeling that’s anything but cookie-cutter.
French doors lead out to a covered rear porch complete with a fireplace, so you can extend your living space outdoors.

It’s ideal for entertaining or simply enjoying a glass of wine without being eaten alive by bugs.
Between the lodge room’s grandeur and the cozy porch setup, it’s a perfect balance of “wow” and “aww.”
Of course, all this charm also plays nicely with your home’s property value.
A great real estate agent will tell you—features like vaulted ceilings and outdoor fireplaces are highly desirable in today’s market.

Home Office and Formal Dining That Pull Double Duty
Tucked just off the foyer is a home office, and it’s not some afterthought-sized cubicle.
This space is a full-on productivity powerhouse, perfect for remote work, managing your investment portfolio, or just pretending to be busy while shopping online.
Pair it with the latest smart home technology, and you’re running your empire with just a few taps.
Across the hall is a formal dining room that’s ready for everything from Tuesday taco nights to holiday feasts.

If you’re using interior design software to plan your dream setup, this room is practically begging for bold lighting, custom furniture, or that vintage dining set you’ve been stalking online.
Upper-Level Flexibility
Upstairs is where this plan really flexes its versatility muscles.
You’ll find a second master suite, complete with its own private bathroom—perfect for guests, teenagers, or those relatives who “just need a place for a couple weeks.”

There’s also a third bedroom and a media room that can be transformed to fit your needs.
Prefer a library?
A playroom?
A yoga studio where you lie on a mat and nap for 30 minutes?
Go for it.
Here’s where smart buyers see opportunity.

Whether you’re looking to boost long-term property value or just want to have room to grow, the upper level supports your lifestyle now and your future goals later.
And if you ever consider taking out a home equity loan for upgrades or improvements, having this kind of flexible space gives you all kinds of renovation options.
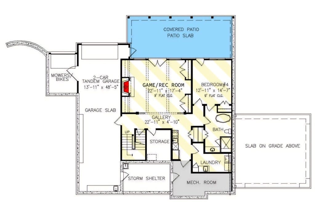
Lower-Level Living
Let’s not forget the lower level—it’s like a bonus gift with purchase.
Down here, you’ll find a fourth bedroom, an additional laundry area (because let’s face it, laundry always multiplies), and a rec room or bunk room that includes its own fireplace and direct outdoor access.

Whether it becomes a hangout space, a home theater, or a guest suite, this lower level feels like its own private apartment.
The inclusion of a drive-under garage is a game-changer too.
With tandem-style parking for two to four cars, there’s plenty of space for your daily drivers, hobby vehicles, or that kayak you bought three summers ago and have used exactly once.
This level is not just about parking—it’s about maximizing every square foot for livability and long-term value.

Plus, if you’re considering refinancing your mortgage or exploring home improvement loans to finish out or enhance the basement space, this design makes it all feel worthwhile.
Outdoor Living That Works Year-Round
Outdoor living is more than just a trend—it’s a lifestyle, and this modern farmhouse gets it.
Between the covered rear porch with a fireplace, the private master porch, and the walk-out lower level, you’ve got multiple outdoor zones to enjoy.
Whether it’s a quiet morning or a festive evening, there’s a space for it.

Outdoor features like these also pair beautifully with today’s best home security systems.
And when you install smart locks, motion lights, and security cameras, your porch becomes not just an escape, but a safe one.
It’s peace of mind with a view.
Practical Perks for Real Life
This floor plan isn’t all style and no substance.

With three and a half to four and a half bathrooms depending on your configuration, morning traffic jams become a thing of the past.
The layout makes everyday living feel effortless—everything has its place, and every space feels intentional.
And if you’re budgeting for construction or trying to gauge long-term costs, a building cost estimator will quickly show how much value you’re getting here.
Every square foot is working overtime to deliver livability, beauty, and lasting comfort.
Thinking of long-term maintenance and repair?

A solid home warranty can cover systems and appliances, giving you extra peace of mind as you settle in.
Between the smart design and modern efficiencies, this home is built to stand the test of time.
A Smart Buy in Any Market
Whether you’re ready to buy now or just exploring your options, this 2-story modern farmhouse makes a compelling case for your next big move.

With thoughtful design, multiple suite options, abundant storage, and stylish details throughout, it’s a blueprint for both living and investing wisely.
If you’re starting the process, consider getting a home loan pre-approval early.
With mortgage rates always shifting, knowing your budget ahead of time helps you move quickly when you find the right home—or in this case, the perfect plan to build your dream from the ground up.
And don’t forget: working with a knowledgeable real estate agent can help you navigate everything from home insurance options to home remodeling contractor referrals when it’s time to personalize your space.

This 3,231-square-foot, two-story modern farmhouse isn’t just a house—it’s a lifestyle.
It balances bold architectural character with practical features that make day-to-day living feel easy and exciting.
Whether you’re drawn to the vaulted ceilings, the screened porches, the smart layout, or the cozy lodge room, this plan offers a little something for everyone.
So if you’re looking to buy with confidence, build with joy, and invest in a future filled with warmth, style, and a little bit of porch-sitting bliss, this house plan may just be your perfect match.
Building or buying a home isn’t just about picking the perfect house plan—it’s also about making smart long-term choices. From comparing mortgage rates to finding a trustworthy real estate agent, every decision adds value. Don’t forget to explore options like home insurance, home warranties, and potential refinance opportunities to protect your investment.
Want to boost your property value? Consider installing solar panels, upgrading to energy-efficient appliances, or integrating a smart home system. Plus, tools like interior design software can help you visualize and plan your dream space before the first brick is even laid.
Find More House Plans
By Bedrooms:
1 Bedroom • 2 Bedrooms • 3 Bedrooms • 4 Bedrooms • 5 Bedrooms • 6 Bedrooms • 7 Bedrooms • 8 Bedrooms • 9 Bedrooms • 10 Bedrooms
By Levels:
By Total Size:
Under 1,000 SF • 1,000 to 1,500 SF • 1,500 to 2,000 SF • 2,000 to 2,500 SF • 2,500 to 3,000 SF • 3,000 to 3,500 SF • 3,500 to 4,000 SF • 4,000 to 5,000 SF • 5,000 to 10,000 SF • 10,000 to 15,000 SF










