Two-Story 4-Bedroom French Country Estate with Home Theater and Game Room (Floor Plan)

Specifications:
- 5,303 Sq Ft
- 4 Beds
- 5.5 Baths
- 2 Stories
- 4 Cars
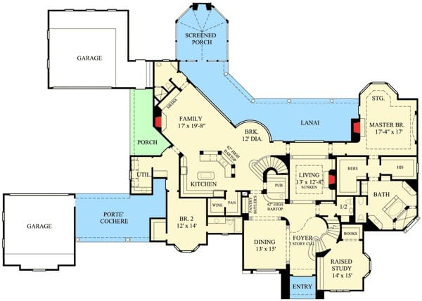
From the moment I step under the elegant porte cochere, I know this French Country estate means business.
The façade feels like something straight out of a European countryside, with charming bay windows and stone accents that exude timeless character.
Stepping through the front door, the two-story foyer immediately takes my breath away.
It’s not just tall—it’s dramatic, with a sweeping staircase that curves gracefully upward, promising a home that’s both majestic and welcoming.
Honestly, I can already see the value in this design—one that’s as much a pleasure to live in as it is a smart investment for long-term property value.


The Heart of the Home
Just off the foyer, I find one of my favorite features—a cozy, sunken formal living room.
This subtle drop in floor level makes the space feel intimate, even within such a large home.
It’s a perfect balance between luxury and comfort, and I can easily imagine gathering here on cool evenings, the soft glow of the fireplace bouncing off the windows.
When considering a design like this, I’m reminded that great architecture doesn’t just look beautiful—it makes you feel at home.
Even a future home improvement loan or remodeling project could never quite replicate this original charm.
Flow That Encourages Connection
The open flow between the main living spaces makes everyday life effortless.
The family room, breakfast nook, and kitchen all connect visually, creating a seamless environment where conversations flow as easily as the layout itself.
I love how everyone can interact—someone cooking, another watching TV, and others chatting over coffee at the breakfast table.
With smart home technology, it’s easy to control lighting and temperature, ensuring comfort throughout the day.
And honestly, homes that master this kind of floor plan tend to maintain strong property value over time—something any real estate agent would be happy to confirm.
The Perfect Kitchen for Gathering
If the kitchen is the heart of a home, this one beats with style.
Oversized and full of natural light, it’s perfectly positioned to overlook the family room and breakfast nook.
The layout encourages both functionality and togetherness—ideal for morning rushes or weekend brunches.
I’d definitely consider using interior design software to play with finishes or cabinet colors before making any upgrades.
Even a refinance mortgage could be justified here if you wanted to enhance the space further—because let’s face it, investing in a great kitchen is never a bad idea.
A World of Its Own
Now, the master suite—oh, what a retreat.
Tucked away in its own private wing on the first floor, it feels like a personal sanctuary.
The moment I enter, the romantic fireplace instantly draws my attention.
There’s a bay window with a sitting area that practically begs for a morning coffee ritual.
It’s thoughtful touches like these that elevate a home from beautiful to unforgettable.
If you ever wanted to add spa-style upgrades or customized décor, a home equity loan could make that dream an easy reality.
And yes, this is the kind of suite that would have anyone checking their credit score just to make sure they qualify!

A Spa-Worthy Master Bath
Connected to the suite is a master bath that rivals any luxury resort.
A soaking tub sits perfectly under a window, while dual vanities and a walk-in shower complete the picture.
Every inch feels deliberate, from the lighting placement to the flow between spaces.
I love how this area blends elegance with everyday convenience.
Who needs a day spa when this level of comfort is waiting at home?
To protect such a valuable space, I’d definitely consider home insurance and a home warranty—because peace of mind should match the beauty of the space.
A Study in Style
Up the graceful curved staircase, there’s a raised study tucked off the landing.
It’s a smart placement—quiet and slightly removed from the main living areas, perfect for working, reading, or just escaping for a moment.
The study’s elevation adds a sense of importance without feeling isolated.
This kind of thoughtful floor plan is what makes a house feel right from day one.
If I ever wanted to personalize it further, a reliable home remodeling contractor could easily tailor the built-ins or add classic paneling to match the French Country vibe.
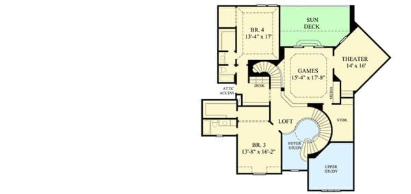
Second Floor Fun
Once upstairs, the mood shifts from serene to playful.
The second floor is designed purely for enjoyment, featuring a large games room, a cozy home theater, and even a sun deck.
It’s the kind of space that turns a normal weekend into a mini-vacation.
The games room can handle everything from billiards to movie marathons, while the sun deck is perfect for fresh air and scenic views.
I can picture investing in smart home technology here—automated shades, surround sound, maybe even an outdoor entertainment setup.
Every feature feels intentional, maximizing fun while adding undeniable appeal to the home’s overall design.
Bedrooms That Balance Comfort and Privacy
The remaining three bedrooms upstairs are beautifully laid out, each with its own bathroom.
This design means no morning traffic jams, no waiting for showers—just smooth, organized living.
It’s perfect for families or guests who appreciate privacy.
These rooms are large enough to feel personal but not overwhelming, a great balance in a house of this size.
From an investment perspective, such a layout keeps future buyers interested and helps maintain property value if you ever decide to sell or refinance.
The Pub
One of the most distinctive touches in this floor plan is the large pub located near the living spaces.

It’s not every day you see a home bar designed to this scale, and it’s perfectly situated for entertaining guests.
The proximity to the main living area ensures that whether you’re mixing drinks or telling stories, no one misses out.
A detail like this adds both personality and function to the floor plan, making the house not just beautiful but truly livable.
It’s features like this that make a home a worthwhile purchase—equal parts luxury and practicality.
A Four-Car Garage That Means Business
The four-car garage is more than just a parking space—it’s a statement.
Whether you’re a car enthusiast or simply appreciate ample storage, having such capacity offers real flexibility.
There’s room for vehicles, tools, and even hobby space if needed.
It’s details like this that make homeownership smoother.
If I were considering the cost implications, I’d probably use a building cost estimator to evaluate the long-term maintenance and any potential upgrades, especially if thinking about future investments.
Outdoor Living That Extends the Home
Stepping onto the rear covered porch, I realize how well the indoor and outdoor spaces connect.
The design encourages outdoor dining, lounging, or even quiet evening relaxation.
With easy access from the family room and kitchen, this area becomes a natural extension of daily living.
Adding the best home security system and weather-resistant features would make it even more functional year-round.
It’s the kind of outdoor space that adds both enjoyment and tangible value to the home.
A Floor Plan That Marries Elegance and Function
What I love most about this French Country layout is how effortlessly it balances luxury and logic.
Every square foot is intentional—no wasted corners, no awkward transitions.
The symmetry between public and private spaces makes life flow smoothly, from quiet nights by the fireplace to lively gatherings in the games room.
And while the home oozes sophistication, it’s also incredibly practical.
You could easily manage financing through a home loan pre-approval, or even use refinance mortgage options later to expand or improve certain areas.
Either way, the floor plan ensures long-term satisfaction and financial stability.
This 5,303-square-foot masterpiece isn’t just a house—it’s a dream crafted in stone, glass, and warmth.
Every design decision, from the sunken living room to the secluded master suite, reflects thoughtful planning and true craftsmanship.
Even without upgrades, the home feels complete.

But knowing the flexibility of the floor plan, I could imagine future home improvement projects or stylish updates financed through responsible investment choices.
When I walk through this house, it feels less like touring a property and more like stepping into the future of elegant living.
With its mix of classic design, modern convenience, and spacious comfort, this French Country estate stands as a reminder that a truly great floor plan isn’t just about rooms—it’s about how those rooms make you feel.
And in this home, I feel right at home from the very first step.
Building or buying a home isn’t just about picking the perfect house plan—it’s also about making smart long-term choices. From comparing mortgage rates to finding a trustworthy real estate agent, every decision adds value. Don’t forget to explore options like home insurance, home warranties, and potential refinance opportunities to protect your investment.
Want to boost your property value? Consider installing solar panels, upgrading to energy-efficient appliances, or integrating a smart home system. Plus, tools like interior design software can help you visualize and plan your dream space before the first brick is even laid.
Find More House Plans
By Bedrooms:
1 Bedroom • 2 Bedrooms • 3 Bedrooms • 4 Bedrooms • 5 Bedrooms • 6 Bedrooms • 7 Bedrooms • 8 Bedrooms • 9 Bedrooms • 10 Bedrooms
By Levels:
By Total Size:
Under 1,000 SF • 1,000 to 1,500 SF • 1,500 to 2,000 SF • 2,000 to 2,500 SF • 2,500 to 3,000 SF • 3,000 to 3,500 SF • 3,500 to 4,000 SF • 4,000 to 5,000 SF • 5,000 to 10,000 SF • 10,000 to 15,000 SF










