Three-Story 5-Bedroom Contemporary House with Sky Office (Floor Plan)

Specifications:
- 4,686 Sq Ft
- 4 – 5 Beds
- 5.5 – 6.5 Baths
- 3 Stories
- 3 Cars
There’s something undeniably magnetic about this 4,686-square-foot contemporary house plan.
Maybe it’s the sleek stucco-and-wood exterior, or maybe it’s how every corner feels like it’s been crafted for both beauty and function.
Either way, this three-story wonder with 4–5 bedrooms, 5.5–6.5 baths, and a 3-car garage doesn’t just check boxes—it creates new ones.
Step inside, and I’ll show you how this floor plan turns everyday living into something exceptional.




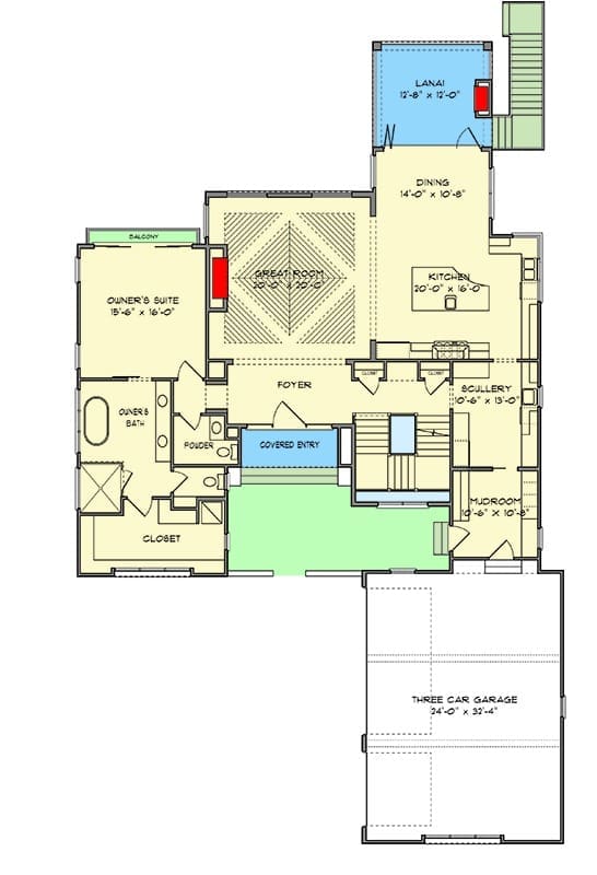
A Grand Courtyard Entry That Sets the Scene
The journey begins with a private courtyard entry—because who doesn’t love an entrance that makes a statement?

This outdoor space gives the home an immediate sense of warmth and privacy, while the mix of stucco and ornate wood details adds texture and character.
It feels like stepping into a serene retreat before you’ve even opened the front door.

The entry isn’t just aesthetic—it’s practical, too.
It provides a buffer between the outdoors and your living area, helping with temperature control and enhancing overall energy efficiency.

If you ever plan to buy or purchase a home like this, remember: details like this boost both comfort and property value.

A Great Room That Flows with Purpose
Once inside, the great room immediately steals the spotlight.

Its decorative ceiling treatment draws your eyes upward, adding a sense of openness that feels grand yet welcoming.
This isn’t just a room—it’s the heart of the home.

The open layout connects seamlessly with the island kitchen, encouraging interaction between spaces.
Imagine entertaining guests while whipping up a meal, or enjoying a cozy movie night without missing out on the conversation.

The accordion-style doors leading to the lanai extend this area outward, creating one continuous flow between the indoors and outdoors.
When those doors are open, natural light floods in, making the entire space feel twice as big.

It’s easy to picture yourself here, relaxing with a cup of coffee, thinking about home improvement loans or how much your home equity loan could cover if you ever wanted to add extra custom touches.

The Island Kitchen
I’m convinced that whoever designed this kitchen has lived through every cooking frustration imaginable.

The centerpiece is a sprawling island—ideal for prepping meals, casual dining, or just chatting while dinner simmers.
It’s stylish, efficient, and built for real life.

Then there’s the scullery, tucked right beside it.
This bonus workspace comes with a secondary sink and additional counter space, making it the unsung hero of the kitchen.

Whether you’re hosting a big family dinner or just trying to keep things tidy, the scullery keeps the main kitchen spotless.
And let’s not forget the mudroom hiding behind a pocket door, connecting directly to the three-car garage.

It’s the perfect transition zone—ideal for dropping shoes, jackets, or grocery bags.
Even a real estate agent would call that a “lifestyle win.”

The Main-Level Owner’s Suite
The owner’s suite on the main level is where this floor plan truly shines.

Located just off the great room, it offers convenience without sacrificing privacy.
The bedroom is spacious enough for a sitting area, and large windows bring in soft, natural light.

Step into the bathroom, and it’s pure luxury—dual vanities, a walk-in shower, a freestanding tub, and a walk-in closet that could double as a dressing room.
The layout ensures easy morning routines and peaceful evenings.

If you’ve been checking mortgage rates or working toward home loan pre-approval, this kind of feature is what justifies the investment.
It’s functional, elegant, and adds undeniable long-term value.

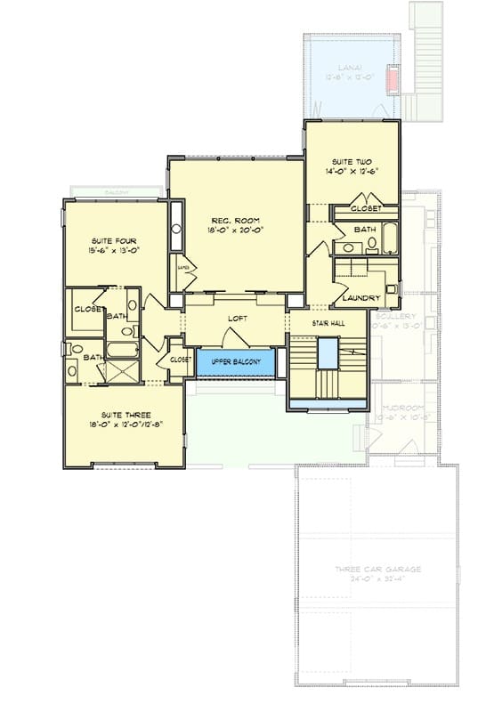
Bedrooms, Recreation, and Laundry Done Right
Heading upstairs, the floor plan opens to a layout that’s both family-friendly and future-proof.

Three spacious bedrooms give everyone their own private retreat, each paired with its own bath—no more fighting for sink space in the morning!

At the heart of this level is the rec room, a flexible space that can morph into anything you need—a playroom, a media area, or a home gym.

It’s perfect for family gatherings or creative pursuits.
The upstairs laundry room is another smart inclusion.

Located where most of the laundry originates, it cuts down on stair climbing and adds everyday efficiency.
Whoever thought of that deserves an award—and maybe a home warranty to go with it.

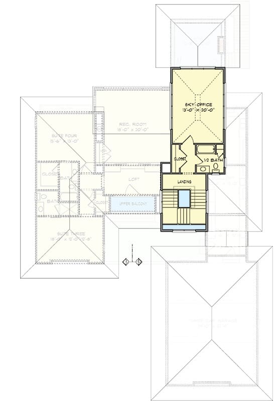
Elevating Work and Inspiration
Climb to the third level, and you’ll find the most unique feature of this home—the sky office.

With its panoramic views and private half bath, this space feels more like a retreat than a workspace.

It’s bright, airy, and inspires creativity.
For anyone who works from home, this room checks every box.

And with built-in smart home technology, you can adjust lighting, climate, and even security with a few taps on your phone.

Pair it with the best home security system, and you’ve got productivity and peace of mind in one stylish package.

If you ever consider this space for business use or creative ventures, you’re also boosting your home’s investment potential.
It’s a rare feature that blends practicality with a dash of architectural drama.

Entertainment on Demand
This plan’s optional walkout basement is where leisure truly comes alive.

Imagine stepping into a media room with theater-style seating—ideal for movie nights or game days.

Add a wet bar to the mix, and suddenly you’re hosting weekend gatherings that everyone looks forward to.
There’s also a guest suite down here, giving visitors their own private retreat.

Whether it’s for friends, family, or a long-term stay, this space feels welcoming and self-contained.

With natural light pouring in from the walkout design, it doesn’t even feel like a basement.
From an investment perspective, this level adds significant value and versatility.

You could even use part of it as a rentable suite—an idea worth exploring with your real estate agent or home remodeling contractor.

Three-Car Garage and Smart Circulation
The 3-car garage is more than just vehicle storage—it’s part of a well-planned flow.

The direct access to the mudroom makes unloading groceries or gear a breeze, and there’s plenty of room for tools, sports equipment, or that project you keep promising to start.

Every transition in this house—entry to great room, kitchen to lanai, garage to mudroom—feels intuitive.

The circulation design minimizes wasted space and maximizes comfort, something that both building cost estimators and homeowners can appreciate.

A Floor Plan Built for Real Life
This exclusive contemporary house plan isn’t just about sleek design—it’s about creating spaces that work with you.

The open-concept main level, private owner’s suite, flexible upper floors, and entertainment-ready basement all come together to form a layout that feels effortless.

It’s the kind of home that makes you think about the future—whether it’s maintaining your credit score for the next upgrade, protecting your home with solid home insurance, or planning a few updates with home improvement loans.

Every part of this floor plan supports growth, comfort, and everyday ease.
Every inch of this 4,686-square-foot home feels intentional.

From the welcoming courtyard and open great room to the sky office above and the optional walkout basement below, it’s a design that perfectly balances luxury with livability.
This exclusive contemporary house plan isn’t just a blueprint—it’s a lifestyle guide.
It’s for the homeowner who appreciates architectural detail but also loves a home that makes sense day to day.
Whether you’re building new, looking to purchase your dream home, or viewing it as an investment, this floor plan delivers on every level—literally and beautifully.
Building or buying a home isn’t just about picking the perfect house plan—it’s also about making smart long-term choices. From comparing mortgage rates to finding a trustworthy real estate agent, every decision adds value. Don’t forget to explore options like home insurance, home warranties, and potential refinance opportunities to protect your investment.
Want to boost your property value? Consider installing solar panels, upgrading to energy-efficient appliances, or integrating a smart home system. Plus, tools like interior design software can help you visualize and plan your dream space before the first brick is even laid.
Find More House Plans
By Bedrooms:
1 Bedroom • 2 Bedrooms • 3 Bedrooms • 4 Bedrooms • 5 Bedrooms • 6 Bedrooms • 7 Bedrooms • 8 Bedrooms • 9 Bedrooms • 10 Bedrooms
By Levels:
By Total Size:
Under 1,000 SF • 1,000 to 1,500 SF • 1,500 to 2,000 SF • 2,000 to 2,500 SF • 2,500 to 3,000 SF • 3,000 to 3,500 SF • 3,500 to 4,000 SF • 4,000 to 5,000 SF • 5,000 to 10,000 SF • 10,000 to 15,000 SF










