Single-Story 5-Bedroom Modern Farmhouse Ranch with Bonus Room (Floor Plan)

Specifications:
- 2,557 Sq Ft
- 4 – 5 Beds
- 2.5 – 3.5 Baths
- 1 Stories
- 3 Cars
When I first laid eyes on this modern farmhouse ranch floor plan, I knew it was designed for real-life living.
With 2,557 square feet, it’s the perfect balance of space and practicality.
The layout feels intuitive, flexible, and downright smart—exactly what I want in a home.
From the moment you step onto the front porch, you can tell this house is not just a building—it’s a well-thought-out plan built for daily life.







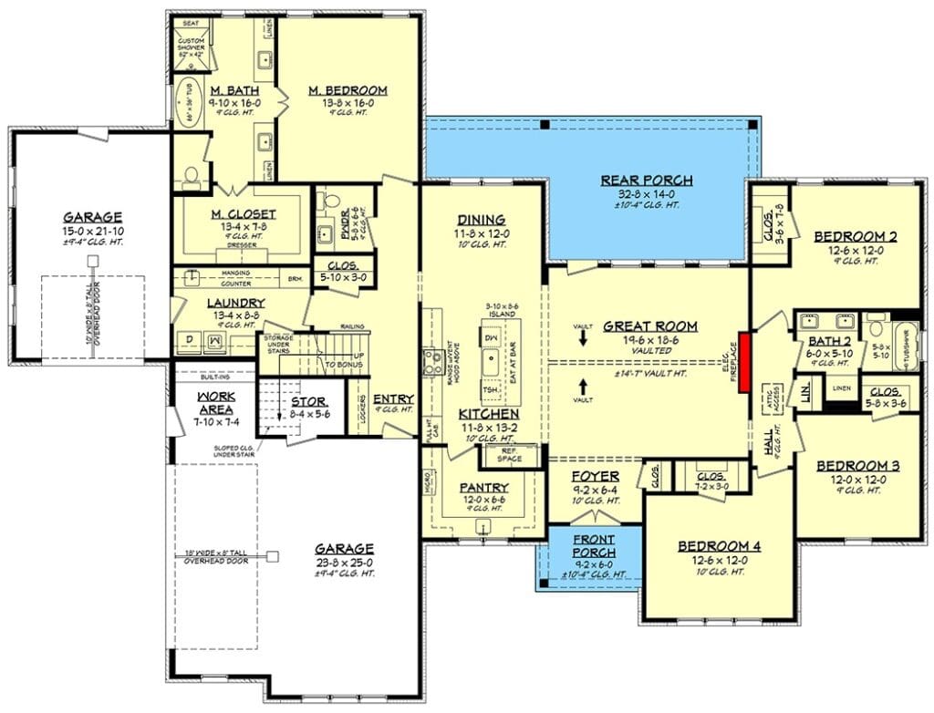
Inviting Front Porch and Entry
The front porch sets the tone for the floor plan.
It’s wide enough to enjoy a morning coffee while keeping an eye on the yard, yet it doesn’t waste precious indoor space.
Once inside, the foyer leads directly into the vaulted great room, giving a sense of openness and flow that makes the whole floor plan feel larger than 2,557 square feet.
This thoughtful entryway is a small detail that improves the layout without inflating building costs.
And for anyone planning a home purchase, it’s the kind of feature that adds instant property value, making it a smart investment from day one.
Vaulted Great Room and Sight Lines
The vaulted great room is the heart of this floor plan.
Positioned at the center of the house, it naturally connects to the rear porch, the kitchen, and the dining area.
From a design standpoint, it maximizes light and sight lines, which makes entertaining or simply keeping an eye on kids easier.
The open flow allows furniture placement to be flexible, which is a small but crucial part of interior design software planning.
You can imagine arranging couches, tables, or even a small reading nook without feeling cramped.
This layout truly embraces the “modern farmhouse meets functional ranch” concept.
Open Kitchen with Large Island and Pantry
The kitchen in this floor plan is more than a cooking area—it’s a central hub.
The large island not only adds workspace but naturally anchors the dining space, keeping the flow open.
Adjoining it is a walk-in pantry, which is perfectly sized for stocking essentials and planning grocery storage.
I love that the pantry placement complements the kitchen’s workflow.
It’s the kind of thoughtful layout that makes everyday tasks smoother and even impacts decisions like home remodeling contractor work if you ever want to upgrade appliances.
Whether you’re planning a meal, prepping for a gathering, or simply organizing groceries, this kitchen layout works.
Master Suite on the Main Floor
The master suite is strategically located on the main floor for privacy and convenience.

Its placement near the laundry room makes chores less of a trek, while the generous walk-in closet keeps storage functional.
The en-suite bath is positioned in a way that feels secluded yet accessible, giving the main floor a truly private retreat.
From a floor plan perspective, the suite’s location ensures separation from other bedrooms while keeping everything within easy reach.
And if you’re considering a home equity loan or home improvement loans to enhance the space, the layout allows for additions like dual vanities or a spa shower without disrupting traffic flow.
Split-Bedroom Design
One of my favorite aspects of this floor plan is the split-bedroom layout.
By separating the master from the other bedrooms, it provides privacy for parents and children alike.
Guests also get their own space without feeling cramped, which makes this layout ideal for long-term livability.
This separation isn’t just practical—it enhances the overall functionality of the home.
It’s the kind of layout that attracts buyers if you ever decide to sell, and it supports smart investment thinking since privacy and flow are highly valued in modern ranch designs.
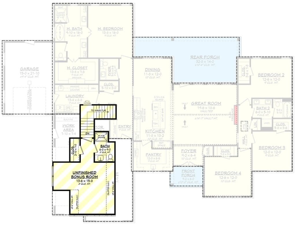
Bonus Room Above the Garage
The bonus room above the garage is a clever addition to the floor plan.
It can function as a fifth bedroom, home office, or media room, depending on your needs.
Because it’s tucked away, it provides flexibility without interrupting the main living areas.
In terms of layout, this room’s position allows natural separation from the rest of the house, making it perfect for a quiet workspace or hobby room.
With smart home technology, you can even convert it into a connected space for entertainment or monitoring other areas of the house.
Three-Car Garage Layout
The garage design in this floor plan is both unique and functional.
There’s a two-car side-entry section with a built-in workbench and workshop, plus a separate front-entry one-car garage.
This separation allows for parking, storage, or hobby projects without intruding into the main house.
The garage’s placement and configuration show that the designer considered traffic flow, utility, and flexibility.

It also adds value from an investment standpoint, as buyers appreciate practical garages.
If you’re budgeting for a home purchase, this garage layout makes it easier to plan using a building cost estimator or factoring in home improvement loans for upgrades.
Rear Porch and Outdoor Flow
The rear porch is an extension of the floor plan’s living space.
At 355 square feet, it’s sizable enough for outdoor entertaining or casual relaxation.
The floor plan connects it seamlessly to the great room, making indoor-outdoor flow effortless.
This integration enhances the overall livability and property value.
It’s also smart from a design standpoint: the porch feels like part of the main floor, not an afterthought.
I can already see it being used for morning coffee, evening dinners, or weekend gatherings—without ever feeling disconnected from the rest of the house.
Laundry Room Placement
Another smart element of this floor plan is the laundry room’s location near the master suite.
It keeps chores convenient while maintaining the privacy of other bedrooms.
The placement reduces hall traffic and allows for efficient daily routines, which is exactly the kind of thoughtful detail that makes a floor plan functional.
For anyone considering home remodeling contractor work or home improvement loans in the future, the laundry room is easy to expand or update without affecting the main living areas.
Flow and Connectivity
Overall, the flow of this floor plan is its strongest asset.
Each space connects logically to the next, minimizing wasted hallways and maximizing functional square footage.
From the front porch to the rear outdoor living area, the layout supports everyday life while allowing optional customization.
Even bonus areas like the garage workshop and bonus room are integrated into the plan in a way that maintains balance, ensuring the house doesn’t feel fragmented.
This kind of thoughtful floor plan design is why properties like this retain strong appeal, both for personal use and investment purposes.
This modern farmhouse ranch floor plan blends style, comfort, and practicality seamlessly.

From the vaulted great room and open kitchen to the split-bedroom design, master suite, bonus room, and three-car garage, every detail has purpose.
The layout supports both daily routines and entertaining, with smart flow, privacy, and flexibility built in.
It’s the kind of plan that makes the home easy to live in while protecting your investment.
And whether you’re thinking about mortgage rates, home loan pre-approval, refinancing, or simply imagining the future, this floor plan proves that a well-designed home is more than walls—it’s a lifestyle.
Building or buying a home isn’t just about picking the perfect house plan—it’s also about making smart long-term choices. From comparing mortgage rates to finding a trustworthy real estate agent, every decision adds value. Don’t forget to explore options like home insurance, home warranties, and potential refinance opportunities to protect your investment.
Want to boost your property value? Consider installing solar panels, upgrading to energy-efficient appliances, or integrating a smart home system. Plus, tools like interior design software can help you visualize and plan your dream space before the first brick is even laid.
Find More House Plans
By Bedrooms:
1 Bedroom • 2 Bedrooms • 3 Bedrooms • 4 Bedrooms • 5 Bedrooms • 6 Bedrooms • 7 Bedrooms • 8 Bedrooms • 9 Bedrooms • 10 Bedrooms
By Levels:
By Total Size:
Under 1,000 SF • 1,000 to 1,500 SF • 1,500 to 2,000 SF • 2,000 to 2,500 SF • 2,500 to 3,000 SF • 3,000 to 3,500 SF • 3,500 to 4,000 SF • 4,000 to 5,000 SF • 5,000 to 10,000 SF • 10,000 to 15,000 SF










