Single-Story 4-Bedroom Modern Farmhouse with In-Law Suite (Floor Plan)

Specifications:
- 2,764 Sq Ft
- 4 Beds
- 3.5 – 4.5 Baths
- 1 Stories
- 2 Cars
Every once in a while, you stumble upon a house plan that makes you think, yep, I could totally see myself living here.
That’s exactly how I felt when I saw this 2,764-square-foot modern farmhouse design.
It’s cozy but spacious, charming but practical, and—let’s be honest—it’s the kind of place where even your in-laws might never want to leave.
But hey, with their own private suite and patio access, maybe that’s not such a bad thing.
Let’s walk through the plan together and see why this home checks every box for modern family living.


A Welcoming First Impression
The first thing that caught my attention was the 9-foot-deep front porch.
I don’t know about you, but I’ve always loved the idea of a porch where you can sip iced tea in the summer and watch the rain in the fall.
Stepping through those double front doors, you immediately land in a foyer that feels both inviting and grand.

Off to the right, there’s a formal dining room complete with a coffered ceiling—perfect for family holidays or when you want to show off your cooking skills (or takeout, no judgment).
This is the kind of space that screams investment in comfort and family gatherings.
And if you’re working with a real estate agent, they’ll probably tell you the same thing—first impressions can boost property value more than you’d expect.

Open Concept Living at Its Best
Moving forward, the heart of the home reveals itself: a wide-open space connecting the kitchen, great room, and nook.
With a 12-foot ceiling in the great room and a 10-foot ceiling in the kitchen, it feels airy and expansive.
The fireplace, flanked by built-in shelves, adds a touch of warmth and charm—making this the kind of place you actually want to spend time in, rather than just passing through.

And let’s talk about that kitchen island.
Five by six feet of countertop bliss—it’s basically the size of some New York apartments.
Add in a walk-in pantry and a direct entrance into the dining room, and you’ve got a kitchen designed for real life.
Whether you’re meal prepping or testing out recipes you found with interior design software (don’t judge—I know I’m not the only one who gets lost online), this space has you covered.

A Game-Changer
Now, here’s where this floor plan really shines: the in-law suite.
Tucked neatly into one corner of the home, it comes with its own French door access to the patio.
That means privacy for them and peace of mind for you.

Whether it’s your parents, adult kids moving back home, or even a guest who overstays their welcome, this suite is like a little oasis within the house.
It’s also worth noting that this kind of feature can significantly increase property value.
Buyers today look for flexible spaces—whether for family or rental income potential.
Thinking long-term?

A refinance mortgage or home equity loan down the line could be easier to secure because of how versatile this space is.
A Master Suite Built for Relaxation
On the opposite side of the house sits the master suite, and let me just say—it feels more like a private spa.
The bathroom features a soaking tub nestled between a walk-in shower and a private toilet closet.

Double vanities frame the entry to a huge walk-in closet (because let’s face it, nobody ever complains about too much storage).
But here’s the genius touch: a pocket door at the back of the bathroom connects directly to the laundry room.
It’s such a small detail, but when you’re knee-deep in laundry day, it makes life so much easier.
If you’ve ever had to haul clothes across the house, you’ll know why this design is pure gold.

And if you’re thinking long-term comfort, pairing a master suite like this with the best home security system and some smart home technology makes the space not just luxurious but also practical.
Room for Everyone Else
Across the house, you’ll find two additional bedrooms, each with its own walk-in closet and full bathroom.
No fighting over sinks or shower schedules here—everyone gets their own space.

For families with teenagers or frequent guests, this layout is a lifesaver.
Plus, when you consider future resale, having en-suite bathrooms in secondary bedrooms is a huge plus.
It not only adds to everyday convenience but also boosts the appeal to potential buyers.
If you’re working with a building cost estimator or crunching numbers with a home loan pre-approval in hand, features like this make the purchase feel like a solid investment.

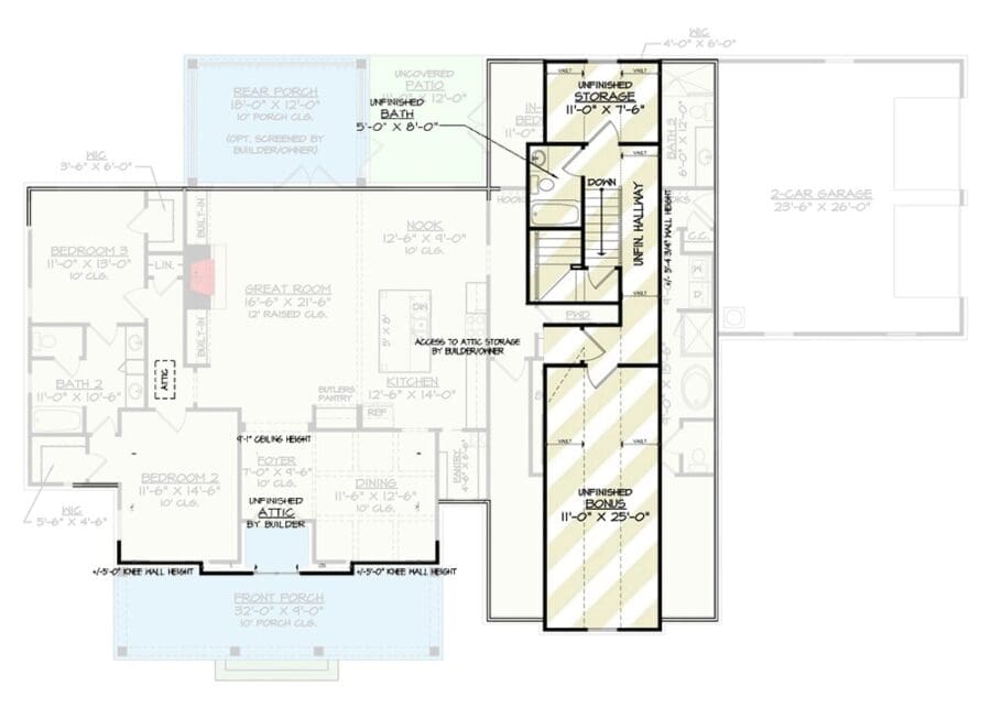
Bonus Expansion Upstairs
Just when you think you’ve seen it all, the plan throws in a 495-square-foot expansion space upstairs—complete with its own full bath.
The possibilities are endless here: a media room, home office, or even a gym.
If you’re thinking about home improvement loans or hiring a home remodeling contractor, this space is a great candidate for customization.

It’s like a blank canvas just waiting for you to put your stamp on it.
Practical Details That Matter
Let’s not forget the everyday essentials.
This home comes with a two-car garage, plenty of storage, and easy flow between rooms.

Every detail feels intentional—from the French doors leading to the porch to the nook where casual meals can happen without turning the dining room into an everyday mess zone.
And if you’re worried about costs, don’t forget: mortgage rates may fluctuate, but a well-designed home like this will always hold its value.
Plus, a good home warranty and proper home insurance can give you peace of mind as you settle in.

Add in some smart planning—maybe using a refinance mortgage or home equity loan later on—and you’ll be well-positioned financially.
Why This Plan Works
So, why does this particular modern farmhouse hit the sweet spot?
For me, it’s the balance.

It’s spacious without being overwhelming, stylish without being fussy, and family-friendly without sacrificing privacy.
You’ve got everything you need for daily living, plus a few extras that make the space feel truly special.
Buying a home is always a big decision—you need to weigh purchase price, investment potential, and of course, your credit score.

But with a floor plan like this, you’re not just buying walls and a roof.
You’re buying comfort, flexibility, and the kind of design that will make your life easier day in and day out.
At 2,764 square feet, this modern farmhouse with an in-law suite is proof that a home can be both functional and beautiful.

From the welcoming porch to the thoughtfully designed master suite, every corner has been crafted with real families in mind.
Whether you’re planning to buy soon, refinance mortgage later, or even explore home improvement loans to personalize it, this house plan has the potential to be more than just a purchase—it’s an investment in your future.
And let’s be real: with a space like this, you won’t just be building equity.
You’ll be building memories.
Building or buying a home isn’t just about picking the perfect house plan—it’s also about making smart long-term choices. From comparing mortgage rates to finding a trustworthy real estate agent, every decision adds value. Don’t forget to explore options like home insurance, home warranties, and potential refinance opportunities to protect your investment.
Want to boost your property value? Consider installing solar panels, upgrading to energy-efficient appliances, or integrating a smart home system. Plus, tools like interior design software can help you visualize and plan your dream space before the first brick is even laid.
Find More House Plans
By Bedrooms:
1 Bedroom • 2 Bedrooms • 3 Bedrooms • 4 Bedrooms • 5 Bedrooms • 6 Bedrooms • 7 Bedrooms • 8 Bedrooms • 9 Bedrooms • 10 Bedrooms
By Levels:
By Total Size:
Under 1,000 SF • 1,000 to 1,500 SF • 1,500 to 2,000 SF • 2,000 to 2,500 SF • 2,500 to 3,000 SF • 3,000 to 3,500 SF • 3,500 to 4,000 SF • 4,000 to 5,000 SF • 5,000 to 10,000 SF • 10,000 to 15,000 SF










