Single-Story 3-Bedroom Mountain House with Home Theater (Floor Plan)

Specifications:
- 2,822 Sq Ft
- 3 Beds
- 3.5 Baths
- 1 Stories
- 3 Cars
From the moment I first looked at this mountain house plan, I knew it wasn’t just a home—it was a lifestyle.
Spanning 5,147 sq. ft., it combines thoughtful design with modern convenience.
With 3 bedrooms, 3.5 baths, and a 1,432 sq. ft. three-car garage, the layout emphasizes flow, functionality, and comfort.
Let me take you through this plan floor by floor, showing why it’s perfect for both daily life and entertaining.


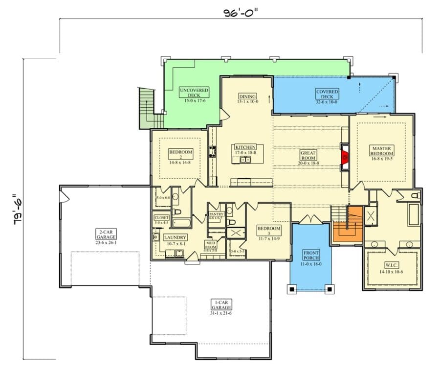
Front Entrance and Grand Foyer
Entering through the front door, you immediately feel the openness that defines this floor plan.
The grand foyer flows directly into the great room, setting the tone for spacious, connected living.
This layout ensures guests are welcomed with light and grandeur, while the open concept helps when planning furniture or remodeling.
Using interior design software could help you visualize every nook, from entryway console tables to statement lighting.
The foyer also hints at the practical aspects of this home, including easy access to the mudroom—perfect for keeping outdoor gear organized, which is crucial if you’re considering a mountain lifestyle or planning home improvements.
Great Room and Covered Deck Connection
The great room is the heart of the floor plan, featuring a seamless connection to a covered deck.
This design ensures natural light floods the space and creates a flow between indoor and outdoor living.
Whether you’re entertaining friends or enjoying quiet mornings, this layout maximizes enjoyment while maintaining privacy.
A smart home technology setup fits perfectly here, controlling lighting, temperature, and entertainment systems.
From a property value standpoint, an open great room that extends to outdoor decks is a strong selling point, making it an ideal space for future investment or even home remodeling.
Main-Floor Kitchen and Butler’s Pantry
Adjacent to the great room is the main-floor kitchen, thoughtfully designed for efficiency and style.
The inclusion of a butler’s pantry enhances functionality, making meal prep and serving guests a breeze.
The layout ensures movement flows naturally between cooking, dining, and social areas—a key benefit of this floor plan.
If you’re considering financing upgrades, home improvement loans or home equity loans could help you invest in high-end appliances or smart kitchen technology.
A well-laid-out kitchen not only makes daily life easier but also strengthens the property value when it comes time to refinance mortgage or sell.
Formal Dining Room Placement
The formal dining room, located conveniently off the kitchen, is perfectly integrated into the floor plan.
Its placement ensures easy access for daily meals and large gatherings alike.
The design allows for a balance of intimacy and openness, which is crucial in an expansive home.
For someone buying this home, this layout makes entertaining effortless.
A real estate agent would likely point out that formal dining adjacency to the kitchen is a layout feature buyers love, improving both flow and functionality.
Master Suite Layout
The master suite occupies a prime spot on the main level, offering both comfort and privacy.
With a generous walk-in closet and direct access to a private covered deck, the plan emphasizes rest, relaxation, and convenience.
The master bath is strategically positioned to maximize space efficiency, and the layout ensures privacy from the rest of the home.
Home warranties and smart home technology can enhance this space, protecting high-end features while adding convenience.
From a financial standpoint, understanding your credit score and exploring home loan pre-approval options can help secure this suite as part of your purchase.
Mudroom and Laundry Placement
The mudroom is strategically placed near the garage entrance, keeping messes contained and maintaining the clean flow of the main floor.

Its adjacency to the laundry area makes chores simple and practical, aligning perfectly with the home’s functional layout.
This area’s design is ideal for families or anyone investing in a mountain lifestyle.
Home improvement loans could even help upgrade cabinetry or storage systems here, enhancing both aesthetics and usability without compromising the floor plan’s integrity.
Game Room and Home Theater
The lower level is an entertainment hub, designed for both family fun and hosting guests.
The game room is open yet contained, creating a defined space without feeling isolated.
Meanwhile, the home theater is positioned to maximize viewing angles and acoustics, a smart consideration in the floor plan that prevents noise from spilling into main living areas.
This layout allows the lower level to function independently while still connected to the rest of the home.
A home remodeling contractor could suggest custom seating or tech upgrades, but the floor plan already anticipates comfort and flow.
Lower-Level Home Office and Covered Patio
The home office, tucked into a quieter corner of the lower level, benefits from the thoughtful floor plan by offering privacy while remaining accessible.
It’s perfect for remote work, reading, or managing household tasks.
Adjacent to this is a covered patio that extends living space outdoors.
Its location within the floor plan encourages gatherings without interfering with indoor activities.
Adding a best home security system or smart lighting here integrates safety and convenience seamlessly.
Garage Layout and Storage
The three-car garage, measuring 1,432 sq. ft., is positioned for easy access while maximizing storage options.
Its layout accommodates vehicles, seasonal gear, and hobby equipment without cluttering the home.
From a planning perspective, this is a key feature for anyone considering a purchase or investment.
The garage’s size and placement demonstrate thoughtful floor plan design, offering flexibility for future renovations or upgrades through home improvement loans.
Flow and Connectivity of Living Spaces
One of the standout features of this mountain house plan is the seamless flow between living spaces.
From the foyer to the great room, kitchen, and outdoor areas, the layout ensures accessibility and comfort without compromising privacy.
For prospective buyers, this flow is a major selling point.
Using a building cost estimator or consulting a real estate agent can help understand the financial implications of this layout and any potential investments in customization or home remodeling.
This expansive mountain house plan is a masterclass in functional design.
Every square foot is intentional—from the grand foyer to the lower-level entertainment spaces.
The layout integrates comfort, convenience, and lifestyle considerations, making it ideal for families, remote workers, and anyone seeking both luxury and practicality.
Financing options like home equity loans, refinance mortgage strategies, and home loan pre-approval can make this floor plan accessible, while interior design software and smart home technology allow you to personalize and future-proof the property.
The plan’s attention to flow, accessibility, and entertainment ensures that every area serves a purpose, enhancing daily life while increasing property value.
If you’re considering a mountain home as your next purchase, this plan delivers not only spacious living but thoughtful design that supports both enjoyment and long-term investment.
With 3 bedrooms, 3.5 baths, an entertainment-rich lower level, and multiple outdoor living options, it’s a layout built to impress and function beautifully every day.
Building or buying a home isn’t just about picking the perfect house plan—it’s also about making smart long-term choices. From comparing mortgage rates to finding a trustworthy real estate agent, every decision adds value. Don’t forget to explore options like home insurance, home warranties, and potential refinance opportunities to protect your investment.
Want to boost your property value? Consider installing solar panels, upgrading to energy-efficient appliances, or integrating a smart home system. Plus, tools like interior design software can help you visualize and plan your dream space before the first brick is even laid.
Find More House Plans
By Bedrooms:
1 Bedroom • 2 Bedrooms • 3 Bedrooms • 4 Bedrooms • 5 Bedrooms • 6 Bedrooms • 7 Bedrooms • 8 Bedrooms • 9 Bedrooms • 10 Bedrooms
By Levels:
By Total Size:
Under 1,000 SF • 1,000 to 1,500 SF • 1,500 to 2,000 SF • 2,000 to 2,500 SF • 2,500 to 3,000 SF • 3,000 to 3,500 SF • 3,500 to 4,000 SF • 4,000 to 5,000 SF • 5,000 to 10,000 SF • 10,000 to 15,000 SF










