One-Story 5-Bedroom Craftsman House with Angled Garage with Shop (Floor Plan)

Specifications:
- 2,891 Sq Ft
- 2 – 5 Beds
- 1.5+ – 4.5+ Baths
- 1 Stories
- 5 Cars
When I first looked at this one-story Craftsman home, I knew it wasn’t just another house—it was a dream carved into blueprints.
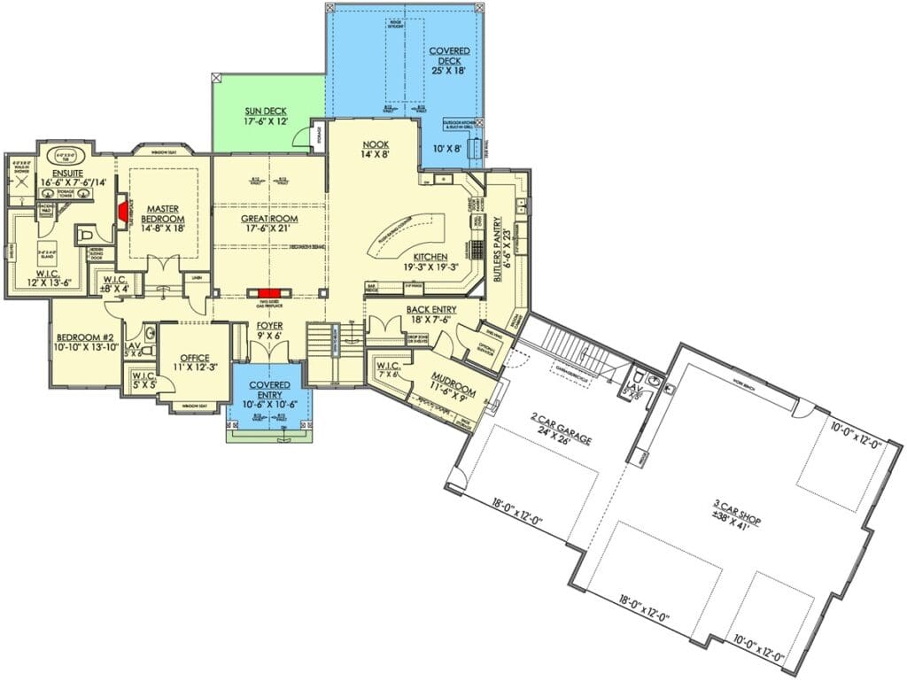
With 2,891 square feet of living space on the main floor and another 2,523 square feet in the lower level, this plan is where beauty meets practicality.
The moment I saw that angled 5-car garage with a shop, I could already picture my weekends filled with projects and my mornings with sunlight streaming through the great room’s vaulted ceiling.


A Floor Plan Built Around Connection
One of the best parts of this floor plan is how naturally the spaces flow into one another.
The foyer leads straight into the great room, separated only by a stunning two-sided fireplace—a design detail that feels both welcoming and clever.
The vaulted ceiling, rising to an airy 14 feet 1 inch, opens the space beautifully, while the decorative beams add that signature Craftsman character.
It’s not just about how big the room feels; it’s about how connected it feels.
Whether it’s family gatherings, quiet evenings, or friendly get-togethers, this layout makes every moment feel part of one continuous story.
And I’ll be honest—this is the kind of space that would make any real estate agent nod in approval, knowing the property value practically speaks for itself.
The Kitchen That Anchors the Home
The kitchen in this plan doesn’t just sit at the center—it commands it.
Its curved island, with an impressive 11-foot radius, is where everyone will inevitably gather.
The open connection to the great room and nook means I can keep conversations going while prepping dinner or refilling drinks.
The inclusion of a wet bar is a small luxury that adds a huge social perk.
And the butler’s pantry—let’s just say it’s so large and functional that organizing it might become my new hobby.
It’s the kind of layout that turns cooking into entertainment.
With today’s smart home technology, I can already picture how automated lighting and voice-controlled appliances would make this space even more efficient.
And if I ever needed to make updates, using interior design software could help visualize new colors or fixtures before diving into a home remodeling contractor project.

The Great Room
The great room is where this floor plan really breathes.
The soaring ceiling, the glow from the fireplace, and the open sightlines create a feeling of both grandeur and coziness.
It’s the perfect space to unwind, entertain, or simply enjoy a lazy Sunday.
I can imagine setting up a small reading nook by the window, maybe adding a few pieces of tech from the best home security system to keep everything safe.
With thoughtful planning like this, I’d definitely consider adding a home warranty to protect all the fixtures and finishes that make this space shine.
Private and Peaceful Main-Level Bedrooms
The main floor has two bedrooms, and the way they’re positioned offers privacy without isolation.
The primary suite is designed as a peaceful retreat, large enough for a sitting area, and thoughtfully placed away from the main living spaces.
It’s easy to picture starting each morning with sunlight spilling in and ending each night with complete calm.
The second bedroom on this level can be used as a guest room, office, or even a nursery.
This flexibility is what makes the floor plan timeless.
If I were buying this home, I’d check my credit score right away, get my home loan pre-approval, and make sure I was ready to purchase before someone else snapped it up.
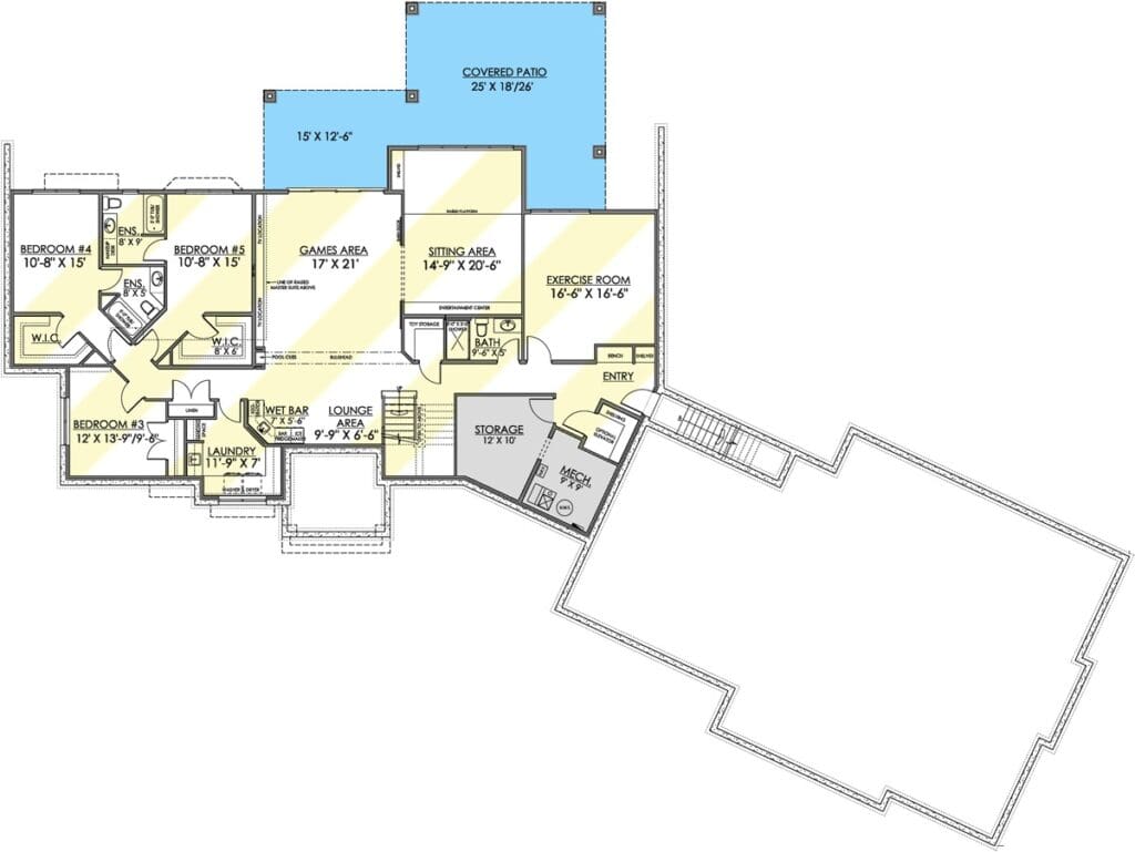
The Lower Level
Now, here’s where the floor plan gets even more exciting—the lower level.

With an additional 2,523 square feet, it’s not just a basement; it’s a whole new chapter of the home.
This space can hold up to three more bedrooms, perfect for a growing family or for guests who like a little extra privacy.
Beyond bedrooms, there’s ample room for a media lounge, home gym, or recreation area.
I could even see turning part of it into a rental suite, adding another layer of investment potential.
For anyone budgeting the finish work, a building cost estimator and home improvement loans would be a practical combo to bring this dream to life.
The Angled 5-Car Garage
Now let’s talk about the real conversation piece—the angled 5-car garage with a shop.
Not only does it look incredible from the curb, but it’s also a masterpiece of functionality.
The angled layout adds architectural interest while giving me more room to move around inside.
Whether it’s for cars, tools, or hobbies, the possibilities are endless.
The attached shop makes it ideal for woodworking, tinkering, or even running a small business from home.
I can already see myself pretending to be handy, tools scattered everywhere, while secretly feeling accomplished just for organizing my screwdrivers.
This garage isn’t just a storage space—it’s a built-in lifestyle upgrade.
It’s also something that could help with refinance mortgage negotiations later on since well-designed utility spaces often add to long-term property value.
Design That Balances Space and Simplicity
What I love about this floor plan is how it strikes the perfect balance between openness and structure.

The flow from the kitchen to the great room feels natural, while private areas like the bedrooms and lower level create comfortable retreats.
The nook off the kitchen offers a casual dining space that doesn’t feel cramped or out of place.
Every element is positioned with purpose—nothing feels wasted.
It’s the kind of design that encourages everyday living to feel effortless.
If I were moving in, I’d make sure to have home insurance lined up from day one—because when you find a floor plan this good, you protect it.
A Plan Built for Today and Tomorrow
The more I study this layout, the more I realize how future-proof it is.
Whether it’s aging in place, expanding a family, or simply wanting room to grow, this floor plan accommodates it all.
The one-story layout makes daily living easy, while the lower level provides extra flexibility for whatever life throws next.
Even from an investment standpoint, the structure and flow make this home a smart purchase.
It’s efficient, adaptable, and designed with long-term comfort in mind.
With mortgage rates fluctuating and market conditions shifting, owning a home like this feels like the kind of decision that pays off emotionally and financially.
Every inch of this one-story Craftsman plan tells a story of thoughtful design and timeless charm.
From the soaring vaulted ceilings and cozy two-sided fireplace to the entertainer’s kitchen and the expansive angled garage, each space complements the next.
This isn’t just a layout—it’s a lifestyle map.

It’s where family dinners, lazy Sundays, and new hobbies all have a place.
The attention to flow, balance, and flexibility makes this house plan more than walls and beams—it’s a canvas for living well.
And as I look at it again, imagining the warm light spilling into that great room, I realize this floor plan doesn’t just make sense—it makes home make sense.
If I had the chance, I’d buy it in a heartbeat… and maybe even start planning my home equity loan to personalize every inch just the way I like it.
Building or buying a home isn’t just about picking the perfect house plan—it’s also about making smart long-term choices. From comparing mortgage rates to finding a trustworthy real estate agent, every decision adds value. Don’t forget to explore options like home insurance, home warranties, and potential refinance opportunities to protect your investment.
Want to boost your property value? Consider installing solar panels, upgrading to energy-efficient appliances, or integrating a smart home system. Plus, tools like interior design software can help you visualize and plan your dream space before the first brick is even laid.
Find More House Plans
By Bedrooms:
1 Bedroom • 2 Bedrooms • 3 Bedrooms • 4 Bedrooms • 5 Bedrooms • 6 Bedrooms • 7 Bedrooms • 8 Bedrooms • 9 Bedrooms • 10 Bedrooms
By Levels:
By Total Size:
Under 1,000 SF • 1,000 to 1,500 SF • 1,500 to 2,000 SF • 2,000 to 2,500 SF • 2,500 to 3,000 SF • 3,000 to 3,500 SF • 3,500 to 4,000 SF • 4,000 to 5,000 SF • 5,000 to 10,000 SF • 10,000 to 15,000 SF










