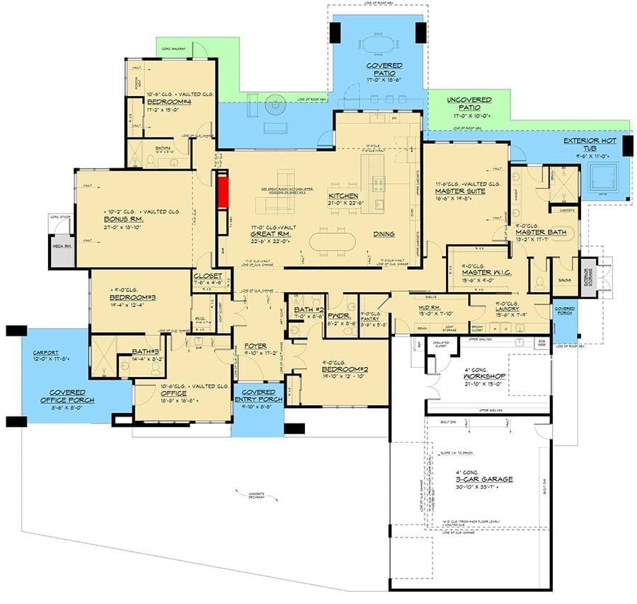
One-Story 4-Bedroom Modern House with Outdoor Office (Floor Plan)

Specifications:
- 4,742 Sq Ft
- 4 Beds
- 4.5 Baths
- 1 Stories
- 3 Cars
If home layouts could talk, this one would probably say, “Relax, I’ve got everything covered.”
This 4,742 sq. ft. modern one-story plan isn’t just a house—it’s a lifestyle blueprint.
With 4 bedrooms, 4.5 baths, a 3-car garage with a built-in workshop, and even an outdoor office porch, this home perfectly blends space, comfort, and clever design.
Let me take you through each part of this floor plan, room by room, where luxury meets livability (and maybe a touch of organized chaos).


Welcoming Entry that Sets the Tone
The covered entry porch opens into a foyer that feels both inviting and impressive.
From the very first step, you can see straight through to the great room and beyond, giving you that sense of openness modern design is famous for.
The 11-foot ceiling height adds just the right dose of grandeur—without making you feel like you’ve stepped into a museum.
To the side of the entry, a cozy bedroom sits perfectly for guests or family, close to a full bath for convenience.
It’s a well-thought-out layout that says, “Yes, visitors are welcome—but they don’t get the best room.”
As I imagine moving through this entry, I can’t help but think how a strong credit score would come in handy when buying a house this perfect.
It’s the kind of place that motivates you to get that home loan pre-approval done quickly—before someone else grabs it.
The Great Room
Step past the foyer, and you enter the great room, the beating heart of the floor plan.
With vaulted ceilings soaring up to 17 feet and an open connection to the kitchen and dining area, it’s designed for everything from game nights to lazy Sundays.
I love that the great room flows right out to the covered patio, making indoor-outdoor living effortless.
You can picture opening the sliding doors, letting the breeze in, and extending your living space during warm evenings.
And yes, the patio’s proximity to the hot tub means relaxation is always just a few steps away.
This space is not just beautiful—it’s smart.
The open plan is perfect for smart home technology integration, from lighting to entertainment systems.
And since open layouts tend to increase property value, this area is as practical as it is stylish.
A Kitchen Designed for Real Life (and Real Cooking)
The kitchen in this house isn’t just a corner for cooking—it’s command central.
With its huge island, 21′ x 12′ layout, and direct view into the great room, this kitchen encourages multitasking at its finest.

You can chat with guests, keep an eye on the kids, and taste-test dinner—all without missing a beat.
Storage lovers, rejoice!
There’s plenty of cabinet space, plus easy access to a walk-in pantry.
The dining area sits perfectly adjacent, balancing open space with a cozy mealtime vibe.
If you’re thinking about building cost estimators, you’d appreciate how efficiently this kitchen connects to everything—saving both space and construction costs while delivering serious luxury.
And when it comes to home improvement loans, this layout doesn’t need much—just add your favorite finishes and it’s perfect.
A Master Suite Made for Peace and Privacy
Every good floor plan knows that privacy matters, and this one nails it.
The master suite sits on its own wing of the home, separated from the rest of the bedrooms for ultimate tranquility.
Vaulted ceilings and large windows make the room feel open and relaxing.
There’s space for a sitting area too—ideal for morning coffee or pretending you’re in a spa retreat.
The master bath feels like a small resort, with a soaking tub, walk-in shower, and dual vanities.
And that enormous walk-in closet?
Let’s just say you might lose a weekend organizing it (and loving every minute).
This kind of layout isn’t just great for comfort—it’s an investment in everyday happiness.
With the right home warranty and home insurance, the master suite becomes more than just a bedroom—it’s your daily escape.
Bedrooms That Balance Space and Comfort
Moving to the left side of the floor plan, you’ll find three additional bedrooms, each thoughtfully arranged for privacy and accessibility.
Bedroom 2 sits near the front, ideal for an office or guest room, while Bedroom 3 and Bedroom 4 share a hallway toward the back.

Every bedroom connects conveniently to a bath, making mornings smoother for everyone.
No more waiting in line or awkward hallway traffic.
And that’s a win in any home—especially one with teenagers or frequent guests.
Bedroom 4 even connects to the bonus room, which can transform into a media space, playroom, or gym.
I can already imagine the laughter, movie nights, and occasional messes that make a house feel like home.
The Workshop and Garage
Let’s step into the 3-car garage—because this is no ordinary garage.
With over 1,100 sq. ft. of space and a dedicated workshop attached, it’s a dream for hobbyists, gearheads, or anyone who loves to build things (or just escape for a little peace and quiet).
Whether you’re tuning up a motorcycle, crafting furniture, or experimenting with interior design software, this workshop is your creative playground.
It connects directly to the house through the mudroom, which is perfect for dropping tools or boots before heading inside.
And for those who love cars, the carport offers an extra 327 sq. ft. of covered parking.
That’s where I’d probably keep the “weekend” vehicle—the one you promise your real estate agent you’ll actually drive one day.
This kind of garage-and-workshop combo adds major property value, making it not just convenient but also financially smart.
The Outdoor Office
One of my favorite parts of this plan is the covered office porch.
This space is genius—it’s both functional and inspiring.
Whether you use it for remote work, creative projects, or just quiet thinking, it’s designed to keep you productive while surrounded by fresh air.
Positioned conveniently near the office and carport, it feels both private and accessible.
You can host clients here or just enjoy the outdoor vibe while working on your next big idea.

If I ever needed to refinance my mortgage to invest in upgrades, this porch alone would make it worth it.
Imagine adding some modern furniture, lighting, and maybe the best home security system to ensure your outdoor workspace stays safe.
Smart Circulation and Seamless Flow
One of the strengths of this floor plan is how every space connects logically.
The foyer leads smoothly into the great room.
The mudroom provides direct access between the garage, laundry, and main hallway.
Even the powder bath and pantry are placed perfectly for convenience.
There’s no wasted square footage here.
Every corner feels intentional.
Whether you’re planning to buy this house as a family home or as an investment property, its efficient design helps you get the most out of every inch.
It’s a layout that even the best home remodeling contractor would admire for its practicality.
Future upgrades will be simple because the structure already supports open, flexible living.
Outdoor Living That Feels Like a Vacation
Now let’s head out back, where the covered patio, uncovered patio, and hot tub area combine to create a private retreat.
The covered section is perfect for year-round entertaining—rain or shine—while the open space lets you soak up the sun.
Add a grill, some cozy furniture, and string lights, and you’ve got your own backyard resort.
The connection between the great room, kitchen, and patio makes this house perfect for gatherings, big or small.
And yes, if you’re looking at this from an investment standpoint, outdoor living areas like these significantly boost property value and curb appeal.
What I love most about this one-story modern home is that it’s both spacious and practical.
It celebrates open living without losing warmth.
It’s big enough for entertaining but designed for easy everyday flow.

From the vaulted great room to the private master suite, every detail reflects thoughtful design.
The workshop, outdoor office, and garage add flexibility, while the smart room placements make family life seamless.
Whether you’re thinking of your home equity loan, planning to purchase your dream home, or just exploring your next big investment, this floor plan delivers on every level.
It’s not just a house—it’s the perfect blueprint for modern living, where comfort, creativity, and connection all find their place under one sleek, well-planned roof.
Building or buying a home isn’t just about picking the perfect house plan—it’s also about making smart long-term choices. From comparing mortgage rates to finding a trustworthy real estate agent, every decision adds value. Don’t forget to explore options like home insurance, home warranties, and potential refinance opportunities to protect your investment.
Want to boost your property value? Consider installing solar panels, upgrading to energy-efficient appliances, or integrating a smart home system. Plus, tools like interior design software can help you visualize and plan your dream space before the first brick is even laid.
Find More House Plans
By Bedrooms:
1 Bedroom • 2 Bedrooms • 3 Bedrooms • 4 Bedrooms • 5 Bedrooms • 6 Bedrooms • 7 Bedrooms • 8 Bedrooms • 9 Bedrooms • 10 Bedrooms
By Levels:
By Total Size:
Under 1,000 SF • 1,000 to 1,500 SF • 1,500 to 2,000 SF • 2,000 to 2,500 SF • 2,500 to 3,000 SF • 3,000 to 3,500 SF • 3,500 to 4,000 SF • 4,000 to 5,000 SF • 5,000 to 10,000 SF • 10,000 to 15,000 SF










