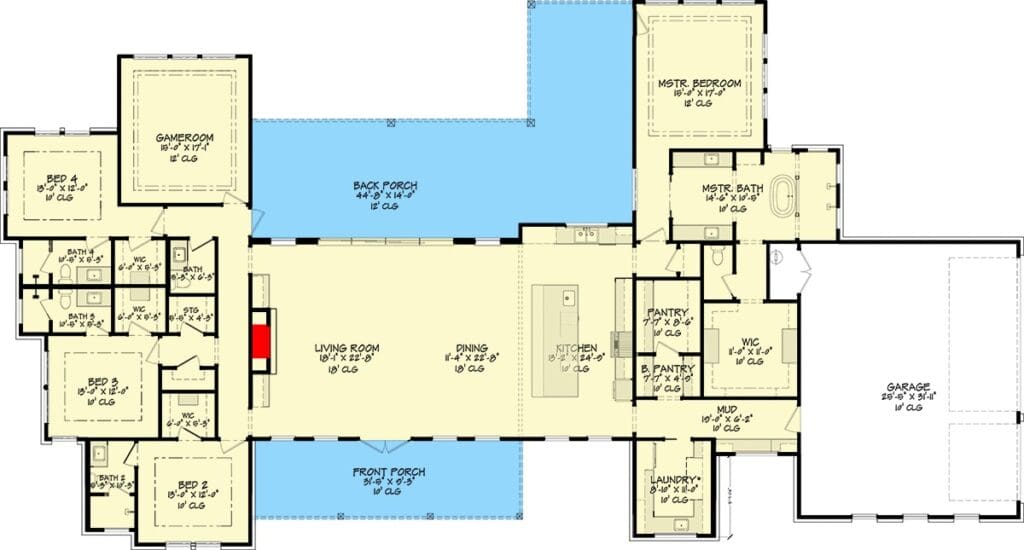
One-Story 4-Bedroom Contemporary Hill Country House with Split-bed Layout (Floor Plan)

Specifications:
- 3,528 Sq Ft
- 4 Beds
- 4.5 Baths
- 1 Stories
- 3 Cars
If you’ve ever daydreamed about a house that blends rustic charm with clean, contemporary lines—and makes everyday living feel like a retreat—let me introduce you to your new obsession.
This 3,528 square foot, one-story Hill Country house plan isn’t just easy on the eyes.
It’s smart, stylish, and thoughtfully designed from top to bottom.
Let’s walk through it together and see why it’s more than just a house—it’s an investment in the life you want to build.




Open-Concept Living with Natural Light and Comfort
At the heart of this home is a wide open living space, designed to feel as expansive as the Texas sky.
Thanks to front and rear porches, natural light pours in from both sides, creating a warm, welcoming vibe all day long.
The open floor plan makes it easy to stay connected—whether you’re hosting a game night or just trying to get through a Monday.
The seamless flow from living room to dining area to kitchen makes this space perfect for entertaining.
It also subtly increases your property value, thanks to a layout that feels both airy and functional.
If you’re using interior design software to experiment with furniture layouts, you’ll appreciate how flexible the space is.
And trust me—once you see how your favorite armchair looks under that soft afternoon light, you’ll be sold.
Gourmet Kitchen Designed for Real Life
Let’s talk about the kitchen—because in this house, it’s not an afterthought.
This isn’t just where meals are made; it’s where life happens.

The oversized island anchors the space and comes with a secondary veggie sink.
It’s the kind of thoughtful touch that makes multitasking feel a little less like chaos and a little more like choreography.
Add in the massive walk-in pantry, and you’ve got more storage than you’ll know what to do with.
No more trying to cram cereal boxes on top of your blender.
And if you’re considering a few upgrades down the line, a home equity loan could help transform this already-stunning kitchen into a culinary dreamscape.
Don’t forget: kitchens sell homes.
This one is an investment in both lifestyle and future resale value.
A Master Suite That Feels Like a Private Retreat
Now, the master bedroom.
It’s everything you’ve been wanting and didn’t know you needed.
The tray ceiling adds a sophisticated touch—because even your ceiling deserves to be fancy—and the room itself offers privacy and peace on the opposite side of the house from the other bedrooms.
The ensuite bath?
Get ready to swoon.

A freestanding tub sits elegantly in front of a two-person shower.
Whether you’re winding down with a bubble bath or enjoying the luxury of extra elbow room, this space delivers major spa vibes.
It’s so comfortable, you might even forget what day it is (which is fine, as long as your home insurance covers bubble-related incidents).
And for those wondering how to make it all happen financially, getting a home loan pre-approval is the first step toward making this slice of heaven your own.
Private Bedrooms with Individual Bathrooms
This house doesn’t just cater to the owners—it treats guests and family members like VIPs, too.
On the opposite side of the home, you’ll find three additional bedrooms, each with its own full bath and walk-in closet.
That’s right—no one’s stuck sharing a sink or battling over mirror time.
Whether you’ve got growing kids, overnight guests, or you just need space for your collection of vintage vinyl and three rescue dogs, these rooms offer privacy, comfort, and flexibility.
If you ever decide to refinance later, these high-end bedroom features could help support your refinance mortgage terms by increasing your home’s appraised value.
A Game Room That Brings Everyone Together
Tucked between the three family bedrooms, the game room is the cherry on top.

It’s the kind of bonus space that can change with your needs over time.
Maybe it’s a video game den, a homeschool classroom, or your future home yoga studio complete with incense and questionable flexibility.
Whatever your vision, this room is ready for it.
If you want to elevate the space even further, working with a home remodeling contractor can turn it into something truly special.
And if you’re the planning type, using a building cost estimator can help keep those updates on budget without losing your mind—or your weekend.
Functional Entryway Features That Make Life Easier
Let’s not forget the practical stuff, because as beautiful as this house is, it’s also smart about daily life.
The side-entry 3-car garage opens into a mud hall complete with built-in cubbies.
If you’ve ever tripped over a soccer cleat in the dark, you’ll appreciate this detail more than words can express.
Just past the mud hall is a laundry room that could be mistaken for a second living space.
It’s big, it’s efficient, and it’s placed exactly where it needs to be.

Toss in a few smart appliances and maybe some smart home technology, and suddenly you’ve got a chore zone that’s borderline enjoyable.
Pair all of this with the best home security system to protect your belongings and keep everything secure—from laundry to leftovers.
Designed for Today’s Real Estate Market
Homes like this don’t just make you fall in love—they make you think.
With changing mortgage rates and evolving market conditions, it’s more important than ever to see your home as an investment.
And this one’s a solid bet.
Buying a home is a big step, and partnering with a knowledgeable real estate agent can help you navigate every twist and turn.
They can help you make a smart purchase, explain your options for home improvement loans, and advise on how features like ensuite baths and open floor plans can affect long-term property value.
Remember: great homes aren’t just found—they’re planned for.
So keep an eye on your credit score, get your financing in order, and prepare to fall in love.

This Contemporary Hill Country House Plan isn’t just a floor plan—it’s a lifestyle.
With 4 bedrooms, 4.5 baths, a spacious open layout, and luxurious details at every turn, it’s ready for whatever stage of life you’re in.
And let’s not forget the value behind the beauty—this is a place where your money works for you, whether through increased property value, long-term investment potential, or just the joy of coming home to somewhere that truly feels like yours.
If you’re ready to buy smart, live comfortably, and build a future that includes late-night porch talks, open-concept dinner parties, and master-bath soaks that solve 90% of your problems—this is the plan you’ve been waiting for.
Building or buying a home isn’t just about picking the perfect house plan—it’s also about making smart long-term choices. From comparing mortgage rates to finding a trustworthy real estate agent, every decision adds value. Don’t forget to explore options like home insurance, home warranties, and potential refinance opportunities to protect your investment.
Want to boost your property value? Consider installing solar panels, upgrading to energy-efficient appliances, or integrating a smart home system. Plus, tools like interior design software can help you visualize and plan your dream space before the first brick is even laid.
Find More House Plans
By Bedrooms:
1 Bedroom • 2 Bedrooms • 3 Bedrooms • 4 Bedrooms • 5 Bedrooms • 6 Bedrooms • 7 Bedrooms • 8 Bedrooms • 9 Bedrooms • 10 Bedrooms
By Levels:
By Total Size:
Under 1,000 SF • 1,000 to 1,500 SF • 1,500 to 2,000 SF • 2,000 to 2,500 SF • 2,500 to 3,000 SF • 3,000 to 3,500 SF • 3,500 to 4,000 SF • 4,000 to 5,000 SF • 5,000 to 10,000 SF • 10,000 to 15,000 SF










