Luxurious 5-Bedroom 2-Story Modern Farmhouse with Open Layout and Expansive Outdoor Living (Floor Plan)

Specifications:
- 3,753 sq. ft.
- 5 Beds
- 3.5 Baths
- 2 Stories
- 2 Cars
When I first laid eyes on this modern farmhouse plan, I felt like I’d found the perfect blend of charm, elegance, and practicality—all rolled into one.
It’s not every day you come across a home that manages to be both inviting and sophisticated, with just the right dash of wow factor.
Trust me, from open layouts to outdoor entertaining spaces, this house has it all.
And if you’re anything like me, you’ll immediately start imagining yourself hosting family dinners, cozying up by the fireplace, and maybe even debating whether to finally invest in a home equity loan for those finishing touches.


A Welcoming Open Layout
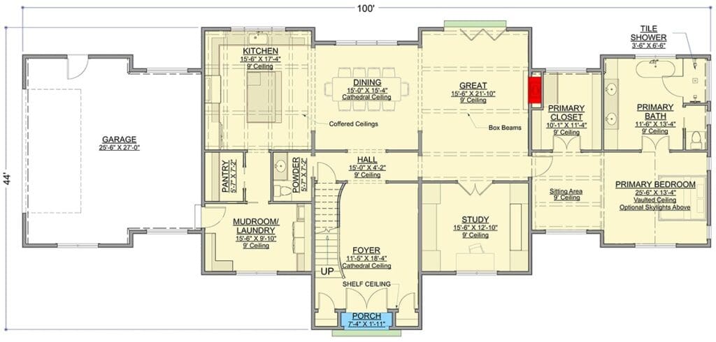
One of the first things you’ll notice about this European-style modern farmhouse is the open layout.
There’s something incredibly freeing about walking into a home where the living, dining, and kitchen areas flow seamlessly into each other.

Imagine whipping up breakfast in the kitchen while keeping an eye on the kids doing homework at the dining table, all under the gaze of soaring cathedral ceilings.
It’s the kind of layout that makes daily life feel less like a juggling act and more like a carefully choreographed dance.

The kitchen island is cleverly designed, with the sink facing forward so you can chat with guests or watch over the family room while prepping meals.
And speaking of the family room, the fireplace creates a warm, inviting atmosphere, perfect for curling up on the couch with a blanket and a good book—or negotiating who gets control of the TV remote.

Of course, if you’re thinking about home improvement loans to customize this space, the open floor plan offers plenty of options. Want to add built-in shelves or a media wall? Easy.
Thinking about installing smart home technology so the lighting and temperature adjust automatically? Also doable. This house is ready to embrace modern comforts while maintaining its timeless farmhouse appeal.

Gourmet Kitchen with Pantry Perks
Calling all home chefs! The kitchen is an absolute dream, featuring not only a spacious layout but also both a walk-in food pantry and a butler’s pantry.
That means you have enough storage to rival a boutique grocery store, and a secondary prep area perfect for entertaining without cluttering your main workspace.

Walls of glass bring in sunlight and showcase the backyard, making it feel like the outdoors are part of the kitchen—perfect for Sunday morning breakfasts or a spontaneous barbecue.
Speaking of barbecues, the barbecue porch is an entertainer’s dream. Whether you’re hosting a summer party or just enjoying a quiet evening with family, this outdoor space seamlessly connects to the indoors, thanks to those generous glass walls.

And if you’re serious about protecting your investment, installing the best home security system will let you enjoy those moments without a worry in the world.
The kitchen’s thoughtful design can also make a difference when calculating property value or even discussing financing with your real estate agent.

With features like this, it’s easier to justify a higher home loan pre-approval amount or even consider refinance mortgage options down the line.
Private Master Suite Retreat
Now, let’s talk about the master suite—because this is where luxury meets comfort. Located on the main floor for privacy, the suite includes a sitting area, a tray ceiling, and a door opening to the back porch.

It’s the ultimate retreat after a long day, perfect for reading, relaxing, or enjoying a quiet morning coffee while soaking in the view of your backyard.
Every bedroom in this home comes with its own walk-in closet, so you won’t be fighting over space or turning your home into a laundry obstacle course.

Adjacent to the master suite is a private study, ideal for remote work, creative projects, or just a little “me time.”
If you’re considering hiring a home remodeling contractor later on, the study could even double as a small guest office or library. It’s flexible, functional, and adds an undeniable sense of elegance to the home.

For homeowners who like to plan for the future, the optional bonus space upstairs is a blank canvas.
Finish it now or leave it for later—it’s the perfect spot for a game room, exercise area, or even an in-law suite.

And with building cost estimator tools, you can project costs and plan accordingly without breaking a sweat.
Split Bedrooms and Family-Friendly Design
Upstairs, you’ll find 4 to 5 additional bedrooms, making this home ideal for larger families or those who love hosting guests.

The split bedroom design ensures privacy and comfort for everyone, while the unfinished bonus area adds extra flexibility for your long-term vision.
Every room is bright and airy, with walls of glass that maximize natural light and provide stunning backyard views.

This design isn’t just practical; it’s also a smart investment. Homes with well-planned bedroom layouts and bonus spaces tend to hold their value better, making them appealing whether you plan to buy now or consider future upgrades like home equity loans or home improvement loans.
Outdoor Living: Your Backyard Oasis
It’s impossible to talk about this farmhouse without highlighting its extensive outdoor living spaces.

From the barbecue porch to open-air decks and patios, there’s plenty of room for alfresco dining, lounging, or simply enjoying the fresh air.
Imagine hosting family gatherings where kids run free while adults sip wine by the fireplace. And for peace of mind, pairing these spaces with home insurance coverage ensures your property and possessions are protected.

The integration of indoor and outdoor living areas also works wonderfully for those interested in interior design software.
You can experiment with layouts, furniture placement, and even landscaping concepts before committing to changes—allowing you to make the most of your investment while keeping building costs in check.

Side-Load Garage and Corner Lot Convenience
One of the standout features of this modern farmhouse is the side-load garage, which makes the home ideal for a corner lot.
Not only does this design enhance curb appeal, but it also provides extra space for vehicles, storage, or even a workshop area.

If you’ve ever dreamed of having a dedicated space for tools, sports equipment, or that elusive DIY project, this garage has you covered.
And let’s be honest, a side-load garage is also a smart move for home insurance considerations—it keeps vehicles and stored items more protected from street exposure and adds a layer of convenience when juggling busy family schedules.

Pair this with a best home security system and some smart home technology, and you’ve got peace of mind built right in.
European Elegance Meets Modern Comfort
This two-story European-inspired farmhouse exudes luxury while remaining highly livable.

The open foyer immediately sets the tone, welcoming guests with a sense of grandeur. Cathedral ceilings amplify the feeling of space throughout the main floor, enhancing both light and airflow.
And with the open floor plan connecting the living, dining, and kitchen areas, it’s easy to entertain large groups or enjoy intimate family moments without feeling cramped.

For those looking to buy a home that combines timeless elegance with modern convenience, this plan is a dream.
From the carefully planned interior design software layouts you can visualize before moving in, to the home remodeling contractor options if you want to tweak finishes, this home offers flexibility for both style and function.

Masterful Family Room and Living Spaces
And speaking of kitchens, the butler’s pantry comes into play during entertaining, giving you a staging area for drinks or hors d’oeuvres without cluttering the main space.
The family room is the heart of the home, complete with a cozy fireplace and views of the backyard. Its central location ensures you can supervise kids, enjoy a movie night, or host friends while still being connected to the kitchen.

Every detail here impacts property value, making this not just a home but a smart investment.
With the ability to consider home improvement loans or even a home equity loan later, you can customize spaces like the family room, study, or bonus area to suit your lifestyle.

And if you’re thinking long-term, knowing your credit score can help you secure favorable mortgage rates or a home loan pre-approval, ensuring that financing this beautiful property is as stress-free as living in it.
Bonus Spaces for Flexibility
Upstairs, the unfinished bonus space offers endless possibilities. Want a dedicated gaming room, a yoga studio, or an extra bedroom for guests?

You can create exactly what you need without impacting the existing layout.
Using a building cost estimator can help plan out these upgrades, while your real estate agent can advise on which improvements may maximize property value.

The beauty of this plan is that it accommodates both current needs and future dreams.
Optional finishes mean you can purchase the home now and expand or enhance as life evolves.

Whether you’re thinking of adding a media room, a craft space, or a home office, the structure supports it without sacrificing the flow of the home.
Light, Views, and Seamless Indoor-Outdoor Living
One of the home’s most striking features is the use of walls of glass, connecting interior spaces with the outdoors.

Morning sunlight floods the dining area, and views of the backyard create a sense of calm and openness.
The back porch is accessible from both the master suite and main living areas, making it easy to move between indoor and outdoor spaces.

Outdoor living spaces like these not only enhance daily enjoyment but also boost property value.

And if you decide to equip these areas with smart home technology, like automated lighting, retractable shades, or climate control, you can enjoy both comfort and energy efficiency—without ever leaving the porch.

Bedrooms Designed for Comfort and Privacy
Every bedroom in this home comes with a walk-in closet, eliminating storage struggles and keeping personal spaces organized.

The split bedroom layout ensures privacy for all family members, making mornings less hectic and evenings more relaxing.

The upstairs bedrooms provide flexibility for growing families or hosting guests. The optional bonus space could even be converted into an additional bedroom or a multi-purpose suite.

These thoughtful designs not only improve day-to-day comfort but also make the home more appealing if you plan to refinance your mortgage or sell in the future.

Planning, Financing, and Protecting Your Investment
This modern farmhouse isn’t just a pretty face—it’s designed to be a wise investment.

From a practical standpoint, you can use a home loan pre-approval to secure favorable mortgage rates, while keeping in mind options like a home equity loan or home improvement loans to make upgrades over time.

Protecting your investment is just as important. Home insurance safeguards the structure and belongings, while a home warranty provides peace of mind for appliances and mechanical systems.

And if you’re considering long-term enhancements, working with a home remodeling contractor ensures any upgrades are done professionally, protecting both the look and value of your home.

Entertaining, Relaxing, and Living Life
At the end of the day, this home is built for living—whether that means hosting friends on the barbecue porch, enjoying quiet mornings in the master suite, or playing games with the kids in the bonus space.

The combination of open layout, cathedral ceilings, and seamless indoor-outdoor flow creates a home that is as functional as it is beautiful.

With features designed for comfort, elegance, and practicality, it’s easy to see why this modern farmhouse is more than just a house—it’s a lifestyle.

And the icing on the cake? The design allows for future enhancements, whether through home improvement loans, a home equity loan, or simply customizing rooms to reflect your personal taste using interior design software.
From the side-load garage ideal for a corner lot to the walk-in pantries, bonus spaces, and walls of glass, every element of this home has been carefully considered.
It’s a perfect mix of style, functionality, and flexibility—a home that grows with you.
And if you’re looking to buy a home that checks every box, this plan is a strong contender.
Whether your goal is to enjoy the immediate comforts, plan long-term improvements, or make a smart real estate investment, this modern farmhouse is ready for all of it.
Building or buying a home isn’t just about picking the perfect house plan—it’s also about making smart long-term choices. From comparing mortgage rates to finding a trustworthy real estate agent, every decision adds value. Don’t forget to explore options like home insurance, home warranties, and potential refinance opportunities to protect your investment.
Want to boost your property value? Consider installing solar panels, upgrading to energy-efficient appliances, or integrating a smart home system. Plus, tools like interior design software can help you visualize and plan your dream space before the first brick is even laid.
Find More House Plans
By Bedrooms:
1 Bedroom • 2 Bedrooms • 3 Bedrooms • 4 Bedrooms • 5 Bedrooms • 6 Bedrooms • 7 Bedrooms • 8 Bedrooms • 9 Bedrooms • 10 Bedrooms
By Levels:
By Total Size:
Under 1,000 SF • 1,000 to 1,500 SF • 1,500 to 2,000 SF • 2,000 to 2,500 SF • 2,500 to 3,000 SF • 3,000 to 3,500 SF • 3,500 to 4,000 SF • 4,000 to 5,000 SF • 5,000 to 10,000 SF • 10,000 to 15,000 SF










