Luxurious 5-Bedroom 2-Story Farmhouse With Spacious 5-Car Garage and RV Bay (Floor Plan)

- 6,218 sq. ft.
- 5 Beds
- 3.5 Baths
- 2 Stories
- 5 Cars
If you’ve ever daydreamed about a home that balances rustic charm with jaw-dropping luxury, this modern farmhouse house plan might just be your next obsession.
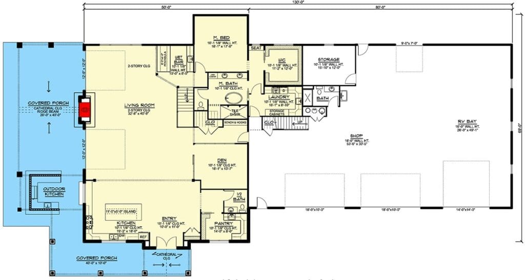
We’re talking 6,218 square feet of heated living space, a wraparound porch that practically begs for rocking chairs, and a garage big enough to park five cars and an RV.
As someone who loves open layouts and cozy fireplaces, I was smitten at first glance.
This 5-bedroom, 2-story modern farmhouse doesn’t just sit on a lot—it commands it.




First Impressions Matter
With a wraparound porch covering three sides of the home, the curb appeal is undeniable.
Imagine pulling up after a long day of house hunting with your real estate agent and realizing this one checks every box on your list.
Suddenly, that mental “purchase” button in your brain flips on, and you’re already picturing family photos on the porch.
And here’s the kicker: this beauty isn’t just stylish—it’s practical too.

Built with conventional wood framing and 2×6 exterior walls, it’s made to last, which is great when you start thinking about property value and long-term investment potential.
Whether you’re buying for your forever home or to create generational wealth, this plan makes sense financially and emotionally.
Open Layout Living
Inside, the open floor plan steals the show. You know that awkward shuffle when everyone crowds around the kitchen during gatherings? Not here.

The kitchen flows seamlessly into the family room, where a fireplace crackles and the kitchen island faces forward so you can chat with guests while chopping veggies.
It’s the kind of setup that makes entertaining easy and boosts your home’s property value in today’s market.
And if you’re worried about the cost of furnishing all that space, don’t. With modern interior design software, you can plan your rooms down to the throw pillows before you even move in. Trust me, it makes the process feel more like fun and less like stress.

Kitchens That Impress
Speaking of the kitchen—this one’s not just a place to cook, it’s a command center. You’ve got a walk-in food pantry (for the Costco-sized snack hauls) and a butler’s pantry (for hiding the mess when company’s over).
Add in walls of glass that frame views of your backyard and porch, and suddenly washing dishes at the island sink doesn’t sound so bad.
And here’s something clever: the two-sided fireplace connects the living room and the outdoor kitchen. So, whether you’re grilling burgers outside or lounging by the fire inside, you’ll always feel that cozy farmhouse warmth.

Honestly, it’s the kind of detail that makes a house stand out to buyers—and let’s face it, that matters if you ever decide to refinance mortgage or tap into a home equity loan later on.
Master Suite Goals
The main-floor master suite is pure comfort. Picture this: a tray ceiling that adds elegance without being fussy, a walk-in closet big enough to rival a boutique, and a private door to the back porch.
Morning coffee in your pajamas with fresh air and zero judgment? Yes, please.

And let’s not forget practicality. Having the laundry room on the main floor makes life so much easier.
No more dragging baskets up and down stairs—it’s the kind of home improvement that feels small until you realize how much it improves your daily routine.
Upstairs Retreats
Head upstairs, and you’ll find four more bedrooms, each with its own walk-in closet. Privacy is built right in, which is a huge win if you’ve got teenagers or guests. There’s even a home office, perfect for remote work or school projects.

And if you’re the type to crunch numbers, imagine pulling up your building cost estimator in that office to plan your next upgrade.
Oh, and the garage? One of the upstairs bedrooms has its own private staircase down to the garage—an ideal setup for independent teens or guests who like coming and going on their own.
Add in the fact that the garage can fit five cars and an RV, and suddenly, this isn’t just a house—it’s a lifestyle.

The Joy of Outdoor Living
This plan practically begs you to spend time outside. The outdoor kitchen is ready for summer barbecues, while the wraparound porch is perfect for quiet evenings.
Thanks to those massive glass doors in the living room (12’ by 12’, no less), the indoors and outdoors blend seamlessly.
And if you’re security-conscious like me, you’ll appreciate how easy it is to integrate the best home security system with smart home technology into this design. It’s one thing to love your porch swing—it’s another to protect it.

Thinking Ahead: Bonus Space
Not every decision has to be made on day one. The optional bonus space gives you flexibility. Maybe today it’s just unfinished storage, but tomorrow it could be a game room, a gym, or even a rentable guest suite.
And if you’re eyeing it as a long-term investment, you’ll be happy to know that finishing bonus space can boost your home’s property value without requiring a full remodel.
The Garage of Dreams
Let’s talk about that garage for a moment, because honestly, it deserves its own spotlight. This isn’t just a place to park cars—it’s practically an aircraft hangar.

With 3,359 square feet of parking and storage space, you’ve got room for five cars and an RV (or a boat, or both, if you’re feeling ambitious).
For anyone who’s ever played garage Tetris, trying to squeeze bikes, holiday decorations, and lawn equipment around a single SUV, this feels like pure luxury.
And here’s where the practical side kicks in: garages this size actually enhance your property value, making the purchase a stronger long-term investment.

If you ever decide to sell, your real estate agent will have a field day highlighting this feature.
Plus, if you’ve been eyeing that shiny RV but hesitating because you’d have to pay for off-site storage, this garage solves that problem. Just buy it, park it, and start planning your next road trip.
Light, Bright, and Airy
One of my favorite things about this farmhouse plan is how it brings in light. Thanks to the walls of glass and massive overhead doors, the entire home feels open and connected to the outdoors.

Natural light isn’t just about looks—it can even reduce energy costs over time, which is something your building cost estimator won’t let you ignore.
Imagine relaxing in the family room with the fireplace going, while floor-to-ceiling glass gives you uninterrupted views of your backyard. It’s the kind of setting that makes staying home feel like a vacation.
And if you’re like me, you’ll want to protect all that sunshine-filled square footage with the best home security system tied into your smart home technology.

Bedrooms With Personality
Let’s not forget the upstairs bedrooms. Every single one has its own walk-in closet, which is basically the modern-day gold standard. No more arguing over who gets the tiny closet—it’s equality for all.
And then there’s the home office upstairs. If your credit score has you holding back from a major purchase, you can always use this office to brainstorm side hustles, manage your finances, or just surf interior design software while dreaming up your next project.

It’s a space that adapts to your lifestyle, whether you need it for work, creativity, or just as a quiet retreat.
Building for Longevity
Because this home is built with 2×6 exterior walls, it’s sturdy, energy-efficient, and built to handle whatever life throws at it. That matters not only for your comfort but also for keeping your home insurance premiums reasonable.

Insurers love a well-built home—it makes their job easier, and it keeps your monthly budget from skyrocketing.
On the subject of finances, it’s worth noting that homes like this are often easier to refinance mortgage down the line.

Why? Because the property value tends to appreciate thanks to timeless design, large square footage, and desirable features like split bedrooms and outdoor living spaces. In other words, you’re not just buying a home—you’re buying peace of mind.
Outdoor Entertaining
The wraparound porch isn’t just eye candy—it’s functional. With three sides covered, you’ve got space for everything: morning coffee, evening wine, or even a kids’ play zone.

Add the outdoor kitchen and that two-sided fireplace, and you’ve basically got a year-round entertaining hub.
Now, let’s be honest: outdoor kitchens can get pricey, but that’s where home improvement loans or even a home equity loan come in handy.

Partner with a good home remodeling contractor, and suddenly you’ve got a gourmet setup outside that rivals your indoor kitchen. And yes, this counts as both a lifestyle upgrade and an investment in your home’s value.
Flexible Bonus Space
One of the best parts about this design is the optional bonus space. Don’t know what to do with it yet? No problem. Leave it unfinished and circle back later when the time (and budget) is right.

Whether you decide to turn it into a media room, a gym, or even an in-law suite, it’s a built-in opportunity for future home improvement.
And when you’re ready to tackle that project, you’ll appreciate having access to home remodeling contractors who can work with a building cost estimator to keep things on budget.

That’s the beauty of flexibility—you’re not locked into decisions before you’re ready.
At the end of the day, this isn’t just another house plan—it’s a blueprint for living well. It balances style and function, offers room to grow, and builds in flexibility for the future.
From the crackle of the family room fireplace to the sparkle of smart home technology, it’s a home that meets you where you are today and supports where you’re headed tomorrow.
So, whether you’re looking to buy for yourself, purchase as a long-term investment, or just dreaming about what’s possible, this modern farmhouse proves you don’t have to choose between beauty, comfort, and practicality. You really can have it all—porch swing included.
Building or buying a home isn’t just about picking the perfect house plan—it’s also about making smart long-term choices. From comparing mortgage rates to finding a trustworthy real estate agent, every decision adds value. Don’t forget to explore options like home insurance, home warranties, and potential refinance opportunities to protect your investment.
Want to boost your property value? Consider installing solar panels, upgrading to energy-efficient appliances, or integrating a smart home system. Plus, tools like interior design software can help you visualize and plan your dream space before the first brick is even laid.
Find More House Plans
By Bedrooms:
1 Bedroom • 2 Bedrooms • 3 Bedrooms • 4 Bedrooms • 5 Bedrooms • 6 Bedrooms • 7 Bedrooms • 8 Bedrooms • 9 Bedrooms • 10 Bedrooms
By Levels:
By Total Size:
Under 1,000 SF • 1,000 to 1,500 SF • 1,500 to 2,000 SF • 2,000 to 2,500 SF • 2,500 to 3,000 SF • 3,000 to 3,500 SF • 3,500 to 4,000 SF • 4,000 to 5,000 SF • 5,000 to 10,000 SF • 10,000 to 15,000 SF










