Elegant 5-Bedroom 2-Story Modern Farmhouse with 2-Car Side Garage and Spacious Layout (Floor Plan)

Specifications:
- 5,571 sq. ft.
- 5 Beds
- 4.5 Baths
- 2 Stories
- 2 Cars
Some house plans just have “the wow factor.”
This modern farmhouse does that and more — it wraps luxury, comfort, and charm into one irresistible package.
With its open layout, 5 spacious bedrooms, and walls of glass inviting the outdoors in, it’s the kind of place that makes you fall in love before you’ve even seen the kitchen (and trust me, that’s saying something).
Let’s take a stroll through this beauty — no hard hat required.



A Grand Welcome with Timeless Curb Appeal
The first impression? Pure perfection. Timber-framed gables paired with a brick exterior create a classic-meets-contemporary look that never goes out of style.
The side-load garage keeps the front view pristine — perfect for a corner lot — while adding easy access and curb appeal that could make any real estate agent swoon.
It’s the kind of house that makes people slow down when they drive by, wondering what the inside must look like. Spoiler: it’s even better than they imagine.
And if you’re thinking ahead about your property value or planning to buy a home that doubles as a smart investment, this one nails it from the curb onward.
The Heart of the Home: A Bright, Open Layout
Step inside, and you’re instantly greeted by the open-concept layout that every modern family dreams of. The family room, dining area, and kitchen flow together like they were made for each other — because they were.
The family room features a cozy fireplace that sets the tone for everything from lazy Sundays to festive holiday gatherings.
Thanks to the walls of glass, natural light pours in from every direction, creating a bright and inviting atmosphere. It’s not just beautiful — it’s functional.
And when you’re chatting with your lender about mortgage rates, you’ll love knowing that this floor plan offers real long-term value, both in comfort and resale potential.
A Kitchen That Redefines Everyday Living
If you’ve ever wanted a kitchen that feels like the center of your world, this one will do it. The sink in the island faces forward toward the family room fireplace, so you can be part of the action while you cook.

Whether you’re preparing dinner, supervising homework, or hosting friends, this space keeps everyone connected.
You’ll also find a walk-in food pantry (a must for anyone who buys in bulk) and a butler’s pantry — because one pantry just isn’t enough when you love entertaining.
The butler’s pantry adds extra prep space and keeps clutter hidden, giving your kitchen that clean, magazine-worthy look all the time.
Planning upgrades? A home improvement loan could turn this already stunning kitchen into your own personal chef’s paradise — with the latest smart home technology, of course.
Dining in Style: The Perfect Gathering Space
Just off the kitchen, the generous dining area is perfect for every occasion, from casual breakfasts to elegant dinner parties.
And when the meal’s over, the large sliding doors open to an outdoor living area that’s partially screened, so you can enjoy fresh air without any uninvited flying guests.
This space flows seamlessly from indoors to outdoors, making it easy to host everything from barbecues to birthday parties.
It’s also a wonderful boost for your property value — outdoor living areas are one of the most sought-after features in modern homes today.
If you’re ever talking with a home remodeling contractor down the line, this setup gives you endless possibilities for future upgrades — like an outdoor kitchen or fireplace — while keeping costs predictable thanks to smart planning and the help of a building cost estimator.

A Master Suite That Feels Like a Retreat
The main-floor master suite is everything you’ve ever dreamed of — and then some.
The tray ceiling adds elegance and depth, while a private door opens directly to the back porch. Morning coffee with a sunrise view? Yes, please.
The ensuite bathroom is designed for true relaxation, complete with a soaking tub, walk-in shower, and dual vanities. It feels like a private spa — the perfect place to unwind after a long day.
Of course, there’s also a large walk-in closet, big enough to make you consider expanding your wardrobe (don’t worry, I won’t tell).
This main-floor master setup isn’t just about comfort — it’s a practical move for long-term living, too. If you ever decide to refinance your mortgage, lenders love to see designs that balance beauty and functionality.
And when it comes to home insurance and home warranty coverage, having a well-built master suite on the ground floor is both safe and smart.
A Home Office That Actually Works
In today’s world, having a dedicated workspace at home is almost essential. This house plan includes a private study just off the main living area — perfect for remote work, homework sessions, or running your business from home.
You can easily personalize the space using interior design software to experiment with layouts, colors, and décor before you ever buy a single piece of furniture.
And since this plan includes both a main-floor office and a playroom upstairs, the entire family gets their own productive spaces without stepping on each other’s toes.

Plus, if you’re ever exploring your home equity loan options, a dedicated office adds functionality and boosts your property value — it’s a win-win.
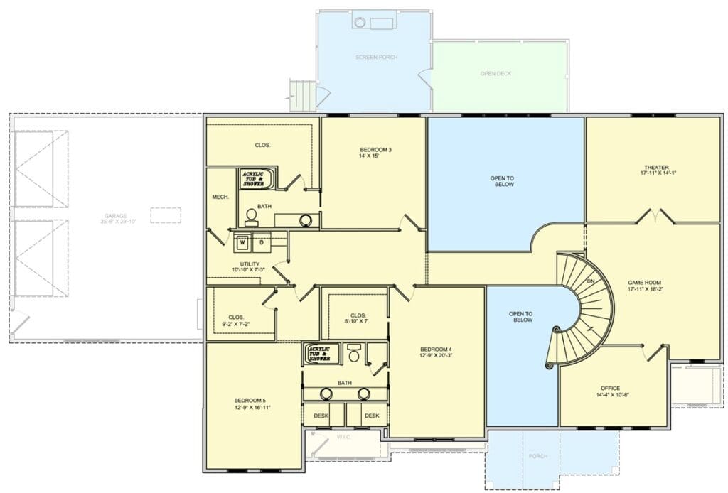
Family Fun Upstairs: Playroom, Theater, and More
The upstairs level is practically a dream come true for families. A spacious playroom sits just off the kitchen area, so the little ones can stay close (but not too close) while you cook or entertain.
There’s also a home theater and a game room, offering fun options for kids and adults alike.
A second laundry room upstairs adds convenience — no more hauling baskets up and down stairs — and each bedroom includes its own walk-in closet, giving everyone their own organized space.
If you’re thinking ahead to energy savings, this is the perfect opportunity to integrate smart home technology that controls lighting, temperature, and even security systems from your phone.
It’s comfort and convenience wrapped into one, not to mention a great talking point with your real estate agent when it’s time to sell.
Outdoor Living That Stands Out
Now, let’s step outside — because this house knows how to impress beyond its four walls. The partially screened outdoor living area connects directly to the main living space, creating the ultimate spot for relaxation or entertaining.
There’s also a barbecue porch, ideal for weekend cookouts or casual family dinners under the stars.
If you’re big on security and peace of mind, this setup makes it easy to install the best home security system, complete with motion detectors and cameras that blend seamlessly into the design. It’s a modern farmhouse, after all — safety should be as stylish as everything else.

This connection between indoor comfort and outdoor living isn’t just about lifestyle; it’s also about investment. Thoughtful design like this keeps your property value high while offering endless enjoyment every day.
Exploring Every Corner of the Modern Farmhouse Dream
If the first half of this modern farmhouse took your breath away, buckle up — the rest of it might just steal your heart.
Between the outdoor living spaces, the entertainment zones, and all the little design details that make daily life easier, this house plan feels like it was designed by someone who really understands how people live.
Let’s dive into the second half of this incredible 5-bedroom home and see what makes it such a standout.
Spacious Bedrooms for Everyone
The beauty of this floor plan lies in its balance — everyone gets their own space, yet the home still feels wonderfully connected.
Each of the five bedrooms comes with its own walk-in closet (no more fighting over storage space), and large windows let in plenty of natural light.
Upstairs, the secondary bedrooms surround a cozy playroom, the perfect spot for kids to hang out, do homework, or build forts that take over the whole room.
The thoughtful layout keeps the master suite tucked away on the main floor, ensuring privacy while keeping the family close.
If you’re already imagining where the furniture will go, this is where interior design software comes in handy — you can test your layout ideas before moving a single chair.

And when it’s time to consider long-term value, the smart distribution of bedrooms gives your home a strong edge in the real estate market.
A Bonus Room That Fits Your Lifestyle
One of the most exciting features of this modern farmhouse plan is the optional bonus room. It’s that flexible space every homeowner dreams of — waiting to become whatever you need it to be.
Maybe it’s a craft room, a home gym, or a private guest suite. Maybe it’s your long-awaited quiet reading corner.
Because it’s optional, you can finish it now or later, depending on your budget and investment goals.
With a building cost estimator, you can plan your expenses smartly, and if you ever want to finance the upgrade, a home improvement loan or home equity loan can help make that dream space a reality.
This flexibility not only enhances your everyday living but also adds long-term property value.
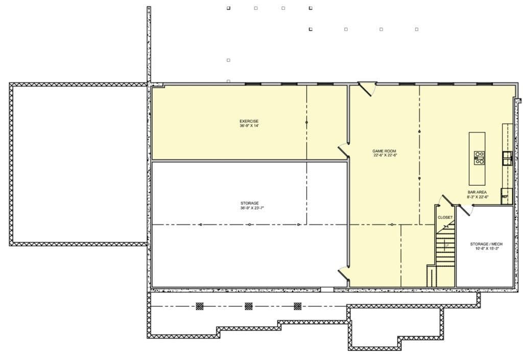
A Basement Made for Entertaining
If you thought the main floor was impressive, wait until you see the basement. Designed with entertaining in mind, it features a spacious game room and a full kitchenette — the ultimate setup for parties, movie nights, or weekend gatherings.
This area could easily become a second living space or even an in-law suite if needed. The open design gives you the freedom to get creative, especially if you work with a trusted home remodeling contractor to customize it.
The combination of leisure and functionality here makes this modern farmhouse stand out as both a family home and a smart investment.

And when you consider home insurance or resale, having a finished lower level with a kitchenette adds undeniable appeal. It’s comfort, convenience, and entertainment — all in one place.
Outdoor Living That Extends the Home
Outdoor living isn’t an afterthought here — it’s an essential part of the design. The partially screened porch provides the perfect spot to relax while keeping bugs at bay, and the dedicated barbecue porch is built for good times with great food.
Thanks to the walls of glass that open to these spaces, the indoors and outdoors blend seamlessly. Imagine hosting a family cookout while still being able to see everyone inside.
Or picture quiet evenings by the firepit, surrounded by the soft glow of porch lights and the sound of crickets.
It’s moments like these that make a house feel like home — and if you ever decide to buy or sell, features like this dramatically increase property value.
Add a touch of smart home technology outdoors, such as motion lighting or security cameras, and you’ve got both charm and peace of mind — the perfect combination.
A Kitchen That Brings Everyone Together
While we’ve already raved about the kitchen’s open design, it deserves another moment in the spotlight. This is the heart of the home — stylish, functional, and built for connection.
The island sink faces the family room, so conversations can keep flowing while dinner’s cooking. The dual pantries — one walk-in and one butler’s — make storage and entertaining a breeze.

With the family room fireplace in view, the kitchen feels cozy yet elegant, ideal for everything from family dinners to holiday feasts.
And when it comes to maintaining its pristine look, this setup makes cleaning easier — something every homeowner appreciates.
Should you ever look into refinancing your mortgage, this kind of thoughtful layout is one of those subtle features that appraisers and real estate agents love to see.
It’s the definition of timeless design — beautiful, functional, and built to last.
Everyday Efficiency in Every Detail
This modern farmhouse doesn’t just look good — it works hard. The mudroom comes equipped with built-in lockers, perfect for keeping shoes, coats, and bags neatly tucked away.
The main-floor laundry connects conveniently to this area, making it easy to toss in muddy clothes before they ever reach the living spaces.
Upstairs, there’s even a second laundry room, saving countless trips up and down the stairs. It’s these little details that make such a big difference in everyday life.
And when it comes to protecting your home’s systems and appliances, a solid home warranty ensures long-term peace of mind.

With well-planned spaces like these, this home is designed to simplify your routines while maintaining elegance and order.
Smart Features for Modern Living
A modern farmhouse deserves modern tech, and this plan is ready for it. From lighting and temperature control to the best home security system, this home integrates smart home technology seamlessly.
You can set the mood for dinner, lock the doors, and adjust the thermostat — all from your phone.
It’s a lifestyle upgrade that adds convenience while helping reduce energy costs — something every homeowner can appreciate, especially when managing mortgage rates or planning long-term finances.
Plus, smart technology enhances safety, which is always a bonus for families and future resale value.
The Master Suite: A Peaceful Main-Floor Haven
Back on the main floor, the master suite remains one of the crown jewels of this home.
The tray ceiling gives the room a touch of grandeur, while the private access to the back porch offers a quiet retreat for mornings or evenings. The spacious walk-in closet and luxurious five-fixture bath complete the picture of relaxation.
It’s easy to imagine winding down here at the end of the day — a moment of calm in a space that feels both personal and elegant. It’s details like these that make this plan more than just a place to live; it’s a long-term investment in comfort and quality of life.

What truly makes this 5-bedroom modern farmhouse special is its balance. It’s beautiful, yes — but it’s also practical, efficient, and designed for how people actually live today.
With its open layout, thoughtful storage, flexible bonus spaces, and expansive outdoor living areas, this plan proves that elegance and everyday ease can coexist perfectly.
Whether you’re looking to purchase your dream home, explore home loan pre-approval, or simply enhance your current living situation, this house plan offers inspiration and long-term confidence.
This modern farmhouse isn’t just a design — it’s a lifestyle blueprint, crafted to bring families together while offering every comfort imaginable.
With smart planning, strong property value, and a touch of charm in every corner, it’s the perfect place to put down roots, make memories, and truly feel at home.
Building or buying a home isn’t just about picking the perfect house plan—it’s also about making smart long-term choices. From comparing mortgage rates to finding a trustworthy real estate agent, every decision adds value. Don’t forget to explore options like home insurance, home warranties, and potential refinance opportunities to protect your investment.
Want to boost your property value? Consider installing solar panels, upgrading to energy-efficient appliances, or integrating a smart home system. Plus, tools like interior design software can help you visualize and plan your dream space before the first brick is even laid.
Find More House Plans
By Bedrooms:
1 Bedroom • 2 Bedrooms • 3 Bedrooms • 4 Bedrooms • 5 Bedrooms • 6 Bedrooms • 7 Bedrooms • 8 Bedrooms • 9 Bedrooms • 10 Bedrooms
By Levels:
By Total Size:
Under 1,000 SF • 1,000 to 1,500 SF • 1,500 to 2,000 SF • 2,000 to 2,500 SF • 2,500 to 3,000 SF • 3,000 to 3,500 SF • 3,500 to 4,000 SF • 4,000 to 5,000 SF • 5,000 to 10,000 SF • 10,000 to 15,000 SF










