Dual-Story 9-Bedroom Modern House with Attached Apartment (Floor Plan)

Specifications:
- 11,273 Sq Ft
- 9 Beds
- 8.5+ Baths
- 2 Stories
- 4 Cars
If you’ve ever dreamed about living in a house so spacious you’d need a map to find your kids, then this luxurious two-story modern house plan is calling your name.
With a jaw-dropping 11,273 square feet, nine bedrooms, 8.5+ baths, an attached apartment, and a four-car garage, it’s more than a home—it’s an investment in comfort, privacy, and future property value.
Before you worry about mortgage rates or whether your credit score is ready, let’s wander through this dream plan room by room, so you see why this purchase might be the smartest move you’ll ever make.



Grand First Impressions
You can’t underestimate the power of a welcoming front porch, especially when it stretches out over 485 square feet.
Imagine seasonal wreaths, cozy rocking chairs, and smart home technology at the door—letting you check deliveries and visitors from your phone.
Not only does this spacious porch boost curb appeal, but it’s also the first hint at how well this floor plan balances modern style with practical living.
A good real estate agent will confirm: features like this porch quietly raise your home’s property value and make the investment worth every penny.
Wide-Open Main Floor
Step through the front door and you’re greeted by 5,834 square feet of main-floor living space, with ceilings that stretch to 10 feet high.
No more cramped living rooms—here, you’ll find light-filled spaces perfect for entertaining, lounging, or simply enjoying a little peace and quiet.
This floor is your canvas: think modern kitchen, formal dining, huge family room—designed easily with interior design software before you ever break ground.
If you ever want to switch things up later, a trusted home remodeling contractor and a building cost estimator will make sure your ideas stay on budget.
Plus, when you invest in upgrades using home improvement loans or even refinance your mortgage when rates drop, you’ll know every square foot pays you back in style and value.
Private Upper Level
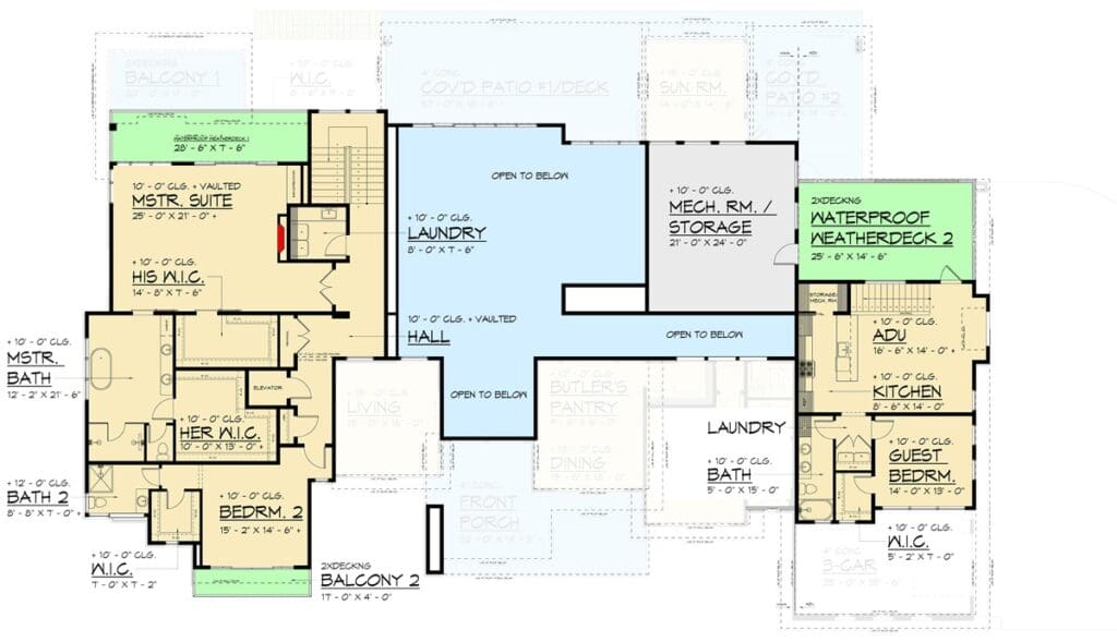
Upstairs, 2,594 square feet of living space bring your total bedroom count to nine.
Each bedroom can be styled as you please—think walk-in closets, smart home lighting, maybe even a reading nook with big windows.
And with 10-foot ceilings, this second floor never feels stuffy.
If you’re planning for family, guests, or even future resale, having this much dedicated private space means your property stays appealing.
Should you decide to refinance mortgage in the future to pull out equity, this second-floor space is a big reason your home’s value keeps climbing.
Flexible Lower Level
The lower level covers 2,588 square feet, ready to be turned into whatever your family needs: home theater, fitness studio, playroom, or a workshop for your next big DIY adventure.
With ceilings soaring to 12 feet, it’s anything but a dark basement.

Finishing this level later with help from a home equity loan can be a strategic move that protects your credit score while boosting resale value.
You can even use smart home technology here for climate control or security—no dark corners, just bright, functional bonus living space.
The Showstopper
Nine bedrooms mean everyone gets their own room—and then some.
With 8 full baths and 2 half baths, there’s no fighting for the shower in the morning.
Hosting out-of-town guests?
Easy.
Growing family?
Covered.
Visiting in-laws?
They’ll be so comfortable you might need your real estate agent to find them their own place next door eventually.
Each bedroom and bath is part of the plan’s smart design that makes your mortgage feel worth every cent.
And with a reliable home warranty plus solid home insurance, you can relax knowing your investment is protected against surprise costs.
The Attached Apartment
One of this plan’s best features is its 844-square-foot attached apartment.
Maybe it’s for an aging parent who wants privacy but needs to be close.
Maybe it’s for your college grad who needs time to save for a place.
Or maybe you rent it out—turning part of your dream home into a cash flow stream that helps cover your mortgage payments.
A good real estate agent will tell you: attached apartments are a huge draw for future buyers.
Just remember, the best home security system will help you keep this area secure and separate, whether you’re hosting family or tenants.
The Dream Garage
Let’s talk about the 1,298-square-foot attached garage.
Four cars fit comfortably here—plus space for bikes, tools, maybe even a riding mower if you have a big yard.

A side entry keeps the front of your home looking clean and modern, which pairs perfectly with the sleek lines of the rest of this plan.
Keeping your vehicles sheltered can lower your home insurance risk and save you from costly repairs due to weather damage.
Outdoor Living
This plan’s 584-square-foot deck invites you to blend indoor and outdoor living.
Host family BBQs, relax under the stars, or watch the kids play while you enjoy your coffee.
Outdoor spaces like this keep your living areas feeling fresh and flexible—something buyers love if you ever sell.
If you ever upgrade your deck, a home improvement loan or refinance mortgage can help fund it without draining your savings.
Big Dimensions, Beautiful Height
At 130 feet wide and 83 feet deep, with a maximum ridge height of 35 feet, this plan delivers curb appeal that sets your home apart.
The modern silhouette makes a statement while giving you a strong, timeless design that holds its value for years.
Pair this bold footprint with smart home technology for easy living, and your home stays functional and futuristic.
Smart Protection for Your Big Investment
A house this size is more than just a place to live—it’s a long-term commitment.
Keep your credit score healthy, work with your lender for home loan pre-approval, and keep an eye on mortgage rates to refinance mortgage if rates drop.
Secure a comprehensive home insurance policy and a dependable home warranty so unexpected repairs don’t catch you off guard.
And when you’re ready to add upgrades, a building cost estimator keeps your plans realistic.
When you buy a house plan like this, you’re not just purchasing square footage—you’re buying peace of mind, flexibility, and a strong investment in your family’s future.
From the spacious porch to the roomy garage, every detail adds comfort and resale power.

So talk to your real estate agent, run your numbers through a building cost estimator, and line up your mortgage pre-approval.
When you’re ready to buy or refinance, you’ll be investing not just in bricks and beams, but in a home that grows with you.
Ready to step inside?
This modern masterpiece is waiting for you—and so is the life you’ll build in every one of those 11,273 square feet.
Building or buying a home isn’t just about picking the perfect house plan—it’s also about making smart long-term choices. From comparing mortgage rates to finding a trustworthy real estate agent, every decision adds value. Don’t forget to explore options like home insurance, home warranties, and potential refinance opportunities to protect your investment.
Want to boost your property value? Consider installing solar panels, upgrading to energy-efficient appliances, or integrating a smart home system. Plus, tools like interior design software can help you visualize and plan your dream space before the first brick is even laid.
Find More House Plans
By Bedrooms:
1 Bedroom • 2 Bedrooms • 3 Bedrooms • 4 Bedrooms • 5 Bedrooms • 6 Bedrooms • 7 Bedrooms • 8 Bedrooms • 9 Bedrooms • 10 Bedrooms
By Levels:
By Total Size:
Under 1,000 SF • 1,000 to 1,500 SF • 1,500 to 2,000 SF • 2,000 to 2,500 SF • 2,500 to 3,000 SF • 3,000 to 3,500 SF • 3,500 to 4,000 SF • 4,000 to 5,000 SF • 5,000 to 10,000 SF • 10,000 to 15,000 SF










