Dual-Story 6-Bedroom Contemporary Home with Home Office and Recording Studio (Floor Plan)

Specifications:
- 6,790 Sq Ft
- 6 Beds
- 6.5 Baths
- 2 Stories
- 3 Cars
Let’s talk about the house.
Not just any house—this house.
6,790 square feet of glorious contemporary living, where the ceilings are high, the rooms are many, and the vibes?
Immaculate.
With 6 bedrooms, 6.5 baths, a three-car garage, and enough bonus spaces to keep everyone in the family busy (and out of your hair), this home is more than just a purchase.



It’s a lifestyle upgrade.
A personal paradise.
A wise investment.
And, let’s be honest, a humble brag waiting to happen.
Whether you’re a budding musician, a work-from-home warrior, or someone who simply enjoys living in magazine-worthy spaces—this home is calling.
And it’s using the best smart home technology to do it.
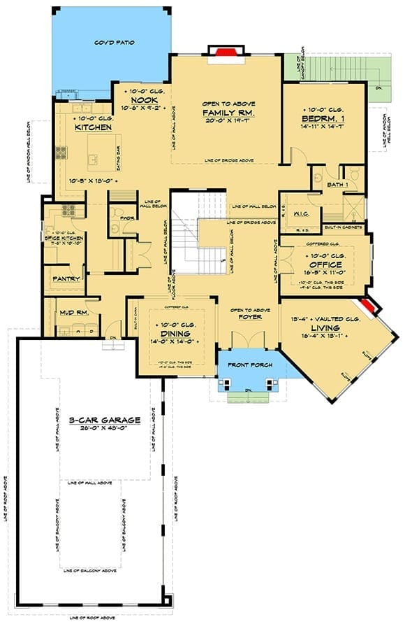
First Impressions? Nailed It.
The first thing you’ll notice when you walk through the front door is the natural light—so much light.
The formal living and dining rooms wrap around the foyer like a warm, sun-drenched hug, perfect for hosting guests or just dramatically sipping your coffee as if you’re in a commercial.
These front-facing rooms practically scream, “I’m classy but approachable,” which coincidentally is also how I describe my credit score these days.
And with today’s fluctuating mortgage rates, locking in a beautiful home like this one early could mean saving a pretty penny (or several thousand).
Office Space That Means Business
Now, let’s talk home office.
Tucked just off the foyer, this dedicated space is ideal for anyone who’s learned the hard way that working from your kitchen table leads to lower productivity and far too many snack breaks.
With enough space for dual monitors, a standing desk, and that fancy chair you’ve been eyeing on Pinterest, this office is a remote worker’s dream.
Plus, it adds instant value to the home—and could help with that sweet, sweet home loan pre-approval if you’re buying with work-from-home income.
Guests Welcome (But Only If They Behave)
Also on the main floor: a bedroom suite that’s so cozy and self-contained, your guests might never leave.
But hey, that’s why we invented home insurance, right?
Whether it’s your in-laws, a friend visiting for a weekend (or an indefinite “sabbatical”), or even a live-in nanny, this room offers privacy, comfort, and proximity to the kitchen.
It’s also great for aging relatives, since it saves them from navigating stairs while still giving them their own retreat.
The Kitchen Quadruple Threat
You know what they say: the kitchen is the heart of the home.
And this house has a heart so big, it comes with a spice kitchen, a massive walk-in pantry, and a layout that’ll make your food delivery guy weep tears of joy.
Need to drop groceries off straight from the garage?

Done.
Want to hide your cooking experiments away from your guests?
That’s what the spice kitchen is for.
Planning to remodel the space down the line?
Just run it through your interior design software and customize every cabinet handle.
And yes, this layout is a dream for foodies, entertainers, and those of us who think “meal prep” is code for ordering takeout and transferring it to nicer containers.
Indoor-Outdoor Flow? More Like Indoor-Outdoor Glow
The rear of the home opens up into a large covered patio and backyard, effortlessly blending the indoors with the outdoors.
Whether you’re chasing toddlers, barbecuing with friends, or simply laying back and pretending your neighbors don’t exist, this setup has you covered—literally.
Plus, with the best home security system installed, you can enjoy the yard with peace of mind.
Who says luxury and safety can’t hold hands?
Upstairs Magic
Let’s head upstairs, where the bridge-style hallway connects four of the home’s six bedrooms.
And in the corner?
The crown jewel: your master suite.
This room is so luxurious, you might just start referring to it as “the presidential quarters.”
We’re talking a private balcony (sunrise coffee or sunset wine, your call), a spa-like 5-fixture bathroom (bring on the bubble baths), and a walk-in closet that could double as a guest room in some cities.
It’s that big.
And yes, you’ll also find another laundry room upstairs.
Because dragging hampers up and down stairs is a young person’s game—and you, my friend, live in a home where convenience reigns supreme.
Bonus Room = Big Potential
The upstairs bonus room is ready to be whatever you need it to be: a playroom, a yoga space, a movie marathon zone, or just a glorified nap chamber.
That’s the beauty of this floorplan—it’s flexible.
Like a home that does yoga.
And when you’re thinking long-term?
This kind of multi-use space is perfect for increasing your home’s property value—and getting the attention of future buyers or appraisers if you decide to refinance your mortgage later.

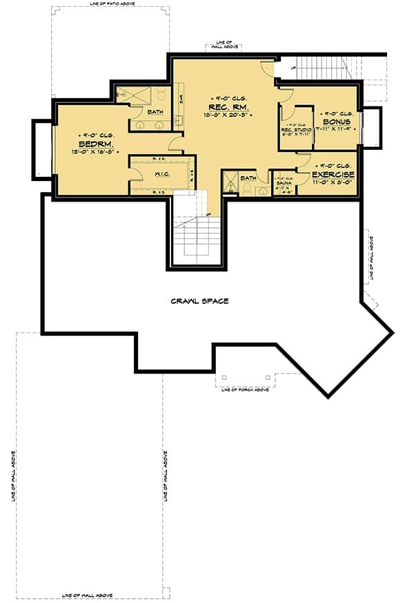
The Basement Level
Now let’s head downstairs to where the magic really happens.
Down here, you’ll find bedroom six (teenagers, guests, or independent souls will thank you), a recreation room, an exercise area, and a bonus room that might just be the coolest part of the house: a recording studio.
Yes, a recording studio.
If you’ve ever dreamed of starting a podcast, dropping an album, or just yelling into a microphone without judgment—this is your chance.
And with home improvement loans or a little creativity, you can outfit the space with soundproofing, equipment, and even mood lighting.
Creativity has found its headquarters.
And it’s in your basement.
Protecting the Dream
Let’s not forget the practical side.
A home like this is an investment—one that deserves protection.
Between smart upgrades and top-notch finishes, it makes sense to line up a solid home warranty, reliable home insurance, and keep your eyes on mortgage rates that could shift faster than your teenager’s taste in music.
Using a building cost estimator before renovations and staying on top of maintenance will ensure your dream home stays dreamy.
And hey, if your credit score is in good shape, refinancing later or applying for a home equity loan to upgrade that recording studio could be a breeze.
In a word?
Yes.
But let me elaborate.
This house is not just about square footage or the number of bathrooms (though let’s admit, 6.5 is impressive).
It’s about the life you get to build inside it.
The dinners, the birthdays, the lazy Sundays, and the random Tuesday nights when you’re sitting on the balcony, listening to crickets and wondering how you ever lived anywhere else.
It’s a place for growing families, thriving creatives, and ambitious professionals.
It’s a place to live, not just reside.
So whether you’re applying for a home loan pre-approval, exploring options with your real estate agent, or researching how a refinance mortgage can make this upgrade possible—this home is absolutely worth the effort.
In short: go ahead.

Buy the house.
Build the studio.
Chase the dream.
And don’t forget to invite me to the housewarming party—I’ll bring wine and playlists.
Building or buying a home isn’t just about picking the perfect house plan—it’s also about making smart long-term choices. From comparing mortgage rates to finding a trustworthy real estate agent, every decision adds value. Don’t forget to explore options like home insurance, home warranties, and potential refinance opportunities to protect your investment.
Want to boost your property value? Consider installing solar panels, upgrading to energy-efficient appliances, or integrating a smart home system. Plus, tools like interior design software can help you visualize and plan your dream space before the first brick is even laid.
Find More House Plans
By Bedrooms:
1 Bedroom • 2 Bedrooms • 3 Bedrooms • 4 Bedrooms • 5 Bedrooms • 6 Bedrooms • 7 Bedrooms • 8 Bedrooms • 9 Bedrooms • 10 Bedrooms
By Levels:
By Total Size:
Under 1,000 SF • 1,000 to 1,500 SF • 1,500 to 2,000 SF • 2,000 to 2,500 SF • 2,500 to 3,000 SF • 3,000 to 3,500 SF • 3,500 to 4,000 SF • 4,000 to 5,000 SF • 5,000 to 10,000 SF • 10,000 to 15,000 SF










