Dual-Story 5-Bedroom Modern Farmhouse with Optional Lower Level (Floor Plan)

Specifications:
- 5,386 Sq Ft
- 5 Beds
- 4.5 – 5.5 Baths
- 2 Stories
- 5 Cars
I’ll be honest—when I first saw this modern farmhouse plan, my jaw may have dropped a little.
At just under 5,400 square feet, this home feels like the kind of place where comfort, charm, and functionality hold hands and never let go.
It’s the perfect blend of rustic personality and sleek modern features, with a layout that makes everyday living feel like a well-planned investment.
From the sprawling 5-car garage to the open-concept design and optional lower-level expansion, this plan checks every box—and even a few you didn’t know you needed.



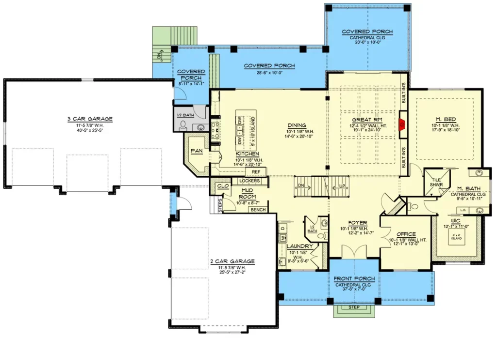
A Grand Entrance to Modern Farmhouse Living
The moment you walk through the front door, you’re greeted by space that breathes.
The two-story layout opens up instantly with high ceilings and a sweeping view of the great room and dining area beyond.
The open-concept flow is like an invitation to stretch your arms, exhale, and imagine hosting your next big gathering without bumping elbows with anyone.
As someone who loves a good floor plan (and occasionally calculates building costs just for fun using a building cost estimator), I have to say—this one is impressive.
Every square foot has been thoughtfully designed for both practicality and style.
Whether you’re buying your first dream home or planning a smart property investment, this modern farmhouse manages to feel both welcoming and grand.

Open-Concept Living at Its Best
The great room, kitchen, and dining area come together in one wide, open space.
It’s airy, bright, and feels like the true heartbeat of the home.
Picture yourself prepping dinner while chatting with family gathered around the oversized island, or sipping coffee on a lazy Sunday morning with sunlight flooding through tall windows.
The covered porch just outside extends your living space, perfect for those evenings when you’d rather watch the sunset than the news.
Whether you’re entertaining guests or enjoying quiet family time, this area easily adapts to your lifestyle.
And if you’re like me and already imagining upgrading the porch with a smart home technology setup—say, automated lighting and a wireless sound system—you’re thinking in the right direction.

Comfort Meets Class
Now let’s talk about the master suite—because this one deserves its own spotlight.
Located on the main floor, it’s both private and indulgent.
The spacious bedroom opens into a spa-like bathroom with a luxurious five-fixture setup.
There’s even a dresser island right in the walk-in closet (yes, an island for your clothes—how’s that for convenience?).
Sharing the right side of the home with a cozy office, the master suite creates a peaceful retreat away from the household hustle.
If you’ve ever considered a home loan pre-approval or checked mortgage rates in anticipation of finally owning your dream home, this is exactly the kind of suite that makes the whole process worth it.

Add in a good home warranty and home insurance, and you’ve got the peace of mind to match the comfort.
The Perfect Office Space for Work—or Sanity
Let’s be real—having a home office has become less of a luxury and more of a necessity.
The plan’s main-floor office is ideally situated for quiet focus.
It’s perfect whether you’re working from home, managing household finances, or researching your next refinance mortgage opportunity to lower monthly payments.
It’s a space that can easily flex too.
Need a craft room?
A reading nook?
Or maybe a spot to dream up your next home improvement project using interior design software?

This office gives you options, and that’s something I truly love about this plan—it adapts to real life.
Family Living Done Right
The second floor is practically a family haven.
Four bedrooms are thoughtfully arranged throughout, each with access to a full bath.
There’s a sense of personal space, but also connection—a layout that gives everyone their privacy but still keeps the family close.
And tucked between these bedrooms is one of my favorite features: a study or homework station.
Whether it’s kids catching up on assignments or adults handling bills and emails, this quiet corner feels like the perfect balance between work and comfort.
The sizable family room upstairs is another win.

It’s big enough for movie nights, game tournaments, or even just stretching out and relaxing.
With dedicated storage built in, there’s room for everything from board games to blankets.
I can already picture installing the best home security system in this house and never worrying about a thing while I unwind upstairs.
A Bonus Worth Every Square Foot
If you’re the kind of person who loves to entertain or needs space for extended family, the optional lower level is a dream come true.
When finished, it adds a whopping 2,764 square feet of living space.
And we’re not talking about a dark basement here—this level includes a full kitchen, a family room with a walk-out patio, a guest suite, and even a home theatre.

It’s basically its own apartment—or better yet, a private getaway for guests.
Imagine the property value boost that comes with such a setup.
You could even explore a home equity loan someday to fund finishing this space, knowing it’s a solid investment in both comfort and resale appeal.
And for anyone planning ahead, hiring a good home remodeling contractor can help customize this area exactly to your taste—whether that’s a full entertainment suite, a gym, or a serene guest retreat.
A Five-Car Dream
Let’s not forget the showstopper: the 5-car garage.
Yes, five.
Whether you’re a car enthusiast, a hobbyist, or just need room for bikes, tools, and storage bins that multiply on their own, this garage delivers.

It’s attached to the home for convenience, and honestly, it makes me want to finally buy that vintage truck I’ve been eyeing.
This kind of garage also has serious appeal when you’re considering long-term property value.
If you ever choose to sell or purchase another home, you’ll quickly realize how rare and desirable this kind of setup is.
Even your real estate agent will tell you—it’s a major selling point that adds practical luxury to everyday living.
Style That Stays Timeless
The charm of this modern farmhouse plan goes beyond its layout.
The architectural style balances clean lines with cozy farmhouse touches—think board-and-batten siding, large windows, and an inviting front porch that practically begs for rocking chairs.

It’s timeless without being old-fashioned, and the neutral color palette opens up endless possibilities for customization.
Pair it with a few smart home technology features, energy-efficient systems, and modern finishes, and you’ve got a home that’s not just beautiful—it’s future-ready.
This is the kind of place that makes you proud every time you pull into the driveway.
When I look at this plan, I see more than just a house.
I see a lifestyle—one where convenience, comfort, and beauty meet under one roof.
From the open-concept living areas to the private master suite, from the family-friendly second floor to the entertainment-ready lower level, every corner of this home adds value and personality.

And let’s face it: in a world of fluctuating mortgage rates and growing home improvement trends, finding a home that offers this much flexibility and space is a rare treat.
Whether you’re looking to buy, refinance, or simply invest in your future, this modern farmhouse makes the decision easy.
Owning a home like this isn’t just about square footage—it’s about creating a place that feels like yours.
A place where every room tells a story, every upgrade feels like an achievement, and every moment spent inside reminds you why you made the best purchase of your life.
Building or buying a home isn’t just about picking the perfect house plan—it’s also about making smart long-term choices. From comparing mortgage rates to finding a trustworthy real estate agent, every decision adds value. Don’t forget to explore options like home insurance, home warranties, and potential refinance opportunities to protect your investment.
Want to boost your property value? Consider installing solar panels, upgrading to energy-efficient appliances, or integrating a smart home system. Plus, tools like interior design software can help you visualize and plan your dream space before the first brick is even laid.
Find More House Plans
By Bedrooms:
1 Bedroom • 2 Bedrooms • 3 Bedrooms • 4 Bedrooms • 5 Bedrooms • 6 Bedrooms • 7 Bedrooms • 8 Bedrooms • 9 Bedrooms • 10 Bedrooms
By Levels:
By Total Size:
Under 1,000 SF • 1,000 to 1,500 SF • 1,500 to 2,000 SF • 2,000 to 2,500 SF • 2,500 to 3,000 SF • 3,000 to 3,500 SF • 3,500 to 4,000 SF • 4,000 to 5,000 SF • 5,000 to 10,000 SF • 10,000 to 15,000 SF










