Charming 3-Bedroom Modern Farmhouse with Spacious Covered Patio (Floor Plan)

Specifications:
- 2,124 sq. ft.
- 3 Beds
- 3 Baths
- 1 Stories
- 2 Cars
I’ll be honest—I’ve toured a lot of homes in my time, but the moment I stepped into this modern farmhouse house plan, I felt like I’d stumbled into the Pinterest board of my dreams.
There’s something magical about a space that balances practicality with flair, especially when you’re thinking about buying a home that’ll suit both today and tomorrow.
With its open layout, walls of glass, and clever use of every square foot, this house isn’t just a place to live—it’s an experience.
And yes, before you ask, I did check the mortgage rates, and this gem could absolutely be within reach if you line things up with a smart home loan pre-approval.


Open Layout That Feels Endless
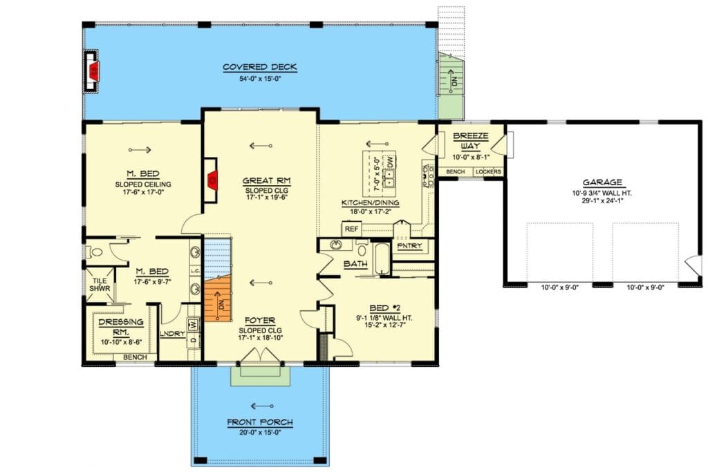
First off, let’s talk about that open layout. The moment you walk into the sloped-ceiling foyer, your eyes naturally wander into the great room, dining area, and spacious kitchen, all under lofty vaulted ceilings.
It’s the kind of design that makes you want to host Thanksgiving for twenty even if your extended family is only… five people.
The kitchen island isn’t just for show—positioned perfectly so the sink faces outward, you can prep meals while keeping an eye on the kids—or the dog attempting a daring escape through the sliding glass doors.
And speaking of doors, the walls of glass bring in so much natural light that you might even consider canceling your interior design software subscription… almost.
It’s not just about sunlight; it’s about framing the views of your backyard, the porch, and maybe even your neighbor’s cat if it’s brave enough to wander over.
Culinary Convenience: Pantries and Butler’s Magic
I don’t know about you, but kitchens make or break a home for me. Here, the house really shines with its walk-in food pantry and butler’s pantry.
Imagine having a space where snacks, gadgets, and fine china all have their own little kingdom.
The butler’s pantry adds an elegant touch, perfect for entertaining guests without feeling like your messy prep area is on display.
And yes, for those considering home improvement loans or budgeting via a building cost estimator, this setup adds real value without breaking the bank.
It’s easy to imagine yourself whipping up dinner while the family gathers around the fireplace in the great room.
There’s a rhythm to this home that just makes life feel a little more luxurious without ever being fussy.
Bedrooms That Actually Feel Like Bedrooms
Now, let’s talk personal space. Every bedroom in this house plan comes with a walk-in closet.
Not just a “squeeze-in-your-coat-and-call-it-good” closet, but actual rooms that give you the freedom to organize, declutter, and maybe even hide a secret stash of snacks from the kids.

The master suite deserves its own standing ovation. It features a tray ceiling that adds elegance without screaming “look at me!” There’s also a direct door to the back porch, letting you sneak out for morning coffee while everyone else is still dreaming.
The private bath is fitted with a tiled shower that practically begs for a spa day at home, and a dressing room that makes selecting your outfit each day a minor joy rather than a chore.
And if you’re thinking ahead, this home has optional bonus space that can be finished when you’re ready.
That means whether you want a home office, a media room, or a yoga studio, the house can grow with you. It’s a smart investment in both your lifestyle and your property value.
Outdoor Living That Impresses Without Trying
If there’s one thing this home nails, it’s outdoor living. The covered deck stretches a generous 54 feet, providing room for everything from morning stretches to summer barbecues.
The barbecue porch itself is a game-changer, seamlessly connected to the great room and primary suite, so you can keep the party vibe flowing whether you’re inside or outside.
Trust me, this isn’t just for Instagram photos (though it will make those effortless). It’s about living—really living—under an open sky while still having all the conveniences of modern home technology at your fingertips.
You can integrate smart home systems to control lighting, music, or even security from your phone, giving you peace of mind while you entertain or relax.
Functional Design Meets Family-Friendly Spaces
Split bedrooms are a thoughtful touch in this design. The main level primary suite feels private, while the second bedroom and full bath nearby are perfect for kids, guests, or an unexpected overnight visitor who forgot the city exists.
Meanwhile, the mudroom connecting to the front-entry two-car garage features built-in lockers and a bench—exactly where backpacks, shoes, and jackets can live without overtaking your foyer.
And speaking of garages, the side-load garage makes this house perfect for a corner lot. It’s a subtle design win that keeps curb appeal high while giving you practical access to parking and storage.
With 2,124 square feet of living space and a 750-square-foot garage, this home balances generous proportions with cozy functionality.

A Mountain Home Feel Without Leaving Town
The bold modern mountain style exterior—complete with a dramatic angled shed roof and extensive windows—gives the home a sense of adventure, even if your nearest peak is a hill with a Starbucks at the top.
Inside, the vaulted ceilings, open concept, and strategic lighting create a sense of grandeur that you usually only find in more expensive custom builds.
For potential buyers thinking in terms of investment, these design elements increase property value while creating a home that’s truly livable.
Plus, if you’re considering a home equity loan for renovations or a refinance mortgage to take advantage of changing rates, the home’s mix of style and practicality makes those financial moves feel justified.
Lower Level Amenities: The Fun Begins
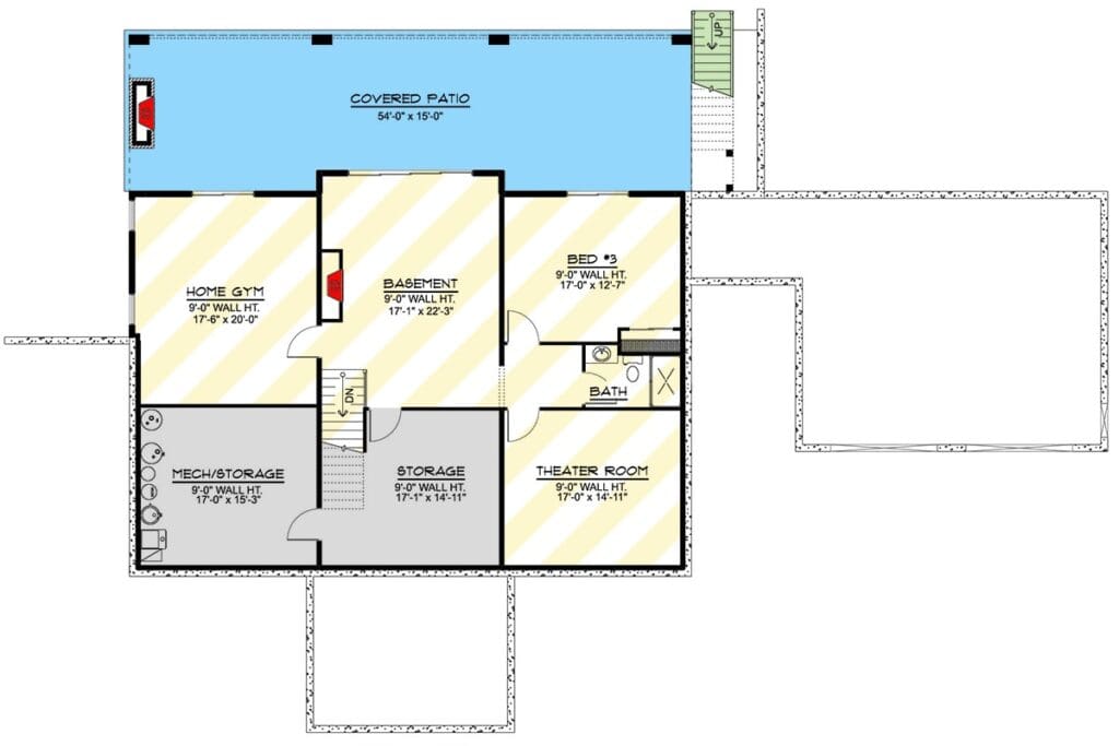
If you think the main floor is impressive, wait until you see the lower level. Bedroom three, another full bath, a theater room, a home gym, and a spacious rec room make this floor a lifestyle haven.
Need a home office or crafting area? Check. Want a game night paradise or exercise sanctuary? Double check.
There’s even a covered patio below for more outdoor living options. With all this space, you could truly live, work, and play without ever feeling cramped.
Ample storage and a dedicated mechanical room make life even easier. Between practical layouts and thoughtful amenities, it’s clear this home was designed with both day-to-day life and long-term enjoyment in mind.
Entertaining Made Easy: The Heart of the Home
One of my favorite things about this modern farmhouse house plan is how effortlessly it accommodates guests.
The great room, dining area, and kitchen flow so smoothly that you never feel like you’re running from one space to another.
Cooking while keeping an eye on your guests isn’t a chore—it’s actually enjoyable. That’s thanks in large part to the kitchen island setup where the sink faces the great room.
You can prep your famous lasagna, chat with friends, and even supervise a Fortnite showdown happening in the rec room downstairs.

And let’s be real: with a butler’s pantry and walk-in food pantry, entertaining becomes a stress-free affair.
You can stock up without worrying about clutter or limited counter space, which also helps maintain your home insurance at a reasonable rate because everything is organized, functional, and tidy—less chance for accidental spills or hazards.
A Home That Grows With You
The optional bonus space is a game-changer. Maybe today you need a quiet home office for remote work, tomorrow a creative studio, and next year a playroom or extra guest suite.
Homes that offer this kind of adaptability are excellent for long-term investment, especially when paired with a savvy real estate agent who can guide you in understanding how flexible space impacts property value.
Even if you’re considering home remodeling loans to finish the bonus area, the potential payoff is clear.
It’s also worth noting that every bedroom’s walk-in closet is more than just storage—it’s a lifestyle upgrade.
From neatly arranged shoes and clothes to seasonal gear, these closets reduce clutter and make morning routines smoother. It’s like giving your home a bit of zen without hiring a full-time organizer.
Outdoor Spaces That Inspire
Outdoor living is front and center in this home plan. The 54-foot-wide covered deck is ideal for barbecues, outdoor movie nights, or just sipping coffee as the sun rises over your backyard.
It’s connected to both the great room and the primary suite, making access seamless. Smart home technology can even let you control lighting and music for evening gatherings without ever leaving your chair.
If security is a priority, installing the best home security system is straightforward, and you can integrate it with other smart home features for complete peace of mind.
Outdoor spaces in this design aren’t just beautiful—they’re functional, safe, and adaptable to whatever lifestyle you imagine.
Mudroom Magic: Everyday Convenience
I can’t overstate the value of a well-designed mudroom. Here, it’s more than a landing spot for shoes and jackets.

With built-in lockers and a bench, this space keeps the front-entry garage organized and functional. Kids can stow backpacks, sports gear, and school projects without turning your main living areas into chaos zones.
For those thinking of building a family-friendly home with long-term investment in mind, a mudroom like this adds both convenience and value.
It’s practical, aesthetically pleasing, and makes day-to-day life feel just a bit easier.
Lower Level Living: Fun, Fitness, and Function
The lower level of this house plan is where lifestyle truly meets function. Bedroom three and a full bath provide privacy for guests or older children, while the theater room makes movie nights an event.
The home gym is perfect for staying active without ever stepping outside, and the spacious rec room can serve as a game zone, playroom, or hobby area.
The covered patio downstairs extends your outdoor living options even further. Imagine summer evenings with friends, a quiet morning yoga session, or weekend barbecues—all while maintaining easy access to your home’s interior.
Ample storage and a mechanical room ensure that all the behind-the-scenes necessities are handled efficiently, which is something every home remodeling contractor appreciates.
Modern Mountain Style Meets Practical Living
The exterior of this home is bold yet inviting. The dramatic angled shed roof and extensive windows give it a modern mountain vibe that’s hard to ignore.
It’s stylish without being intimidating, which is perfect whether you’re looking at it as a long-term home or a smart investment property.
The side-load garage enhances curb appeal while being practical for corner lots, allowing for a neat, organized entry and easy parking.
These thoughtful design touches mean that every part of the home works together—from aesthetics to function.

If you’re considering a home equity loan or refinancing your mortgage, homes with this level of thoughtful design are often more appealing to lenders and buyers alike.
Financial Savvy: Making the House Work for You
Let’s talk numbers, because we all know that a beautiful home isn’t just about looks—it’s about smart financial decisions.
Whether you’re looking into a home loan pre-approval, tracking mortgage rates, or planning for potential refinance mortgage options down the road, this house’s mix of features and efficient layout can make those decisions easier.
The property value is solid, thanks to its high-quality design, spacious layout, and flexible spaces. Pairing that with a reliable home warranty adds another layer of protection for your investment.
And if you ever decide to make updates, having access to home improvement loans or a trusted home remodeling contractor means your vision can grow alongside your lifestyle.
Smart and Secure Living
Technology is seamlessly woven into this house plan. Smart home technology can manage lighting, climate, and even security with ease.
Combined with the best home security system, you can feel confident that your family and belongings are safe.
And as a bonus, tech integration enhances convenience—turning everyday tasks into effortless routines.
Even details like interior design software become useful tools here. Visualizing furniture layouts, color schemes, and finishing touches is easy in a space that’s already thoughtfully designed.
It’s the kind of home where practical planning meets stylish execution.
Ultimately, what makes this house plan special is its flexibility. With two or three bedrooms, two or three bathrooms, and optional bonus space, you can mold it to your unique needs.

The side-load garage, open layout, and generous outdoor areas allow for personalization without compromising the home’s overall charm.
Buying or purchasing a home is a huge decision, and it helps to consider how every choice impacts your lifestyle and finances.
From mortgage rates to home equity loans, from property value to potential resale, this modern farmhouse plan offers both beauty and substance.
Whether it’s hosting a barbecue on the covered deck, enjoying a quiet morning in the master suite, or having a family movie night in the theater room, every part of this house is designed to enhance your life.
And that, at the end of the day, is what makes a house truly feel like home.
Building or buying a home isn’t just about picking the perfect house plan—it’s also about making smart long-term choices. From comparing mortgage rates to finding a trustworthy real estate agent, every decision adds value. Don’t forget to explore options like home insurance, home warranties, and potential refinance opportunities to protect your investment.
Want to boost your property value? Consider installing solar panels, upgrading to energy-efficient appliances, or integrating a smart home system. Plus, tools like interior design software can help you visualize and plan your dream space before the first brick is even laid.
Find More House Plans
By Bedrooms:
1 Bedroom • 2 Bedrooms • 3 Bedrooms • 4 Bedrooms • 5 Bedrooms • 6 Bedrooms • 7 Bedrooms • 8 Bedrooms • 9 Bedrooms • 10 Bedrooms
By Levels:
By Total Size:
Under 1,000 SF • 1,000 to 1,500 SF • 1,500 to 2,000 SF • 2,000 to 2,500 SF • 2,500 to 3,000 SF • 3,000 to 3,500 SF • 3,500 to 4,000 SF • 4,000 to 5,000 SF • 5,000 to 10,000 SF • 10,000 to 15,000 SF










