7-Bedroom 2-Story Mountain Home with Bonus and Lower Level Expansion (Floor Plan)

Specifications:
- 8,503 Sq Ft
- 5 – 7 Beds
- 5.5+ – 6.5+ Baths
- 2 Stories
- 5 Cars
Some homes whisper “welcome.”
This one shouts, “Why would you ever want to leave?”
With a jaw-dropping 8,503 square feet, five to seven bedrooms, five-and-a-half baths (or more), and a sprawling design that includes a five-car garage, this luxury mountain home is more than a floor plan—it’s a mountain-sized statement piece.
Whether you’re ready to buy or just plotting your next big investment, this is the kind of home that makes you start checking mortgage rates real quick.
Stay Tuned: Detailed Plan Video Awaits at the End of This Content!



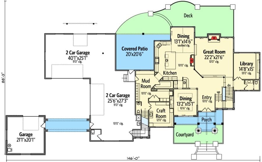
Five Bays and a Whole Lot of Wow
Let’s kick things off with the five-car garage.
That’s not a typo.
Five.
It’s like a personal showroom right in your home.

Whether you’ve got a couple of cars, an off-roading toy, a workshop setup, or, hey, a classic convertible you’re restoring (or just thinking about restoring), this garage has the space and the flair.
Not only does it provide protection and storage, it adds serious curb appeal and boosts your property value.
And if you’re the kind of person who’s already thinking about home insurance and long-term returns, this garage is an investment in itself.
Pair it with smart home technology for secure access and real-time monitoring, and you’ve got the best home security system in the neighborhood—built right in.

Enter Grand, Live Larger
Once inside, you’re welcomed by a spectacular sunken great room.
This isn’t just a living room—it’s an experience.
Think vaulted ceilings, sunlight flooding in, and a fireplace that anchors the whole space.
Whether you’re entertaining guests or just enjoying a quiet evening on the couch, this room was made for living large.

And for the entertainers at heart, a nearby wet bar keeps the drinks flowing and the vibe casual but classy.
Honestly, if you’re planning to refinance your mortgage or tap into a home equity loan to make upgrades, a wet bar like this reminds you why it’s worth it.
Dining Room Goals
Next up is the vaulted informal dining room—because who says informal has to mean boring?

With the kind of ceiling height that makes chandeliers jealous and a layout that flows effortlessly from the kitchen to the outdoors, this dining space is ready for everything from pancakes in pajamas to holiday feasts.
Add in some sleek touches using interior design software and suddenly this room becomes your showpiece.
And hey, every smart renovation like this is a step toward better property value.
Bonus points if you sneak in some smart lighting and audio.

Creative Spaces That Make Sense
One of the things that really sets this home apart is its consideration for how people actually live.
Case in point: the dedicated library tucked away for peace and quiet.
Whether you’re working from home, handling your investment portfolio, or trying to escape the chaos with a book, this space is pure gold.
And for the creative souls, there’s a full-blown crafts room just waiting to be transformed.

Scrapbooking, painting, pottery—it’s your space to imagine and create.
You could even talk to a home remodeling contractor and make it a podcast studio or a photography space.
The possibilities are endless when the blueprint is this flexible.
Outdoor Living That Belongs on a Magazine Cover
Out back, things only get better.

A two-level deck and a wide covered porch create seamless transitions from indoor luxury to outdoor serenity.
Morning coffee with a view?
Check.
Summer night barbecues with the family?
Absolutely.

Stargazing wrapped in a blanket with a glass of wine?
Yes, please.
Outfitting your outdoor spaces with smart home technology for lights, speakers, and even patio heaters is the cherry on top.
These features enhance comfort, energy savings, and—yep, you guessed it—property value.
It’s all about smart living inside and out.

A Master Suite That’s Nothing Short of Royal
Let’s talk about the crown jewel: the master suite.
Located upstairs for privacy, it features a cozy sitting area, a private porch, and a walk-in closet that’s basically a room of its own—with a center island for accessories, shoes, and secret snack storage (hey, we won’t tell).
It’s the kind of suite that makes you understand why people are willing to go through home loan pre-approval paperwork.
Every inch feels luxurious, and if you’re working with a real estate agent who knows your taste, you’ll recognize this as the “just right” suite immediately.

Secondary Bedrooms That Don’t Feel Secondary
Elsewhere upstairs, you’ll find four more bedrooms—each spacious, stylish, and thoughtfully placed.
Two of them are accessed via a raised walkway, which not only adds architectural interest but gives the layout a unique, upscale feel.
These rooms are perfect for kids, guests, or even turning one into a fitness room or home theater.
Need more room for visitors or in-laws?

You’re covered, especially when you factor in the bonus room and the optional lower level.
Bonus Room With Serious Potential
Above the garage is the ultimate flex space: a huge bonus room that comes with the option to add a bathroom.
Use it as a game room, a gym, a guest suite, or a mini home office away from the main house activity.
It’s the kind of space that grows with you—and adds long-term value to your home.

If you’re looking at this floor plan as a long-term investment, it’s spaces like this that make it stand out.
Use interior design software to dream it up now, and it’ll pay dividends down the road.
Lower Level
Need even more space?
Finish the lower level and open up a whole new world of possibilities.

A media room, mini-kitchenette, billiards area, and guest suite give this home an entirely new dimension of living.
That guest bedroom also bumps the total bedroom count up to six or even seven—ideal for large families or anyone who loves to host.
It’s also a great way to increase your property value through smart home improvement loans.
Want to get really fancy?
Add smart home automation, luxury flooring, and custom lighting to transform it into an entertainment hub that’ll have your friends talking for months.

Designed for Now and Later
Owning this home isn’t just about living well—it’s about planning wisely.
From mortgage rates to refinance strategies, it’s the kind of property that holds its value and gives you plenty of options for the future.
Whether you’re already pre-approved or just checking your credit score and dreaming, this floor plan puts you on a path toward building equity and living large.
And if you’re using a building cost estimator or chatting with a home remodeling contractor, you already know—you’re making a smart move.

This isn’t just a luxury home.
It’s a place where life happens.
Where birthdays are celebrated, holidays are hosted, projects are started (and maybe finished), and memories are made every day.
It’s a forever home, and it’s designed to grow with you—whether that means more family, more hobbies, or just more room to breathe.

If you’re ready to buy, this plan checks every box.
If you’re still thinking, this is the kind of floor plan that sticks in your mind and makes other homes feel a little…smaller.
However you approach it, one thing’s clear: this mountain home is an investment in your lifestyle, your future, and your happiness.
And that’s one investment worth making.
Building or buying a home isn’t just about picking the perfect house plan—it’s also about making smart long-term choices. From comparing mortgage rates to finding a trustworthy real estate agent, every decision adds value. Don’t forget to explore options like home insurance, home warranties, and potential refinance opportunities to protect your investment.
Want to boost your property value? Consider installing solar panels, upgrading to energy-efficient appliances, or integrating a smart home system. Plus, tools like interior design software can help you visualize and plan your dream space before the first brick is even laid.
Find More House Plans
By Bedrooms:
1 Bedroom • 2 Bedrooms • 3 Bedrooms • 4 Bedrooms • 5 Bedrooms • 6 Bedrooms • 7 Bedrooms • 8 Bedrooms • 9 Bedrooms • 10 Bedrooms
By Levels:
By Total Size:
Under 1,000 SF • 1,000 to 1,500 SF • 1,500 to 2,000 SF • 2,000 to 2,500 SF • 2,500 to 3,000 SF • 3,000 to 3,500 SF • 3,500 to 4,000 SF • 4,000 to 5,000 SF • 5,000 to 10,000 SF • 10,000 to 15,000 SF










