7-Bedroom 2-Story Contemporary Northwest House with Lower Level Apartment (Floor Plan)

Specifications:
- 5,113 Sq Ft
- 7 Beds
- 5.5 Baths
- 2 Stories
- 3 Cars
I’ll be honest—the moment I saw this stunning Contemporary Northwest house plan, I knew it was one of those “where have you been all my life?” moments.
With 5,113 square feet of modern comfort spread across two stories, this home isn’t just a place to live—it’s an investment in your happiness (and possibly your property value).
From the open-concept layout to the lower-level apartment, every inch of this 7-bedroom, 5.5-bath beauty was designed to blend luxury, practicality, and family living.
Let’s take a tour, shall we?



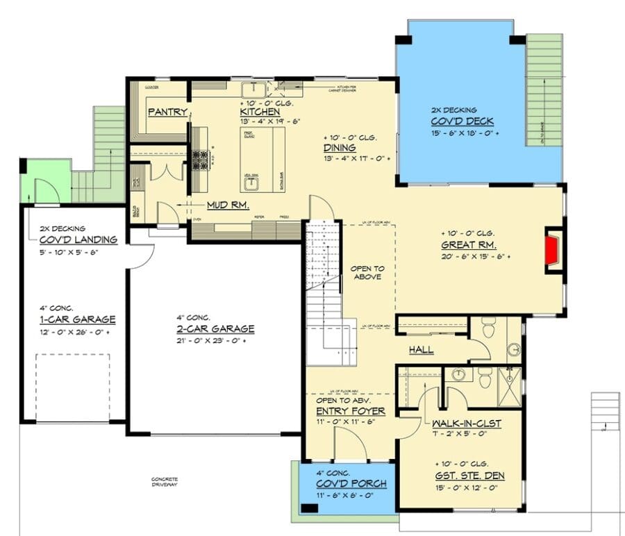
The Grand Welcome
Walking into this home feels like entering a luxury retreat.
The open foyer immediately greets you with soaring ceilings and floods of natural light that say, “Yes, you made the right decision to buy this house.”
The great room straight ahead feels vast but cozy, with enough space for a giant sectional, a fireplace, and a wall-mounted TV equipped with the best home security system to keep everything safe.
Just beyond, the covered deck stretches across the back, inviting you to take your morning coffee outdoors—or maybe plan a little home improvement project out there someday when mortgage rates drop, and you feel like reinvesting in upgrades.
The Heart of the Home
The open-concept main floor is where this plan truly shines.
The gourmet kitchen connects seamlessly with the dining and living areas, keeping the conversation flowing while you cook, dine, or entertain.
I love how the butler’s pantry and walk-in storage make it feel like you’re living in your own cooking show—minus the pressure of the cameras.
The kitchen layout also makes for a great opportunity to test out interior design software before you decide on backsplash patterns or countertop materials.
Whether you want minimalist whites or warm natural tones, the design flexibility is endless.
And let’s not forget the mudroom—a small but mighty hero that keeps shoes, backpacks, and random soccer gear from taking over the entryway.
The Main-Level Versatility
One of my favorite things about this house plan is how smartly it uses its space.
There’s a den on the main level that can easily become a home office, guest suite, or even a mini home theater.
Need a quiet place to work on your refinance mortgage paperwork or call your real estate agent about your next purchase? This room’s got you covered.
And with its proximity to the main living spaces, it’s perfect for those who like to stay close to the action but still need a bit of peace and quiet.
The convenient half-bath nearby is ideal for guests who “just stopped by” to see your new dream home.
The Luxurious Upstairs Retreat
Head upstairs, and it feels like stepping into a personal sanctuary.
The master suite is the kind of room that could make you look forward to the end of the day.
With dual walk-in closets, there’s no need to argue over hanger space.
The attached sitting area adds an extra layer of comfort—a perfect corner for late-night reading or morning reflection while your coffee brews downstairs.
And that master bath—pure bliss.
A freestanding tub, a spacious shower, and dual vanities combine functionality with spa-like design.
If you’ve ever thought about improving your credit score to qualify for better financing on a luxury home, this suite alone might convince you it’s worth the effort.
A Floor Plan That Loves Families
This upper floor isn’t just about the master suite—it’s also about keeping everyone close and comfortable.
The clustered bedrooms make it easy for families to stay connected while maintaining privacy.
The Jack & Jill bathroom adds convenience (and reduces hallway traffic), while the upstairs laundry room makes chores a breeze.
Parents with teens will especially appreciate having a second laundry area downstairs—because let’s face it, shared laundry time can test even the strongest of family bonds.
Two laundry zones?

Genius.
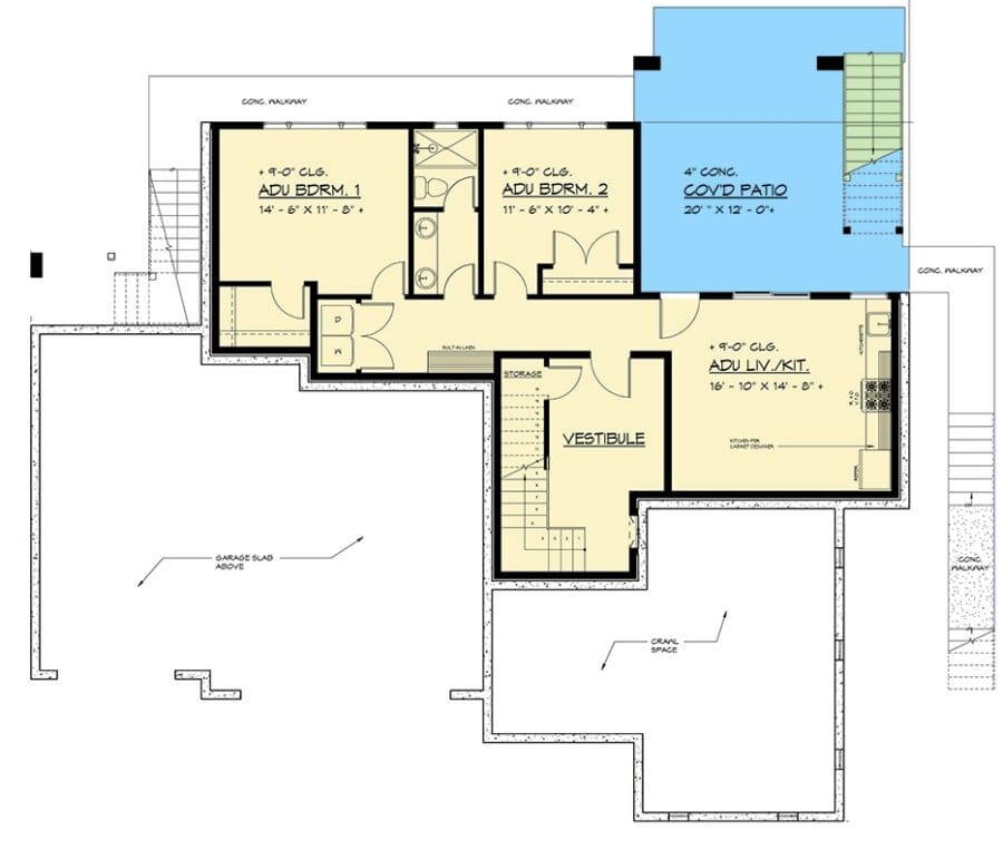
Lower-Level Living at Its Finest
Now, let’s talk about what might be the crown jewel of this floor plan: the lower-level apartment.
This accessory dwelling unit (ADU) is practically a home within a home.
It comes with its own living area, kitchenette, bathroom, and covered patio—making it ideal for guests, in-laws, or even short-term rentals if you’re thinking like an investor.
If you’re planning to buy this home as part of a long-term investment strategy, this lower-level space could help generate income that boosts your home equity.
And if you’re considering taking out a home equity loan later for future remodeling, having a space that attracts tenants or guests can only help your property value.
The best part?
It offers complete privacy while still being part of the same house.
You can share family dinners upstairs, then everyone retreats to their own space for the night.
It’s modern living at its most flexible.
Outdoor Living with Style
Outdoor enthusiasts will love how this house connects interior and exterior spaces.
The main-level covered deck extends your living area outside, while the lower patio gives you more space for gatherings.
Whether it’s a casual barbecue or a full-blown summer party, this home is built for entertaining.
You could even add some smart home technology outdoors—like automated lighting or weatherproof speakers—to turn the patio into a year-round destination.
And if you’re thinking ahead, a home warranty might come in handy to protect all those new installations and gadgets.
Built for Comfort, Designed for Efficiency
Beyond the layout, what really stands out is how this plan balances energy efficiency with luxury.
Smart home features can help control everything from temperature to security, giving you peace of mind even when you’re away.
It’s the kind of setup that makes owning a large home easier and more cost-effective in the long run.
Pair that with solid insulation, high-quality materials, and a design optimized by a professional home remodeling contractor, and you’ve got a home that’s not just stylish but also smart.
The building cost estimator may tell you it’s a significant investment—but every dollar spent shows up in the thoughtful design and lasting quality.
The Garage That Works as Hard as You Do
For car lovers, the 3-car attached garage is a dream.
With 871 square feet of space, there’s room for vehicles, storage, and even a little workshop corner for DIY projects.
You could park your cars, set up your tools, and still have space left for that new fitness bike you’ve been meaning to use.
And hey, if you’re ever considering a refinance mortgage down the line, improvements like a finished or insulated garage can play a role in boosting your home’s appraisal value.
Every inch of this plan feels purposeful, even down to the garage.
This Contemporary Northwest house plan doesn’t just check boxes—it rewrites the list entirely.
From the spacious great room to the tranquil master suite, from the family-friendly upper floor to the versatile lower-level apartment, it’s a blueprint for living well.

Whether you’re a growing family, a multi-generational household, or simply someone who loves a home that adapts to your lifestyle, this plan delivers.
Buying a home like this is more than a purchase—it’s a statement of comfort, creativity, and confidence in your future.
And if you ever decide to refinance, remodel, or expand your investment, you’ll have a foundation built to last.
So, if you’ve been waiting for the perfect combination of beauty, practicality, and value, this might just be your cue to call your real estate agent, get that home loan pre-approval, and step into a life where every detail—down to the last square foot—feels designed just for you.
Building or buying a home isn’t just about picking the perfect house plan—it’s also about making smart long-term choices. From comparing mortgage rates to finding a trustworthy real estate agent, every decision adds value. Don’t forget to explore options like home insurance, home warranties, and potential refinance opportunities to protect your investment.
Want to boost your property value? Consider installing solar panels, upgrading to energy-efficient appliances, or integrating a smart home system. Plus, tools like interior design software can help you visualize and plan your dream space before the first brick is even laid.
Find More House Plans
By Bedrooms:
1 Bedroom • 2 Bedrooms • 3 Bedrooms • 4 Bedrooms • 5 Bedrooms • 6 Bedrooms • 7 Bedrooms • 8 Bedrooms • 9 Bedrooms • 10 Bedrooms
By Levels:
By Total Size:
Under 1,000 SF • 1,000 to 1,500 SF • 1,500 to 2,000 SF • 2,000 to 2,500 SF • 2,500 to 3,000 SF • 3,000 to 3,500 SF • 3,500 to 4,000 SF • 4,000 to 5,000 SF • 5,000 to 10,000 SF • 10,000 to 15,000 SF










