6-Bedroom Elegant 2-Story Modern Farmhouse with Grand Courtyard and Outdoor Living (Floor Plan)

Specifications:
- 5,643 sq. ft.
- 6 Beds
- 4.5 Baths
- 2 Stories
- 3 Cars
Let me tell you, when I first laid eyes on this modern farmhouse plan, I knew it wasn’t just a house—it was a lifestyle.
Spacious, stylish, and full of features that make life both comfortable and fun, it’s the kind of home that makes you want to invite friends over for Sunday brunch… and maybe never leave.
From open living spaces to luxurious bedrooms, every corner is thoughtfully designed, blending practicality with modern flair.
And yes, it even gives your credit score a reason to celebrate—well, indirectly.


Open Layout That Feels Like Home
One of the first things that grabs me is the open layout. The kitchen, dining, and family room flow seamlessly, making it easy to cook, chat, and keep an eye on the kids—or, let’s be honest, check Instagram while pretending to supervise homework.
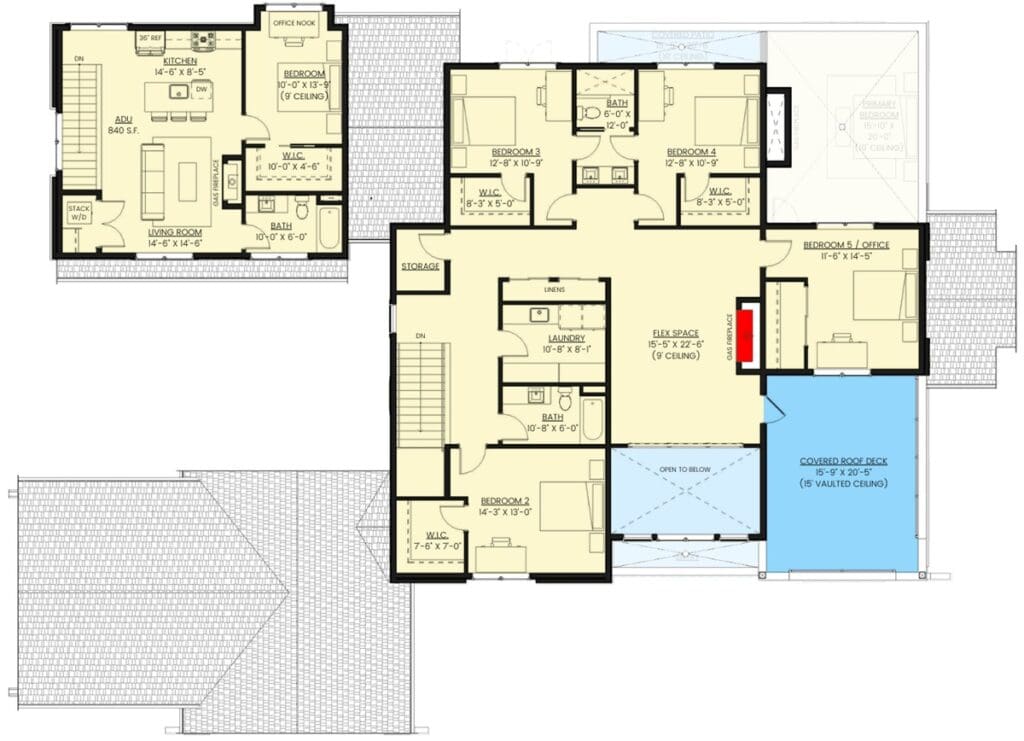
The kitchen island, with the sink facing outward, is perfect for staying part of the conversation while prepping meals. Imagine cooking a big family dinner, with the fireplace casting a cozy glow across the family room.
Walls of glass bring in natural light and frame the view of the backyard and porch, which is ideal for anyone who enjoys outdoor living.
Speaking of outdoor spaces, the barbecue porch is a dream. Whether it’s a summer barbecue or a casual morning coffee, this house plan ensures your gatherings are as enjoyable outside as they are inside.
It’s one of those features that can increase property value without you lifting a finger—well, aside from flipping burgers.
Pantries That Keep You Organized
Now, let’s talk about pantries, because who doesn’t love a good pantry? This home comes with both a walk-in food pantry and a butler’s pantry.

That’s right—two places to stash your groceries, wine, or secret snack stash. It’s perfect for anyone who enjoys hosting or just wants to keep a clean and organized kitchen.
When I think about it, these pantries alone make me feel like I’m ready to tackle any home improvement project or even plan a renovation someday.
And if I ever need inspiration, interior design software can help me visualize exactly how to arrange all those goodies.
Bedrooms Designed for Comfort
Each bedroom in this house plan features a walk-in closet, which, if you’re like me, feels like an early Christmas present every day.
No more squeezing clothes into a tiny space or juggling shoes in a corner. The master suite is particularly impressive with its tray ceiling and direct access to the back porch.
Imagine waking up, stepping outside for fresh air, and enjoying your morning coffee while the sun rises over the backyard. It’s an upgrade not just to your living space but to your lifestyle.

Split bedrooms mean privacy for everyone—parents can enjoy their serene retreat, while kids or guests have their own space.
This layout is ideal for families who want to maintain harmony without sacrificing comfort.
Plus, with optional bonus space, you can finish a home office, gym, or media room when the timing—or the budget—feels right.
Home improvement loans or consulting a home remodeling contractor can make this process seamless, ensuring your investment continues to grow.
Garage Space for Every Need
Parking and storage are no afterthought here. The side-load garage is perfect for corner lots, giving the home a clean, elegant frontage.
The main garage has two bays, totaling 609 square feet, while the ADU above offers an extra 840 square feet of living space—perfect for guests, in-laws, or even a rental unit.

And let’s not forget the single-car garage/workshop, which adds another 315 square feet. Altogether, you have 924 square feet of garage space, ideal for cars, hobbies, or a combination of both.
If you’re thinking about the building cost estimator or seeking a home equity loan, these garages could even factor into your calculations for property value and investment potential.
Smart Living with Modern Features
This farmhouse isn’t just about space—it’s about convenience. Smart home technology can be seamlessly integrated to manage lighting, security, and even temperature, all from your phone.
Speaking of security, installing the best home security system ensures your family and your investment are safe. Whether you’re stepping out for a weekend getaway or just going to the grocery store, peace of mind comes built-in.
Financing Your Dream Home
Let’s be real—finding the perfect home plan is only part of the journey. Understanding mortgage rates and securing home loan pre-approval is crucial.
With the right guidance from a trusted real estate agent, you can navigate options like refinancing your mortgage down the road or tapping into a home equity loan for renovations or upgrades.

And don’t forget home insurance and home warranty considerations—they’re essential to protecting both your investment and your peace of mind.
Bringing Your Vision to Life
What really excites me about this plan is how adaptable it is. Optional bonus spaces, walls of glass, and expansive outdoor areas allow homeowners to customize the property to fit their lifestyle.
Tools like interior design software make it easy to visualize how furniture, finishes, and decor will look.
Whether you’re thinking of adding a sunroom, upgrading the kitchen, or experimenting with lighting, this home can evolve with you.
The combination of the main house and the 2-bedroom ADU means there’s room for everyone, and the flexible layout allows for future expansions. This makes the property not just a home, but a long-term investment.
When you consider potential property value growth, it’s easy to see why this plan appeals to savvy buyers who think ahead.

Outdoor Living That Inspires
Backyards don’t just have to be grass and fences—they can be extensions of your home. This farmhouse maximizes outdoor living with multiple porches, open spaces, and a barbecue area.
It’s perfect for summer parties, casual get-togethers, or even quiet evenings under the stars. The integration of indoor and outdoor spaces makes entertaining seamless, while the layout ensures privacy when you need it.
For families who love the outdoors or those seeking to enhance their lifestyle, this home plan checks all the boxes.
And if you ever decide to make changes, home improvement loans or working with a reputable home remodeling contractor can help bring your vision to life without stress.
The ADU: Flexibility Meets Function
One of my favorite features of this modern farmhouse is the 2-bedroom ADU above the garage. With 840 square feet of living space, it’s perfect for multi-generational living, a rental investment, or even a private home office.
I can imagine teenagers enjoying their own space, guests feeling independent yet close by, or using it as a vacation rental to help offset the mortgage.

And if you’re thinking ahead financially, this ADU can positively impact property value and your overall investment potential.
Of course, turning the ADU into a fully functional unit might require consultation with a home remodeling contractor, especially if you’re considering structural or design changes.
But with the right approach and a home improvement loan, the possibilities are almost endless. Even a home equity loan could make finishing touches easier, letting you customize the space while keeping your budget intact.
A Kitchen Designed for Life
Let’s circle back to the heart of the home: the kitchen. This is where practicality meets charm. The sink in the island faces outward toward the family room, which makes cooking while entertaining a breeze.
You can keep an eye on the kids, chat with friends, or even follow a cooking tutorial on your tablet—no need to turn your back on the action.
Both the walk-in food pantry and butler’s pantry provide ample storage, helping keep countertops clutter-free.

For anyone thinking about remodeling or upgrades in the future, interior design software can help plan layouts and finishes, ensuring your kitchen evolves with your needs.
And let’s not forget: a well-designed kitchen also boosts property value—a smart investment in both comfort and resale potential.
Bedrooms That Feel Like Retreats
Every bedroom comes with a walk-in closet, so your storage woes are officially over. The master suite takes luxury to the next level, with a tray ceiling that adds drama and elegance and a private door leading to the back porch.
Morning coffee with a sunrise view? Yes, please.Split bedrooms give everyone privacy, making this plan ideal for families with children, roommates, or frequent guests.
Optional bonus spaces can be finished later—think home gym, craft room, or media space—adding even more value and personalization opportunities.
When planning these upgrades, home improvement loans and consulting a home remodeling contractor can make the process smooth and financially manageable.

Garage Space That Works Hard
Parking and storage are never an afterthought. The main 2-car garage provides 609 square feet, while the ADU above adds 840 square feet of usable space.
The additional single-car garage/workshop adds another 315 square feet, giving you 924 total square feet for cars, hobbies, or storage.
Whether you’re thinking about building cost estimators, investment potential, or simply keeping your vehicles safe, this layout has you covered.
Side-load access also makes this plan ideal for corner lots, giving the home a neat, elegant frontage.
It’s one of those subtle features that makes life easier while also increasing curb appeal—a win-win for daily living and long-term property value.
Smart Home Features and Security
This modern farmhouse is ready for smart home technology. Imagine controlling lighting, climate, and even security from your phone.

Installing the best home security system not only protects your family but also safeguards your investment, providing peace of mind whether you’re home or away.
Integrating smart tech can also make your home more attractive to future buyers, increasing its property value.
And since technology evolves quickly, having the infrastructure in place means your home can stay current without major renovations—saving both time and money in the long run.
Purchasing a home of this caliber requires planning, and a trusted real estate agent can make all the difference.
From understanding mortgage rates to securing home loan pre-approval, having a clear financial roadmap ensures a smooth buying experience.
Refinance mortgage options also give flexibility down the line, helping manage monthly payments or fund future home improvements.

Home insurance and home warranties are crucial too. They protect your investment against unforeseen events and give peace of mind.
And for those looking to expand or remodel, home improvement loans or a home equity loan can help fund projects without derailing your finances.
Outdoor Spaces That Inspire
The outdoor living areas in this home are nothing short of spectacular. Multiple porches, open spaces, and a barbecue porch provide endless possibilities for entertaining or relaxing.
Morning yoga on the porch, summer barbecues with friends, or cozy evenings by the fire pit—the layout encourages you to enjoy life outside as much as inside.
These spaces also enhance the property’s value and appeal, making it a smart investment.
Whether you plan to stay long-term or consider resale in the future, the outdoor living features are both practical and desirable.

Optional Spaces for Personalization
The beauty of this plan is its flexibility. Optional bonus spaces let you adapt the home as your needs evolve.
Whether it’s a media room, home office, craft space, or gym, you can customize the house to suit your lifestyle.
Interior design software can help visualize these updates, while a home remodeling contractor can bring your vision to life.
Even finishing touches in the ADU or main home can be treated as investment opportunities.
Upgrades that increase functionality and aesthetics often translate directly to higher property value, making the home a smart financial choice as well as a beautiful living space.

Finally, let’s talk about the long-term view. Buying this modern farmhouse is more than a purchase—it’s an investment.
With flexible spaces, smart technology, and multiple garages, the home offers both immediate enjoyment and future potential.
Optional bonus spaces and the ADU increase functionality and property value, while thoughtful design elements ensure lasting appeal.
Whether you’re evaluating mortgage rates, home improvement options, or property value trends, this plan checks all the boxes.
By working with a knowledgeable real estate agent and planning carefully, your purchase becomes not just a house, but a rewarding investment in lifestyle, comfort, and financial growth.
Building or buying a home isn’t just about picking the perfect house plan—it’s also about making smart long-term choices. From comparing mortgage rates to finding a trustworthy real estate agent, every decision adds value. Don’t forget to explore options like home insurance, home warranties, and potential refinance opportunities to protect your investment.
Want to boost your property value? Consider installing solar panels, upgrading to energy-efficient appliances, or integrating a smart home system. Plus, tools like interior design software can help you visualize and plan your dream space before the first brick is even laid.
Find More House Plans
By Bedrooms:
1 Bedroom • 2 Bedrooms • 3 Bedrooms • 4 Bedrooms • 5 Bedrooms • 6 Bedrooms • 7 Bedrooms • 8 Bedrooms • 9 Bedrooms • 10 Bedrooms
By Levels:
By Total Size:
Under 1,000 SF • 1,000 to 1,500 SF • 1,500 to 2,000 SF • 2,000 to 2,500 SF • 2,500 to 3,000 SF • 3,000 to 3,500 SF • 3,500 to 4,000 SF • 4,000 to 5,000 SF • 5,000 to 10,000 SF • 10,000 to 15,000 SF










