6-Bedroom Barndominium with Loft and Apartment (Floor Plan)

Specifications:
- 6,598 sq. ft.
- 6 Beds
- 5.5 Baths
- 2 Stories
- 2 Cars
I have to admit, when I first walked through this house plan, I felt like I had stumbled into the Pinterest board of my dreams.
Picture this: a modern farmhouse with all the charm you want, but with a twist—a sleek barndominium exterior that says, “Yes, I’m rustic, but I’ve got style.”
And once you step inside, the layout just makes you go, “Oh, this was made for real life.”
The open concept, light-filled spaces, and clever design details make it a perfect fit whether you’re hosting a weekend barbecue or curling up by the fireplace with a good book.


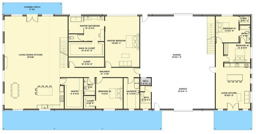
The Heart of the Home: Open Layout & Family Room Magic
Let’s start with the family room, because let’s be honest, this is where most of life happens.
The two-story great room is bathed in natural light thanks to walls of glass that frame views of your backyard and porch.

The fireplace anchors the space, offering a cozy vibe whether it’s a quiet evening or a gathering of friends. And here’s a subtle genius: the kitchen island faces the family room.
That means while you’re washing dishes—or doing the dishes equivalent of negotiating mortgage rates—you can still be part of the action, keep an eye on the kids, or watch the game.

Speaking of the kitchen, this is where design meets function. The chef’s kitchen boasts both a walk-in pantry and a butler’s pantry.
That’s right—double the storage, double the convenience. Imagine prepping your favorite recipes with everything within arm’s reach while your guests sip cocktails nearby.

And yes, there’s a breakfast nook tucked in for those slower mornings when coffee is your best friend and interior design software might as well be your second hobby.
Bedrooms Designed for Comfort and Privacy
This house plan really shines in its approach to bedrooms. The primary suite is a sanctuary, tucked away on one side of the house for privacy.

The oversized bedroom features a tray ceiling that adds drama without shouting, dual walk-in closets that make organizing a wardrobe a breeze, and a door that leads straight to the back porch.
Can you imagine stepping out for a morning coffee as the sun rises over your property? Absolute bliss.

The other bedrooms are equally impressive. Each has its own walk-in closet—because who doesn’t dream of a personal storage space that doesn’t feel cramped?
The split bedroom design ensures that everyone has privacy, and optional bonus spaces provide flexibility for when your family grows or when you want to invest in a new hobby room. It’s a layout that balances function with a little bit of luxury.

In-Law Suite & Multi-Level Living
For anyone who’s ever entertained extended family—or just appreciates extra space—the self-contained in-law suite is a game-changer. It has two bedrooms, a living-kitchen area, and a full bath.
The independence it offers is perfect for guests, older children, or even as a rental opportunity, which could boost property value if you’re considering the purchase as an investment.

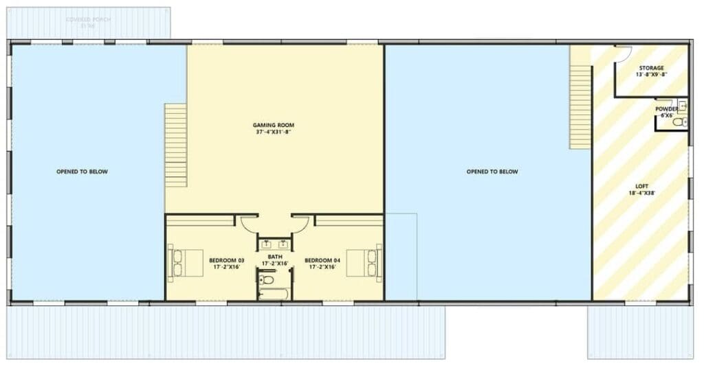
And with a second floor featuring a vast gaming room and a versatile loft area, this home doesn’t just stop at comfort—it offers opportunities for entertainment, work, and relaxation.
Garage & Workshop: Practical Meets Luxe
Car enthusiasts, hobbyists, and DIYers, take note: the oversized 1,870 sq. ft. garage isn’t just about parking cars.

It includes dedicated workshop space, ideal for projects that might require power tools, a building cost estimator, or even a home remodeling contractor’s dream setup.
The side-load garage is perfect for a corner lot, keeping the curb appeal sleek and the streetscape uncluttered.

With this much space, you can take on home improvement loans projects without feeling like the garage is going to swallow your car whole.
Outdoor Living: A Space for Every Occasion
One of my favorite features of this house plan is the 1,216 sq. ft. covered porch. Imagine hosting summer barbecues, family dinners, or just reading a book while enjoying fresh air.

The porch extends across the main level, seamlessly connecting indoor and outdoor living spaces. This is the kind of design that encourages you to slow down and enjoy the moment—or maybe even to take that home equity loan and invest in a hot tub.
The barbecue porch is perfect for those who love to entertain without missing out on the comfort of home.

And let’s be honest, the integration of smart home technology here means that lighting, music, and even the grill can be managed effortlessly while you relax. It’s convenience and style in one package.
Luxury & Functionality: Master Bathrooms and Walk-Ins
Now, let’s talk about bathrooms because they can make or break a house. The master bath in this plan is nothing short of luxurious. Dual sinks, a spa-like tub, and a separate shower make it feel like your own private retreat.

The walk-in closets mean you can finally see your entire wardrobe without playing a dangerous game of Jenga. And for the rest of the bathrooms, thoughtful layouts ensure convenience and style, whether it’s for everyday living or accommodating guests.
Optional bonus spaces give this home an edge. Whether it’s finishing a second-floor room for gaming, fitness, or a home office, or converting a loft into a reading nook with natural light streaming through, the flexibility is invaluable.

This is especially appealing if you’re thinking about future resale value—buyers love homes with versatile spaces.
The combination of a commanding 6,598 sq. ft. layout and a sleek, metal exterior offers a mix of rustic charm and modern industrial elegance, making it stand out in the market.

Entertainment and Recreation: The Upper-Level Advantage
One of the standout features of this house plan is the upper level, which is nothing short of a playground for adults and kids alike.
The vast gaming room offers space for everything from video games to board games, or even a home theater setup.

It’s the kind of room where laughter echoes, popcorn gets spilled, and memories are made. Right next door, the versatile loft area is perfect for a reading corner, study, or even a home office powered by smart home technology.
Imagine checking emails, managing finances, or even video-calling your real estate agent while enjoying natural light streaming in from the glass walls below.

This upper level isn’t just for fun—it also adds tremendous value. Whether you’re thinking about increasing property value for a future sale or creating flexible spaces for a growing family, the loft and gaming areas provide options that are both practical and indulgent.
And let’s not forget about the potential for interior design software to help you envision and customize this space exactly the way you want it.

Kitchen and Dining: Culinary Bliss Meets Social Hub
The kitchen is truly the heart of this home, designed for both everyday life and entertaining. The chef’s kitchen, featuring a butler’s pantry and walk-in food pantry, ensures you have all the storage and prep space you could ever need.
Cooking here is an experience: you can prep, cook, and serve without ever feeling disconnected from guests or family in the open living area.

The breakfast nook is ideal for casual dining, morning coffee, or planning your next home improvement project. The dining area flows naturally from the kitchen, making it perfect for formal dinners, holiday gatherings, or even hosting a brunch for friends.
And if you love technology, smart home features allow you to control lighting, temperature, and even music to create the perfect ambiance for any occasion.

Master Suite: A Private Retreat
Let’s circle back to the master suite because it truly is a retreat within the home. The oversized bedroom offers plenty of space to relax, while the dual walk-in closets provide organizational nirvana.
The tray ceiling adds an architectural flourish without feeling pretentious. Step out onto the back porch for fresh air and a quiet moment before the day begins—or after it ends.

The master bathroom features a spa-like atmosphere, combining luxury and function in a way that makes daily routines feel like indulgence.
Outdoor Lifestyle: Porches, Patios, and Barbecue Bliss
Outdoor living is a cornerstone of this home plan. The covered porch, extending 1,216 sq. ft., creates an inviting space for dining, entertaining, or simply enjoying a quiet moment with a cup of coffee.

The barbecue porch is perfect for weekend cookouts or hosting friends without ever feeling cramped.
These spaces are ideal for enjoying the natural light, fresh air, and scenic views of your backyard, all while keeping the indoors just steps away.

This seamless integration of indoor and outdoor spaces reflects modern design trends while maintaining a classic farmhouse charm.
It’s a setup that encourages social gatherings, family time, and a connection with nature, which is something many homeowners value when considering an investment in a new property.

Garage and Workshop: Functionality That Impresses
The oversized 2-car garage isn’t just about parking. With dedicated workshop space, it’s perfect for hobbies, DIY projects, or even home improvement loans that require extra tools and workspace.
The metal exterior and side-load design make it ideal for a corner lot, ensuring your home has both curb appeal and practical accessibility.

Whether you’re tinkering with tools, storing seasonal items, or working on a home remodeling project with a contractor, this garage provides both versatility and security.
Speaking of security, integrating the best home security system ensures your property and your investment are well-protected.

Flexibility for the Future: Bonus Spaces and Optional Upgrades
One of the most exciting aspects of this house plan is the optional bonus spaces. Finish them now or later—it’s entirely up to you. Whether you envision a home theater, gym, guest suite, or office, these spaces can evolve as your lifestyle changes.
This flexibility enhances both the enjoyment and resale potential of the home, making it a smart choice for long-term investment.

Blending Modern Comfort with Rustic Charm
What makes this house plan truly remarkable is the blend of rustic barndominium charm with modern farmhouse functionality.
The metal exterior, clean lines, and industrial accents give it a contemporary edge, while the open layouts, warm finishes, and inviting porches preserve the classic farmhouse feel.

It’s the perfect balance for someone who wants a home that is both stylish and comfortable.
Inside, walls of glass bring in natural light and create a connection between the indoor and outdoor spaces.

Split bedrooms provide privacy without isolating anyone from the family, and the combination of luxurious finishes and functional design ensures that every corner of the home serves a purpose.
Whether it’s preparing meals in a spacious kitchen, enjoying a quiet evening on the porch, or hosting friends in the great room, this home adapts effortlessly to your lifestyle.

Why This House Plan Stands Out
At the end of the day, it’s the thoughtful integration of luxury, functionality, and flexibility that makes this house plan stand out.
From the first-floor master suite to the expansive gaming room upstairs, every feature is designed to enhance daily living.

Optional bonus spaces and versatile lofts ensure the home can grow with you, while the garage and workshop accommodate hobbies, storage, and practical needs.
Investing in this property isn’t just about owning a beautiful home—it’s about creating a lifestyle. With smart home technology, premium finishes, and thoughtful layouts, you can enjoy comfort, convenience, and style.

And with proper financial planning—using tools like building cost estimators, considering mortgage rates, and leveraging home improvement loans—you can make this dream home a reality.
If I had to sum it up in one sentence: this modern farmhouse-barndominium hybrid is a home that effortlessly combines style, functionality, and flexibility.

Every feature, from the two-story great room to the expansive porch and optional bonus spaces, is designed to enhance everyday life while offering long-term value.
Whether you’re buying, refinancing, or thinking about future upgrades, this house plan meets both lifestyle and financial goals.
It’s not just a house—it’s an investment in a way of living that balances comfort, luxury, and practicality.
From family gatherings by the fireplace to weekend BBQs on the porch, to productive days in a smart home-enabled office, this home truly has it all.
If your dream is a property that adapts to your life while also building equity, this house plan just might be the one.
Building or buying a home isn’t just about picking the perfect house plan—it’s also about making smart long-term choices. From comparing mortgage rates to finding a trustworthy real estate agent, every decision adds value. Don’t forget to explore options like home insurance, home warranties, and potential refinance opportunities to protect your investment.
Want to boost your property value? Consider installing solar panels, upgrading to energy-efficient appliances, or integrating a smart home system. Plus, tools like interior design software can help you visualize and plan your dream space before the first brick is even laid.
Find More House Plans
By Bedrooms:
1 Bedroom • 2 Bedrooms • 3 Bedrooms • 4 Bedrooms • 5 Bedrooms • 6 Bedrooms • 7 Bedrooms • 8 Bedrooms • 9 Bedrooms • 10 Bedrooms
By Levels:
By Total Size:
Under 1,000 SF • 1,000 to 1,500 SF • 1,500 to 2,000 SF • 2,000 to 2,500 SF • 2,500 to 3,000 SF • 3,000 to 3,500 SF • 3,500 to 4,000 SF • 4,000 to 5,000 SF • 5,000 to 10,000 SF • 10,000 to 15,000 SF










