6-Bedroom 2-Story Mountain New American House with Dual In-Law Suites (Floor Plan)

Specifications:
- 5,603 Sq Ft
- 6 Beds
- 6.5 Baths
- 2 Stories
- 4 Cars
This Mountain New American house plan is more than a home—it’s a complete lifestyle mapped out in 5,603 square feet of pure possibility.
With six bedrooms, dual in-law suites, and a layout that balances openness with privacy, it’s a design that feels both welcoming and impressive.
Let me take you step by step through the floor plan and show you why it’s as practical as it is breathtaking.



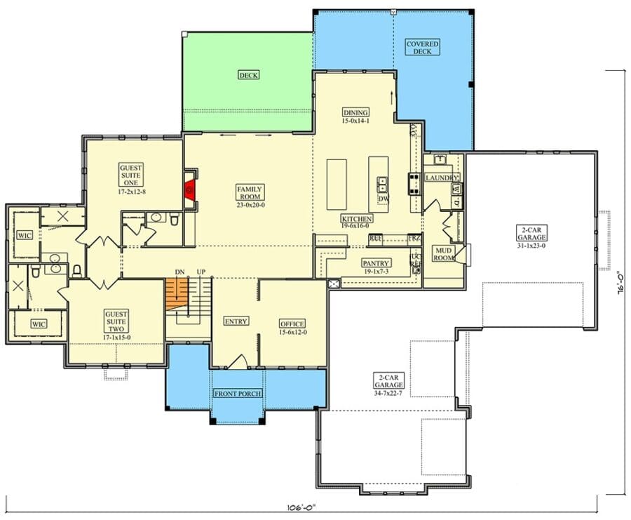
The Covered Front Porch and Foyer
The adventure starts right at the covered front porch.
It isn’t just a pretty entrance; it’s functional too.
There’s plenty of room for seasonal décor, rocking chairs, or even a quiet morning coffee.
Step inside, and the foyer immediately makes a statement.
It opens directly into the soaring two-story family room, setting the tone for the rest of the house.
This kind of first impression adds real strength to the property value, and it’s one of those details a real estate agent can’t wait to point out when showing the home.
The Two-Story Family Room
Once you’re past the foyer, the family room steals the spotlight.
With ceilings that stretch sky-high and windows that invite in natural light, the space feels expansive yet warm.
Because it connects directly to the kitchen and dining area, it’s perfect for family gatherings, movie nights, or quiet evenings by the fire.
It’s also a space that can easily integrate smart home technology, making it possible to control lights and temperature with the tap of a phone.
That kind of feature is both a convenience and a smart investment for future resale.
The Open Kitchen and Dining Area
The kitchen flows seamlessly from the family room, and it’s designed with a cook’s heart in mind.
The oversized island becomes a natural gathering spot, while the surrounding counter space is generous enough for both meal prep and casual dining.
The walk-in pantry ensures storage is never a problem, while the mudroom and main-level laundry keep daily routines running smoothly.
For anyone considering the building cost estimator, these functional touches are not just bonuses—they’re essentials that make the floor plan shine.
The Main-Level In-Law Suites
Perhaps the most unique part of this plan is the inclusion of two full in-law suites on the main floor.
Each suite comes with its own private bathroom and walk-in closet, ensuring comfort and privacy for guests or family members.
This setup works beautifully for multi-generational living, especially as families look for ways to maximize home equity loan opportunities or avoid the need for outside housing costs.
And let’s be honest—having two in-law suites also keeps family gatherings harmonious.
No one has to fight for the “good” guest room.
The Private Home Office
Just off the foyer, the home office sits tucked away for quiet focus.
It’s big enough for a desk, bookshelves, and all the essentials, yet private enough to separate work from the main living areas.
In today’s world, that’s not just a perk; it’s a necessity.
Adding a well-placed office like this can also enhance property value, since buyers see it as a flexible space—usable for work, study, or even creative hobbies.
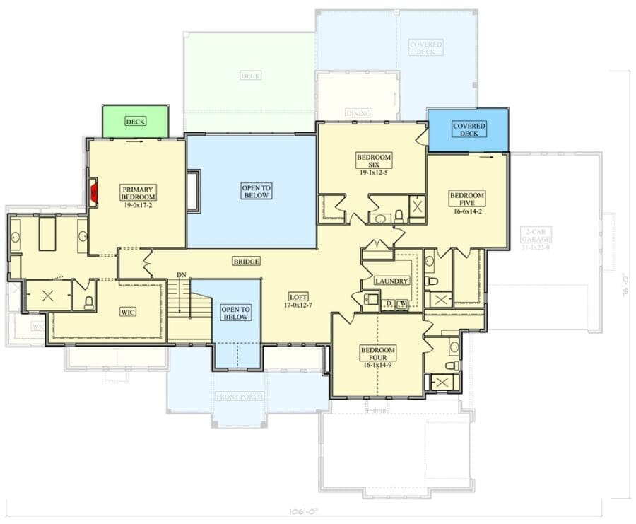
The Primary Bedroom Suite Upstairs
Head upstairs, and the primary suite delivers the ultimate retreat.
The bedroom itself is spacious, but the bathroom is the real showstopper.
With double vanities, a soaking tub, and a walk-in shower, it’s like stepping into a private spa.
Then, there’s the expansive walk-in closet, which could practically double as a dressing room.
When considering a home loan pre-approval, this kind of luxury suite often tips the scales for buyers deciding to purchase.

It’s the kind of feature that’s hard to resist.
Additional Bedrooms and Loft
Two more bedrooms occupy the second floor, each with en-suite bathrooms and walk-in closets.
That means every family member has their own private sanctuary, eliminating the usual competition for bathroom space.
At the heart of the upper level sits a loft, connected by an elegant bridge that overlooks the family room below.
It’s a flexible zone—perfect for a reading nook, art space, or a spot for kids to hang out without cluttering the main floor.
The Expansive Outdoor Living Spaces
The floor plan extends outdoors with 1,774 square feet of porches and decks.
At the front, the covered porch sets a welcoming tone.
In the back, a large deck offers space for dining or entertaining, while a covered deck ensures year-round enjoyment regardless of the weather.
These outdoor features can be enhanced with the best home security system for peace of mind, especially when investing in a home of this scale.
And from an investment perspective, expansive outdoor living is a major selling point that supports long-term property value.
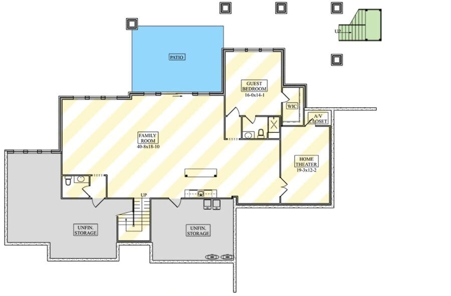
The Optional Lower Level
The plan also includes the option for a 1,974 square-foot walkout basement.
This space can transform into a true entertainment hub, complete with a large family room, a home theater, and yet another guest suite with a full bath.
Designing a lower level like this may raise the building cost estimator, but it also multiplies the potential uses of the home.
And if you ever decide to refinance mortgage terms down the road, having a finished basement can strengthen your overall equity position.
The Four-Car Garage
Finally, the garage deserves a spotlight of its own.
With 1,646 square feet and room for four cars, it’s not just about parking—it’s about storage, hobbies, and flexibility.
Whether you need space for bikes, tools, or even a workshop, this garage has it covered.
Of course, protecting vehicles and belongings here makes home insurance and a home warranty all the more important.
It’s peace of mind wrapped around practical design.
A Floor Plan That Balances Luxury and Functionality
Every part of this house plan has been carefully mapped out to balance style with practicality.
From the grand family room to the dual in-law suites, from the upper-level retreat to the optional lower level, it’s a design that grows with your family and adapts to your lifestyle.
Whether you’re working with a home remodeling contractor to add personal touches, exploring home improvement loans for custom finishes, or consulting a real estate agent about long-term value, this plan sets the stage.
It makes sense as both a home to love now and an investment for the future.
This Mountain New American house plan isn’t just square footage on paper—it’s a thoughtful layout that makes life easier and more enjoyable.
It combines open spaces with private retreats, provides multiple suites for flexible living, and adds outdoor and lower-level options that expand its potential even further.
Sure, you’ll want to keep an eye on mortgage rates and your credit score before moving forward, but once you walk through the spaces on this floor plan, it’s hard not to imagine yourself living here.
And really, isn’t that what makes a house plan unforgettable?
Building or buying a home isn’t just about picking the perfect house plan—it’s also about making smart long-term choices. From comparing mortgage rates to finding a trustworthy real estate agent, every decision adds value. Don’t forget to explore options like home insurance, home warranties, and potential refinance opportunities to protect your investment.
Want to boost your property value? Consider installing solar panels, upgrading to energy-efficient appliances, or integrating a smart home system. Plus, tools like interior design software can help you visualize and plan your dream space before the first brick is even laid.
Find More House Plans
By Bedrooms:
1 Bedroom • 2 Bedrooms • 3 Bedrooms • 4 Bedrooms • 5 Bedrooms • 6 Bedrooms • 7 Bedrooms • 8 Bedrooms • 9 Bedrooms • 10 Bedrooms
By Levels:
By Total Size:
Under 1,000 SF • 1,000 to 1,500 SF • 1,500 to 2,000 SF • 2,000 to 2,500 SF • 2,500 to 3,000 SF • 3,000 to 3,500 SF • 3,500 to 4,000 SF • 4,000 to 5,000 SF • 5,000 to 10,000 SF • 10,000 to 15,000 SF










