6 Bedroom 2-Story Modern Farmhouse with Optional Lower Level (Floor Plan)

Specifications:
- 2,435 sq. ft.
- 6 Beds
- 2.5 Baths
- 2 Stories
- 2 Cars
Let me be honest: I’ve always imagined myself sipping coffee on a wide front porch, surrounded by white board-and-batten siding, black window trim, and a soft breeze carrying the scent of fresh grass.
That’s the charm of a modern farmhouse—it feels like home from the moment you pull into the driveway.
And this particular 2-story, 4-to-6-bedroom modern farmhouse plan?
It’s basically a dream checklist turned into blueprints.
From its open layout and barbecue porch to the optional lower level and side-load garage, this design balances cozy comfort with upscale living—and a bit of everyday practicality for good measure.



The Heart of the Home – Where Family Happens
As soon as you step inside, the great room greets you like an old friend—warm, open, and welcoming.
The family room is anchored by a classic fireplace, perfect for chilly evenings or Netflix marathons.
I love that the kitchen overlooks it all, so even when you’re chopping veggies, you’re still part of the conversation (and not missing any of the drama when someone drops a board game piece under the couch).
The island—oh, that glorious kitchen island—comes with a sink that faces forward, so you can cook, clean, and socialize without missing a beat.
With walls of glass that flood the area with natural light, the whole space feels bright, cheerful, and alive.
It’s the kind of open layout that real estate agents love to highlight because it instantly boosts property value and buyer appeal.
If you’re thinking long-term, that open concept could even work wonders when it comes to mortgage rates and resale potential.

A beautiful, functional kitchen is one of the top factors that influence how quickly a home can sell—or refinance mortgage terms can be negotiated.
Pantries That Mean Business
Every serious cook—or enthusiastic snacker—needs pantry space. This house gives you two. Yes, two.
You’ll find both a walk-in food pantry and a butler’s pantry tucked neatly behind the kitchen.
One for your day-to-day groceries, and another for staging your dinner parties or storing those kitchen gadgets you swore you’d use more often.
It’s small design touches like these that make this house feel like a smart investment.
And speaking of smart—pairing this layout with the best home security system and a little smart home technology takes convenience and safety to another level.
With a few taps on your phone, you could preheat the oven, dim the lights, and check that the garage door’s actually closed (because let’s be real, we’ve all forgotten once or twice).

The Study – Work from Home, But Make It Stylish
If you work remotely, you’ll appreciate the dedicated home office tucked neatly to the left of the foyer.
Behind elegant double doors, it’s the kind of workspace that makes Zoom meetings almost enjoyable.
You can even use interior design software to plan out built-in shelves, a statement wall, or cozy reading nook—whatever suits your work style best.
And let’s be honest—having a home office like this can also boost your property value. More buyers are prioritizing flexible spaces like studies, playrooms, or media areas when deciding to buy.
If you’re planning on turning this home into a long-term investment, these features are pure gold.
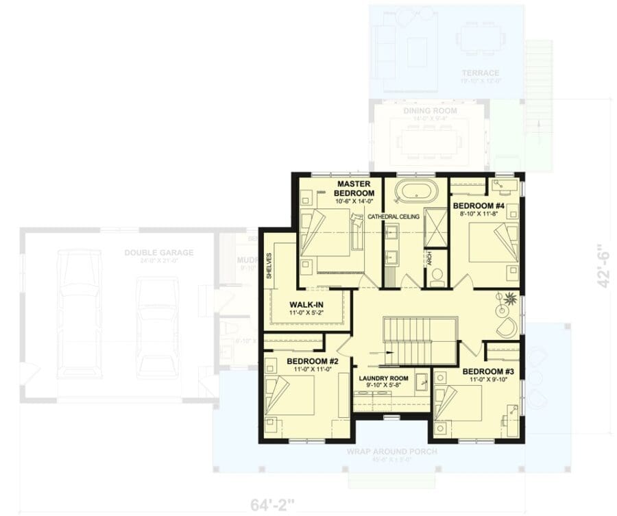
Master Suite Magic
Now, let’s talk about the master suite. This isn’t just a bedroom—it’s a retreat. Tray ceilings add an elegant touch, and a private door leads straight to the back porch.
Imagine stepping out on a crisp morning with a cup of coffee in hand, taking a deep breath before your day begins. Pure bliss.

The walk-in closet is large enough to handle both your wardrobe and your shopping habits.
And because every bedroom in this home includes its own walk-in closet, there’s no fighting for space. (A miracle, if you’ve ever lived with teenagers or roommates.)
When it comes to planning your purchase, this kind of layout is also great for long-term financial stability.
Between low building cost estimator projections and the chance to expand later with that optional lower level, you’re looking at a home that fits not just your lifestyle but your budget strategy.
Outdoor Living – Where Every Season Shines
Now here’s where this modern farmhouse really stands out: outdoor living.
Between the covered porch, the terrace, and the barbecue area, there’s room for everything from backyard barbecues to lazy Sunday naps in the shade.
The rear porch is accessible right from the great room, dining area, and master suite—making it perfect for entertaining or just sneaking out for some quiet time.

Add a few string lights, an outdoor TV, and maybe a firepit, and you’ve got your own mini paradise.
And yes, all that outdoor space might make your home insurance company smile (fewer interior claims from smoke or cooking mishaps, after all).
Plus, with some thoughtful landscaping and a little help from a home remodeling contractor, you can easily turn that backyard into something that boosts your property value even more.
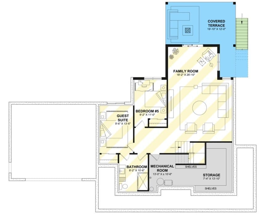
Room to Grow – Optional Lower Level
One of my favorite things about this house plan is flexibility. The 1,324-square-foot optional lower level offers endless possibilities.
Whether you turn it into a cozy guest suite, a movie room, a game zone, or even a second living area—it’s space that grows with you.
It’s also a smart way to build equity. Adding finished square footage increases property value, making it easier to qualify for a home equity loan or refinance mortgage down the road.

Basically, this house gives you options—financially and functionally.
If you’ve been thinking about investment potential, the optional lower level can even double as a rental or Airbnb-style guest space.
It’s the perfect way to help offset mortgage rates while adding long-term value to your property.
Family Flow and Everyday Living
Upstairs, life flows easily. The master suite sits peacefully apart from three secondary bedrooms—each with its own walk-in closet.
A shared bathroom and a dedicated laundry area make family life smoother (and maybe even less chaotic).
If you’re planning to buy with kids, teenagers, or even multi-generational family members, this floor plan keeps everyone connected but still gives each person privacy.

The mix of personal and shared spaces makes the home functional, comfortable, and beautifully balanced.
Living the Dream
I’ll admit it—every time I walk through a beautifully designed modern farmhouse, I start mentally moving my furniture in.
This one, though? It’s not just pretty; it’s practical. With its open layout, thoughtful spaces, and flexibility for expansion, it’s a home that works for nearly every stage of life—and that’s what makes it a rock-solid investment.
The Great Room: Where Style Meets Substance
The great room truly earns its name here. The layout flows seamlessly from kitchen to dining to living area, giving you that sense of space and connection modern homeowners crave.
Picture this: a crackling fire in the stone-clad fireplace, the soft hum of conversation over dinner, and floor-to-ceiling windows bringing in golden afternoon light.

You can decorate it however you like—rustic charm, sleek contemporary, or a cozy blend of both.
With the help of interior design software, you can test different furniture arrangements or even see how that navy blue accent wall would look before committing.
But the beauty isn’t just in the aesthetics—it’s in the way the space adds value.
Open-concept homes like this are known for increasing property value, making them one of the smartest purchases you can make in real estate.
If you ever decide to refinance your mortgage, lenders will look kindly on your home’s high appeal and functional flow.

Smart Spaces for a Smarter Life
This farmhouse doesn’t just stop at beauty—it embraces brains, too. Incorporate smart home technology and you’ve got a home that practically runs itself.
Imagine controlling the thermostat, locks, and lights with your voice, or receiving alerts if something’s amiss.
Pairing these upgrades with the best home security system means peace of mind, whether you’re home or halfway across the globe.
And it’s not just cool gadgets—it’s also a financial plus. Energy-efficient and security-enhanced homes often qualify for better home insurance rates and can help you save long-term.
When you factor in the potential return on investment, it’s hard not to smile knowing your home’s both comfortable and clever.

Bedrooms That Feel Like Personal Retreats
Upstairs, the bedrooms are designed with equal parts comfort and practicality. Each comes with its own walk-in closet (a total win for peacekeeping among family members).
The shared bathroom is conveniently located, and the nearby laundry area means no more hauling baskets up and down the stairs.
The master suite remains the star of the show—tray ceilings, porch access, and a spa-like vibe that feels far above its square footage.
Add a soaking tub, a rainfall shower, and a touch of warm wood for that luxurious farmhouse spa aesthetic.
Now, when it comes to financing all that comfort, having a solid credit score and getting a home loan pre-approval puts you in the best position to buy confidently.

With current mortgage rates always fluctuating, securing the right financing early ensures this dream home doesn’t slip away.
Lower Level Luxury – The Ultimate Bonus
The optional lower level is where things get interesting. This 1,324-square-foot space can easily become a full entertainment zone.
Picture a movie room, a second family lounge, maybe even a small gym or hobby room.
Two additional bedrooms and a full bath make it perfect for guests—or that teen who’s been lobbying for more privacy.
If you’re looking for a way to build equity fast, finishing this space is a great move. Whether you use a home improvement loan or a portion of your home equity loan, the investment often pays off with a boosted property value.

It’s also worth chatting with your real estate agent about how this addition could affect future resale potential.
And because it opens to a covered terrace, it’s an entertainer’s paradise. Add a bar area or a cozy firepit, and suddenly your lower level feels more like a luxury retreat than a basement.
The Garage and Corner-Lot Appeal
Now, let’s talk practicality. The 2-car side-load garage not only offers plenty of storage and easy access—it also adds curb appeal.
Positioned perfectly for a corner lot, it makes your home’s façade shine, keeping the front elevation charming and uncluttered.
It’s those details that matter when it’s time to buy or sell. A well-designed garage layout can improve your property’s appraised value, and if you ever need a building cost estimator to plan expansions, this type of setup tends to simplify budgeting.

Speaking of costs, investing in a solid home warranty can help protect all those smart systems, appliances, and mechanical elements.
It’s one of those “hope-you-never-need-it-but-glad-you-have-it” kind of purchases that can save you headaches later on.
Outdoor Living: Because Life’s Too Short to Stay Inside
From the wraparound porch to the barbecue area, this home celebrates outdoor living.
I can already see family gatherings, smoky barbecue aromas, and kids (or pets) running across the lawn.
These porches and terraces aren’t just lifestyle perks—they’re also value boosters. Thoughtful landscaping and outdoor kitchens are among the top home improvement projects for ROI.

And with a reliable home remodeling contractor, you can easily turn these outdoor areas into magazine-worthy spaces.
If you’re the type who enjoys entertaining or simply relaxing under the stars, this design supports every kind of moment—quiet coffee mornings, weekend barbecues, or late-night conversations by the fire.
Design That Grows With You
One of the best things about this house plan is how it adapts to your life. Whether you’re a first-time buyer or a seasoned homeowner looking for your forever home, it checks every box.
As your family grows, or as your needs shift, the optional lower level gives you flexibility.
You could even transform it into a rentable suite someday—an investment that helps offset future mortgage rates or adds steady income.

It’s also worth noting that features like a dedicated office, multiple bedrooms, and energy-efficient spaces make it easy to refinance mortgage terms later or access better loan options through strong equity.
The design doesn’t just make sense now—it’s a blueprint for lasting financial and lifestyle satisfaction.
Why This Home Is a Wise Investment
Let’s break it down: you’re getting 2,435 square feet of heated living space, up to six bedrooms, and the option for another 1,324 square feet downstairs.
Add to that a 566-square-foot garage and generous outdoor living areas, and you’ve got serious value for the cost.
In a market where buyers are more discerning than ever, homes that blend comfort, beauty, and functionality hold their worth—and often appreciate faster.

If you plan your purchase wisely, maintain good credit, and consider future resale value, this modern farmhouse could become one of the best investments you’ll ever make.
Even small touches like adding smart lighting, keeping up with home maintenance, or upgrading finishes can make a difference in both comfort and equity.
It’s the perfect example of a home that feels like luxury without sacrificing practicality.
At the end of the day, this modern farmhouse isn’t just about walls and square footage—it’s about creating a life you love.
It’s about morning coffee on the porch, laughter echoing from the great room, and evenings spent by the fire while your home quietly works behind the scenes to keep you safe and efficient.

Whether you’re running calculations with a building cost estimator, getting home loan pre-approval, or comparing refinance mortgage options, this design gives you confidence that every penny is well spent.
You’re not just buying a house—you’re investing in peace of mind, comfort, and lasting value.
So go ahead—call that real estate agent, check those mortgage rates, and picture yourself here.
With its blend of charm, convenience, and smart financial potential, this modern farmhouse might just be the best purchase you’ll ever make.
Because sometimes, the perfect investment isn’t in the stock market—it’s the one you get to come home to every single day.
Building or buying a home isn’t just about picking the perfect house plan—it’s also about making smart long-term choices. From comparing mortgage rates to finding a trustworthy real estate agent, every decision adds value. Don’t forget to explore options like home insurance, home warranties, and potential refinance opportunities to protect your investment.
Want to boost your property value? Consider installing solar panels, upgrading to energy-efficient appliances, or integrating a smart home system. Plus, tools like interior design software can help you visualize and plan your dream space before the first brick is even laid.
Find More House Plans
By Bedrooms:
1 Bedroom • 2 Bedrooms • 3 Bedrooms • 4 Bedrooms • 5 Bedrooms • 6 Bedrooms • 7 Bedrooms • 8 Bedrooms • 9 Bedrooms • 10 Bedrooms
By Levels:
By Total Size:
Under 1,000 SF • 1,000 to 1,500 SF • 1,500 to 2,000 SF • 2,000 to 2,500 SF • 2,500 to 3,000 SF • 3,000 to 3,500 SF • 3,500 to 4,000 SF • 4,000 to 5,000 SF • 5,000 to 10,000 SF • 10,000 to 15,000 SF










