6-Bedroom 2-Story Mediterranean Home with Bonus Room and Expansive Storage (Floor Plan)

Specifications:
- 6,320 Sq Ft
- 4 – 6 Beds
- 6.5 Baths
- 2 Stories
- 4 Cars
Welcome to a tour of a home that’s not just a place to live but a place to thrive in style!
Today, we’re diving into the opulent world of a luxury Mediterranean home plan that combines spaciousness with sophistication.
With its contemporary exterior and 6,320 square feet of sheer elegance, this house is less of a building and more of a personal palace.
So, lace up your most comfortable shoes, because we’re about to embark on a grand exploration—no passport required!






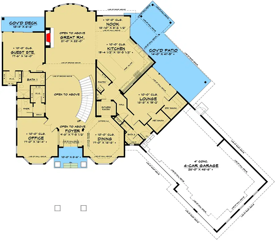
Upon entering this magnificent abode, you are greeted by a grand foyer that boldly declares, “I am not your average home!”
The foyer, complete with a sweeping curved staircase, immediately sets the tone for grandeur and elegance.
To your left, there’s a home office that screams productivity in style—because who wouldn’t want to answer emails and take Zoom calls surrounded by tasteful decor?
To your right, the formal dining room awaits, ready to host dinners that are bound to run late into the night because no one wants to leave the table.
As you move further into the heart of the home, the expansive two-story great room unfolds before you, offering breathtaking views through its towering windows and easy access to multiple outdoor living spaces.
These aren’t just any outdoor spaces; we’re talking about a luxurious 608 square foot covered deck that invites you to lounge, laugh, and make memories under the stars.
It’s the perfect backdrop for both large family gatherings and intimate evenings with close friends.
Now, let’s talk about the kitchen.
This isn’t just a place to cook; it’s a place to create culinary masterpieces.
The sizable kitchen is equipped for all your needs, whether you’re whipping up a quick breakfast or preparing a gourmet meal for a special occasion.

Adjacent lounge areas provide cozy spots to sip on a glass of wine while chatting about your day or planning your next vacation.
And just when you think you’ve seen it all, there’s a surprise near the garage—a wet and dry sauna!
Imagine unwinding after a long day with a soothing steam session right in the comfort of your own home.
Speaking of comfort, the main level also features a guest suite complete with its own 113 square foot private deck, offering privacy and luxury for your overnight guests.
Heading upstairs, the luxury continues unabated.
The upper floor houses the remaining three bedrooms, each a sanctuary of serenity with its own private balcony.
These aren’t just places to sleep; they’re retreats that promise peaceful mornings and nights under starlit skies.
Imagine sipping your morning coffee as the sunrise paints the sky, all from the comfort of your private balcony.
It’s like having a VIP ticket to nature’s daily spectacular.
The crown jewel of the upper level is undoubtedly the deluxe master suite.

It’s not just large; it’s practically a wing of its own.
The suite includes not just a spacious bedroom but also a lavish en-suite bathroom where you can soak away your worries in a tub that might as well have its own zip code.
And let’s not forget the walk-in closets—so roomy you might need a map to navigate them.
But the luxuries don’t end at the bedroom doors.
The upper floor also boasts a bonus room that can be anything you want it to be—a game room, a gym, or a movie theater.
Why go out when all the entertainment you could ask for is right at your fingertips?
Adjacent to this is a generous laundry room, designed to make a typically mundane task feel less like a chore and more like part of a sophisticated lifestyle.
Storage is another highlight of this home, with a 749 square foot storage room located above the garage.
This space is perfect for those who love to collect or need ample room for seasonal decorations, sporting equipment, or even a small workshop.
The possibilities are endless, allowing you to customize this space to suit whatever hobbies or needs your heart desires.

Living in this luxury Mediterranean home means embracing a lifestyle where comfort meets grandeur, where every day feels like a vacation.
Whether it’s the contemporary touches that pepper every corner, the thoughtfully designed private spaces, or the communal areas designed for entertainment and relaxation, this home plan doesn’t just meet expectations—it dares to redefine them.
So, if you’re looking for a home that combines the warmth of Mediterranean charm with the sleekness of modern design, you might just have found your perfect match.
Welcome home!
Building or buying a home isn’t just about picking the perfect house plan—it’s also about making smart long-term choices. From comparing mortgage rates to finding a trustworthy real estate agent, every decision adds value. Don’t forget to explore options like home insurance, home warranties, and potential refinance opportunities to protect your investment.
Want to boost your property value? Consider installing solar panels, upgrading to energy-efficient appliances, or integrating a smart home system. Plus, tools like interior design software can help you visualize and plan your dream space before the first brick is even laid.
Find More House Plans
By Bedrooms:
1 Bedroom • 2 Bedrooms • 3 Bedrooms • 4 Bedrooms • 5 Bedrooms • 6 Bedrooms • 7 Bedrooms • 8 Bedrooms • 9 Bedrooms • 10 Bedrooms
By Levels:
By Total Size:
Under 1,000 SF • 1,000 to 1,500 SF • 1,500 to 2,000 SF • 2,000 to 2,500 SF • 2,500 to 3,000 SF • 3,000 to 3,500 SF • 3,500 to 4,000 SF • 4,000 to 5,000 SF • 5,000 to 10,000 SF • 10,000 to 15,000 SF










