6-Bedroom 2-Story Luxury Modern Farmhouse with 3-Car Front Garage (Floor Plan)

specifications:
- 4,184 sq. ft.
- 6 Beds
- 5 Baths
- 2 Stories
- 3 Cars
Let’s be honest—some homes make you stop scrolling, zoom in, and whisper, “Okay, I could live there.”
This modern farmhouse house plan? Yeah, it’s that kind of home.
It’s got all the charm of a countryside retreat blended with sleek modern features that make you want to host every holiday dinner for the rest of time.
With an open layout, a cozy fireplace, split bedrooms, and even a barbecue porch (yes, please!), this plan hits the sweet spot between elegance, comfort, and practicality.
So grab a cup of coffee—this is the kind of home that deserves a full tour.



The Open Layout: Where Family and Function Flow Together
The beauty of an open layout is that it feels like breathing room for your soul. The great room, kitchen, and dining area blend effortlessly, creating a space that invites conversation and connection.
You can keep an eye on your kids’ homework progress or laugh with guests while you stir something delicious on the stove.
And speaking of stoves—the kitchen here is pure luxury. Two islands (yes, two!) make this a chef’s paradise. There’s plenty of room for meal prep, serving appetizers, or pretending you’re on your own cooking show.
The kitchen sink faces the family room fireplace, so even washing dishes feels cozy. Imagine watching flames dance while cleaning up after a weekend barbecue—that’s what I call inspired living.
Of course, when you’re considering a purchase like this, it’s smart to keep an eye on mortgage rates.
The good news? Homes with an open, modern design often boost property value because they appeal to so many buyers. It’s not just a house—it’s an investment in lifestyle and future equity.
Light, Air, and Plenty of “Wow” Moments
What’s better than natural light flooding your home from every angle? Oversized windows make the whole interior glow with warmth.
The walls of glass invite the outdoors in, letting you enjoy morning sunlight or evening views of your backyard while lounging in your favorite chair.
If you’ve ever used interior design software, you’ll know how lighting can make or break a space. Here, you don’t even need to tweak the brightness settings—this home does it for you naturally.
Those windows not only elevate the aesthetic but also enhance energy efficiency, which could help you save on utilities (and maybe even get a better deal on your home insurance).
And let’s not forget—more natural light often translates to better moods. Studies say sunlight can boost happiness levels, but I say this house could make anyone smile just by walking in the door.

The Master Suite: Where Relaxation Meets Luxury
Ah, the master suite—a sanctuary, a retreat, a personal escape. This plan gives it all that and more.
With a tray ceiling adding a touch of architectural elegance and a private door to the back porch, this bedroom was designed for lazy Sunday mornings and starry summer nights.
The ensuite bathroom is a full-on spa experience. There’s a luxurious wet room, a dressing area, and even a pass-thru closet that connects directly to the laundry room.
How’s that for convenience? The last thing anyone wants is to haul clothes across the house after a long day.
If you’re thinking about home improvement loans or planning to buy new furnishings, this master suite makes it easy to justify the splurge. It’s not just a bedroom—it’s your personal five-star suite, complete with built-in tranquility.
Smart Design for the Modern Family
Homes today need to multitask just as much as we do. That’s why this plan includes practical spaces like a walk-in food pantry, a butler’s pantry, and flexible rooms that can serve as a home office, guest suite, or cozy den.
Need a quiet place for Zoom meetings or a little peace from family chaos? Done.
The house even has options for smart home technology—perfect if you’re considering the best home security system or want to automate lighting, climate, and locks.
Living smart isn’t just trendy—it’s a solid way to enhance your property value while keeping your family safe and comfortable.
For anyone planning this kind of dream build, getting home loan pre-approval is a must. It helps you understand your budget, interest options, and what kind of upgrades you can afford.
With mortgage rates fluctuating, locking in a good rate can make a world of difference—especially when you’re eyeing a home that feels this perfect.
Outdoor Living That Steals the Show
If the heart of this home is the great room, then the soul lives outdoors. This house plan doesn’t just nod to outdoor living—it celebrates it. A spacious covered deck and a dedicated barbecue porch make entertaining effortless.

Picture this: sizzling steaks on the grill, kids playing in the yard, and soft music floating through open glass doors.
Outdoor living spaces like these add serious property value and lifestyle appeal. Whether you’re enjoying morning coffee on the porch or hosting a weekend cookout, this setup encourages you to enjoy the best of every season.
Thinking long-term? Features like covered patios and porches often reduce maintenance costs and protect outdoor furniture—small details that make big differences for homeowners (and your home warranty will thank you).
Bonus Spaces and Future Possibilities
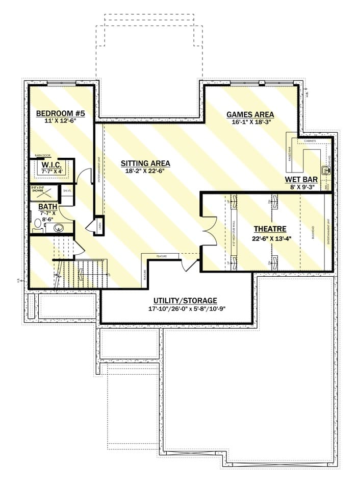
Who doesn’t love extra space that grows with you? This house plan includes an optional bonus room upstairs—perfect for a game room, hobby area, or media lounge.
You could even turn it into a fifth bedroom, a home theatre, or a rec room complete with a wet bar. When fully finished, this level offers over 1,500 extra square feet of living space.
If you’ve got dreams of customizing, this is your playground. A home remodeling contractor could easily help tailor the bonus space to your family’s needs—whether that’s a guest suite for visiting relatives or a home gym to finally ditch that membership.
And let’s be real: building or renovating always involves costs. A building cost estimator comes in handy here, helping you plan every dollar wisely.
Combine that with strategic financing, like a home equity loan or refinance mortgage, and suddenly expanding your dream home becomes a lot more doable.
Side-Load Garage and Corner-Lot Charm
The side-load garage gives this home major curb appeal—perfect for a corner lot. It keeps the front façade clean and symmetrical while offering convenient access to the interior. You can pull in quietly after a late-night grocery run without waking anyone.
This layout is ideal for families who love a balance between accessibility and aesthetics.
And if you’re thinking resale (which any savvy real estate agent would recommend), corner-lot homes tend to draw more attention thanks to better visibility and larger outdoor areas.
When you factor in design, layout, and location, you’re not just looking at a house—you’re securing a lifestyle that makes everyday living feel luxurious.

Planning, Financing, and Dreaming Ahead
Before diving into building, it’s wise to line up your finances and protection plans. A home loan pre-approval helps set realistic goals, while home insurance and a home warranty safeguard your investment once it’s built.
Add in the right mortgage rates and maybe a little boost from your credit score, and you’ll be well on your way to calling this modern farmhouse your own.
When all the pieces come together—the open layout, natural light, stunning master suite, smart home possibilities, and flexible living spaces—it’s easy to see why this house plan stands out. It’s not just a blueprint; it’s a foundation for better living.
The Ultimate Modern Farmhouse Retreat – Where Comfort Meets Design
If the first half of this house had you grinning, buckle up—because the rest of this modern farmhouse takes everything you love and turns it up a notch.
We’re talking bright bedrooms, an upstairs retreat that doubles as a fun zone, a lower level ready for your imagination, and a layout that balances family living with luxurious privacy.
This is where comfort meets design—and every square foot feels intentional.
Upstairs Comfort: A Haven for Every Family Member
Head upstairs, and you’ll find that this modern farmhouse doesn’t just cater to parents—it’s designed for everyone.
Four beautifully sized bedrooms wrap around a bonus room that opens to a balcony.
This clever arrangement creates a sense of connection while giving everyone their own space.
Each bedroom has its own walk-in closet (finally, storage wars are over), and the large windows flood every corner with natural light.
The bonus room at the center can serve as a play area, a study space, or even a family movie zone. It’s that perfect spot where laughter happens, homework gets done, and memories are made.
If you ever decide to upgrade this space, you can call a home remodeling contractor to add custom cabinetry or built-in seating.

And with rising property values, those updates aren’t just about beauty—they’re a smart investment that pays off when it’s time to buy or sell again.
Bonus Room Possibilities: Where Function Meets Fun
Let’s talk about the optional bonus area—one of the most exciting features in this house plan.
Whether you’re envisioning a game room, craft studio, or a peaceful reading retreat, the possibilities are endless. When you step into this flexible space, you can truly make it your own.
Maybe you’ll create a home gym with the latest smart home technology, or a personal library for those quiet weekends.
If you’re thinking about finishing this bonus space later, you could use a building cost estimator to plan your budget accurately.
And if finances are tight, a home equity loan can be a great way to bring those dreams to life without straining your wallet.
This home plan grows with you—so whether you’re expanding your family, starting a hobby, or just craving extra room for guests, the design is ready to adapt.
Lower-Level Luxury: Expand Your Living Space
Now, let’s go below the main floor—where creativity meets practicality. The optional lower level offers over 1,500 square feet of additional living space.
Imagine a full home theatre for movie nights, a rec room with a wet bar for friendly gatherings, or a guest suite that feels like its own little apartment.
You could even design a private office space, perfect for remote work or running a small business from home.
With thoughtful upgrades, you’ll boost not only your comfort but also your property value—a move any good real estate agent would applaud.
If you’re crunching numbers, tools like a building cost estimator or a chat with your lender about a refinance mortgage can help make these enhancements fit into your financial plan.

And since this home is already built with luxury in mind, every dollar you put in will elevate its overall worth.
The Master Suite Retreat: Privacy and Perfection
The master suite in this modern farmhouse deserves its own standing ovation. With a stunning tray ceiling, private porch access, and a spa-worthy ensuite, it’s the kind of space that makes you look forward to bedtime.
The pass-thru closet connecting directly to the laundry room is a stroke of genius—it saves time, steps, and stress. The wet room in the ensuite adds a touch of resort-style indulgence right at home.
If you love interior design (and who doesn’t?), you can use interior design software to experiment with tile patterns, lighting, and layouts to personalize the space.
And let’s not forget—luxury like this deserves protection. A solid home insurance plan and home warranty keep your dream suite (and your peace of mind) safe from unexpected surprises.
The Heart of the Home: A Kitchen That Brings People Together
Downstairs, the kitchen remains the soul of this home. Two large islands give you all the prep space you could dream of—and then some.
Whether you’re hosting a family brunch or sneaking a midnight snack, this layout makes every moment flow effortlessly.
The walk-in food pantry and butler’s pantry are both functional and stylish. They make it easy to store supplies while keeping the kitchen spotless and organized.
The open connection between the kitchen, dining area, and family room ensures you’re never cut off from the action—even while cooking.
And let’s not forget the view! Thanks to the walls of glass and oversized windows, you can enjoy a perfect sightline to the fireplace, porch, and backyard.
That openness adds light, depth, and a sense of calm to your everyday routine.

If you’re planning to purchase high-end appliances or upgrade finishes, it might be wise to look into home improvement loans. They let you make those enhancements now, while keeping your finances manageable.
Outdoor Living: The Perfect Blend of Nature and Comfort
Step outside, and this modern farmhouse proves that life’s best moments often happen outdoors.
The covered deck and barbecue porch are ideal for everything from summer parties to quiet evenings under the stars. You can easily set up a dining area, a fire pit, or even an outdoor kitchen for those weekend feasts.
Outdoor spaces like these don’t just add beauty—they boost property value. And if you’re a fan of long-term planning, keeping your outdoor features covered by home insurance or a home warranty ensures your investment stays protected for years to come.
With smart lighting, motion sensors, and maybe the best home security system installed, your outdoor haven can feel as safe as it is stylish. It’s the kind of setting that makes you want to stay home more—and who could blame you?
Side-Load Garage: Designed for Convenience and Curb Appeal
One of the details I love most about this plan is the side-load garage. It keeps the front of the home beautifully symmetrical while giving you easy access from the side.
Perfect for corner lots, it maximizes your yard space and enhances curb appeal at the same time.
It’s practical too—especially when you’re unloading groceries or dashing inside during a rainstorm. Small design choices like this separate good floor plans from truly great ones.
And if you ever decide to sell, your real estate agent will love pointing out this garage design to future buyers.
Why This Modern Farmhouse Stands Out
This isn’t just another floor plan—it’s a thoughtful combination of beauty, efficiency, and livability. The open-concept design invites connection, the master suite pampers with privacy, and the outdoor areas extend your living space beyond four walls.
From the inviting great room to the flexible upper level, this home embodies balance. It’s elegant but warm, luxurious but family-friendly.

And with the right planning—like monitoring mortgage rates, maintaining a strong credit score, and getting your home loan pre-approval—owning a home like this is more attainable than you might think.
It’s not just about building a house. It’s about building a life—filled with good food, laughter, and the kind of comfort that makes every day feel like home.
When you step back and look at the full picture, this modern farmhouse house plan isn’t just well-designed—it’s emotionally satisfying. It’s where modern comfort meets timeless charm, where family gatherings blend with peaceful retreats.
And with smart planning—whether it’s managing a refinance mortgage, using a building cost estimator, or chatting with your real estate agent about future investment opportunities—you can turn this plan into a lifelong haven.
Because at the end of the day, a house like this isn’t just something you buy. It’s something you cherish. It’s where life unfolds beautifully, one room—and one memory—at a time.
Building or buying a home isn’t just about picking the perfect house plan—it’s also about making smart long-term choices. From comparing mortgage rates to finding a trustworthy real estate agent, every decision adds value. Don’t forget to explore options like home insurance, home warranties, and potential refinance opportunities to protect your investment.
Want to boost your property value? Consider installing solar panels, upgrading to energy-efficient appliances, or integrating a smart home system. Plus, tools like interior design software can help you visualize and plan your dream space before the first brick is even laid.
Find More House Plans
By Bedrooms:
1 Bedroom • 2 Bedrooms • 3 Bedrooms • 4 Bedrooms • 5 Bedrooms • 6 Bedrooms • 7 Bedrooms • 8 Bedrooms • 9 Bedrooms • 10 Bedrooms
By Levels:
By Total Size:
Under 1,000 SF • 1,000 to 1,500 SF • 1,500 to 2,000 SF • 2,000 to 2,500 SF • 2,500 to 3,000 SF • 3,000 to 3,500 SF • 3,500 to 4,000 SF • 4,000 to 5,000 SF • 5,000 to 10,000 SF • 10,000 to 15,000 SF










