6-Bedroom 2-Story House with Elevator and Basement Options (Floor Plan)

Specifications:
- 3,983 Sq Ft
- 4 – 6 Beds
- 4.5 – 6.5 Baths
- 2 Stories
- 3 Cars
Some homes make you pause.
You know, the kind where you stop mid-scroll, blink, and think—wait, this might be the one.
This 3,983-square-foot hillside house plan did exactly that to me.
With its 4-bedroom layout, optional elevator, expandable basement, and a layout designed to hug a sloped lot, it’s as practical as it is charming.
Let’s break it all down and walk through a home that’s truly built for the long game.







Tailored for Hillside Living
First things first: this home was made for the slope.
The entire layout is optimized for hillside lots, which means instead of working against the landscape, it flows with it—maximizing both design potential and scenic views.
It’s the kind of thoughtful planning that improves your property value right off the bat.

And if you’re thinking long-term (like most smart buyers do), you’ll appreciate how this lot-specific plan opens the door to stronger investment opportunities and easier home equity loan access in the future.
Main-Level Master Suite That Feels Like a Private Retreat
Tucked away from the busier parts of the home, the main-level master suite offers comfort and tranquility.
With a stylish tray ceiling and direct access to the covered porch, it’s practically begging you to grab a cup of coffee and start your day slow.

But the real showstopper?
That luxurious ensuite bath.
With dual vanities, a two-sided shower, and a massive walk-in closet that’s actually divided into neat sections, this space is a dream.
It’s not just great for daily living—it also adds serious appeal when going for home loan pre-approval or working with a real estate agent to estimate future resale potential.

Spacious Kitchen With Walk-In Pantry and Seamless Flow
Let’s head to the kitchen—the MVP of any floor plan.
Positioned within view of both the vaulted great room and the dining area, this kitchen allows you to chat with guests, oversee homework, or keep an eye on game night without skipping a beat.
It features abundant counter space and a large walk-in pantry.
Perfect for bulk shopping or organizing your gadgets, it’s also ideal for adding modern smart home technology—like motion-sensor lighting, smart refrigerators, or even touchless faucets.

If you ever decide to upgrade, this space is a great candidate for enhancements with a home remodeling contractor, or even a simple DIY reimagining with interior design software.
The layout is built to grow with you.
Vaulted Great Room With a Two-Sided Fireplace
Now, onto the great room—a vaulted-ceiling marvel that radiates warmth and comfort.

Anchoring the space is a striking two-sided fireplace that it shares with the dining area.
It adds ambiance, visual interest, and a cozy focal point that makes the whole space feel welcoming year-round.
This design isn’t just a win aesthetically—it’s a smart play for future refinance mortgage discussions.
High-quality finishes and architectural elements like this raise both live-in enjoyment and appraisal value.

It’s a great example of how form and function work hand in hand in this plan.
Main Floor Guest Room With Private Bath
Still on the main level, we’ve got a guest bedroom that feels like it belongs in a boutique hotel.
With its own full bath and walk-in closet, it offers privacy and comfort for overnight visitors or long-term family stays.

Not expecting many guests?
No problem—this room can easily become a home office, study, or den.
That flexibility is one of the reasons this floor plan works so well for different life stages.
And whether you’re reviewing your home insurance policy or considering resale, having extra functional rooms never hurts.

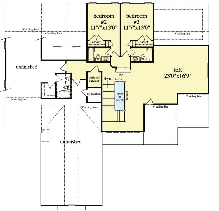
Upstairs
Upstairs, you’ll find two full bedroom suites—each with its own bathroom—and a spacious loft area.
Whether you need extra rooms for kids, guests, or hobbies, this floor delivers privacy, space, and versatility.
The loft area is perfect for a second living room, gaming space, or reading corner.

It’s features like these that make the home ideal for modern families, roommates, or even rental income possibilities.
All of which can improve your financial profile—something lenders love to see when calculating your credit score for future mortgage rate improvements.
Terrace Level With Room to Expand
Now let’s talk basement—but not the scary, cobwebby kind.

This is a terrace level walk-out with options galore.
Want a home theater?
Go for it.
Need two more bedrooms, a game room, or even a gym?

This level makes it all possible.
You don’t need to finish it right away either.
Use a building cost estimator to plan for a future phase, or take out a home improvement loan to knock it out all at once.
However you approach it, this space increases your square footage and your home’s value exponentially.

It also gives you more flexibility when you decide to buy now and expand later.
That’s future-proof living, and it gives your investment more weight over time.
Optional Elevator
Let’s be honest, an elevator in your house sounds like something out of a movie—but this plan offers that option in the most practical way.

Whether for accessibility, aging in place, or just carrying that heavy laundry basket without breaking your back, this feature is a game-changer.
Prefer not to install the elevator?
Use the shaft area as a small office, extra storage, or even a pet retreat (hey, why not?).
It’s rare to find floor plans that plan this far ahead—and it makes conversations about future upgrades with your home warranty provider or contractor so much easier.

Three-Car Garage That Actually Fits Everything
Gone are the days of playing bumper cars in the driveway.
With a three-car garage, this home gives you space for vehicles, bikes, tools, storage—you name it.
Whether you’re a weekend DIYer, a gearhead, or someone who just loves a clutter-free garage, this setup is a dream.

And don’t underestimate how much garage space can affect home insurance quotes or boost your curb appeal if you decide to sell.
A well-organized, generously sized garage is often a hidden gem in the world of homeownership.
Covered Porch Perfection for Outdoor Living
There’s just something about a covered porch.
It makes your home feel grounded—like you’ve got your own little corner of the world to breathe in.

This floor plan includes porch access directly from the master suite and main living areas, which means indoor-outdoor living is as easy as opening a door.
It’s also the perfect place to install the best home security system, giving you peace of mind without sacrificing your view.
A smart lock here, a camera there, and you’re set for both comfort and safety.
Whether you’re a first-time buyer, a seasoned homeowner, or someone dreaming of their forever home, this plan is designed to flex with your life.

It’s beautiful, functional, and full of little touches that make it livable now and profitable later.
So go ahead—crunch the numbers, talk to your lender, or even refinance your current property to help fund this new chapter.
Whether you’re planning to purchase this year or next, homes like this one don’t come around often.
This is the kind of floor plan that works just as hard as you do.
Building or buying a home isn’t just about picking the perfect house plan—it’s also about making smart long-term choices. From comparing mortgage rates to finding a trustworthy real estate agent, every decision adds value. Don’t forget to explore options like home insurance, home warranties, and potential refinance opportunities to protect your investment.
Want to boost your property value? Consider installing solar panels, upgrading to energy-efficient appliances, or integrating a smart home system. Plus, tools like interior design software can help you visualize and plan your dream space before the first brick is even laid.
Find More House Plans
By Bedrooms:
1 Bedroom • 2 Bedrooms • 3 Bedrooms • 4 Bedrooms • 5 Bedrooms • 6 Bedrooms • 7 Bedrooms • 8 Bedrooms • 9 Bedrooms • 10 Bedrooms
By Levels:
By Total Size:
Under 1,000 SF • 1,000 to 1,500 SF • 1,500 to 2,000 SF • 2,000 to 2,500 SF • 2,500 to 3,000 SF • 3,000 to 3,500 SF • 3,500 to 4,000 SF • 4,000 to 5,000 SF • 5,000 to 10,000 SF • 10,000 to 15,000 SF










