5-Bedroom Two-Story Contemporary Home with Angled Garage (Floor Plan)

Specifications:
- 6,407 Sq Ft
- 5 Beds
- 5.5 Baths
- 2 Stories
- 3 Cars
There are house plans… and then there are house plans.
This 6,407 square foot, two-story contemporary layout is the kind of design that makes you want to start picking out light fixtures before you’ve even picked out a lot.
With 5 bedrooms, 5.5 bathrooms, and a sleek angled 3-car garage that turns drive-up appeal into a full-on event, this floor plan doesn’t whisper luxury—it practically shouts it from the rooftop (which peaks at 28 feet, 3 inches, in case you’re wondering).
Ready for a tour?
Let’s walk through this floor plan and see why it might just be your perfect match.






A Floor Plan That Makes an Entrance
The first thing you’ll notice?
That angled garage.
It’s not just a practical place to store your cars—it’s a design feature that immediately sets the tone.
Positioned in a front-facing courtyard style, it offers 1,002 square feet of space for vehicles, storage, or your dream workshop.
And the way it anchors the home’s layout?
Genius.
Walk up to the covered front porch—134 square feet of welcome—and it’s clear this house was made to impress.
Not just guests, but your future self too.
You know, the one who’s already checking mortgage rates and researching the best way to finance a forever home.
Main Floor Magic
Step inside the main level, and you’re greeted by an open-concept layout that’s anything but boring.
Spanning a generous 3,497 square feet, the first floor is where luxury meets livability.
Living spaces are open yet defined, creating a sense of connection while still giving each room its own identity.
The living room takes full advantage of the home’s broad footprint, offering plenty of space to stretch out, host, or just binge-watch something under a cozy throw.
Light pours in through oversized windows, creating a space that feels as bright and welcoming as your favorite café.
Whether you’re buying this home for your family or as an investment, the main level floor plan makes a solid case for both style and long-term property value.
A Floor Plan Centerpiece
Let’s talk kitchen—because in this home, it’s not just a room, it’s a statement.
Thoughtfully positioned and generously sized, the kitchen is the heart of the main level.
With tons of counter space, a walk-in pantry, and a massive island perfect for entertaining or casual dining, this layout has culinary masterpiece written all over it.
Thinking about smart home technology?
There’s plenty of room to incorporate it here—from smart ovens and lighting to touchless faucets and AI-powered appliances.
If you’ve been comparing home improvement loans to fund your dream kitchen, rest assured—this plan has the bones to build something amazing.

And let’s not forget the proximity to the dining area, which flows naturally from the kitchen for a connected, seamless feel.
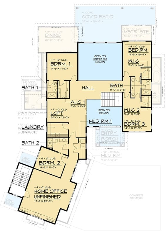
Bedrooms That Make Privacy a Priority
The main floor also houses the primary suite—a spacious retreat that offers privacy without disconnecting you from the heart of the home.
Think high ceilings, lots of natural light, and enough room to do yoga without bumping into a dresser.
The attached primary bathroom?
Pure luxury.
A soaking tub, walk-in shower, dual vanities, and all the spa-like touches you’d expect from a high-end layout.
Add a home warranty to protect your fixtures and finishes, and you’re all set.
Upstairs, the floor plan includes four more bedrooms, each with access to its own full bathroom.
No more morning traffic jams or awkward hallway dance-offs.
Everyone has space to breathe, get ready, and retreat when needed.
And if you’re buying this as a family home?
It’s ideal.
If you’re investing in rental potential or future resale?
It’s even better.
Second Story = Endless Possibilities
The upper floor stretches across 2,910 square feet and is anything but secondary.
While the bedrooms occupy a good portion of this level, there’s still space left over for a game room, home office, media lounge, or workout area.
The beauty of this floor plan is in its flexibility.
Whether you’re planning to refinance your mortgage later to build out some upgrades or using your home equity loan to create the ultimate teen hangout space, the second floor lets you think big.
And because the upper level is structurally sound and well-positioned in the overall layout, you won’t have to worry about odd traffic flows or wasted corners.
It’s all useful space—designed with purpose.
A Covered Patio That Extends the Living Space
One of the standout features of this floor plan is the 612-square-foot covered patio, just off the rear of the home.
Whether you’re sipping coffee in the morning or hosting a full-blown summer party, this outdoor living space is everything.

You could add a built-in grill, a TV, or even an outdoor fireplace—whatever your style, the space is there.
This area is tailor-made for upgrades, and if you’re working with a home remodeling contractor, they’ll love how customizable this section is.
And yes, installing the best home security system outside (and in) is always a wise choice, especially when you’ve built something this beautiful.
Layout That Supports Smart Financial Decisions
Beyond good design, this house plan supports smart financial planning.
Whether you’re looking to buy now and refinance later, or get your home loan pre-approval rolling, this home fits a wide range of financial strategies.
Want to use a building cost estimator to calculate construction expenses?
You’ll see that for 6,407 square feet of livable space—plus that oversized garage and covered patio—the value per square foot is pretty impressive.
Especially when you factor in the long-term investment potential of a design like this.
And because it includes energy-efficient features and modern construction options, you could even boost your credit score over time by managing utilities and updates wisely.
Angled Garage That Does More Than Park Cars
Circling back to one of the floor plan’s most defining features—the angled 3-car garage.
This isn’t just about curb appeal (although it has that in spades).
It’s about smart space use.
Positioned in a way that adds architectural interest while maximizing the front courtyard, this garage makes your arrival feel intentional.
It also offers more privacy from the street and reduces that “giant wall of garage” look you often get with other designs.
And at 1,002 square feet, it’s not just vehicle storage.
It’s a place for hobbies, storage, or even that home gym you keep promising yourself you’ll start using.
Whether you’re building your dream home now or planning for the future, this 2-story, 5-bedroom layout grows with your needs.
From young families to empty nesters, from first-time buyers to seasoned real estate investors, this floor plan delivers on every front.
You get room to expand, space to relax, and smart design choices that add comfort and value.
And let’s be honest—when you can blend gorgeous contemporary aesthetics with financial practicality, why wouldn’t you?

This isn’t just a house.
It’s an opportunity to live better, smarter, and with way more closet space.
So if you’re looking to buy, build, or upgrade, this 6,407 sq ft floor plan might just be the best investment you make all year.
Just remember to invite me to the housewarming party—I’ll bring the snacks.
Building or buying a home isn’t just about picking the perfect house plan—it’s also about making smart long-term choices. From comparing mortgage rates to finding a trustworthy real estate agent, every decision adds value. Don’t forget to explore options like home insurance, home warranties, and potential refinance opportunities to protect your investment.
Want to boost your property value? Consider installing solar panels, upgrading to energy-efficient appliances, or integrating a smart home system. Plus, tools like interior design software can help you visualize and plan your dream space before the first brick is even laid.
Find More House Plans
By Bedrooms:
1 Bedroom • 2 Bedrooms • 3 Bedrooms • 4 Bedrooms • 5 Bedrooms • 6 Bedrooms • 7 Bedrooms • 8 Bedrooms • 9 Bedrooms • 10 Bedrooms
By Levels:
By Total Size:
Under 1,000 SF • 1,000 to 1,500 SF • 1,500 to 2,000 SF • 2,000 to 2,500 SF • 2,500 to 3,000 SF • 3,000 to 3,500 SF • 3,500 to 4,000 SF • 4,000 to 5,000 SF • 5,000 to 10,000 SF • 10,000 to 15,000 SF










