5-Bedroom Dual-Story Modern Farmhouse with Angled Garage (Floor Plan)

Specifications:
- 3,728 Sq Ft
- 4 – 5 Beds
- 5.5 Baths
- 2 Stories
- 2 Cars
When I first looked at this modern farmhouse floor plan, I had that “this is the one” feeling.
With 3,728 square feet of thoughtfully designed living space, it’s big enough to feel luxurious yet smartly laid out so nothing is wasted.
It’s the kind of home where I can already picture family gatherings, lazy Sundays, and even those small everyday routines feeling more special.




The Angled Garage That Adds Character and Function
I have to start with the angled two-car garage.
It doesn’t just look good—it also makes pulling in and out easier, especially if you’ve ever had to play bumper-car maneuvers in a straight driveway.
From there, you step into a mudroom, which is basically the unsung hero of any house.

Shoes, backpacks, sports gear, groceries—you name it, the mudroom swallows it up.
And tucked right off that mudroom?
A walk-in pantry big enough to store everything from bulk snacks to the gadgets you swore you’d use.
This design choice isn’t just about convenience.

It’s the kind of detail that improves daily life while also protecting property value.
If I ever decided to buy or sell a house like this, I know a real estate agent would point out how practical features like this pantry are worth their weight in gold.
A Great Room That Soars Two Stories High
Walking further inside, the great room is where the wow-factor really hits.

With ceilings that soar two stories, this space feels grand without being cold.
Natural light pours through the tall windows, and I can already picture evenings with the fireplace crackling and the open-concept flow keeping everyone connected.
The great room blends seamlessly into the island kitchen and dining area.
Imagine cooking while chatting with guests or watching kids finish homework at the island.

It’s the heart of the home, made even better because it opens onto the rear screened porch.
That indoor-outdoor connection makes it feel like the living space extends beyond the walls, which is something every homebuyer is after.
And honestly, if you’ve ever dabbled with interior design software, this kind of open layout is like a blank canvas.
You can play with colors, furniture layouts, and lighting until you find the vibe that makes it truly yours.

A Primary Suite That Feels Like a Retreat
The main-level primary suite is nothing short of a sanctuary.
Tucked away from the rest of the house, it gives me that sense of privacy and calm I crave at the end of the day.
The bathroom is spa-like, complete with dual vanities, a soaking tub, and a walk-in shower that makes me want to throw away my gym membership.

Even more thoughtful is the direct laundry access.
No lugging baskets up and down the stairs—just a few steps from closet to washer and dryer.
It’s such a small detail, but when you live in a house, those conveniences matter.
And if you’ve ever thought about long-term investment or even refinance mortgage options, features like this are exactly what keep a home desirable years down the road.

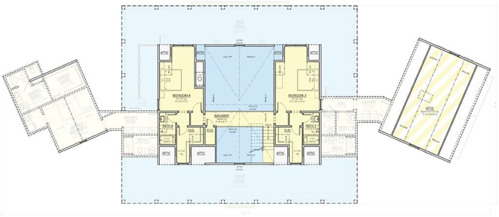
Secondary Bedrooms That Don’t Feel Secondary
Upstairs, there are three more bedrooms, and each one feels generous, not like an afterthought.
Every bedroom has its own walk-in closet and private bath access.
That means no more morning fights over bathroom space, and for guests, it feels like they’re staying in their own suite.

There’s also an open loft upstairs—a flexible space that can shift with your life.
It could be a play area, a teen hangout, or even a casual family lounge.
Add in the bonus attic storage, and this level of the house is both practical and fun.
I know when buyers go through home loan pre-approval, they’re looking for homes that adapt to different stages of life.

These bedrooms and loft are a perfect example of flexibility baked into the floor plan.
Porches That Expand Everyday Living
Porches are one of my favorite features in any farmhouse design, and this plan doesn’t disappoint.
There’s the inviting front porch that gives curb appeal and sets the tone as you walk in.

And then there’s the rear screened porch, which is basically a second living room.
It’s a place to sip morning coffee, enjoy dinner on a summer evening, or just sit and watch the rain without getting wet.
These porches don’t just add charm—they extend the home’s usable space.
From an investment standpoint, they increase the sense of livable square footage without adding building costs to the structure itself.

It’s one of those things that improves both daily life and resale value.
A Flex Room That Works Hard
On the main level, the flex room is one of the most underrated spaces in this plan.

Flex is code for “do whatever you want.”
It could be a home office, which is more important than ever.
It could be a library, a music room, or even a guest bedroom if you need it.

I love knowing that if life changes—new job, kids growing up, or even parents moving in—this room can change right along with it.
It’s adaptability that matters when you think about buying with long-term goals in mind.
Even the best home security system or smart home technology can’t beat the value of a floor plan that evolves with you.

Details That Make Life Easier
This modern farmhouse doesn’t just win on big-ticket items like the great room and primary suite.
It’s the everyday details that make it special.
The split-bedroom design means privacy where you want it.

The angled garage makes maneuvering easier.
The dual laundry access adds efficiency.
Even the attic storage solves the eternal “where do I put the holiday decorations?” problem.

When you think about the purchase of a home, these small features add up.
They help protect property value, they make living easier, and they even reduce the need for costly home remodeling contractors down the road.
Instead of taking out home improvement loans to fix what’s missing, you’re already set up with the right design.

At the end of the day, this farmhouse floor plan feels like more than just a house.
It feels like a smart purchase and a sound investment.
Between the angled garage, soaring great room, spa-worthy primary suite, and flexible upstairs layout, it’s built for the way people actually live.

And when you factor in practical considerations—mortgage rates, home insurance, even the potential for a home equity loan down the road—it makes even more sense.
This is the kind of design that holds its value, whether you’re living in it for decades or eventually working with a real estate agent to sell.
For me, the appeal is simple: it’s a home that balances beauty and function, style and convenience.
And honestly, I’d buy it just for the joy of walking into that two-story great room every morning.
Building or buying a home isn’t just about picking the perfect house plan—it’s also about making smart long-term choices. From comparing mortgage rates to finding a trustworthy real estate agent, every decision adds value. Don’t forget to explore options like home insurance, home warranties, and potential refinance opportunities to protect your investment.
Want to boost your property value? Consider installing solar panels, upgrading to energy-efficient appliances, or integrating a smart home system. Plus, tools like interior design software can help you visualize and plan your dream space before the first brick is even laid.
Find More House Plans
By Bedrooms:
1 Bedroom • 2 Bedrooms • 3 Bedrooms • 4 Bedrooms • 5 Bedrooms • 6 Bedrooms • 7 Bedrooms • 8 Bedrooms • 9 Bedrooms • 10 Bedrooms
By Levels:
By Total Size:
Under 1,000 SF • 1,000 to 1,500 SF • 1,500 to 2,000 SF • 2,000 to 2,500 SF • 2,500 to 3,000 SF • 3,000 to 3,500 SF • 3,500 to 4,000 SF • 4,000 to 5,000 SF • 5,000 to 10,000 SF • 10,000 to 15,000 SF










