5-Bedroom Dual-Story Modern Farmhouse with Dual 2-Car Garages (Floor Plan)

Specifications:
- 3,872 Sq Ft
- 5 Beds
- 4.5 Baths
- 2 Stories
- 4 Cars
You know that feeling when you walk into a place and instantly feel like taking your shoes off and staying forever?
That’s this house.
This exclusive 5-bedroom modern farmhouse doesn’t just raise the bar—it is the bar.
With its dreamy porch, elegant features, smart layout, and just the right amount of Southern charm, this 3,872-square-foot beauty might just convince you that yes, you do need two garages and a pet shower.
Let’s take a tour of what could be the smartest purchase of your life.


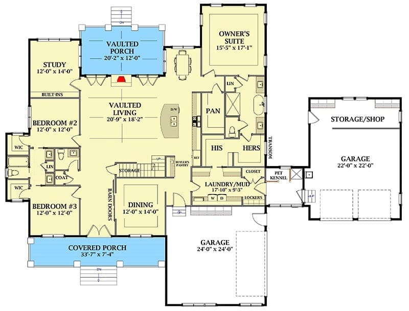
A Front Porch That Deserves Its Own Zip Code
Let’s start with that front porch.
It’s big, bold, and ready for rocking chairs, coffee mornings, or an entire string quartet playing under twinkle lights.
It wraps you up in instant comfort, while the front-facing garage keeps things practical without sacrificing style.
The board and batten siding gives that classic farmhouse feel, and the half-hip gable roofs?
Those are the architectural equivalent of a wink and a smile.
They say, “Yes, I’m timeless—but also ridiculously good-looking.”
Buying a home like this isn’t just a feel-good move.
It’s a smart investment.
With mortgage rates doing their unpredictable dance lately, snagging a place with high resale potential and solid bones is just good financial sense.
First Impressions Matter—And This Entry Nails It
Step through the double front doors and you’re greeted by a barn door that slides open to reveal the dining room.
And not just any dining room—one with a tray ceiling so stylish, you’ll start planning dinner parties you haven’t even agreed to host yet.
Open, airy, and full of natural light, the entryway sets the tone for the rest of the home: sophisticated but cozy, spacious but warm.
This is the kind of house that could impress your in-laws and hide your laundry at the same time.
A rare talent.
Living Room Magic
The living room is what HGTV dreams are made of.
A statement fireplace anchors the room, perfect for everything from winter holidays to binge-watching reality shows.
Above you?

A vaulted ceiling that brings serious grandeur and makes everything feel a little more wow.
French doors on either side of the fireplace lead to a vaulted back porch.
This house doesn’t just blur the lines between indoor and outdoor living—it kicks the door wide open and invites you to enjoy both.
And with the best home security system installed, you’ll be safe while living your best open-air life.
Kitchen Goals
You know how people always end up in the kitchen during parties?
That’s no accident in this house.
The massive island is basically a social hub, big enough for food prep, gossip, homework, and life’s daily chaos.
A butler’s pantry connects the kitchen to the dining room, giving you an ideal place to hide your snacks—or your dishes when guests show up unannounced.
Meanwhile, the breakfast nook gives you a cozy spot to sip your coffee while staring out at the backyard and wondering how you ever lived without this house.
Thinking about upgrading your appliances or building your ultimate chef’s dream zone?
A home equity loan could make that happen without the financial stress.
Nap Paradise With a Side of Luxury
Privately tucked on one side of the home, the owner’s suite is nothing short of dreamy.
Tray ceiling?
Check.
Dual walk-in closets?
Double check.
Direct access to the laundry room so you can toss in your pajamas without leaving your wing of the house?
Triple check.
And that bathroom?
Oh.

My.
Goodness.
A freestanding tub, a walk-in shower, dual sinks—it’s basically your personal spa.
Investing in a home like this is more than just a good move for your property value; it’s a direct deposit into your mental health and daily happiness.
Plus, if you’re smart about it (and I know you are), locking in a refinance mortgage in the future could help you maximize your return on this beautiful beast of a suite.
Guest Wing, Kid Quarters, or Just More Rooms to Decorate
On the opposite side of the home are two more bedrooms, which share a Jack-and-Jill bathroom—because even the kids or guests deserve a bit of elegance.
There’s also a sunny study with built-ins that could serve as a home office, craft room, or the official headquarters of your “I Swear I’m Starting a Blog This Year” project.
Need help visualizing your furniture setup?
Fire up your favorite interior design software and get creative.
This floor plan practically begs for personal touches.
The Garage(s)
Let’s talk garages, because this house doesn’t mess around.
Two separate 2-car garages give you space for four vehicles—or two vehicles and a serious amount of storage.
One side even includes a shop or storage room and a pet kennel with a shower.
That’s right—this house has a dog spa.
Your golden retriever is going to live better than most of us did in college.
The other garage leads straight into a mudroom with built-in lockers, so your floors stay clean, your life stays organized, and your sanity stays intact.
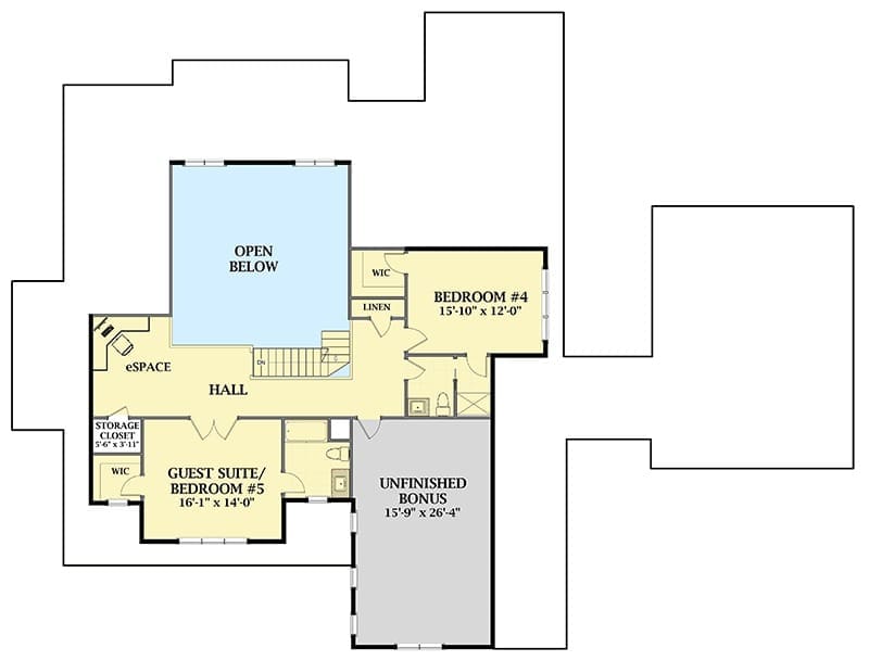
Upstairs
Head upstairs and you’ll find two more bedrooms, each with walk-in closets and private baths.
It’s like a VIP lounge for teens, in-laws, or out-of-town friends who keep “forgetting” to book a hotel.

There’s also a loft with an office nook, which is basically productivity HQ.
Need a quiet place to manage your budget, work remotely, or shop for the best home warranty plans?
This is the spot.
And don’t forget the unfinished bonus room.
Want a home theater?
Yoga studio?
Secret lair?
This room’s got you.
A quick chat with a home remodeling contractor and a few home improvement loans later, and you’ve got yourself a custom dream space.
This House Just Makes Cents (And Sense)
This isn’t just a stunning layout or a “someday” dream home.
It’s a smart buy.
With strong resale potential, high-end features, and the flexibility to adapt to your life, it checks all the boxes—and then builds more boxes just so it can check those too.
Looking to buy soon?
Get your home loan pre-approval ready and chat with a real estate agent who gets what this house is all about.
Run the numbers with a building cost estimator and see how much you’re actually getting here.
Spoiler alert: it’s a lot.
Let’s be honest: you’re already picturing where the couch will go, how you’ll decorate for the holidays, and whether the dog will prefer the front porch or the back.
That’s the sign of a home that gets you.
Whether you’re ready to purchase now or just gathering inspiration, this 5-bedroom modern farmhouse with front-facing garage isn’t just a floor plan—it’s a lifestyle upgrade.

With thoughtful design, financial wisdom, and a pinch of farmhouse flair, it’s the kind of investment that pays off in comfort, joy, and long-term value.
So go ahead.
Take a deep breath, imagine your future here… and maybe start Googling “best porch swing on a budget.”
You’re gonna need one.
Building or buying a home isn’t just about picking the perfect house plan—it’s also about making smart long-term choices. From comparing mortgage rates to finding a trustworthy real estate agent, every decision adds value. Don’t forget to explore options like home insurance, home warranties, and potential refinance opportunities to protect your investment.
Want to boost your property value? Consider installing solar panels, upgrading to energy-efficient appliances, or integrating a smart home system. Plus, tools like interior design software can help you visualize and plan your dream space before the first brick is even laid.
Find More House Plans
By Bedrooms:
1 Bedroom • 2 Bedrooms • 3 Bedrooms • 4 Bedrooms • 5 Bedrooms • 6 Bedrooms • 7 Bedrooms • 8 Bedrooms • 9 Bedrooms • 10 Bedrooms
By Levels:
By Total Size:
Under 1,000 SF • 1,000 to 1,500 SF • 1,500 to 2,000 SF • 2,000 to 2,500 SF • 2,500 to 3,000 SF • 3,000 to 3,500 SF • 3,500 to 4,000 SF • 4,000 to 5,000 SF • 5,000 to 10,000 SF • 10,000 to 15,000 SF










