5-Bedroom Dual-Story Contemporary House with Home Theater (Floor Plan)

Specifications:
- 6,901 Sq Ft
- 5 Beds
- 5.5+ Baths
- 2 Stories
- 3 Cars
Some floor plans are nice.
Others are functional.
But then there are the rare few—like this 6,901 square foot contemporary gem—that somehow manage to be both jaw-dropping and deeply livable.
With 5 bedrooms, 5.5+ bathrooms, two expansive stories, and a 3-car garage, this design isn’t just about square footage—it’s about living large in every sense of the word.
So grab your coffee (or your calculator, if you’re already thinking mortgage rates) and let’s walk through a floor plan that turns everyday life into a luxury experience.



A Front-Sloping Lot with Wall-to-Wall Wow
First off, this home is perfectly suited for a lot that slopes toward the front—and the architects absolutely used that to their advantage.
Walls of glass dominate the exterior, soaking the interior in sunlight and putting the natural surroundings on full display.
It’s like living inside a scenic postcard, only with better insulation.
And we’re not just talking pretty views.
This kind of smart orientation and open visual design can boost property value significantly.
Plus, it’s the perfect companion to your favorite smart home technology—automated climate control, remote blinds, and energy-saving lighting systems work seamlessly with this bright, airy environment.
The Main Floor That Redefines Open Concept
Step inside, and you’re greeted with a main floor that could double as an art gallery.
Instead of standard walls, this home uses interior columns to keep the flow open while still giving structure to the space.
The result?
A floor plan that feels expansive, connected, and incredibly modern.
At the center of it all is the massive great room, which opens directly onto a covered deck via sliding glass doors.
Whether you’re hosting a brunch, enjoying a family dinner, or throwing a New Year’s Eve party with your neighbors, this layout is ready for any occasion.
And if you’re worried about layout logistics, skip the stress—interior design software can help you visualize the perfect setup (but honestly, it’s hard to go wrong in a space this stunning).
Two Kitchens, One Very Happy Host
And then… the kitchens.
Plural.
That’s right—this house doesn’t stop at one culinary zone.
The main kitchen is sleek and modern, with plenty of room for cooking and gathering.
Then there’s a secondary kitchen for prep, storage, or secret baking experiments you don’t want guests to see.

Trust me, this dual-kitchen setup is a game-changer.
With an oversized walk-in pantry thrown into the mix, the whole setup becomes a dream for entertaining.
Hosting big gatherings is suddenly easy.
Plus, having a second kitchen adds practical and financial value—whether you’re looking at resale or applying for a home equity loan later on.
Private Guest Suite on the Main Floor
One of my favorite details on the main floor is the private guest suite.
It’s more than just a nice extra—it’s a full retreat, complete with a private bathroom and direct patio access.
Whether it’s your in-laws visiting or your best friend crashing for the weekend, your guests get comfort and privacy, and you get peace of mind.
And if you’re planning to purchase this house and turn it into a multigenerational home, this suite makes it seamless.
It’s features like these that help homeowners qualify for better home insurance policies and even make the home more appealing to a wider buyer base if you ever decide to sell.
The Upper Level
Now let’s head upstairs, where the master suite is less of a bedroom and more of a wellness sanctuary.
First off, you’ve got a private covered deck—a perfect spot for morning meditation, sunset relaxation, or late-night stargazing.
Whether you’re into yoga, journaling, or just sitting with your thoughts, this space has the vibe.
And speaking of vibes—there’s an actual meditation room or yoga studio on this level.
I know, it’s like they read your mind.
Imagine starting every day in a space designed to calm your brain before the chaos begins.
Not only does this kind of design elevate your daily routine, but it also adds long-term investment value and could even influence your home loan pre-approval favorably by showcasing a thoughtfully planned home.
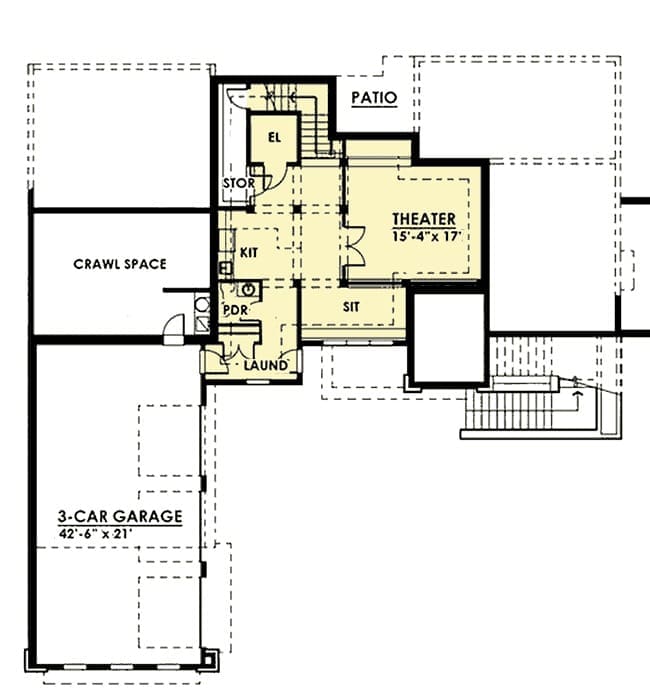
The Lower Level That Doubles as a Luxury Lounge
If you thought this floor plan had shown you all its cards, wait until you hit the finished lower level.
A full home theater takes center stage, turning family movie night into a full-blown cinematic experience.

Add in a kitchenette for snacks and a residential elevator that connects all levels, and you’ve basically got a personal entertainment complex.
This level could easily become a guest apartment, game room, or even a secondary living space—especially useful if you’re working with a home remodeling contractor down the line.
It’s versatile, stylish, and built to adapt as your life does.
A Garage That Does More Than Park Cars
Let’s not forget the three-car garage.
It’s spacious, functional, and more than just a parking space—it’s a storage haven, a workshop, a bike hub, or whatever your lifestyle calls for.
And it connects directly to the interior, which means you’re not doing a mad dash through the rain every time you forget the milk in the trunk.
A garage like this adds measurable value when running numbers through a building cost estimator and makes everyday life a little easier.
It’s practical luxury at its best—and that’s really what this whole floor plan is about.
Future-Ready from Every Angle
The brilliance of this home goes beyond square footage and finishes.
It’s built to evolve.
From integrated smart home technology to space for future upgrades, this layout can accommodate whatever life throws your way—new family members, new hobbies, or even that grand piano you’ve always wanted.
Thinking about refinance mortgage options later?
This home’s layout and high-end features will work in your favor.
It’s also primed for easy upgrades with home improvement loans, and its thoughtful structure makes it easier to protect with a solid home warranty and the best home security system on the market.
This 6,901 square foot contemporary home plan doesn’t just deliver on style—it nails the essentials too.
Every room has a purpose.
Every space flows beautifully into the next.
And every design detail—from the double kitchens to the meditation room—is there to make your life more comfortable, more functional, and more joyful.

Whether you’re looking to buy, build, or explore creative investment options, this floor plan checks every box and then draws a few new ones you didn’t know you needed.
With walls of glass, entertainment-ready spaces, peaceful private retreats, and room to grow, this isn’t just a house—it’s the life upgrade you’ve been waiting for.
So if you’ve been dreaming about building something special, it’s time to check your credit score, call your real estate agent, and start planning your future.
Trust me—once you walk through this plan, you won’t want to live anywhere else.
Building or buying a home isn’t just about picking the perfect house plan—it’s also about making smart long-term choices. From comparing mortgage rates to finding a trustworthy real estate agent, every decision adds value. Don’t forget to explore options like home insurance, home warranties, and potential refinance opportunities to protect your investment.
Want to boost your property value? Consider installing solar panels, upgrading to energy-efficient appliances, or integrating a smart home system. Plus, tools like interior design software can help you visualize and plan your dream space before the first brick is even laid.
Find More House Plans
By Bedrooms:
1 Bedroom • 2 Bedrooms • 3 Bedrooms • 4 Bedrooms • 5 Bedrooms • 6 Bedrooms • 7 Bedrooms • 8 Bedrooms • 9 Bedrooms • 10 Bedrooms
By Levels:
By Total Size:
Under 1,000 SF • 1,000 to 1,500 SF • 1,500 to 2,000 SF • 2,000 to 2,500 SF • 2,500 to 3,000 SF • 3,000 to 3,500 SF • 3,500 to 4,000 SF • 4,000 to 5,000 SF • 5,000 to 10,000 SF • 10,000 to 15,000 SF










