5-Bedroom 2-Story Modern House with Guest Room Potential (Floor Plan)

Specifications:
- 5,050 Sq Ft
- 5 Beds
- 5 Baths
- 2 Stories
- 3 Cars
When I first saw this 5,050-square-foot modern house plan, I felt like it was designed for people who love both comfort and flair.
With five bedrooms, five baths, and two stories of open, light-filled living, this home manages to feel both expansive and welcoming.
Add a wine room, a private den, and even a recreation level, and it’s safe to say—this isn’t just a home; it’s an experience.







Mixed Material Exterior with Window-Filled Design
The very first thing you notice about this house is its bold, modern exterior.

The combination of mixed materials creates a striking visual appeal, and the abundance of windows gives the front elevation a bright, inviting feel.
It’s a look that’s not only stylish but also adds to long-term property value.

Natural light pouring through so many panes makes interior spaces feel bigger, while also helping you appreciate the investment you’ve made every time you pull into the driveway.
Covered Entry and Welcoming Foyer
Step inside, and the covered entry leads you straight into a foyer that sets the tone for the entire home.

You don’t just get a small landing space—you’re immediately treated to views across the great room, emphasizing the openness of the layout.
This sense of flow is not only beautiful but also practical when you’re entertaining or even considering resale down the road.

Buyers love first impressions, and this foyer makes a lasting one.
Open Great Room with Expansive Sightlines
The great room is exactly what its name promises—great in size, light, and style.

Thanks to the lack of partition walls, you can enjoy uninterrupted sightlines across the main level.
Whether you’re keeping an eye on the kids, chatting with friends, or just admiring the clean lines, this openness makes every square foot feel maximized.

It’s the kind of design that makes sense if you’re considering this as both a dream home and a long-term investment.
Dining Room with Seamless Indoor-Outdoor Living
Right off the great room sits the dining area, and here’s where things get even better.

A sliding wall leads out to the patio, cleverly blending indoor and outdoor living.
Half the patio is covered for shade and comfort, while the other half is uncovered so you can soak up the sun.

It’s perfect for hosting dinner parties, family gatherings, or quiet Sunday brunches.
Features like this are why people often work closely with real estate agents to secure house plans that merge lifestyle and functionality.

Spacious Kitchen with Island and Pantry
The kitchen is always the heartbeat of a home, and this plan takes that seriously.

The oversized island provides plenty of workspace and casual seating, while the surrounding counters make meal prep a breeze.
Storage is never an issue, thanks to the nearby pantry.

It’s an ideal layout if you love cooking or hosting, and it also adds real-world value if you’re thinking in terms of purchase decisions, mortgage rates, or even refinancing later.
Plus, with modern appliances and smart home technology, this kitchen can easily become the most functional space in the house.

Private Den with Guest Room Potential
On the main level, you’ll find one of my favorite features: the private den.

During the day, it makes a perfect home office, a quiet retreat for work or reading.
But when guests visit, it effortlessly converts into an extra bedroom.

This dual-purpose flexibility makes the floor plan feel even more spacious than it already is.
For anyone planning their buy as both a practical move and an investment, this versatility is gold—it’s the kind of feature that appeals to future buyers and boosts property value.

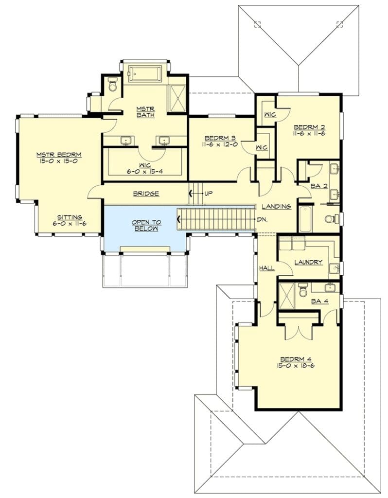
Master Suite with Luxury Comforts
Head upstairs, and the master suite takes center stage.

Spacious, private, and thoughtfully placed, this bedroom feels like a true retreat.
Paired with its luxury bath and closet space, the suite is designed to feel indulgent but never over the top.

It’s practical for daily living, yet elegant enough to feel like a getaway within your own home.
Investing in a master suite like this is not just about comfort; it’s also a wise decision for maintaining long-term property value.

Family Bedrooms with Upper-Level Laundry
Also on the upper floor are three additional family bedrooms.

Each room offers comfort and plenty of space, which makes family living smooth and harmonious.
Conveniently, the laundry room is also located upstairs—no more dragging baskets up and down stairs.

This layout shows how carefully the floor plan is designed for everyday ease, making it a smart purchase for long-term living.
Lower Level with Recreation and Media Room
Just when you think the house has given you everything, the lower level adds another 1,385 square feet of living space.

The recreation and media room here extend directly to a covered patio, creating another hub for relaxation and fun.
This is where game nights, movie marathons, or even future upgrades come into play.

With the right home improvement loans or a remodeling contractor, you could personalize this level to match your lifestyle—whether that’s a fitness space, an art studio, or a tech-heavy media zone.
And yes, there’s also a fifth bedroom here, perfect for guests who want extra privacy.

Dedicated Wine Room for Entertaining
Now, let’s raise a glass to one of the standout features: the wine room.

Not only is it stylish, but it also brings a touch of elegance to your entertaining game.
This space isn’t just about storage—it’s about creating moments.

Real estate agents know that a wine room is one of those features that immediately excites buyers and makes a floor plan unforgettable.
When paired with the home’s other luxury elements, it enhances both your lifestyle and your long-term investment.

Three-Car Garage with Ample Space
Finally, let’s not overlook the three-car garage.
More than just a spot to park vehicles, this space is also about storage, hobbies, and future planning.

From sports gear to seasonal décor, the extra room ensures your home stays clutter-free.
A garage of this size often boosts property value, and with the right building cost estimator and careful planning, it’s one of those practical features that ensures your investment remains strong.

This luxury modern house plan doesn’t waste a single square foot.
Every space—from the great room and kitchen to the wine room and lower-level rec area—feels intentional and smart.

Building or buying a home isn’t just about picking the perfect house plan—it’s also about making smart long-term choices. From comparing mortgage rates to finding a trustworthy real estate agent, every decision adds value. Don’t forget to explore options like home insurance, home warranties, and potential refinance opportunities to protect your investment.
Want to boost your property value? Consider installing solar panels, upgrading to energy-efficient appliances, or integrating a smart home system. Plus, tools like interior design software can help you visualize and plan your dream space before the first brick is even laid.
Find More House Plans
By Bedrooms:
1 Bedroom • 2 Bedrooms • 3 Bedrooms • 4 Bedrooms • 5 Bedrooms • 6 Bedrooms • 7 Bedrooms • 8 Bedrooms • 9 Bedrooms • 10 Bedrooms
By Levels:
By Total Size:
Under 1,000 SF • 1,000 to 1,500 SF • 1,500 to 2,000 SF • 2,000 to 2,500 SF • 2,500 to 3,000 SF • 3,000 to 3,500 SF • 3,500 to 4,000 SF • 4,000 to 5,000 SF • 5,000 to 10,000 SF • 10,000 to 15,000 SF










