5 Bedroom 2-Story Modern Farmhouse with Main Floor Owner’s Suite and Front & Rear Garage Entry (Floor Plan)

Specifications:
- 5,244 sq. ft.
- 5 Beds
- 5.5 Baths
- 2 Stories
- 5 Cars
I’ve seen a lot of house plans in my day, but this 5,244 sq. ft. modern Farmhouse with French Country flair doesn’t just check boxes—it practically builds its own checklist.
From the moment I step onto the 274 sq. ft. front porch, coffee in hand, I can already picture the kind of life that unfolds here. This is the kind of home you don’t just buy—you commit to.
Wrapped in a sophisticated blend of stone and dark siding, the exterior makes a confident statement without being flashy. It’s refined, grounded, and timeless.
The side-load garage—an impressive 1,252 sq. ft. space for 4 to 5 cars—tucks neatly to the side, making this plan perfect for a corner lot while boosting long-term property value.
And yes, if you’re thinking about investment potential, curb appeal like this always helps.
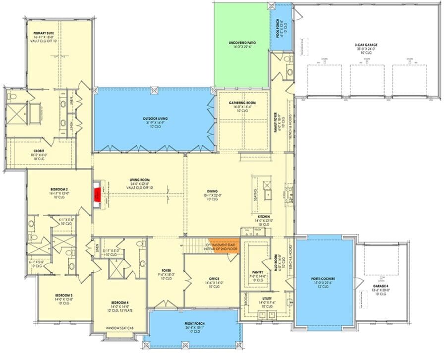
Step inside, and the foyer greets you with soaring 10-foot ceilings and a sense of quiet grandeur. It doesn’t scream; it welcomes.


As someone who always imagines the “first walk-through” moment—maybe with a real estate agent smiling proudly behind me—I can say this entry delivers.
It’s the kind of space that makes getting that home loan pre-approval feel absolutely worth it.
To one side, there’s a dedicated study or home office, thoughtfully positioned away from the hustle of the main living areas.
Whether you’re working remotely, reviewing refinance mortgage options, or just trying to improve your credit score in peace (adulting at its finest), this space offers the quiet productivity we all secretly crave.
An Open Layout That Truly Lives Large
The heart of this home unfolds in a sweeping open-concept design that connects the great room, dining area, and gourmet kitchen in one fluid motion. And when I say open, I mean the kind of open that lets conversations float freely from the sofa to the stove.
The family room fireplace anchors the space with warmth and character. I can easily picture cozy evenings here, flames dancing while dinner simmers nearby.
The kitchen island is strategically designed so the sink faces forward—toward the living area and those beautiful walls of glass overlooking the backyard. I love that detail. It means I’m never stuck staring at a wall while washing dishes. I’m part of the action.
Speaking of the kitchen—it’s a dream. A walk-in food pantry keeps everyday essentials organized, while the butler’s pantry adds that extra layer of functionality (and let’s be honest, elegance).

Whether I’m hosting Thanksgiving or just pretending I’m on a cooking show, the flow between prep, storage, and serving space feels seamless. Natural light pours in through expansive walls of glass, connecting the indoors with the 400 sq. ft. rear porch.
The visual extension makes the entire main level feel even larger than its already generous 4,277 sq. ft. footprint. When calculating costs with a building cost estimator, square footage like this makes every number feel justified.
Outdoor Living Done Right
If you’ve ever dreamed of blurring the line between inside and outside, this plan delivers in a big way. The rear porch isn’t an afterthought—it’s an experience. With 400 sq. ft. of covered space, there’s room for alfresco dining, lounging, and yes, a full barbecue porch setup.
I can already smell the grilled burgers. The open layout means the great room and kitchen flow naturally toward this outdoor living area, making entertaining effortless.
Add in smart home technology—automated lighting, outdoor speakers, climate control—and suddenly you’ve got a backyard setup that rivals a boutique resort.
From a practical standpoint, thoughtful outdoor living also supports property value. Buyers (or future appraisers) recognize the appeal of usable exterior square footage. It’s not just decorative—it’s functional lifestyle space.
And if you’re thinking long-term, features like these can make refinancing or securing a home equity loan later on much smoother. Improvements that enhance livability often translate into stronger appraisal numbers. That’s the kind of investment logic I appreciate.
A Master Suite That Feels Like a Private Retreat
Now let’s talk about the first-floor master suite. Because this one deserves its own moment.

Positioned privately away from the clustered secondary bedrooms, the owner’s suite offers true separation and serenity.
The tray ceiling adds architectural dimension without overwhelming the room, and a direct door to the back porch provides a quiet escape. Morning coffee outside before the rest of the household wakes up? Yes, please.
The ensuite bath is spacious and refined—exactly what I’d expect in a home of this caliber. When I imagine customizing finishes, I can practically see myself experimenting with interior design software to test tile combinations and lighting layouts before committing. In a house like this, every detail matters.
And of course, there’s a generous walk-in closet. Actually, every bedroom in the home includes its own walk-in closet, which tells me storage was never an afterthought here. That kind of foresight reduces the need for future home improvement loans just to add built-ins later.
Split Bedrooms for Comfort and Privacy
One of my favorite features in modern layouts is split bedrooms—and this design handles it beautifully.
While the master suite enjoys its private wing, the secondary bedrooms are clustered in their own area, offering comfort and privacy for family members or guests.
Each bedroom comes complete with its own walk-in closet and convenient access to well-appointed bathrooms. With 5 full bathrooms and 1 half bath overall, no one is waiting in line during busy mornings. Trust me, that alone protects household harmony.
If you’re considering how this layout supports long-term living, think multigenerational flexibility. Whether you’re planning for aging parents, frequent guests, or even a live-in au pair, the bedroom distribution works.

From a financial standpoint, flexible layouts strengthen resale potential and make the initial purchase feel even smarter.
Versatile Spaces for Every Stage of Life
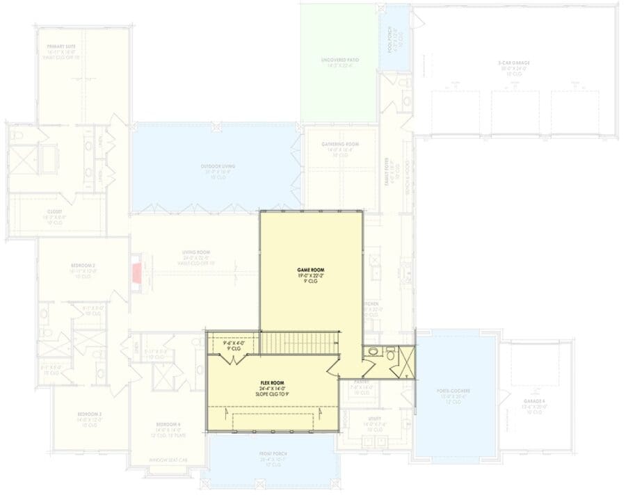
As if the main level weren’t impressive enough, this home includes a 967 sq. ft. second floor packed with possibilities.
There’s an exciting game or recreation room—perfect for movie nights, ping pong tournaments, or just giving teenagers a place to exist loudly without shaking the entire house.
There’s also dedicated flex space that could serve as a hobby room, media lounge, or even a fifth bedroom if needed. The option to expand into bonus space later is one of those features that makes financial sense.
Finish it when you’re ready. Maybe after monitoring mortgage rates for the right moment. Maybe after completing a refinance mortgage to secure better terms.
Flexibility equals control—and control feels good when managing a significant investment like this.
A Garage That Goes Beyond Parking
Let’s not overlook the 4- to 5-car garage. At 1,252 sq. ft., it’s more than a place to park vehicles. It’s workshop space, storage headquarters, maybe even future gym territory.
The side-entry configuration not only enhances curb appeal on a corner lot, it also improves driveway flow and front elevation symmetry. Details like that might seem subtle, but they influence both aesthetics and long-term property value.

Add the best home security system, integrate smart home technology for remote monitoring, and this garage becomes both functional and secure.
And when you’re protecting an investment of this scale, strong home insurance coverage and possibly even a comprehensive home warranty offer peace of mind.
This house doesn’t just fulfill a checklist of popular features—it elevates them. Every design decision feels intentional, from the open layout and barbecue porch to the walk-in pantries and tray ceilings. And we’re only halfway through what makes this home exceptional.
A Second Floor Designed for Fun and Flexibility
If the main level is about elegance and everyday comfort, the 967 sq. ft. second floor is where personality takes over.
I love that this home doesn’t waste a single square foot. Instead of feeling like an afterthought, the upper level feels intentional—like it was designed for real life.
The game and recreation room is the star up here. Whether I imagine a pool table, a big sectional for movie marathons, or a gaming setup that would make teenagers actually say “thanks,” this space adapts.
It’s removed just enough from the main living areas to keep noise contained. That separation matters in a 4- to 5-bedroom home where everyone’s schedules rarely align.
There’s also the potential to incorporate a fifth bedroom if needed. That flexibility is huge. Maybe it becomes a guest suite, maybe it’s a craft room, or maybe it’s a private retreat for extended family.

When I think about the long-term investment side of things, adaptable square footage always wins.
A Layout That Balances Grandeur and Livability
What stands out most to me about this 5,244 sq. ft. farmhouse is how it balances size with flow. Large homes can sometimes feel disconnected—but not this one.
The open-concept great room, kitchen, and dining area anchor everything. From the foyer, the layout gently guides you toward the heart of the home without confusion. The 10-foot ceilings on the main level amplify that sense of openness without making the space feel cavernous.
The study near the front offers quiet focus, while the master suite enjoys complete privacy on the main floor. Secondary bedrooms are clustered thoughtfully, giving family members their own zone. It’s a split-bedroom arrangement done right.
If I were using interior design software to experiment with furniture placement, I’d find it easy here. The room dimensions are generous, the walls of glass define natural focal points, and the fireplace gives the great room a grounding element.
A Kitchen That Truly Anchors the Home
I know I mentioned the kitchen before, but it deserves another moment. This isn’t just a place to cook—it’s command central.
The island faces forward toward the family room fireplace, which means the cook never feels isolated. The walk-in food pantry keeps bulk items organized, while the butler’s pantry bridges the gap between prep and presentation. Hosting feels effortless here.
Walls of glass frame views of the rear porch and backyard, flooding the space with natural light. When I imagine evening gatherings, I see the glow from inside spilling onto the barbecue porch outside. It’s seamless.

And because this is a home of this caliber, integrating smart home technology feels like a natural next step—automated lighting, voice-controlled appliances, security cameras tied into the best home security system. Convenience and elegance can absolutely coexist.
A Master Suite That Feels Like an Everyday Escape
The first-floor master suite is still my favorite feature. There’s something about having your retreat separated from the rest of the house that feels indulgent—but practical.
The tray ceiling adds architectural character without overwhelming the space. The private door to the rear porch is one of those subtle luxuries that changes daily life. Morning coffee outdoors, quiet evenings under soft porch lighting—it’s easy to picture.
The ensuite bath is spacious and refined, and the walk-in closet offers the kind of storage that prevents clutter before it begins. In a home this thoughtfully designed, the need for major home remodeling contractor interventions later on feels minimal. It’s already done right.
Outdoor Living That Expands the Interior
The combined 674 sq. ft. of porch space (274 sq. ft. in front and 400 sq. ft. in the rear) makes this home live even larger than its interior square footage suggests.
The front porch delivers classic farmhouse charm. It’s where I’d sit in the evenings, watching the neighborhood wind down.
The rear porch, on the other hand, is built for gatherings. With ample room for outdoor dining and lounge seating, it functions like an open-air extension of the great room.
For anyone thinking about long-term property value, usable outdoor living space is more than aesthetic—it’s strategic.

It enhances lifestyle while strengthening market appeal. That’s something any savvy real estate agent would highlight immediately.
Storage, Garage Space, and Everyday Practicality
A 1,252 sq. ft. garage that fits 4 to 5 vehicles isn’t just impressive—it’s transformative. Whether I own multiple cars, need workshop space, or want extra storage for recreational equipment, this garage handles it.
The side-load design keeps the front elevation clean and balanced, especially on a corner lot. It’s a small architectural decision with a big visual payoff.
Beyond vehicle storage, this garage supports daily organization. Combined with walk-in closets in every bedroom and generous pantry spaces, the home feels built for real life—not just photographs.
Designed for Long-Term Comfort and Confidence
When I think about purchasing a home of this scale, I don’t just think about aesthetics—I think about stability.
Securing a home loan pre-approval, monitoring mortgage rates, and ensuring a solid credit score are part of the journey. But a design like this makes the process feel purposeful.
With 5 full bathrooms and a half bath, morning routines are effortless. The split-bedroom layout supports privacy.
The optional bonus space allows the home to evolve over time. Every major feature supports comfortable, adaptable living.

Adding strong home insurance coverage and possibly a home warranty provides additional peace of mind.
And should renovations or upgrades ever be desired, home improvement loans or even a home equity loan offer flexibility without compromising the original integrity of the design.
A Home That Makes Sense Emotionally and Financially
What I appreciate most about this luxury farmhouse is that it satisfies both the heart and the head.
Emotionally, it delivers warmth—fireplace evenings, sunlit mornings, barbecue gatherings on the rear porch. It offers quiet focus in the study and restful privacy in the master suite.
Financially, it stands as a strong investment. The square footage, garage capacity, flexible bedroom count, and blend of modern Farmhouse with French Country styling give it lasting appeal.
Whether planning to buy as a forever home or purchase with long-term equity growth in mind, this layout supports both paths.
Even future improvements feel manageable. With the right building cost estimator, enhancements can be planned thoughtfully. But honestly, there’s very little I’d change.

This 5,244 sq. ft. home isn’t about excess—it’s about intentional luxury. From the open layout and dedicated study to the split bedrooms and expansive porches, every element feels purposeful.
It’s a home that entertains beautifully, lives comfortably, and adapts gracefully. The walls of glass connect indoors to out.
The butler’s pantry and walk-in pantry elevate the kitchen. The game room upstairs ensures there’s always space for fun.
If I were standing in that grand foyer again, keys in hand, I’d know I wasn’t just stepping into a house—I was stepping into a well-planned future.
And in my experience, that’s exactly what the right home should feel like.
Building or buying a home isn’t just about picking the perfect house plan—it’s also about making smart long-term choices. From comparing mortgage rates to finding a trustworthy real estate agent, every decision adds value. Don’t forget to explore options like home insurance, home warranties, and potential refinance opportunities to protect your investment.
Want to boost your property value? Consider installing solar panels, upgrading to energy-efficient appliances, or integrating a smart home system. Plus, tools like interior design software can help you visualize and plan your dream space before the first brick is even laid.
Find More House Plans
By Bedrooms:
1 Bedroom • 2 Bedrooms • 3 Bedrooms • 4 Bedrooms • 5 Bedrooms • 6 Bedrooms • 7 Bedrooms • 8 Bedrooms • 9 Bedrooms • 10 Bedrooms
By Levels:
By Total Size:
Under 1,000 SF • 1,000 to 1,500 SF • 1,500 to 2,000 SF • 2,000 to 2,500 SF • 2,500 to 3,000 SF • 3,000 to 3,500 SF • 3,500 to 4,000 SF • 4,000 to 5,000 SF • 5,000 to 10,000 SF • 10,000 to 15,000 SF










