5-Bedroom 2-Story Modern Farmhouse With Expansive Outdoor Living & Workshop (Floor Plan)

- 4,683 sq. ft.
- 5 Beds
- 4.5 Baths
- 2 Stories
- 4 Cars
When I first walked through this modern farmhouse, I immediately knew it was something special.
There’s a warmth here, a balance of classic farmhouse charm and modern convenience that makes it feel lived-in and luxurious at the same time.
The open layout draws you into the heart of the home, where the family room and kitchen are perfectly designed for both everyday living and entertaining.
Honestly, it’s the kind of house that makes you rethink everything you knew about home design—especially if you’re looking to buy or invest in a property that blends style, functionality, and future value.
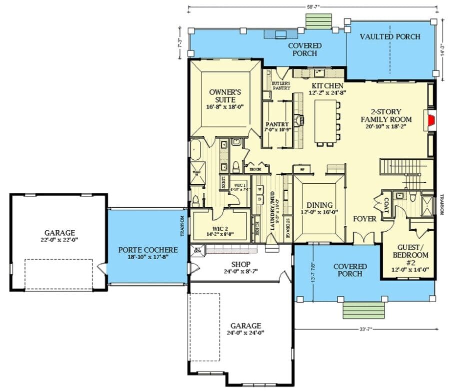
Right off the foyer, the open floor plan makes a bold statement: space, light, and flow. The family room is anchored by a cozy fireplace, making it a natural gathering spot for family nights or casual entertaining.


Open Layout and Family Living
I love how the kitchen island faces forward, so you can wash dishes while keeping an eye on everything happening in the room—perfect for parents who want to cook without missing a single soccer practice story or homework crisis.
Walls of glass line the back of the home, bringing in natural light and unobstructed views of the rear porch and backyard, making indoor and outdoor living feel seamless.
The kitchen isn’t just about looks; it’s highly functional. There’s a walk-in food pantry for all those groceries you probably never knew you needed and a butler’s pantry that makes hosting dinner parties a breeze.
Whether you’re a culinary whiz or just someone who appreciates a well-organized space, these pantries ensure everything has a home.
Plus, with a large island that seats six, family breakfasts, casual lunches, and wine nights are all handled in one central spot.
Smart and Thoughtful Home Features
This modern farmhouse doesn’t skimp on smart home technology either. From automated lighting to security systems, everything has been carefully integrated so that you can control the home effortlessly.
Of course, for peace of mind, pairing it with the best home security system makes perfect sense, especially if you’re planning to step out for errands or travel for a weekend getaway.
And speaking of protection, this house is a dream for those who want a solid foundation for home insurance or even a home warranty to safeguard your investment.
For anyone thinking about financing, the home’s design pairs beautifully with practical considerations like mortgage rates and home equity loans.
If you’re looking to purchase or even refinance a mortgage down the line, the property’s value, layout, and modern amenities make it a smart investment that could enhance your credit score and future financial flexibility.

Bedroom Bliss
This house offers five spacious bedrooms, each with its own walk-in closet. Yes, every single one. Even the guest bedroom on the main floor near the foyer is thoughtfully designed and can double as a study or home office.
The master suite is the jewel of the home: a tray ceiling, sliding doors leading directly to the rear covered porch, and enough space to create a private retreat that rivals any boutique hotel.
It’s perfect for winding down after a long day or enjoying a morning coffee while watching the sunrise over your backyard.
Upstairs, three more bedrooms each feature walk-in closets, along with a loft that overlooks the family room.
There’s also a bonus space above the garage that can be finished when you’re ready—a playroom, rec room, or creative studio.
For families or anyone who enjoys flexible space, this optional area is an investment in future lifestyle possibilities.
Outdoor Living Spaces
If there’s one thing I could rave about endlessly, it’s the outdoor living areas. The vaulted back porch is perfect for dining al fresco, hosting barbecues, or simply lounging with a good book.
And the barbecue porch? Let’s just say you won’t be stuck cooking indoors when the weather is perfect.
With walls of glass connecting the kitchen and family room to the backyard, the transition from indoor to outdoor spaces feels effortless.
Side note: for anyone interested in property value and resale potential, well-designed outdoor living spaces like these can significantly boost both.

They’re also ideal for those looking to take out home improvement loans or even work with a home remodeling contractor to add personalized touches down the line.
Garage and Workshop Convenience
This house’s side-load garage configuration is perfect for a corner lot, with two two-car garages offering a total of 1,117 square feet.
One garage features a porte-cochère—ideal for covered entry during rainy days—while the other has a built-in workshop in the back.
It’s the dream setup for anyone who loves DIY projects, woodworking, or simply needs extra storage. Imagine being able to tinker, store, and park in one seamless area without cluttering your living spaces.
The flexibility of this setup also makes it appealing for real estate agents and buyers who are thinking long-term.
Whether you’re planning to buy now or see this as an investment for future resale, these thoughtful additions can enhance both convenience and property value.
The Heart of the Home: Kitchen and Dining
If you’ve ever dreamed of a kitchen that’s both functional and welcoming, this home does not disappoint.
The kitchen is open to the two-story family room, creating a perfect flow for entertaining or simply keeping the family connected.
I love that the sink is set under a window facing the backyard—washing dishes suddenly feels like a peaceful chore rather than a mundane task.
The large island accommodates seating for six, so whether it’s breakfast on a weekday or game night with friends, there’s room for everyone.

Beyond aesthetics, the walk-in pantry and butler’s pantry provide ample storage and prep space. Hosting dinner parties or keeping everyday supplies organized has never been easier.
This combination of thoughtful design and practical storage makes this kitchen a dream for anyone who loves cooking or entertaining, all while keeping an eye on your investment in the home’s property value.
Dining, Entertaining, and Lifestyle
The formal dining room boasts a tray ceiling, creating an elegant atmosphere for more formal gatherings. But if casual dining is more your style, the back vaulted porch is perfect for al fresco meals.
Imagine summer evenings with friends, a barbecue sizzling in the corner, and laughter filling the air. It’s the kind of space that blends indoor comfort with outdoor charm effortlessly.
And because we all know that lifestyle isn’t just about the present, having options like a loft overlooking the family room or a playroom above the garage allows you to adapt spaces as your family grows.
This flexibility is also appealing from a financial perspective; whether you’re considering home improvement loans, remodeling contractors, or future upgrades, this home is designed to accommodate change without losing style or function.
Bedrooms That Feel Like Retreats
The master suite is the true crown jewel, and it’s perfectly placed on the main floor.
The tray ceiling adds an air of sophistication, while sliding doors to the rear covered porch make mornings serene and evenings magical.
A walk-in closet ensures you have space for everything, from seasonal wardrobes to special collections.

Upstairs, the three bedrooms with walk-in closets are ideal for family members or guests, offering privacy without isolation.
The loft area overlooking the family room below creates a versatile space for homework, reading, or casual gatherings.
Even the optional bonus space above the garage can serve a multitude of purposes—from a home theater to a private studio.
The possibilities are endless, and this flexibility adds tangible value to your property as both a home and an investment.
Garage, Workshop, and Side-Load Convenience
Let’s talk about practical luxury. The side-load garage setup is perfect for a corner lot, keeping vehicles tucked away while maximizing curb appeal.
Two garages provide a total of 1,117 square feet of parking space.
One features a porte-cochère, ideal for covered entry during inclement weather, while the other houses a workshop in the back—perfect for DIY projects, hobbies, or extra storage.
Having a dedicated workshop not only enhances functionality but also contributes to the home’s long-term property value.
And from a financial planning standpoint, knowing the space and layout allows potential buyers or investors to estimate building costs for future expansions or renovations.

Outdoor Living and Lifestyle Enhancements
Outdoor spaces are where this home truly shines. The back vaulted porch, barbecue porch, and walls of glass connecting the indoor and outdoor areas create a seamless transition between environments.
Whether hosting summer gatherings, enjoying quiet mornings with coffee, or entertaining guests, these spaces enhance both day-to-day living and long-term property value.
For families who enjoy an active lifestyle, this farmhouse layout encourages spending time outside while maintaining convenient access to the home’s interior.
And if you’re thinking ahead, outdoor features like these also make the home appealing for future buyers, adding another layer of investment security.
Flexible Spaces for Every Stage of Life
From the study and guest bedroom on the main floor to the loft, bonus room, and playroom above the garage, every space in this home is designed for flexibility. Families, professionals, or retirees can all find spaces that suit their needs.
Optional finishing of bonus areas allows customization, making it a dynamic investment that can evolve alongside your lifestyle.
Even day-to-day chores like laundry, cooking, or organizing are simplified thanks to the thoughtful layout.
This combination of beauty, functionality, and adaptability makes this farmhouse a home that truly grows with its owners.
In the end, this modern farmhouse is more than just a house—it’s a carefully crafted lifestyle investment.

The combination of five spacious bedrooms, flexible bonus spaces, dual garages with workshop, smart home technology, and incredible outdoor living makes it a standout choice for anyone looking to purchase a home that balances comfort, style, and long-term value.
Whether you’re considering mortgage rates, refinancing a mortgage in the future, or exploring home equity loans, this home’s design and features make financial planning intuitive and rewarding.
For those who enjoy the peace of mind that comes with home insurance or a home warranty, and for those planning interior updates with interior design software or guidance from a remodeling contractor, this home offers both flexibility and security.
From the moment you step inside to the ease of entertaining on the back porch, every corner of this farmhouse has been designed with life, comfort, and investment in mind.
If you’re ready to buy or invest in a home that truly blends modern convenience with classic farmhouse charm, this plan is the one that checks all the boxes.
Building or buying a home isn’t just about picking the perfect house plan—it’s also about making smart long-term choices. From comparing mortgage rates to finding a trustworthy real estate agent, every decision adds value. Don’t forget to explore options like home insurance, home warranties, and potential refinance opportunities to protect your investment.
Want to boost your property value? Consider installing solar panels, upgrading to energy-efficient appliances, or integrating a smart home system. Plus, tools like interior design software can help you visualize and plan your dream space before the first brick is even laid.
Find More House Plans
By Bedrooms:
1 Bedroom • 2 Bedrooms • 3 Bedrooms • 4 Bedrooms • 5 Bedrooms • 6 Bedrooms • 7 Bedrooms • 8 Bedrooms • 9 Bedrooms • 10 Bedrooms
By Levels:
By Total Size:
Under 1,000 SF • 1,000 to 1,500 SF • 1,500 to 2,000 SF • 2,000 to 2,500 SF • 2,500 to 3,000 SF • 3,000 to 3,500 SF • 3,500 to 4,000 SF • 4,000 to 5,000 SF • 5,000 to 10,000 SF • 10,000 to 15,000 SF










