5-Bedroom 2-Story Modern Farmhouse with Game Room and Outdoor Living (Floor Plan)

Specifications:
- 7,525 sq. ft.
- 5 Beds
- 6.5 Baths
- 2 Stories
- 4 Cars
Let me just say it — this house plan is what happens when style meets sanity.
You know, the kind of home that makes you sigh in relief the moment you step inside because it just gets what modern living is all about.
This luxurious 5-bedroom, 2-story modern farmhouse doesn’t just offer space — it offers smart space.
With 7,525 square feet of heated area, a side-load 4-car garage, and features that blend luxury with comfort, it’s the dream home you didn’t know you needed (until now).


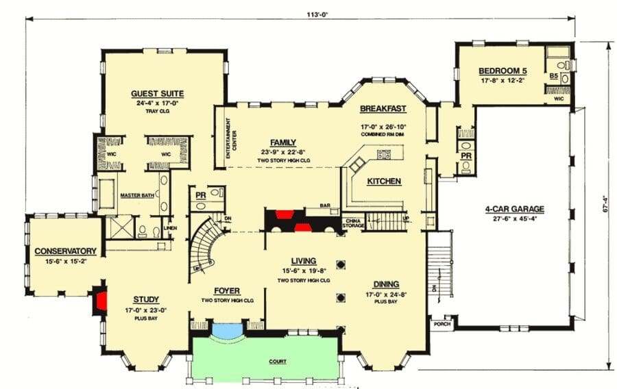
An Open Layout That Lives and Breathes
If you’ve ever tried to cook dinner while keeping an eye on the kids, chat with guests, and make sure no one lets the dog steal the appetizers — you’ll love this open layout.
The kitchen flows effortlessly into the family room, creating a space where life happens in real-time. And that island? Oh, it’s not just for show.
With a sink facing the fireplace, you can rinse dishes while catching up on your favorite series or admiring that perfect flame flicker.
This is the kind of home that makes living easy. And when mortgage rates tempt you to think twice, remember: spaces like this are more than a purchase — they’re an investment in your happiness (and yes, your property value).
The Kitchen That Could Win a Reality Show
There are kitchens, and then there are chef’s dreams. This one leans heavily toward the latter.
You’ve got a walk-in food pantry for bulk Costco hauls, and a butler’s pantry for stashing away the good china — or, let’s be honest, the messy stuff before guests arrive.
The flow of this kitchen is so good it could’ve been designed using the best interior design software on the market.
Every detail — from the oversized island to the nearby barbecue porch — has been thought out for how people actually live.
Whether you’re flipping pancakes on Sunday morning or testing out a new home improvement loan-funded appliance, it’s designed for both function and flair.
Family Room Goals
Step into the family room and you’ll find yourself glancing up — way up — at the soaring two-story ceiling. The space feels both grand and cozy, with walls of glass pulling in natural light and offering stunning views of your backyard oasis.
Imagine crisp evenings with the fireplace crackling while smart home technology sets the lighting just right.
You don’t even have to move from your couch to adjust the temperature — that’s how good this house is at making life feel effortless.
When I think about homes that blend comfort and innovation, this one nails it. You can see the attention to detail that would make any real estate agent smile — the kind of feature list that makes buyers line up with their home loan pre-approval letters in hand.
Outdoor Living That Deserves Its Own Applause
If you’re the type who loves to entertain or just unwind in peace, this home’s outdoor living spaces will have you swooning.
From a grand back porch perfect for summer gatherings to a cozy barbecue area made for grilled feasts, this space takes full advantage of every square inch.
It’s not just a backyard — it’s a private retreat, complete with room for lounging, dining, and making memories.
It’s no wonder homes like this boost property value over time. With the right home insurance and a little preventive care — maybe a home warranty for extra peace of mind — you’ve got a fortress of both comfort and confidence.
The Study, the Wet Bar, and a Touch of Class
Ah, the study. That magical room that’s somehow both a productivity zone and a hideaway.
This one comes with a built-in wet bar — perfect for winding down after a long day or impressing guests who stop by “for a quick chat.”
And if you’re the kind of person who’s turned remote work into an art form, this space is where deals get made and ideas come to life.
There’s even a door leading to a bright, airy conservatory — an ideal spot to sip coffee, read a book, or daydream about your next refinance mortgage opportunity (because let’s face it, we all peek at rates now and then).
Room for Everyone — and Then Some
With five spacious bedrooms, every member of the household gets their own personal retreat.
Each bedroom has a walk-in closet, because let’s be honest — nobody ever said, “Wow, I wish I had less storage.”
The layout smartly separates the master suite from the other rooms, keeping things peaceful and private.
And speaking of the master suite — just wait. It’s a showstopper. From the elegant tray ceiling to the private balcony access, it’s designed to make every morning feel like a getaway.
Imagine stepping out with a cup of coffee, breathing in the sunrise, and thinking, Yep, this was worth every penny.
Even the guest suite on the first floor gets the VIP treatment, complete with privacy and comfort perfect for in-laws, visitors, or maybe even that friend who says they’re “just staying one night.”
Stairs, Balconies, and a Grand Second Floor
Walk up the stairs and you’ll notice the balcony overlooking the foyer and family room below. It’s the kind of dramatic design that instantly elevates the entire home — literally and visually.

Open railings allow you to see all the beauty below, giving the upstairs a light and connected feel.
Up here, you’ll also find one of the largest laundry rooms I’ve ever seen. Seriously, this one deserves its own applause.
Fold, organize, and even sort socks in comfort — no more squeezing into tight corners or piling clothes on the guest bed.
And if you ever decide to finish the optional bonus space, it’s perfect for a home theater, game room, or a little personal gym — maybe even a hobby zone for those weekend remodeling projects you fund with home improvement loans.
Designed for Life — and for the Future
Beyond the beauty, this house has brains. It’s ready for smart home technology, top-notch home security systems, and anything else the future might throw at you.
Whether you’re checking your credit score before a new investment or using a building cost estimator to dream up an addition, this home grows with you.
You’re not just buying a house — you’re building equity, security, and a lifestyle that fits your every goal.
With the right real estate agent by your side, this isn’t just a home purchase. It’s the start of something extraordinary.
The Grand Second Floor and a Master Suite Made for Royalty
Let’s pick up where we left off — right at the point where this home starts showing off its upper-level magic.
The second story of this 5-bedroom, 2-story modern farmhouse isn’t just an afterthought; it’s a masterfully designed extension of comfort, style, and thoughtful living.
With 3,055 square feet up top, this level adds depth, luxury, and a few surprises that make this home an absolute showstopper.
A Master Suite That Defines Luxury
Let’s start with the crown jewel — the master suite. This space isn’t just a bedroom; it’s a private sanctuary designed to make you forget about the rest of the world.
With a lovely tray ceiling that adds architectural flair and dimension, the room immediately feels both grand and serene.
The French doors open to a private balcony, inviting you to enjoy your morning coffee while soaking in the sunrise — or maybe just a quiet moment away from the chaos of everyday life.
And then there’s the bathroom. Or should I say bathrooms — because, yes, this suite has his-and-her baths. Each side has its own vanity, shower, and walk-in closet, making it a dream come true for couples who like their own space.
If you’ve ever shared a sink and regretted it, you’ll understand why this is such a luxury.
Now, if you’re thinking about long-term value, this master suite is a serious boost to your property value.
Homes with features like these tend to stand out in the real estate market — something any savvy real estate agent will confirm.
And if you’re ever planning to refinance your mortgage, having such an exceptional master suite can make your home an even stronger investment.
An Upstairs Designed for Everyday Living
The upstairs level isn’t just about luxury; it’s about practicality too. Each of the secondary bedrooms includes a walk-in closet — no fighting over space here.
These rooms are perfectly sized for kids, guests, or even a dedicated home office if you want one. The layout ensures everyone has privacy without feeling isolated.
One of the most impressive features is the massive laundry room on this level. Forget lugging baskets up and down the stairs — here, laundry day is almost effortless.
It’s large enough to fold, organize, and even store cleaning essentials without feeling cramped. If there were awards for thoughtful design, this house would take first place.
You can tell this plan was built with modern family needs in mind. It’s the kind of home where daily routines run smoothly, giving you more time to enjoy the things that really matter.
With this much functionality, even a home remodeling contractor would have trouble finding anything to “improve.”
The Balcony Overlook: A Touch of Architectural Drama
Walk through the upstairs hallway, and you’re greeted by an open balcony that overlooks both the foyer and the enormous family room below.
The railings are open on both sides, giving you a breathtaking view of the soaring two-story spaces beneath. It’s dramatic, elegant, and visually ties the two levels together.
This design isn’t just about looks — it’s about how light flows through the home. Natural sunlight from the tall family room windows spills across both levels, keeping every corner bright and welcoming.

It’s the kind of architectural detail that not only enhances everyday living but also makes your home feel endlessly open and connected.
With a space like this, smart home technology can take things even further. Imagine adjusting lighting, temperature, or even music throughout both levels with just your voice or a tap on your phone. It’s modern farmhouse living, elevated — literally.
A Guest Suite That Feels Like Its Own Apartment
On the first floor, tucked toward the back of the home, you’ll find a guest suite that redefines comfort. It’s perfect for in-laws, long-term visitors, or even as a second master suite.
The design provides privacy while keeping it easily accessible from the main areas of the home.
Every thoughtful detail is there — large windows for natural light, a spacious private bath, and close access to the outdoor living spaces.
It’s so comfortable that guests might “forget” to leave. If you’ve ever hosted family for a week, you’ll understand why that’s both a compliment and a gentle warning!
For homeowners who think about long-term living, this suite adds flexibility. It can serve as an in-law suite now and later even provide an ideal setup for multigenerational living.
And with rising mortgage rates, homes that offer multi-use spaces like this can be a fantastic investment for the future.
A Home That Lives Outdoors Too
No farmhouse — especially a modern one — is complete without outdoor living, and this plan takes it to the next level.
From the moment you step onto the covered back porch, you can feel how seamlessly the indoor and outdoor spaces blend.
The outdoor barbecue porch is perfect for weekend cookouts, while the larger porch area offers space for lounging, dining, and entertaining all year round.
It’s easy to imagine summer evenings with friends, the sound of laughter floating through the air, or cozy fall nights by a firepit under the stars.
It’s these experiences that truly make a house feel like a home.
And if you ever decide to sell or refinance, outdoor living areas like these are major selling points that help boost your property value.
You could even use interior design software to visualize how you’d furnish and decorate these spaces — whether you prefer rustic charm or sleek modern elegance.
With a little creativity (and maybe a home improvement loan or two), your backyard could become your personal retreat.
Bonus Space for Future Plans
One of the smartest features in this home is the optional bonus room. It’s unfinished now, but ready whenever you are.
Think of it as a blank canvas — perfect for a home theater, game room, craft space, or even a personal gym.
It’s extra square footage that can grow with your needs, and finishing it later gives you flexibility in your building costs and budget.
If you ever use a building cost estimator or talk to a contractor, you’ll see how valuable this kind of flexible space can be.
It lets you phase your investment without compromising the home’s design. It’s all about creating room for life to evolve.
The Perfect Blend of Function and Curb Appeal
From the street, the side-load garage gives this house a polished, estate-like appearance.
It’s ideal for corner lots, ensuring your home looks just as impressive from every angle. And with space for four cars, you’ll never have to juggle parking again.
This attached garage also provides easy access to the home — perfect during rainy days or when carrying groceries inside.
It’s one of those subtle design decisions that make daily life easier while maintaining a clean, upscale aesthetic.
Even small touches like this can influence your property’s long-term value and overall appeal. A well-designed garage setup can be a key factor for buyers if you ever decide to sell — or simply a detail you’ll appreciate every single day.
Every detail of this 5-bedroom, 2-story modern farmhouse has been crafted with care.

From the two-story family room and the elegant dining hall to the smart layout of the kitchen and private retreats upstairs, it’s a plan that balances luxury with livability.
Whether you’re thinking about purchasing your dream home, using a home equity loan for upgrades, or consulting with a real estate agent about your next investment, this house plan makes every option look brighter.
With its modern features, timeless farmhouse character, and endless potential for personalization, it’s not just a home — it’s a legacy in the making.
So go ahead — imagine building, decorating, and living in a space that captures everything you’ve ever wanted.
Because this isn’t just a farmhouse plan; it’s the ultimate blueprint for living beautifully, smartly, and comfortably — every single day.
Building or buying a home isn’t just about picking the perfect house plan—it’s also about making smart long-term choices. From comparing mortgage rates to finding a trustworthy real estate agent, every decision adds value. Don’t forget to explore options like home insurance, home warranties, and potential refinance opportunities to protect your investment.
Want to boost your property value? Consider installing solar panels, upgrading to energy-efficient appliances, or integrating a smart home system. Plus, tools like interior design software can help you visualize and plan your dream space before the first brick is even laid.
Find More House Plans
By Bedrooms:
1 Bedroom • 2 Bedrooms • 3 Bedrooms • 4 Bedrooms • 5 Bedrooms • 6 Bedrooms • 7 Bedrooms • 8 Bedrooms • 9 Bedrooms • 10 Bedrooms
By Levels:
By Total Size:
Under 1,000 SF • 1,000 to 1,500 SF • 1,500 to 2,000 SF • 2,000 to 2,500 SF • 2,500 to 3,000 SF • 3,000 to 3,500 SF • 3,500 to 4,000 SF • 4,000 to 5,000 SF • 5,000 to 10,000 SF • 10,000 to 15,000 SF










