5-Bedroom 2-Story Modern Farmhouse with Loft, Bunk Room, and Expansive Great Room (Floor Plan)

Specifications:
- 2,743 sq. ft.
- 5 Beds
- 3 Baths
- 2 Stories
- 3 Cars
I’ll admit it right up front—this is one of those house plans that made me pause, lean back, and say, “Yep, this one checks all the boxes.”
With 2,743 square feet of heated space, five bedrooms, three full bathrooms, and a side-entry three-car garage, this modern farmhouse doesn’t just flirt with popular features—it commits.
From the crisp white siding and dark metal roof to the thoughtful interior layout, this plan feels equal parts practical, polished, and ready for real life.
Whether you’re planning to buy your forever home, make a smart investment, or simply daydream while watching mortgage rates like a hawk, this house plan is the kind that makes you start calculating numbers in your head.
I know I did. And yes, I absolutely opened a building cost estimator “just to see.”


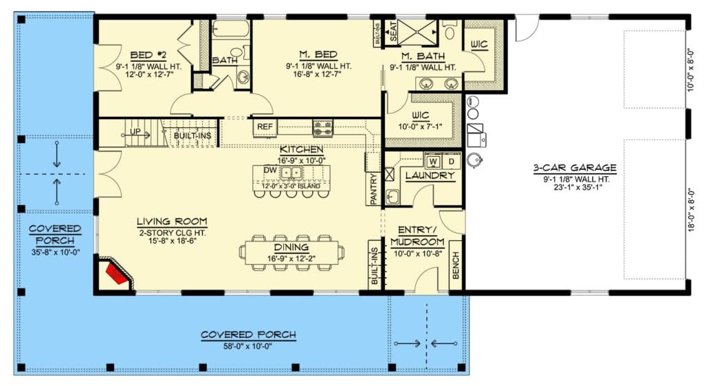
A Front Porch That Sets the Tone
The welcoming front porch does exactly what a farmhouse porch should do—it invites you in without trying too hard.
Step through the front door and you’re greeted by a smart, functional entry that immediately understands how people actually live.
The mudroom, complete with built-ins and a bench, is a quiet hero here.
Shoes, bags, backpacks, and that one jacket no one ever hangs up finally have a home.

From a resale and property value standpoint, this kind of thoughtful transition space is gold.
Any real estate agent will tell you that buyers love a home that feels organized before they even hit the main living area.
And if you’re thinking long-term, features like this can make a refinance mortgage conversation a lot more pleasant down the road.
An Open Layout That Actually Feels Open
Now let’s talk about the heart of the home—the expansive open-concept living area anchored by a dramatic two-story great room. This space doesn’t whisper; it speaks confidently.

The soaring ceiling gives the home an immediate sense of scale, while still managing to feel warm and livable thanks to the family room fireplace.
I love that the kitchen island sink faces forward, so you can cook, chat, and keep an eye on everything at once.
It’s perfect for entertaining, multitasking, or just pretending you’re on a cooking show while reheating leftovers.
The open flow between the great room, dining area, and kitchen is seamless, making everyday living feel easy and connected.

This is also where smart home technology really shines. Lighting, climate control, and even the best home security system can be integrated without disrupting the clean farmhouse aesthetic.
It’s the kind of setup that makes both your credit score and your inner tech nerd proud.
A Kitchen Designed for Real Life
If you’ve ever dreamed of a kitchen that actually supports how you cook, host, and snack at midnight, this one delivers.

The generous island offers plenty of prep space and casual seating, while the walk-in food pantry handles bulk groceries like a champ. Add in the butler’s pantry, and suddenly entertaining feels less like a chore and more like a flex.
I can already picture using interior design software to play around with cabinetry finishes and lighting styles in this space—it’s that customizable.
And if upgrades are on your wish list, home improvement loans or a carefully planned home equity loan could help you personalize without blowing the budget.

Walls of glass line the back of the home, pulling in natural light and backyard views while connecting the interior to the outdoor living spaces.
It’s beautiful, functional, and exactly what modern farmhouse fans are hoping to see when they walk in.
Outdoor Living That Extends Your Square Footage
One of my favorite things about this plan is how seriously it takes outdoor living. The wrap-around covered porch and barbecue porch aren’t just add-ons—they’re true extensions of the home.

Morning coffee, evening dinners, weekend cookouts…this porch does it all.From a lifestyle perspective, this kind of space adds daily enjoyment. From a financial one, it adds appeal when you purchase or eventually sell.
Outdoor living areas often boost perceived value, which matters when you’re thinking about home insurance coverage or future appraisal numbers.
And let’s be honest—porches like this are where memories are made. No spreadsheet required.

A Private Primary Suite That Feels Like a Retreat
Tucked away on the first floor, the primary master suite is exactly where you want it to be—quiet, private, and thoughtfully designed.
The tray ceiling adds architectural interest without being over the top, and the direct access to the back porch feels like a luxury you’ll appreciate more with every passing year.
The ensuite bathroom is spa-like in the best way, with dual vanities, a separate WC, a spacious shower, and a relaxing tub. It’s the kind of bathroom that makes you understand why people talk about self-care so much.

The walk-in closet is generous, well-laid-out, and—thankfully—standard in every bedroom in this house.
This suite alone makes a strong case for the home as a long-term investment. Pair that with a solid home loan pre-approval and a good home warranty, and you’re setting yourself up for confidence, not surprises.
Smart Main-Level Extras That Add Flexibility
Also on the first floor, you’ll find a secondary bedroom with its own full bath—perfect for guests, in-laws, or anyone who prefers not to deal with stairs.

There’s also a dedicated laundry room right where you need it, not awkwardly tucked into a corner of the garage.
Every detail here feels intentional. It’s the kind of layout that makes a home remodeling contractor nod approvingly and say, “They thought this through.”
And they’re right—this plan balances style and function in a way that supports both everyday life and long-term value.
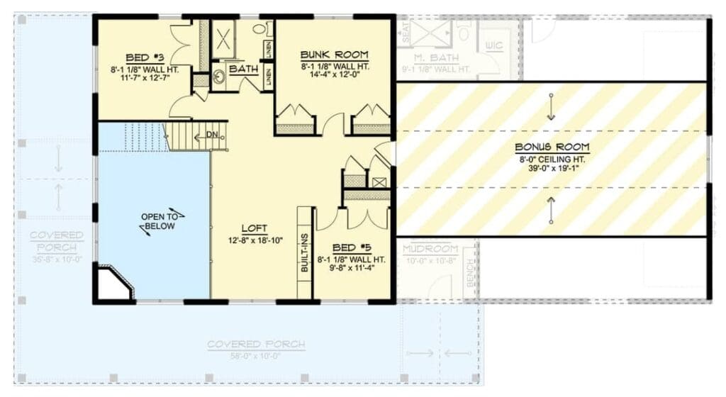
The Second Floor: Where Space, Fun, and Flexibility Come Together
Heading upstairs, the home continues to impress without missing a beat. The second floor is thoughtfully designed to balance privacy, playfulness, and everyday practicality—especially important in a five-bedroom layout.

Three additional bedrooms are located up here, all with walk-in closets, which means no one gets the dreaded “small room.” That alone earns this house plan some serious points in my book.
At the center of it all is an open loft that overlooks the two-story great room below. This visual connection keeps the home feeling cohesive while still offering a quieter zone upstairs.
It’s an ideal spot for reading, homework, or simply escaping with a cup of coffee when the downstairs fireplace isn’t calling your name.

A Bunk Room That’s Built for Memories
Let’s talk about the bunk room, because it deserves its own moment. This space is pure fun wrapped in smart design.
Whether it’s for kids, grandkids, or guests, the bunk room creates an efficient sleeping setup that feels intentional rather than improvised. It’s perfect for sleepovers, holidays, or that one friend who always stays longer than planned.
From a practical standpoint, features like this can seriously enhance property value. Buyers love flexible spaces, and a bunk room adds character without sacrificing square footage.

If you’re thinking about this home as a long-term investment, this room alone makes it stand out in a competitive market.
A Shared Bath That Works Hard
The upstairs bedrooms share a well-appointed full bathroom that’s positioned for easy access from every room. There’s nothing flashy here—just smart, functional design that works for busy households.
When you’re juggling mornings, schedules, and occasional chaos, a layout like this matters more than fancy finishes.

This kind of efficiency is also helpful when budgeting. Between home insurance considerations and future maintenance, a well-planned bathroom layout can save you headaches and money down the road. Trust me, boring-smart design is underrated.
The Loft: Overlooking It All, In the Best Way
The open loft is one of those spaces you don’t realize you need until you have it. Overlooking the great room below, it keeps the home connected vertically while offering a flexible area upstairs.
I can see this working as a casual lounge, a study nook, or even a secondary media spot.If you’re someone who likes to visualize possibilities, this is where interior design software becomes your best friend.

Different furniture layouts, lighting ideas, and finishes can completely transform how this space functions, all without structural changes. That kind of adaptability is exactly what today’s buyers look for when they purchase a home.
Bonus Space That Waits Until You’re Ready
One of the smartest features of this plan is the optional 776-square-foot bonus room on the second floor.
It’s there when you need it, but it doesn’t force you to finish it before you’re ready. Home gym, media room, office, guest suite—the choice is yours, and that flexibility is powerful.

Not finishing it right away can help manage building costs, especially if you’re closely watching mortgage rates or planning your financing carefully.
Down the line, home improvement loans can help you transform the space exactly when it makes sense for your lifestyle or budget. It’s like future-proofing your house without committing upfront.
A Side-Entry Garage That Does More Than Park Cars
This home’s 1,047-square-foot, side-entry three-car garage is more than just a place to park. It’s what makes the plan ideal for a corner lot, preserving curb appeal while keeping things functional.

The side-load configuration also gives the front elevation a cleaner, more traditional farmhouse look.
Garages like this are incredibly appealing from a resale standpoint. Any experienced real estate agent will tell you that side-entry garages photograph better and often attract more attention.
Plus, there’s room for storage, tools, bikes, and maybe that hobby you swear you’re going to start someday.

Outdoor Living That Connects Every Level of the Home
Even though the main outdoor spaces are anchored on the first floor, the second level benefits from how connected the home feels overall.
The wrap-around covered porch and barbecue porch below serve as visual anchors from upstairs, reinforcing that indoor-outdoor flow that modern farmhouse buyers crave.
These outdoor spaces don’t just add charm—they add usable living area. From a financial perspective, that can influence appraisals and long-term equity.

It’s the kind of design that quietly supports the idea of a home equity loan someday, should you ever want to leverage the value you’ve built.
A Layout That Makes Everyday Living Easier
What really stands out to me is how cohesive the entire home feels. The split-bedroom layout ensures privacy, the open living areas encourage connection, and every square foot feels intentional. Nothing feels wasted or awkwardly placed.
This is also a home that supports smart planning. With the right home loan pre-approval, you can confidently move forward knowing the layout works for today and tomorrow.

Add a solid home warranty, and suddenly the unknowns of homeownership feel a lot more manageable.
At the end of the day, this 2,743-square-foot modern farmhouse isn’t just about good looks, though it clearly has those. It’s about livability, flexibility, and long-term value.
From the two-story great room and walls of glass to the bunk room, bonus space, and side-entry garage, every feature feels designed with real people in mind.
Whether you’re planning to buy for your family, purchase as a strategic move, or hold it as a smart investment, this plan supports that decision at every level.
Pair thoughtful design with smart financial planning—good credit score habits, the right insurance, and even a building cost estimator—and you’ve got a home that works just as hard as you do.
Building or buying a home isn’t just about picking the perfect house plan—it’s also about making smart long-term choices. From comparing mortgage rates to finding a trustworthy real estate agent, every decision adds value. Don’t forget to explore options like home insurance, home warranties, and potential refinance opportunities to protect your investment.
Want to boost your property value? Consider installing solar panels, upgrading to energy-efficient appliances, or integrating a smart home system. Plus, tools like interior design software can help you visualize and plan your dream space before the first brick is even laid.
Find More House Plans
By Bedrooms:
1 Bedroom • 2 Bedrooms • 3 Bedrooms • 4 Bedrooms • 5 Bedrooms • 6 Bedrooms • 7 Bedrooms • 8 Bedrooms • 9 Bedrooms • 10 Bedrooms
By Levels:
By Total Size:
Under 1,000 SF • 1,000 to 1,500 SF • 1,500 to 2,000 SF • 2,000 to 2,500 SF • 2,500 to 3,000 SF • 3,000 to 3,500 SF • 3,500 to 4,000 SF • 4,000 to 5,000 SF • 5,000 to 10,000 SF • 10,000 to 15,000 SF










