5-Bedroom 2-Story Luxury Modern Farmhouse with Outdoor Living & Courtyard Entry (Floor Plan)

Specifications:
- 5,216 sq. ft.
- 5 Beds
- 4.5 Baths
- 2 Stories
- 3 Cars
There’s something about a modern farmhouse that just makes you exhale the moment you walk in.
Maybe it’s the combination of rustic warmth and modern polish, or maybe it’s the way natural light pours through walls of glass like it owns the place.
Whatever it is, this 5,216-square-foot stunner checks every box imaginable — and then adds a few surprises you didn’t know you needed until now.
Between the open-concept layout, private study, split-bedroom design, and outdoor living galore (hello, barbecue porch), this home feels like a well-balanced blend of sophistication and comfort.
If you’ve ever dreamed of sipping coffee on a covered deck while your smart home technology quietly adjusts the lights to match the sunrise, welcome home.



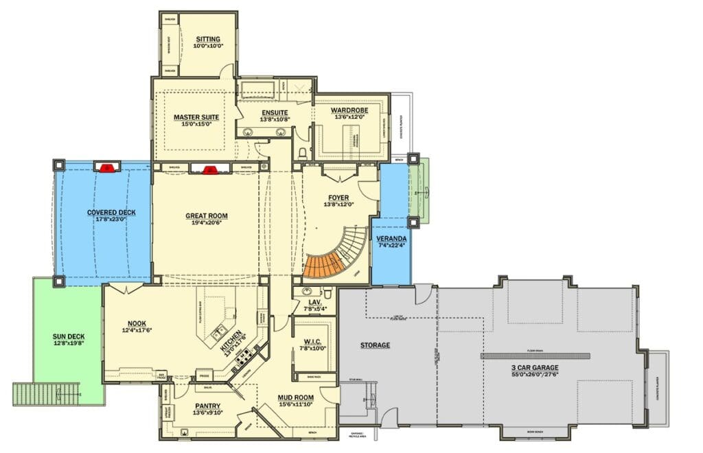
A Grand First Impression
Let’s start with curb appeal, because this one doesn’t just turn heads—it makes the neighbors pause mid-dog-walk.
The arched stone entryway and steep gables create a grand European-style façade that commands attention. It’s the kind of entrance that whispers, “Yes, I did work with a top real estate agent to find this masterpiece.”
As you step inside the formal foyer, the high ceilings and open layout draw your eyes forward into the great room.
The fireplace instantly warms the space, both literally and emotionally. It’s the kind of spot where you can picture hosting cozy evenings without feeling cramped.
And when the topic of mortgage rates comes up at dinner, you can just smile knowing you’ve invested in a property with exceptional property value that only gets better with time.
An Open Layout That Feels Effortless
The great room flows seamlessly into the kitchen and dining nook, creating an entertainer’s dream. The kitchen island—complete with a front-facing sink—means you can chat with family or watch your favorite show while prepping dinner.
And if you’re like me and occasionally get distracted by a sizzling pan, don’t worry—the best home security system will make sure you’re alerted if that “sizzle” becomes a “smoke.”
Behind the kitchen lies a chef’s best friend: the walk-in food pantry and butler’s pantry. These spaces are perfect for storing everything from your new air fryer to that one jar of specialty honey you bought on impulse.
The design is practical yet elegant, proving that good interior design software doesn’t just create pretty pictures—it designs lifestyles.
Light, Views, and Easy Living
Thanks to the walls of glass that frame the back of the house, natural light floods the great room, kitchen, and dining spaces. These aren’t your average windows—they’re almost architectural art.
Every time you glance out, you’ll see your covered porch, sun deck, and backyard blending together like one endless invitation to relax.
If you’re the type who loves outdoor entertaining, you’ll adore the barbecue porch. Whether you’re cooking burgers on a summer evening or watching football by the outdoor fireplace in fall, this home brings indoor-outdoor living to a new level.
The Master Suite: Your Personal Sanctuary
Let’s talk about the master suite—because it deserves a standing ovation. First, there’s the tray ceiling that adds height and drama without trying too hard.
Then there’s the private door leading directly to the back porch, making those quiet morning moments feel like a retreat.
And yes, there’s a massive walk-in closet—because no dream home is complete without one (or two). It’s roomy enough to store every outfit you swore you’d wear again someday.
Of course, practical considerations matter too. As you plan your purchase, remember to factor in home insurance and perhaps a home warranty to keep everything protected from the unexpected. These aren’t just line items—they’re peace-of-mind investments for your future.
A Smart Home for Smart Living
This home’s design effortlessly embraces smart home technology. From automated climate control to voice-activated lighting, you can personalize your space with ease.
Imagine pulling into your side-load garage, saying “I’m home,” and watching your favorite playlist start as the living room lights softly illuminate.

Tech isn’t the only modern touch here. The entire layout has been crafted to make daily life feel streamlined. The mudroom is a gem, complete with custom storage to keep clutter out of sight.
With a quick glance at your credit score app and a reminder that your home loan pre-approval made this possible, you can’t help but feel a little proud of your well-planned journey.
The Upstairs Retreat
Climb the stairs and you’ll find a space that feels like a private world of its own. Three secondary bedrooms, each with their own walk-in closet, make this level perfect for kids, guests, or even a private home office (or two).
There’s also a bonus room—a blank canvas that could become a gym, hobby studio, or theater room.
Need help budgeting for it? A building cost estimator or even home improvement loans can come in handy when you’re planning that dream-level finish.
Design That Evolves with You
One of the most thoughtful elements of this floor plan is its flexibility. Maybe today you’re using the upstairs office as a homework hub for the kids.
Tomorrow? It’s your remote workspace for that side hustle you’ve been meaning to grow.
And if you ever want to refinance mortgage down the road, the home’s spacious layout and timeless design mean your property value is likely to stay strong. In the ever-changing world of real estate, that’s a huge advantage.
Luxury Below the Surface
Head downstairs and you’ll discover a fully finished lower level designed for ultimate leisure.
With two additional bedrooms, a cozy family area, and optional features like a home theater and wet bar, this level turns your home into a personal resort.
Thinking about the long-term investment aspect? A finished basement adds not only comfort but measurable home equity.
Whether you’re planning to buy and stay for life or someday cash in on your home equity loan, it’s nice knowing your home is working for you in more ways than one.
And with a home remodeling contractor or designer to help personalize the space, you can make this level your own version of paradise.
Outdoor Living at Its Best
The outdoor living spaces are where this plan truly shines. A covered porch for cozy evenings, a sun deck for morning yoga, and dual covered patios for entertaining—all connected to your main living areas through those stunning glass walls.
This setup gives you endless ways to enjoy every season. Fire up the grill in summer, sip hot cocoa in winter, and let nature do its thing year-round.
And if you’re thinking about the investment side of things, outdoor living spaces are a proven way to boost property value—and bragging rights.
Upstairs, Downstairs, and All Around: Exploring Every Corner of This Modern Farmhouse
You know that feeling when a home just keeps surprising you—in the best way? That’s exactly what happens as you dive deeper into this two-story modern farmhouse plan.
Every level, every nook, and every porch has been thoughtfully designed to blend luxury, function, and family-friendly comfort.

With over 5,200 square feet of space, this home feels like a living, breathing dream that somehow anticipates what you need before you even think it.
A Second Floor That Feels Like Its Own World
Head upstairs and you’ll instantly notice how spacious yet personal the design feels. The upper level isn’t just for sleeping—it’s a whole separate retreat.
There are three generous bedrooms here, each blessed with its own walk-in closet. No fighting over closet space, no trying to cram storage bins under beds—just pure organization bliss.
There’s also flexibility built right in. Two potential home offices mean you can easily turn one into a study area, a library, or even a quiet reading nook.
The large bonus room provides endless options too—transform it into a playroom, an art studio, or a media lounge. With this kind of adaptability, you can grow into this house for decades.
And let’s be honest, a layout this good is a real estate agent’s dream. The balance of private and shared spaces not only adds to daily comfort but also strengthens long-term property value.
The Masterpiece of the Main Level
Back downstairs, the open layout takes center stage again. The great room, anchored by that cozy fireplace, remains the heart of the home.
Its seamless connection to the chef-inspired kitchen means you can stir a pot of soup while still chatting with family or enjoying the backyard view through those impressive walls of glass.
The kitchen island faces forward so you’ll never miss a moment, whether you’re supervising homework, hosting friends, or daydreaming about your next home improvement loan project.
The butler’s pantry and walk-in pantry make entertaining effortless and organization a breeze. Every appliance, every detail, every inch of counter space feels intentional—like someone finally read your mind.
If you’ve ever used interior design software to plan a dream kitchen, this is the one that makes you close your laptop and say, “That’s it. That’s the one.”
Master Suite Magic
The master suite on the main level is where elegance meets ease. A graceful tray ceiling adds visual height, while soft light filters in through large windows.
The direct back porch access turns your bedroom into a private getaway—you can slip outside in the morning for a cup of coffee or unwind in the evening under the stars.
The walk-in closet feels like its own boutique, spacious enough to house every wardrobe dream you’ve ever had. It’s a space that whispers, “Go ahead, buy that extra pair of boots—you’ve got room.”
And beyond the beauty lies the practicality. A home of this caliber is a long-term investment, one that’s worth protecting with the right home insurance and home warranty. It’s about ensuring your sanctuary stays perfect no matter what life throws your way.
The Lower Level: Entertainment Meets Relaxation
When you head down to the lower level, the possibilities just keep expanding. Two additional bedrooms make this floor perfect for guests, teens, or even an in-law suite.
The large family area can easily double as a home theater or gaming lounge—especially if you decide to add that optional wet bar.
This level gives you the freedom to create an entertainment zone that rivals any vacation home.

And if you’re thinking about the financial side of it, finishing the lower level adds instant home equity and boosts your home’s property value.
Whether you stay for life or plan to refinance mortgage in the future, this space pays off both emotionally and financially.
Outdoor Living That Steals the Show
The outdoor spaces are where this farmhouse really turns into a lifestyle statement. Between the covered deck, sun deck, and dual covered patios, you’re spoiled for choice. Hosting a weekend barbecue?
Fire up the grill on the barbecue porch. Want a quiet night? Lounge on the back porch with a blanket and a glass of wine while your smart home technology dims the lights to perfection.
Every outdoor area connects seamlessly to the indoor living spaces, blurring the lines between home and nature. It’s not just design—it’s harmony. And these spaces aren’t just beautiful; they’re smart investments.
Outdoor living areas like these have been proven to increase property value and attract buyers faster if you ever decide to sell or buy another dream home.
A Garage That Does More Than Store Cars
The 3-car attached garage isn’t just about parking; it’s about possibilities. With its side-load design, it enhances curb appeal, especially for corner lots.
Inside, there’s ample storage for tools, sports gear, or even a small workshop setup.
It’s the kind of space that gives you freedom—freedom to organize, to create, and to make the most out of every square foot of your property.
If you’re budgeting your build, a building cost estimator can help you keep things on track while planning every inch of your new garage paradise.
A Floor Plan That Builds a Future
This modern farmhouse isn’t just a place to live—it’s a plan for the future. The open layout, functional design, and adaptable spaces make it easy to evolve as your needs change.
Whether you’re adding a home gym, remodeling for accessibility, or finishing that upstairs bonus room, this layout is built to accommodate your vision.
And while you’re at it, working with a trusted home remodeling contractor can ensure your upgrades stay true to the home’s design.
Pair that with smart financial planning—maybe using home improvement loans or home equity loans—and your dream updates can become reality without straining your budget.
It’s the kind of thoughtful planning that makes every purchase decision feel like a strategic investment.
Timeless Style, Endless Comfort
From the moment you step through the arched stone entryway to the time you kick off your shoes in the great room, this home exudes balance.
The grand European-inspired exterior gives way to a cozy, open interior that feels just as welcoming on a lazy Sunday as it does during a festive holiday gathering.
This isn’t a home that tries too hard—it simply gets everything right. Warm finishes, smart design, and just enough flair to make it stand out from the crowd.

Add in the fact that it’s equipped to handle everything from smart home technology to best home security systems, and you’ve got yourself a true modern marvel wrapped in farmhouse charm.
At its core, this home plan is about living beautifully without compromise. It’s about open spaces that bring people together, private retreats that recharge your soul, and outdoor areas that celebrate every season.
It’s about making smart choices—whether that’s securing the best mortgage rates, getting home loan pre-approval, or planning ahead for maintenance with a home warranty.
In every sense, this modern farmhouse isn’t just a dream—it’s a lifestyle, a legacy, and an investment that keeps giving back.
When I imagine living here, I picture laughter echoing through the great room, the glow of the fireplace on a winter night, and that quiet satisfaction of knowing you didn’t just buy a house—you built a home worth every bit of effort and every beat of your heart.
Building or buying a home isn’t just about picking the perfect house plan—it’s also about making smart long-term choices. From comparing mortgage rates to finding a trustworthy real estate agent, every decision adds value. Don’t forget to explore options like home insurance, home warranties, and potential refinance opportunities to protect your investment.
Want to boost your property value? Consider installing solar panels, upgrading to energy-efficient appliances, or integrating a smart home system. Plus, tools like interior design software can help you visualize and plan your dream space before the first brick is even laid.
Find More House Plans
By Bedrooms:
1 Bedroom • 2 Bedrooms • 3 Bedrooms • 4 Bedrooms • 5 Bedrooms • 6 Bedrooms • 7 Bedrooms • 8 Bedrooms • 9 Bedrooms • 10 Bedrooms
By Levels:
By Total Size:
Under 1,000 SF • 1,000 to 1,500 SF • 1,500 to 2,000 SF • 2,000 to 2,500 SF • 2,500 to 3,000 SF • 3,000 to 3,500 SF • 3,500 to 4,000 SF • 4,000 to 5,000 SF • 5,000 to 10,000 SF • 10,000 to 15,000 SF










