5-Bedroom 2-Story Luxury Farmhouse With Walkout Basement and Expansive Outdoor Living (Floor Plan)

Specifications:
- 3,771 sq. ft.
- 5 Beds
- 4.5 Baths
- 2 Stories
- 4 Cars
There’s a moment—right before you walk through the front door—where your imagination starts racing.
You wonder, “Could this be the one?” That’s exactly what happened to me when I came across this jaw-dropping modern farmhouse plan.
It’s like the architectural gods knew I wanted style, space, and smart functionality all wrapped up in one beautiful package. And the best part?
It’s budget-friendly without sacrificing charm.
Let’s dive into this masterpiece together.



Welcome Home: Where Clean Lines and Big Dreams Begin
Step inside, and the first thing you’ll notice is the airiness. The foyer greets you like a well-trained real estate agent: welcoming, elegant, and eager to show off its best features.
From the moment you enter, your eyes travel past the entryway, through the great room, and out into the backyard—all thanks to walls of glass that flood the space with natural light.

And yes, this is where you’ll already start thinking about mortgage rates, home loan pre-approval, and whether you need to refinance your mortgage because you’re in love.
The soaring ceiling in the great room practically demands your attention. It doesn’t whisper; it shouts “open layout,” and you’ll want to shout back “Where do I sign?”

The clean lines and contemporary vibe give this farmhouse a modern twist that’s both sophisticated and cozy—like Joanna Gaines met Elon Musk and they collaborated on your future.
Cooking, Entertaining, and Probably Never Wanting to Eat Out Again
Now let’s talk about the kitchen—because if a home had a heartbeat, this would be it. The island, complete with a forward-facing sink, lets you cook while still being part of the action.

That means you can sauté, sip wine, and throw shade during game night, all without turning your back on your guests. It’s like the ultimate home improvement loan-worthy centerpiece.
And storage? Oh, honey, you’ve got options. There’s a spacious walk-in pantry for your Costco hauls and a butler’s pantry that’s just begging to host a cheese board. Hosting Thanksgiving? Bring it on.

That collapsible wall in the dining room opens up to the covered deck, making it a dream for al fresco entertaining. Just imagine the aroma from your barbecue drifting through—pure magic.
Fireplaces, Family Rooms, and Feels
The family room cozies up next to the kitchen, complete with a fireplace that’s basically an invitation to throw on fuzzy socks and binge-watch something that requires zero brain cells.

Picture this: flames crackling, dog at your feet, coffee in hand, and your smart speaker quietly playing jazz in the background. All thanks to the smart home technology you’ll definitely be integrating here.
That fireplace isn’t just for ambiance—it’s a statement piece that raises your property value and makes every winter holiday feel like a Hallmark movie. And honestly? That’s a great return on investment.

A Den for Your Zen (or Zoom)
Just off the main area, there’s a den that’s full of windows and full of promise. Whether you’re closing deals, writing a novel, or just “working” with a Netflix tab open, this room is the oasis of productivity and calm you didn’t know you needed.
It’s private, quiet, and lets you actually take those video calls without having to blur your background (finally).

With a space like this, you’re not just buying a home—you’re investing in peace of mind. And maybe even boosting your credit score while you’re at it, because having a dedicated workspace might mean fewer takeout orders and more focus on your financial goals.
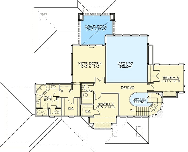
Sleep Like Royalty—Master Suite Goals
Let’s talk about the master suite because wow—it’s giving “boutique hotel meets forever home.”

This dreamy retreat has a tray ceiling that adds subtle elegance, a walk-in closet the size of my first apartment, and its own private door to the back porch. Want to sneak out with your coffee at sunrise without waking the kids? Now you can.
And wait for it—the upstairs master also has its own private deck. Let that sink in. This isn’t just a place to sleep; it’s a place to live. With space like this, you’re going to start thinking about home insurance just to protect this slice of heaven.

The Walk-In Closet Club: Every Bedroom Gets One
This house does something extraordinary: it gives every single bedroom its own walk-in closet. No more teenage drama over shared drawers or stuffing sweaters into shallow shelves.
Everyone gets storage that fits their style—and all those Black Friday deals you swore were necessary.

And let’s be honest, giving everyone their own space might just keep family peace intact. You might even avoid the need for a home remodeling contractor in the future just to expand a cramped room.
Split Bedrooms, Because Boundaries Are Beautiful
One of the smartest design choices here is the split-bedroom layout. The master suite is on one end of the house, while the other bedrooms are on the opposite side.

This gives everyone a sense of privacy and independence, without needing to put up literal “Do Not Disturb” signs. It’s a layout that works for multi-generational families, guests, teens, or even if you just need an excuse to sneak away from your own kids .
Bonus Space? Yes, Please.
And if all that isn’t enough, there’s optional bonus space that can be finished whenever you’re ready. Home gym? Movie theater?

A second office so you and your partner don’t have to fight over Zoom real estate? The choice is yours. This is where interior design software becomes your new best friend—hello, 3D floor plan planning.
This flexibility not only makes the house adaptable as your needs change, but it also boosts home equity loan potential down the road. You’re not just buying now—you’re planning for the future. And I love that for you.

A Garage Built for the Modern Family (and All Their Stuff)
Let’s not forget the garage. With space for four cars, it’s perfect whether you’ve got a collector’s dream, a growing family, or just a serious hobby that requires gear, gear, and more gear. The side-load design is corner-lot-friendly and adds visual appeal without crowding your curb.
Honestly, it’s a feature that savvy real estate agents love to see—it keeps the front of the house picture-perfect while still delivering function. Whether you’re storing kayaks, bikes, or bulk toilet paper, this garage has your back.

he Upstairs: Overlooks, Light, and Room to Grow
You know what’s wildly underrated? A second floor that feels just as open and inviting as the main one. That’s exactly what you get here.
As you head up the stairs, the bridge hallway gives you a breathtaking view of the great room below—kind of like your own personal catwalk. Walk it like you own it, because soon you just might.

Up here, you’ll find two more generously sized bedrooms. And in true Above and Beyond fashion, both come with walk-in closets.
I know I already gushed but honestly—when was the last time you saw a house plan that gave every bedroom this much love? I’ve seen apartments smaller than one of these closets. It’s not just thoughtful; it’s downright luxurious.

These upstairs bedrooms share a bath, which is conveniently placed and surprisingly spacious. If you’re planning to buy this home as a long-term investment, these rooms make perfect sense for growing kids, guests, or even a live-in relative. Flexibility is the name of the game, and this farmhouse is winning.
The Master’s Private Balcony: Yes, Another One
Let’s circle back to the master suite for a second—because we need to talk about that private balcony. Imagine stepping out of your bedroom and onto a serene deck to watch the sunrise. No noise, no clutter, just you and your morning coffee.

It’s one of those features that really elevates the property value, but it’s also pure joy. And if we’re being real, it’s a great space to escape to when your in-laws are visiting and your sanity is hanging by a thread. No judgment. Been there.
Downstairs Delights: The Lower Level That Has It All
Now, let’s head to the finished lower level, which is basically a second home. I’m not exaggerating—this space is massive.

We’re talking two more bedrooms , a large rec room, a wine room, and access to a covered patio that practically screams, “Let’s throw a party.”

This lower level is ideal if you’ve ever dreamed of having an entertainment zone that doesn’t interfere with the upstairs zen. Movie marathons, pool tables, impromptu karaoke battles—it’s all possible here.

And if you’re into home improvement loans, this space gives you all the ROI justification you need. You can finish it to match your vibe exactly, whether it’s rustic wine cellar or sleek sports bar.

Rec Room Royalty
The rec room is the centerpiece of the lower level. It’s roomy, bright, and opens up to the outdoors, making it ideal for year-round fun.

Plus, it’s the kind of space that grows with your family. Toddlers? Turn it into a playroom. Teens? Game central. Empty nesters? Pool table and wine fridge, baby.

You’ll be surprised how much smart home technology you can integrate down here—from lighting and sound systems to temperature zones and security.

Speaking of which, investing in the best home security system will not only protect your home but add peace of mind when you’ve got valuables—or kids—roaming around multiple levels.

Wine Room Wonders
Now, the wine room. This little gem deserves its own spotlight. Whether you’re a connoisseur or just enjoy a chilled bottle on Friday night, having a designated wine room feels extra—in the best way.

This feature alone could sway someone on the fence about whether to purchase or pass.

It’s also one of those bonus spaces that makes this home feel personal. You’re not just getting square footage. You’re getting a lifestyle. And that adds serious weight to any building cost estimator analysis, especially if you’re thinking long-term.

Outdoor Living, Upgraded
This house was built to bring the outdoors in. Between the covered deck, private balcony, and ground-level patio, you’ve got multiple zones for outdoor enjoyment.

Want to install a hot tub on the lower patio? Go for it. Fire pit? Absolutely. A hammock under twinkle lights? Why haven’t you done that already?

The dining room’s collapsible wall opens up to the deck like something out of a magazine. It’s home remodeling contractor goals—except it’s already included in the plan. No renovation necessary.

You get outdoor access that feels seamless and intentional, all while raising that sweet, sweet home equity loan potential.

Corner-Lot Curb Appeal
The side-load garage doesn’t just add functional storage for your car collection —it also gives the front of the house a polished, uncluttered look.

That kind of curb appeal is gold, especially if you’re buying in a competitive neighborhood or planning to resell someday.

And for those of you with a real estate-savvy eye, yes—this layout makes the home perfect for a corner lot. It’s something your real estate agent will highlight with pride when you go to buy .
Maybe you’re a first-time buyer. Maybe you’re upgrading. Maybe you’re eyeing this home as a purchase that becomes a multi-generational retreat. No matter your reason, this plan makes a powerful case for “the one.”
And let’s not forget—if you’re navigating the maze of mortgage rates, thinking about a refinance mortgage, or planning your investment strategy, this house checks all the boxes. It’s stylish, smart, spacious, and efficient.
So go ahead. Daydream. Use your interior design software to pick paint colors. Get that home warranty quote. This house plan isn’t just a layout—it’s a lifestyle waiting to happen.
And if you need help picking out patio furniture or choosing between herringbone or subway tile, call me. I’ll bring the wine. From the wine room, of course.
Building or buying a home isn’t just about picking the perfect house plan—it’s also about making smart long-term choices. From comparing mortgage rates to finding a trustworthy real estate agent, every decision adds value. Don’t forget to explore options like home insurance, home warranties, and potential refinance opportunities to protect your investment.
Want to boost your property value? Consider installing solar panels, upgrading to energy-efficient appliances, or integrating a smart home system. Plus, tools like interior design software can help you visualize and plan your dream space before the first brick is even laid.
Find More House Plans
By Bedrooms:
1 Bedroom • 2 Bedrooms • 3 Bedrooms • 4 Bedrooms • 5 Bedrooms • 6 Bedrooms • 7 Bedrooms • 8 Bedrooms • 9 Bedrooms • 10 Bedrooms
By Levels:
By Total Size:
Under 1,000 SF • 1,000 to 1,500 SF • 1,500 to 2,000 SF • 2,000 to 2,500 SF • 2,500 to 3,000 SF • 3,000 to 3,500 SF • 3,500 to 4,000 SF • 4,000 to 5,000 SF • 5,000 to 10,000 SF • 10,000 to 15,000 SF










