5-Bedroom 2-Story Farmhouse with Expansive Outdoor Living and Bonus Lower Level (Floor Plan)

- 2,935 sq. ft.
- 5 Beds
- 3.5 Baths
- 2 Stories
- 3 Cars
Let me tell you something right off the bat: I’ve seen my fair share of house plans, but this one feels like it walked straight out of a dream and into reality.
You know that feeling when you see a home and instantly think, “Yep, this could be it”?
That’s exactly what happened when I dove into this modern farmhouse plan.
It’s spacious without being over the top, cozy without feeling cramped, and filled with all those thoughtful touches that make everyday living smoother (and let’s be honest, way more stylish).
So grab a cup of coffee, because I’m about to take you on a little tour through this gem of a house plan—complete with porches for lazy summer evenings, fireplaces for chilly nights, and enough room to host every holiday dinner without anyone fighting for elbow space.



The First Impression: A Porch That Welcomes Everyone
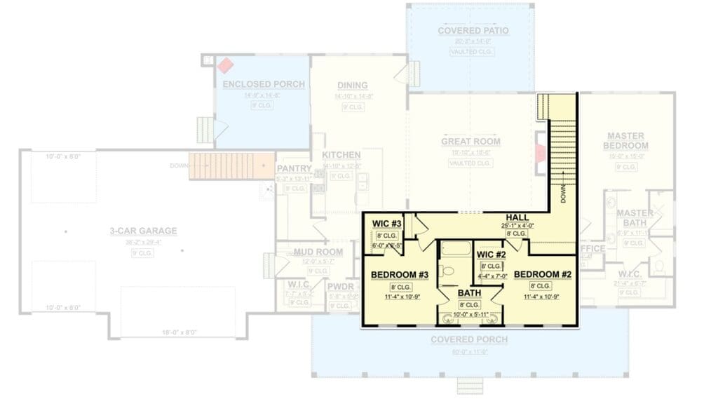
The first thing you’ll notice about this farmhouse is the front porch, stretching a generous 50 feet wide and 11 feet deep.
It’s basically a statement piece, telling guests right away, “Yes, I’m friendly, yes, I love rocking chairs, and yes, lemonade will be served.”
This porch also adds instant curb appeal, which means your property value already gets a nice boost the day you build.
And if you’re thinking like an investor—or even just someone aware of today’s mortgage rates—you’ll know that first impressions really do matter when it comes time to buy or sell.
A porch like this isn’t just charming, it’s an investment in long-term appeal.
Walking Through the Front Door
Step inside and you’re greeted by a barrel-vaulted ceiling in the foyer. I’ll be honest: it feels more like a boutique hotel lobby than a suburban entryway.
To the left, there’s a study (perfect for working from home, or for showing your real estate agent you mean business when you talk about that home loan pre-approval).
Straight ahead, the great room practically begs for attention with its fireplace and oversized opening into the eat-in kitchen.
I can already picture family movie nights here, the glow of the fire making everything feel a little extra magical.
The Kitchen: Where Magic (and Snacks) Happen
Here’s where this house really shows off. The kitchen sink is set in the island, and it faces forward—meaning you can chop, stir, and sneak bites of cookie dough without missing a single conversation happening in the family room.

Behind you? Not just one pantry, but two: a walk-in food pantry and a butler’s pantry.
Honestly, whoever designed this house must have known how much I love snacks.
And let’s not ignore how those pantries help with property organization—it’s the kind of thing an interior design software mockup can’t quite capture, but once you live with it, you’ll never go back.
Plus, with walls of glass lining the back, the kitchen gets flooded with natural light. You’ll feel like you’re cooking outdoors, minus the mosquitos.
Master Suite Goals
On the main floor, the master suite feels like its own private retreat. A tray ceiling adds height and elegance, while French doors open directly to the back porch.
If you’ve ever dreamed of sipping your morning coffee outside in complete peace, this design delivers.
The master closet? Enormous. And, wait for it—it connects straight to the laundry room.
I’m not saying this feature will increase your credit score, but it sure feels like a reward for good life choices. It’s the little things like this that turn a house into a long-term investment in comfort.
Bedrooms for Everyone (and Then Some)
Every single bedroom in this farmhouse gets its own walk-in closet, which is a total win if you have kids, teenagers, or just a shoe addiction you don’t want judged.
Upstairs, the bedrooms are split with a Jack-and-Jill bathroom setup—practical, functional, and a lifesaver for busy mornings.

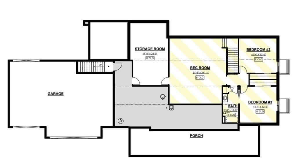
Need more room? There’s an optional bonus space ready to be finished when the time (and maybe the refinance mortgage funds) are right.
Flexibility like this makes the plan suitable for growing families or anyone wanting to keep future options open.
Outdoor Living at Its Finest
Now, let’s talk about those outdoor spaces. This house isn’t shy about them. There’s a barbecue porch for summer grilling, an enclosed porch off the dining room for bug-free evening hangouts, and that massive front porch I already raved about.
Outdoor living spaces aren’t just trendy—they’re a solid investment in your lifestyle. They extend your usable square footage and boost your property value without even touching the interior.
And if you’ve got the best home security system paired with some smart home technology, you’ll enjoy these spaces with peace of mind.
A Garage That Means Business
This home comes with a side-load 3-car garage, making it perfect for a corner lot. Not only does it keep the front view sleek and farmhouse-chic, but it also offers 1,142 square feet of garage space.
Translation: you’ll finally have room for cars, tools, bikes, and maybe even that home improvement project you swore you’d finish last summer.
And here’s a pro tip: if you’re using a building cost estimator, don’t underestimate the value of garage space.
It’s one of those hidden perks that boosts resale appeal and helps when you’re ready to buy or sell.
Hidden Superpowers: Service Areas That Work Overtime
Sometimes, the least glamorous parts of a house are the ones that save your sanity.

This plan includes a mudroom with a coat closet (say goodbye to the avalanche of jackets by the door), a giant walk-in pantry, and lower-level storage accessible from both the main stairwell and the garage.
These service areas make daily life run smoother, and honestly, that’s where the true value lies in a well-designed floor plan. It’s not just about looking good—it’s about living well.
And if you ever bring in a home remodeling contractor down the road, these spaces give you flexibility without compromising the main living areas.
Making the Most of Every Square Foot
When I first looked at this house plan, I thought, “Wow, this is already amazing.”
But then I saw the optional spaces, the smart layout choices, and all the possibilities for customizing it to fit a family’s lifestyle, and my jaw kind of dropped. It’s not just about what’s built in—it’s about what you can do with it.
That’s what makes this farmhouse feel like more than just a home; it feels like an investment in your future.
Bonus Space That Works Overtime
One of my favorite features in this plan is the optional bonus room. You don’t have to finish it right away (hello, building cost estimator telling you to breathe easy), but when you’re ready, this space could become almost anything.
A game room for the kids? Done.
A private office with smart home technology powering every gadget? Absolutely.
A media room with surround sound for movie marathons? Yes, please.
And here’s the kicker: finishing that bonus space can increase property value down the line.
It’s like having a secret weapon tucked upstairs, waiting to boost your investment when the timing—and maybe your credit score—allows.

The Lower-Level Advantage
If you’re the type who thinks bigger is better, this farmhouse plan doesn’t disappoint. The lower-level offers the option to add an extra 1,200 square feet when finished.
Imagine the possibilities: a guest suite, a second family room, or even an income-generating apartment. Talk about a smart purchase with built-in flexibility.
Plus, lower-level storage areas are accessible from both the garage and main stairwell, which means no more lugging holiday decorations through tight hallways.
A thoughtful touch, but also the kind of detail that makes long-term homeownership a little easier (and more fun).
Designing for Today and Tomorrow
Let’s be honest: trends in housing come and go, but the farmhouse look has serious staying power.
Pair that timeless style with today’s smart design features, and you’re set for years to come.
Picture integrating the best home security system to cover every porch, window, and entry.
Add smart home technology for lighting, climate control, and security cameras. Suddenly, your modern farmhouse isn’t just charming—it’s futuristic.
And if you’re the kind of person who loves to play around with ideas before making them reality, interior design software can help you visualize everything from furniture layouts to wall colors. I can already see the Pinterest boards forming.
Real-Life Comfort Meets Long-Term Investment
Now let’s talk strategy for a minute. This home isn’t just a comfy place to live; it’s also a smart financial move.

With mortgage rates always fluctuating, getting home loan pre-approval early means you can lock in favorable terms before starting construction.
A refinance mortgage down the road could free up equity for future upgrades, like finishing that lower level or remodeling the kitchen with luxury finishes.
And let’s not forget home equity loans and home improvement loans—both can help fund projects like upgrading outdoor spaces or adding built-in cabinetry.
With the right planning, this farmhouse evolves as your life (and budget) does.
The Master of All Suites (Yes, Again)
I know I already sang praises for the master suite, but let me circle back because it’s that good.
The direct access to the porch makes it feel like a private retreat, while the enormous walk-in closet practically deserves its own zip code.
Here’s something else: connecting the closet to the laundry room is more than just convenient—it’s a design move that cuts down on stress and clutter.
It’s one of those features that home remodeling contractors often get asked to add later. But in this plan? Already built in. Score one for thoughtful design.
The Jack-and-Jill Setup Upstairs
If you’ve ever lived in a home where siblings shared a hallway bathroom, you know the morning chaos that comes with it.
Enter the Jack-and-Jill bathroom upstairs, where two bedrooms connect through one well-designed space. Privacy? Check. Efficiency? Double check.

It’s one of those features that doesn’t just look good on paper—it genuinely improves daily life. For families, that’s priceless. For resale, that’s gold.
Outdoor Spaces: More Than Just Pretty
I’ve already mentioned the barbecue porch, the enclosed porch, and the front porch, but they deserve another spotlight.
Outdoor living spaces are one of the biggest draws for buyers today, and they add immediate lifestyle value.
Think about it: dinner parties that start inside can flow out seamlessly onto the porch. Morning workouts can happen outdoors without leaving the property.
Even investing in weather-resistant furniture or a pergola feels like part of the plan.
These spaces blur the line between indoors and outdoors, something every real estate agent will tell you boosts buyer interest. Translation? Higher property value.
Practical Features That Keep Life Running
I love a glamorous kitchen or a cozy fireplace, but sometimes it’s the practical stuff that really makes a house shine. The mudroom with coat closet, for example, is basically the MVP of everyday living.
No more tripping over backpacks or scrambling for shoes—it’s all right there, neatly organized.
Pair that with the walk-in pantry, lower-level storage, and a side-load garage, and you’ve got a house designed not just for show, but for real, messy, daily life.
A home warranty helps keep these systems running smoothly long-term, giving peace of mind that your investment is protected.

Smart Buying and Long-Term Thinking
If you’re considering building this house, think of it as more than a purchase. It’s an investment in comfort, lifestyle, and financial stability.
Between the flexible floor plan, optional bonus areas, and timeless farmhouse charm, this design will hold value no matter how the market shifts.
Working with the right real estate agent ensures you buy land in the right location, while tools like a building cost estimator help you plan your budget realistically.
Pair that with a little foresight—maybe a refinance mortgage or home equity loan later—and you’ve got a strategy that balances immediate needs with long-term goals.
So, let’s recap what makes this house plan a standout choice: A welcoming 50-foot-wide front porch that instantly elevates curb appeal.
An open layout with walls of glass, filling the home with natural light.A kitchen that blends style with serious function (two pantries!).
A master suite designed for luxury and convenience.Walk-in closets for every bedroom, plus a Jack-and-Jill bathroom upstairs.
Optional bonus space and a finishable lower level for endless flexibility.Outdoor living spaces that make entertaining (and relaxing) a joy.
Practical service areas that keep daily life running smoothly.A 3-car side-load garage perfect for a corner lot.
Combine all of this with careful financial planning, smart use of technology, and the peace of mind that comes with home insurance and a home warranty, and you’re not just building a house—you’re building a life.

At the end of the day, a house is more than square footage and building materials. It’s about how it feels when you walk through the door, how it adapts to your family, and how it supports your lifestyle.
This modern farmhouse checks all those boxes and then some.
Whether you’re thinking of it as your forever home, a strategic investment, or simply the next big step after scrolling through endless listings, this plan brings together the best of design, function, and future-proofing.
So if you’re ready to buy, build, or dream big, this farmhouse just might be the smartest move you’ll ever make.
And hey, if nothing else, that porch alone will make you the envy of the neighborhood.
Building or buying a home isn’t just about picking the perfect house plan—it’s also about making smart long-term choices. From comparing mortgage rates to finding a trustworthy real estate agent, every decision adds value. Don’t forget to explore options like home insurance, home warranties, and potential refinance opportunities to protect your investment.
Want to boost your property value? Consider installing solar panels, upgrading to energy-efficient appliances, or integrating a smart home system. Plus, tools like interior design software can help you visualize and plan your dream space before the first brick is even laid.
Find More House Plans
By Bedrooms:
1 Bedroom • 2 Bedrooms • 3 Bedrooms • 4 Bedrooms • 5 Bedrooms • 6 Bedrooms • 7 Bedrooms • 8 Bedrooms • 9 Bedrooms • 10 Bedrooms
By Levels:
By Total Size:
Under 1,000 SF • 1,000 to 1,500 SF • 1,500 to 2,000 SF • 2,000 to 2,500 SF • 2,500 to 3,000 SF • 3,000 to 3,500 SF • 3,500 to 4,000 SF • 4,000 to 5,000 SF • 5,000 to 10,000 SF • 10,000 to 15,000 SF










