5-Bedroom 2-Story European Modern Farmhouse With Bonus Room and 4-Car Garage (Floor Plan)

Specifications:
- 4,639 Sq. Ft.
- 4-5 Beds
- 5.5 Baths
- 2 Stories
- 4 Cars
If you’ve ever dreamed of a house that checks every single box on your wishlist—and even some you didn’t know you had—then buckle up.
I’m about to walk you through a modern farmhouse that’s more than just a pretty porch and a Pinterest-worthy kitchen.
This is a home that delivers on comfort, function, and yes, brag-worthy curb appeal.
So grab your favorite coffee (or let’s be honest—wine), and come with me as we step through this 4,639 sq. ft. modern farmhouse stunner.
Spoiler: It includes walk-in closets in every bedroom, a butler’s pantry, and garage space for four vehicles. I told you it was good.


First Impressions That Stick
Let’s start at the curb. This house is basically what happens when Chip and Joanna Gaines meet a luxury resort.
Crisp white siding, painted brick, and metal roofing set a clean, timeless tone. Timber columns? Check. Symmetry that makes your heart happy? Double check.
The side-load garage doesn’t just look good—it’s also a smart design feature if you’re building on a corner lot. Trust me, your real estate agent will thank you.
Step through the front door, and you’re greeted by a 2-story foyer that floods the space with natural light.
The kind of entryway that makes you feel like you’ve already made it. Right away, you notice how this house flows.
The open layout doesn’t just make things feel airy—it’s the secret sauce behind its family-friendly function.
And in case you’re wondering, yes, smart home technology fits seamlessly into this setup.
Whether it’s lighting, music, or the best home security system money can buy, you can control it all without getting up from your perfectly styled couch.
Kitchen Goals: Activated
If you’ve ever fantasized about hosting dinner parties—or just making boxed mac and cheese in style—the kitchen in this house is your dream come true. The oversized island isn’t just for show.

It comes with a sink that faces forward, meaning you can rinse veggies and keep an eye on the kids or chat with guests in the family room.
And speaking of that family room—it has a cozy fireplace that brings the whole space together.
Warmth, charm, and the perfect excuse to throw on flannel even when it’s 70 degrees outside.
Pantry lovers, rejoice. This house features not just one but two pantries: a walk-in food pantry for all your Costco hauls, and a butler’s pantry that makes entertaining effortless. Plus, it’s all just a few steps from the garage entry, so unloading groceries won’t feel like an Olympic event.
You’ll be glad you have all this space, especially when you’ve just signed a purchase agreement and are juggling a growing family, a fluctuating credit score, and trying to nail down a good home insurance policy all at once.
Main Floor Magic
Just past the kitchen, things get even better. The master suite is tucked away for privacy, and honestly? It’s not just a bedroom—it’s a retreat.
With a tray ceiling, direct access to the back porch, and a spa-like “wet room” that includes a soaking tub and oversized shower, you might never want to leave. Even the pickiest home remodeling contractor would approve of this layout.
And let’s talk closet space. Every single bedroom in this house includes a walk-in closet. No more battling for storage or awkward “his-and-hers” compromises.
You’ve got room for your stuff, your partner’s stuff, and probably even your pet’s wardrobe. (Yes, that’s a thing.)
Want to work from home or need a flex space for guests or in-laws? There’s a room perfectly situated near the front of the house that offers privacy and function.
It’s ideal for a study, home office, or even a cozy library if you’re feeling extra.

Outdoor Living That Goes the Extra Mile
Let’s not skip the outdoor spaces. This house is practically daring you to become a grill master.
The covered rear porch includes a barbecue station and room for every piece of comfy outdoor furniture you’ve been eyeing.
And thanks to the walls of glass along the back of the house, natural light pours into the main floor like it owns the place.
Your interior design software will love all the angles and light. It’s basically a content creator’s dream.
This isn’t just a great spot to sip morning coffee or host game night. It also boosts your property value and makes your home feel even bigger. Outdoor living is a hot commodity in today’s market, and this layout nails it.
Built for Today—and Tomorrow
In case you’re still not sold (though how could you not be?), let’s talk future flexibility. There’s an optional bonus space that you can finish whenever you’re ready.
Maybe it becomes a media room, home gym, craft room, or a second home office.
Or maybe you leave it for now and finish it after a refinance mortgage lets you tap into your home equity loan.
The flexibility of this home makes it a sound investment. It’s not just a place to live—it’s a place that grows with you.
Whether you’re upgrading to a bigger house, downsizing but still want space, or buying your forever home, this one checks all the boxes.

And if you’re stressing about financing all this goodness, don’t. Between a home loan pre-approval, a savvy real estate agent, and a building cost estimator, you can make it happen.
Plus, with mortgage rates still relatively favorable and plenty of home improvement loans available, now might be the best time to buy.
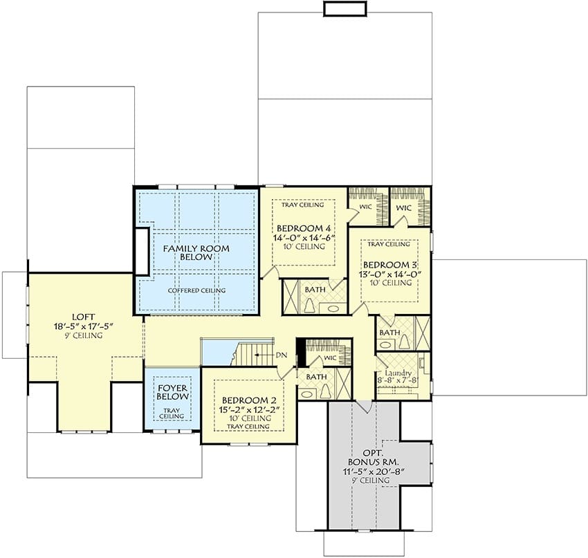
A Loft With Lofty Goals
At the top of the stairs, you’re greeted by a spacious loft area—aka your home’s built-in flex zone.
This space is perfect for a teen lounge, a homework haven, or a second family hangout that doesn’t require sacrificing your formal living room to Minecraft marathons and empty snack wrappers.
The loft is the unsung hero of this home—it adds a casual layer of comfort without sacrificing style.
It also increases the home’s livable square footage in a way that real estate agents, interior design software, and your own sanity will appreciate.
And let’s face it: If you have teens, giving them their own space to exist (and keep the volume up on TikTok) without turning your dining room into a gaming cave is a win for everyone.
Bedrooms That Make Everyone Happy
Now let’s talk bedrooms—three of them, all upstairs, each one with its own bathroom and generous walk-in closet.
No fighting over drawers or squeezing into a sad little corner closet from 1982. This house was designed with real families in mind, not just glossy catalog spreads.
Whether you have kids, frequent guests, or the need for a dedicated yoga-slash-peloton room, these upstairs bedrooms give you the space and flexibility to customize your life. That’s what makes this layout such a solid long-term investment.

Even better, the bathrooms mean fewer early morning squabbles over sink time. Everyone has their own zone, and no one has to suffer through a steamy bathroom mirror left behind by someone else. Small wins are still wins, right?
The Bonus Room You Didn’t Know You Needed
Now let’s talk bonus space. You know that weird moment when you realize you need one more room—for hobbies, a second home office, a playroom, a home theater, or even a man cave?
This house already thought of that. The optional bonus room is the wildcard you didn’t know you’d love so much.
And the best part? You don’t have to finish it right away. When the timing’s right—maybe after a refinance mortgage opens up funds through a home equity loan, or your credit score climbs a bit higher—you can transform this unfinished gem into whatever you want. Talk about smart design and financial flexibility.
If you’re working with a home remodeling contractor, the structure is already there. It’s a project waiting for you when the time and budget align. Plus, with a good building cost estimator, you can plan for it down to the last penny.
Garage Goals: Four Cars, One Roof
Let’s not skip over this garage. Four-car capacity. Front and side entry. Whether you’ve got multiple vehicles, a boat, a few ATVs, or just a ton of seasonal storage needs, this garage has you covered—literally.
Having garage space like this adds major convenience and property value. It’s also perfect for corner lots, where side entry not only looks better but helps with traffic flow and driveability.
If you’ve been looking to buy a home that doesn’t just meet your current needs but also allows for future upgrades and flexibility, this garage setup alone could seal the deal.

Here’s the bottom line: this house isn’t just a structure—it’s a lifestyle. It combines the charm of classic farmhouse design with modern amenities and smart layout choices that truly support how we live today.
It’s a place where your kids can grow, your parents can visit, your friends can gather, and you can breathe.
It offers space to entertain, to work, to relax, and to grow—whether you’re building equity, investing in a forever home, or planning to flip it down the road.
Every detail—from the walls of glass to the grilling porch to the wet room master bath—feels thoughtful.
And in a world where home means everything, having a place like this isn’t just nice. It’s priceless.
Building or buying a home isn’t just about picking the perfect house plan—it’s also about making smart long-term choices. From comparing mortgage rates to finding a trustworthy real estate agent, every decision adds value. Don’t forget to explore options like home insurance, home warranties, and potential refinance opportunities to protect your investment.
Want to boost your property value? Consider installing solar panels, upgrading to energy-efficient appliances, or integrating a smart home system. Plus, tools like interior design software can help you visualize and plan your dream space before the first brick is even laid.
Find More House Plans
By Bedrooms:
1 Bedroom • 2 Bedrooms • 3 Bedrooms • 4 Bedrooms • 5 Bedrooms • 6 Bedrooms • 7 Bedrooms • 8 Bedrooms • 9 Bedrooms • 10 Bedrooms
By Levels:
By Total Size:
Under 1,000 SF • 1,000 to 1,500 SF • 1,500 to 2,000 SF • 2,000 to 2,500 SF • 2,500 to 3,000 SF • 3,000 to 3,500 SF • 3,500 to 4,000 SF • 4,000 to 5,000 SF • 5,000 to 10,000 SF • 10,000 to 15,000 SF










