5-Bedroom 2-Story Elegant Farmhouse with Bonus Lower Level Living Space (Floor Plan)

Specifications:
- 6,589 sq. ft.
- 5 Beds
- 4.5 Baths
- 2 Stories
- 4 Cars
Let me tell you, the moment I laid eyes on this modern New American Farmhouse, I knew it was the one. You know that feeling when a house just gets you?
The open layout, the sun streaming through walls of glass, and the way the kitchen practically whispers, “Come cook here while watching everyone laugh by the fireplace”—that’s what this home offers.
Honestly, I’m already picturing myself enjoying a morning coffee on the porch or hosting a barbecue with friends.
And yes, I’ve already daydreamed about how smart home technology could make my life ridiculously easy in here.



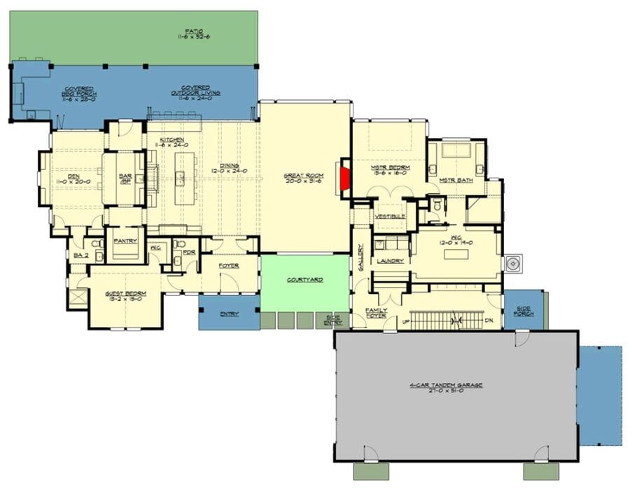
The Heart of the Home: Kitchen and Family Room
The first thing that hits you when you step inside is the family room with its soaring ceilings and fireplace.
This isn’t just any fireplace—it’s the kind of fireplace that makes you want to curl up with a good book, but also keeps the room cozy while you’re hosting a big family dinner. And let’s talk about the kitchen.
The island sink faces forward, so you can chat with guests or keep an eye on the kids while whipping up your favorite dishes.
If you’re someone who loves to organize groceries and kitchen gadgets, the walk-in food pantry is a lifesaver.

There’s also a butler’s pantry, which is perfect for staging snacks or drinks for parties without cluttering the main kitchen.
The exposed beams above the eat-in kitchen subtly define the space while maintaining that airy, open feel.
And because I’m a bit obsessed with efficiency, I can already see how a building cost estimator or interior design software would help me plan every cabinet, light fixture, and countertop perfectly.
Oh, and those accordion-style doors leading to the barbecue porch? Genius. I’m imagining weekend grilling sessions while the den provides a cozier space for drinks and games.

Honestly, a real estate agent would probably tell you that combination alone boosts property value big time.
Bedrooms Designed for Comfort
One of my favorite aspects of this house is how the bedrooms are thoughtfully placed.
The main-level master suite is a serene retreat tucked away from the hustle and bustle of daily life.
It comes with an oversized shower in the ensuite and an enormous walk-in closet that conveniently connects to the laundry room—so no more hauling baskets across the house.

Every bedroom has a walk-in closet, which is basically my dream scenario if you’re like me and have more shoes than sense.
The master suite isn’t just functional—it’s gorgeous. The tray ceiling adds a touch of elegance, and the door leading to the back porch makes it easy to step outside for a morning stretch or evening star-gazing.
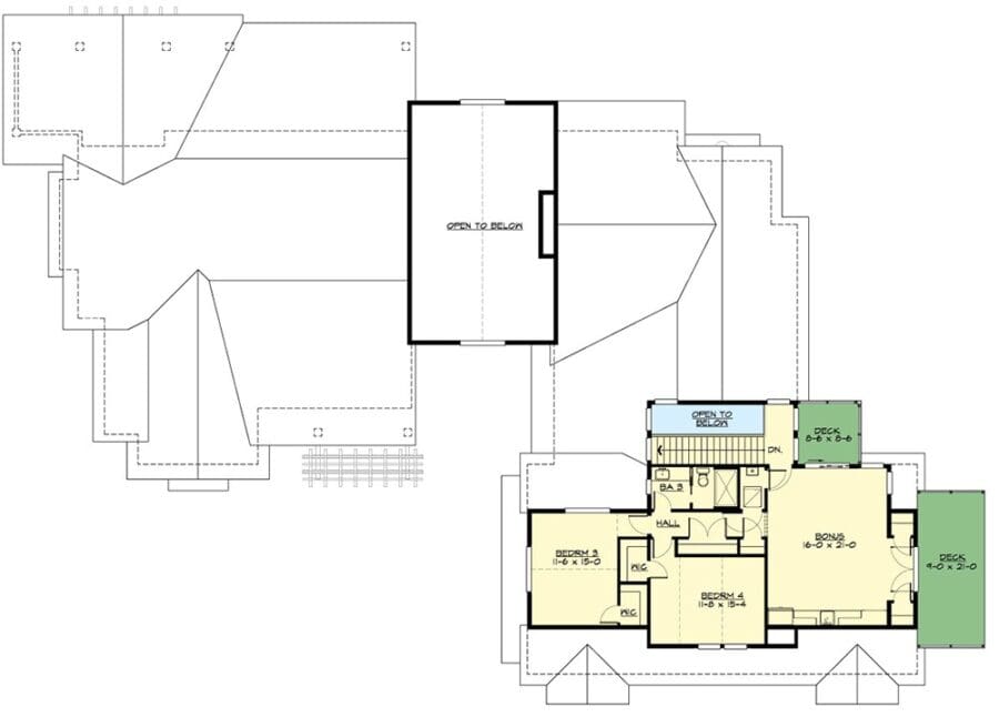
Upstairs, you’ve got two family bedrooms and a bonus room, both with private decks. It’s perfect for kids, guests, or even a home office if you’re considering using home equity loans to invest in extra space.
And speaking of extra space, the optional bonus room can be finished whenever you’re ready to expand—think home theater, exercise room, or craft space.

Outdoor Living and Porch Life
If you’re like me, the idea of outdoor living is just as important as the indoor comforts. This home doesn’t disappoint.
The covered patio and barbecue porch make entertaining a breeze. Whether it’s a summer cookout or a quiet evening with a glass of wine, the spaces are flexible and inviting.
Walls of glass flood the interiors with natural light, connecting the indoors with the outdoors seamlessly.
I can already see myself using home improvement loans or working with a home remodeling contractor to add a few custom touches to the porch or backyard.

The barbecue porch is particularly special because it’s accessible from the den via those clever accordion-style doors.
You can easily host a party and keep the conversation flowing from inside to outside.
And for someone like me who loves tech, installing a best home security system and integrating smart home technology would keep everything safe while adding convenience.
Garage, Storage, and Corner Lot Perks
Now, let’s talk about the garage. This isn’t just any garage—it’s extra deep and side-loaded, which makes it perfect for a corner lot.

It comfortably fits four vehicles, with room to spare for bikes, tools, or seasonal decorations. Having a garage that doubles as a storage solution feels like a luxury.
Plus, it provides the structural base for the second level, meaning your upstairs bedrooms and bonus room are perfectly supported.
Storage isn’t limited to the garage either. With every bedroom featuring a walk-in closet and the master suite connecting to the laundry room, there’s ample space for everything.
I’m already imagining using a home loan pre-approval or a home equity loan to add some built-in shelving or other storage solutions, ensuring everything has a place without cluttering the aesthetic.

And yes, even mortgage rates or refinancing your mortgage could come into play when planning such a spacious dream home—smart financial planning goes hand in hand with a dream house.
Elegant Design Meets Function
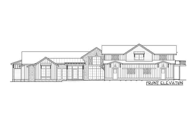
The design of this house truly balances elegance and function. Barn-like shutters add charm to the exterior, enhancing the farmhouse aesthetic without feeling kitschy.
Inside, the combination of tall ceilings, exposed beams, and thoughtfully laid-out rooms creates a sense of openness that makes the home feel much larger than its 6,589 sq. ft.
Every area is designed with comfort in mind. The den, the great room, the kitchen, even the hallways feel intentional.

Walls of glass bring in light, provide views of the backyard, and create a seamless flow that makes entertaining and daily life easy. For anyone looking to purchase a home with both style and functionality, this plan hits the mark.
And if you’re considering this house as an investment, the careful attention to detail will likely maintain or increase its property value over time.
Bonus Room and Upstairs Retreat
One of the highlights of this New American Farmhouse is the upstairs bonus room. This space is incredibly versatile—perfect as a home theater, an exercise area, or even a quiet study for working from home.
I’ve been imagining how I could use interior design software to visualize different layouts, maybe even add built-in shelving or a reading nook. The bonus room opens to two private decks, giving you a little slice of outdoor serenity while staying upstairs.

I can already picture sipping morning coffee out there, enjoying the view, and thinking about how a smart home system could let me adjust lighting and temperature from the comfort of my lounge chair.
This level is perfect for families, providing separation from the main living areas while still keeping everyone connected.
And let’s be honest: having private decks means kids or guests get a sense of independence while maintaining safety—especially important if you’re thinking about long-term investment value.

A home improvement loan could help you add custom touches to the decks, making them both stylish and functional.
Den and Entertaining Spaces
The den on the main floor is another gem. It’s slightly tucked away, which makes it cozy yet easily accessible for entertaining.
With the built-in bar and accordion-style doors leading directly to the barbecue porch, hosting parties or family gatherings is effortless.

I love the idea of cooking in the kitchen, chatting with guests in the family room, and then spilling out onto the porch—all without missing a beat.
The connection between these spaces is intentional. Walls of glass in the family room keep the area bright and welcoming, while the bar in the den adds functionality and style.
If you’re thinking of purchasing this house as an investment, these entertaining spaces are a huge selling point—buyers love homes where flow and functionality are prioritized.

And of course, a best home security system would make entertaining worry-free, keeping both guests and valuables safe.
Master Suite: A Private Oasis
Let’s go back to the master suite because it truly deserves its own spotlight. Situated on the right side of the main level, it’s a private retreat with every comfort in mind.
The oversized shower in the ensuite is perfect for unwinding after a long day, and the huge walk-in closet with direct access to the laundry room makes life just that much easier.

The tray ceiling adds elegance, while the door to the back porch invites natural light and fresh air into the space.
I can already picture adding smart home technology here, perhaps automated blinds or climate control, so the master suite is always perfectly comfortable.
And if you’re financing, whether through a home loan pre-approval, a refinance mortgage, or even a home equity loan, this suite is a luxurious investment that enhances both comfort and property value.

Outdoor Living: The Ultimate Backyard
No farmhouse is complete without stunning outdoor spaces, and this plan delivers in spades. The barbecue porch is the centerpiece of outdoor living, directly connected to both the kitchen and den.
You can grill, dine, or just hang out, all while enjoying views of the backyard through walls of glass.
The covered patio is another highlight. I love imagining weekend brunches here or hosting a summer evening gathering.

There’s room for lounge furniture, a dining table, and even a small fire pit. If you’re considering home improvement loans, adding a custom pergola, built-in seating, or even an outdoor kitchen could take this space to the next level.
It’s one of those features that not only makes everyday life more enjoyable but also increases property value—a win-win.
Garage and Practical Living
The side-load garage is more than just a place to park cars—it’s an essential part of the home’s functionality. It comfortably fits four vehicles, with extra space for storage, bikes, or seasonal items.

Its position on a corner lot keeps the front façade clean and uncluttered, enhancing curb appeal.
The garage also supports the second-level rooms above, which is a clever structural feature that maximizes usable space without compromising style.
For those thinking about financing options, the garage and bonus room make this home an appealing investment for potential resale or rental opportunities.

Home insurance, along with a reliable home warranty, ensures that all this space is protected, giving peace of mind whether you’re living here full-time or using it as a second home.
Style and Exterior Features
The exterior of this house is just as impressive as the interior. Barn-like shutters add farmhouse charm, and the mix of siding and glass walls creates a modern, inviting look.
These design elements aren’t just about aesthetics—they enhance curb appeal, which directly impacts property value and investment potential.

I love how the exterior blends form and function. The side-load garage, covered porch, and barbecue area all integrate seamlessly, providing utility while keeping the design clean and modern.
Even the smallest touches, like window placement and outdoor lighting, can be planned using interior design software or with the help of a home remodeling contractor.
And let’s not forget, these details make the house feel like yours as soon as you walk through the door.

Financing, Investment, and Smart Planning
Owning a house like this is a big investment, but it’s one that pays off in lifestyle, comfort, and long-term value.
Whether you’re looking at mortgage rates, planning a refinance mortgage, or using a home equity loan for renovations, the financial possibilities are flexible.
A home loan pre-approval ensures that when you’re ready to purchase, the process is smooth.

Thinking ahead, home improvement loans or working with a trusted home remodeling contractor can help you personalize the space, from the optional bonus room to the outdoor living areas.
And with a solid credit score, you can access favorable financing options to make this dream farmhouse a reality.

The Complete Package
This house truly offers the complete package: open layouts, split bedrooms, luxurious master suite, versatile bonus room, and outdoor living that feels like a vacation every day.
Every bedroom has a walk-in closet, and the functional flow from kitchen to family room to den makes everyday life and entertaining seamless.

Walls of glass, tall ceilings, exposed beams, and barn-like shutters give it style, while practical features like the side-load garage, pantry spaces, and optional bonus room make it livable.
From entertaining on the barbecue porch to enjoying quiet moments on the private decks, this farmhouse is designed for both comfort and functionality.
Smart home technology, home security systems, and modern appliances enhance daily life, while thoughtful financial planning ensures it’s a smart investment.
Whether you’re looking for a forever home or a property with strong resale value, this plan delivers on every front.
Building or buying a home isn’t just about picking the perfect house plan—it’s also about making smart long-term choices. From comparing mortgage rates to finding a trustworthy real estate agent, every decision adds value. Don’t forget to explore options like home insurance, home warranties, and potential refinance opportunities to protect your investment.
Want to boost your property value? Consider installing solar panels, upgrading to energy-efficient appliances, or integrating a smart home system. Plus, tools like interior design software can help you visualize and plan your dream space before the first brick is even laid.
Find More House Plans
By Bedrooms:
1 Bedroom • 2 Bedrooms • 3 Bedrooms • 4 Bedrooms • 5 Bedrooms • 6 Bedrooms • 7 Bedrooms • 8 Bedrooms • 9 Bedrooms • 10 Bedrooms
By Levels:
By Total Size:
Under 1,000 SF • 1,000 to 1,500 SF • 1,500 to 2,000 SF • 2,000 to 2,500 SF • 2,500 to 3,000 SF • 3,000 to 3,500 SF • 3,500 to 4,000 SF • 4,000 to 5,000 SF • 5,000 to 10,000 SF • 10,000 to 15,000 SF










