5-Bedroom 2-Story Country Farmhouse with Lots of Extras (Floor Plan)

Specifications:
- 3,005 Sq Ft
- 4 – 5 Beds
- 2.5 Baths
- 2 Stories
- 3 Cars
Let’s talk dream homes.
You know, the one with wraparound porches, plenty of bedrooms, cozy nooks, and just enough wow-factor to make your in-laws say, “You’ve really made it.”
This 3,005 square foot country farmhouse plan checks every box—and then adds a few more just for fun.
With 4 to 5 bedrooms, 2.5 baths, and room for three cars, this house isn’t just a pretty face; it’s the total package, perfect for family living, entertaining, and smart investing.






Flex It Like You Mean It
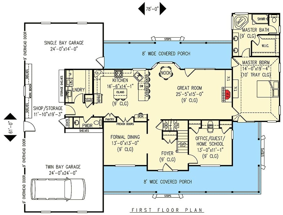
Right off the bat, the main floor gives you a whopping 1,874 square feet to play with.

But what really stands out is the flexible room on this level.

It can be a bedroom, home office, or your new homeschooling headquarters (aka the room where math meets snacks).

This is the kind of flexibility that adds serious property value and makes life easier.

Whether you’re looking to purchase a family-friendly forever home or planning ahead for multi-use spaces, this room proves that smart design doesn’t have to be complicated.

And when it’s time to apply for a home equity loan or consider a refinance mortgage, features like this can make all the difference.

Porches Worthy of a Pinterest Board
Let’s be honest—one of the major perks of country living is the porch life.

This farmhouse delivers with 762 square feet of porch space that wraps you in southern charm.

Imagine sipping sweet tea on the front porch or hosting backyard BBQs on the covered back porch.

These porches don’t just boost your Instagram game—they also enhance livability and give you room for upgrades like outdoor speakers or smart home technology.

Plus, they’re ideal spots to install elements from the best home security system, helping keep your little slice of heaven safe and sound.

The Master Suite
Tucked away on the first floor, the master bedroom is a private retreat complete with a tray ceiling for that extra touch of elegance.

The ensuite bathroom is pure luxury—featuring a garden spa tub that pretty much begs for bubble baths and canceled plans.

When you’re choosing a home, especially with today’s mortgage rates and the long-term value in mind, a high-quality master suite like this is more than a perk—it’s a wise decision.

Plus, upscale bathrooms can positively affect your home insurance evaluation and even impress your real estate agent when it comes time to sell.

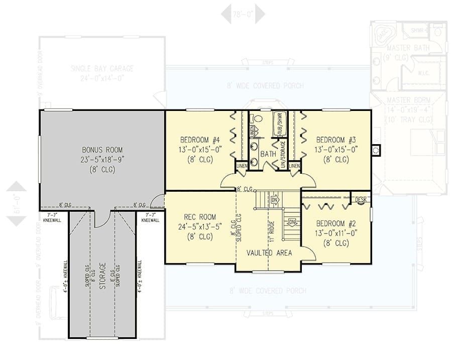
The Family Hub
Upstairs, you’ll find three bedrooms, a vaulted rec room, and a bonus room—all designed to handle sleepovers, movie marathons, and maybe a quiet moment (you know, if that ever happens).

With 1,131 square feet of space on this floor, the possibilities are endless.

Want a home theater?
Done.

A yoga studio?
Namaste.

A quiet place to hide from your kids?
We won’t tell.

And when you’re ready to redesign, interior design software can help you visualize your vision before moving a single piece of furniture.

Oh, and don’t forget about the 313 square feet of storage.

That’s enough room for holiday decorations, camping gear, or a whole wardrobe of “I might wear this again someday” clothes.

A Basement Full of Potential
This plan includes an unfinished basement with the same footprint as the first floor—1,874 square feet just waiting for your ideas.

Whether you want a gym, an apartment for extra income, or a giant playroom (adult ball pit, anyone?), this space is ready.

Finishing your basement can also be a smart financial move.

Consider using a building cost estimator and budgeting with home improvement loans to make the most of this space.

And when it’s done, it’ll feel like you added a whole new house beneath your house.

The Garage
Let’s hear it for the garage.

This three-car, 1,160-square-foot garage is more than just a parking lot.
It’s where hobbies come to life, bikes get tuned, and storage bins find a home.

The side entry makes it both discreet and accessible—win-win.

A garage of this size adds huge value and is a major asset when securing home loan pre-approval or refinancing.
It’s also a practical consideration when factoring in home insurance or planning for future resale.

Ceiling Heights and Dimensions That Make a Difference
Sometimes it’s the little things that make a big impression.

With 9-foot ceilings on the first floor and 8 feet on the second, this house feels open without being cavernous.

The 78-foot width and 61-foot depth give the home a stately, symmetrical appeal, and the 30-foot ridge height adds visual drama without going overboard.

It’s the kind of balanced design that makes every inch feel intentional—and it’s a layout that’s tailor-made for upgrades, whether through smart home technology or custom millwork.

These kinds of thoughtful dimensions also support long-term investment goals, especially in markets where size and flexibility mean more bang for your buck.

Financially Smart, Emotionally Right
Choosing a home plan is about more than square footage—it’s about making a smart life move.

Before you buy, it helps to review your credit score, compare mortgage rates, and look into home warranty options that can protect your investment.

Tools like a building cost estimator can help you stick to budget, while talking with a knowledgeable real estate agent will give you the inside scoop on local trends.

Whether you’re going after your first home or leveling up to your dream house, this country farmhouse supports your goals—from family growth to financial health.

And with today’s competitive market, having a plan that fits both your lifestyle and your budget is priceless.

At the end of the day, this isn’t just a house—it’s a lifestyle wrapped in charm and built on solid design.

From the front porch to the flexible rooms and future-ready basement, this home gives you space to live, grow, and dream.
With the right mix of cozy character and modern functionality, it supports everything from weekend entertaining to quiet mornings with coffee and a view.
And hey—if you’re going to invest in something big, why not let it be a home that makes you smile every time you pull into the driveway?
Because when your home works this well, life gets just a little easier—and a whole lot more beautiful.
Building or buying a home isn’t just about picking the perfect house plan—it’s also about making smart long-term choices. From comparing mortgage rates to finding a trustworthy real estate agent, every decision adds value. Don’t forget to explore options like home insurance, home warranties, and potential refinance opportunities to protect your investment.
Want to boost your property value? Consider installing solar panels, upgrading to energy-efficient appliances, or integrating a smart home system. Plus, tools like interior design software can help you visualize and plan your dream space before the first brick is even laid.
Find More House Plans
By Bedrooms:
1 Bedroom • 2 Bedrooms • 3 Bedrooms • 4 Bedrooms • 5 Bedrooms • 6 Bedrooms • 7 Bedrooms • 8 Bedrooms • 9 Bedrooms • 10 Bedrooms
By Levels:
By Total Size:
Under 1,000 SF • 1,000 to 1,500 SF • 1,500 to 2,000 SF • 2,000 to 2,500 SF • 2,500 to 3,000 SF • 3,000 to 3,500 SF • 3,500 to 4,000 SF • 4,000 to 5,000 SF • 5,000 to 10,000 SF • 10,000 to 15,000 SF










