5-Bedroom 2-Story Contemporary Farmhouse with Open Layout and Side Courtyard Entry (Floor Plan)

Specifications:
- 4,140 sq. ft.
- 5 Beds
- 5.5 Baths
- 2 Stories
- 3 Cars
I’ll admit it: the first time I saw this modern farmhouse plan, I wanted to just pack my bags and move in immediately.
There’s something about a home that balances warmth, style, and practicality that just pulls you in.
This plan hits all the right notes—an open layout perfect for entertaining, split bedrooms for privacy, and outdoor living spaces that could make any summer barbecue legendary.
And yes, there’s a barbecue porch that makes grilling feel like a ceremonial art. Trust me, your friends will never want to leave.


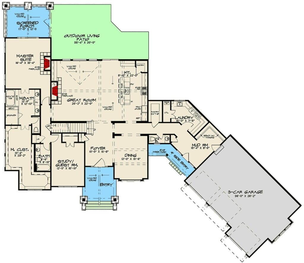
Step Into Spacious Elegance
As soon as you cross the threshold, the foyer welcomes you with a sense of grandeur, giving you a glimpse of both the formal dining room and the great room straight ahead.
The staircase to the upper floor hints at the spaciousness above, but it’s the open floor plan that really steals the show.
From the great room to the kitchen, natural light pours in through walls of glass, giving you stunning views of your backyard and porch.
The kitchen itself is designed with both function and interaction in mind. The sink in the island faces the family room, so whether you’re prepping for dinner or doing dishes, you can still engage with guests or keep an eye on the kids.
And if cooking is your passion, you’ll appreciate the walk-in food pantry and butler’s pantry—space for all your gourmet ingredients, appliances, and maybe even that fancy espresso machine you’ve been eyeing.
The Heart of the Home
There’s something undeniably cozy about a family room fireplace, and in this home, it’s positioned perfectly to radiate warmth without dominating the space.
It creates the perfect atmosphere for quiet evenings or lively gatherings. Imagine curling up on the sofa with a good book, a cup of tea, and the soft glow of the fire, all while smart home technology quietly keeps your lighting and climate just right.
And speaking of technology, integrating a modern security system here is a breeze.
The home’s layout makes it simple to position cameras and sensors strategically, keeping both you and your investment safe.
With a property this gorgeous, peace of mind should be non-negotiable. Pair it with a solid home insurance plan, and you’ve got coverage for just about everything life might throw your way.
Private Retreats for Everyone
One of the aspects I love most about this plan is the thoughtful distribution of bedrooms. The master suite feels like a retreat within your home.
It boasts a lovely tray ceiling and its own gas fireplace, plus private access to the screened porch. Can you picture enjoying morning coffee there while the sun peeks through the trees?
The master bath is equally impressive, featuring a two-sink vanity with a makeup counter and a massive walk-in closet that practically begs for interior design software experimentation.
Meanwhile, every other bedroom gets its own walk-in closet, ensuring ample storage and personal space.

The guest room—or study, depending on your needs—comes with a full bath, which is perfect for visitors or a quiet home office.
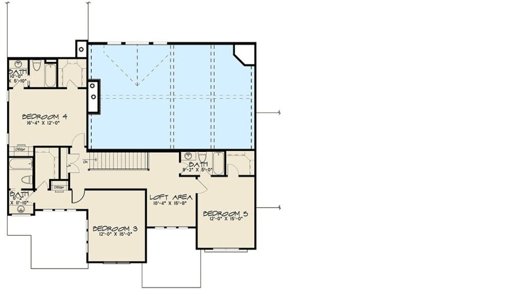
Upstairs, bedrooms three and four each include private bathrooms and desk alcoves, while bedroom five sits conveniently near a loft that could serve as a media room, play area, or additional study space.
Optional bonus space allows for future expansion, giving you flexibility as your family or lifestyle changes.
Outdoor Living Like No Other
Let’s talk about the porch—because this isn’t just a porch. It’s a destination. Large windows and doors open up to outdoor spaces that encourage relaxation, entertainment, and even a bit of garden envy from the neighbors.
Whether it’s a summer barbecue, an evening of stargazing, or a quiet morning with your coffee, these areas extend your living space seamlessly into nature.
The side-load garage also means this home works beautifully on a corner lot, giving you extra curb appeal without compromising outdoor accessibility.
And that exterior? It’s a masterclass in modern farmhouse style. Metal roofing accents, large windows, and a stunning truss entryway complement the stone skirt and accent stone siding, creating visual interest and character.
It’s the kind of home that makes a strong first impression, without ever feeling ostentatious.
Practical Considerations
Of course, a house this beautiful is also a serious investment. Whether you’re exploring a home loan pre-approval, looking into mortgage rates, or considering a refinance mortgage down the line, planning ahead ensures this dream home becomes a reality without surprises.
And don’t forget home equity loans—they can be a smart way to leverage your current property if you’re looking to build, remodel, or even upgrade some of the luxurious features in this plan.
Working with a trusted real estate agent can make a huge difference here, helping you navigate property value, building cost estimators, and other details that can feel overwhelming at first glance.
And for those of you who like to tinker or dream, home improvement loans or a home remodeling contractor can help you tailor this house exactly to your vision, whether that’s a chef’s kitchen upgrade, expanded bonus space, or enhanced smart home technology integration.
Style Meets Function
This modern farmhouse doesn’t just focus on aesthetics—it’s built to make life easier and more enjoyable. The open layout keeps everyone connected, while split bedrooms provide privacy.
Walk-in closets in every room mean storage is never an afterthought. And the combination of a butler’s pantry, walls of glass, and spacious outdoor living areas ensures this home is as practical as it is photogenic.
Even the staircase placement contributes to functionality, creating a natural flow between the main and upper floors without intruding on living spaces.

It’s thoughtful design that doesn’t shout for attention but instead quietly enhances daily life. Interior design software enthusiasts will have a field day arranging furniture, lighting, and décor to match both form and function.
The Upper Floor: Privacy Meets Function
Heading upstairs, you’ll immediately notice how well this home balances shared living with personal space.
Bedrooms three and four each have their own private bathroom and a cozy desk alcove—perfect for kids, guests, or a quiet work-from-home setup.
Bedroom five sits near a spacious loft, creating a versatile area for a media room, playroom, or additional study space.
This optional bonus space allows you to customize the home as your family grows or your lifestyle changes, making the plan truly flexible.
Every bedroom features a walk-in closet, so storage is never an afterthought. Whether you’re organizing seasonal wardrobes, hobbies, or linens, these closets are spacious enough to keep clutter out of sight.
And with each bedroom thoughtfully positioned, everyone enjoys privacy without feeling disconnected from the heart of the home.
Master Suite: Your Private Retreat
The master suite is nothing short of a sanctuary. Featuring a tray ceiling, gas fireplace, and private access to the screened porch, it’s designed for relaxation and indulgence.
Morning coffee on the porch, an evening read by the fire—it’s easy to see how this space can become your personal haven.
The master bath continues the luxury, boasting a two-sink vanity with a makeup counter, a separate shower and tub, and a huge walk-in closet that could inspire any interior design enthusiast.
This suite is the epitome of comfort and elegance, and its placement on the main floor ensures peace and privacy away from the busier areas of the home.
Open Floor Plan for Everyday Life
The open layout of the great room, dining area, and kitchen makes this house perfect for entertaining or everyday living.
The kitchen island faces the family room, so whoever is cooking never misses out on the action.
Walls of glass flood the space with natural light and bring views of the backyard and porches into the home, creating a seamless indoor-outdoor experience.
The butler’s pantry and walk-in food pantry keep everything organized and functional, making hosting large gatherings a breeze.

Whether it’s a holiday dinner or an impromptu barbecue on the porch, this home supports entertaining without stress or clutter.
Outdoor Living: Bringing the Inside Out
Outdoor spaces are central to this plan, with multiple porches and a screened area extending your living space.
The barbecue porch invites casual gatherings, while the main porch provides a relaxing retreat with plenty of room for furniture, plants, or even an outdoor fireplace.
These areas are designed to be functional yet beautiful, making it easy to enjoy the outdoors without sacrificing style or comfort.
The side-load garage complements the home’s layout perfectly, especially on a corner lot. Its placement keeps cars and clutter out of sight while maintaining the home’s curb appeal.
Metal roofing accents, large windows, a stunning truss entryway, and stone siding all combine to create an exterior that’s both striking and timeless.
Family and Guest Spaces
In addition to the luxurious master suite, this home thoughtfully accommodates family and guests. The guest room on the main floor doubles as a study, offering flexibility depending on your needs.
Full bathrooms for bedrooms three, four, and five ensure everyone has their own space, reducing morning traffic jams and enhancing privacy.
The loft upstairs can serve as a secondary living area, media room, or play space, offering versatility for growing families.
Optional bonus rooms provide even more possibilities—whether it’s a gym, craft room, or home office, you can tailor this home to fit your lifestyle.
Kitchen and Dining: A Chef’s Dream
The kitchen is as functional as it is stylish. With the sink in the island facing the family room, it allows for interaction while cooking or cleaning up.
A spacious walk-in pantry and a butler’s pantry provide ample storage and prep space, keeping your counters clutter-free.
The formal dining room is easily accessible yet subtly separated, making it perfect for holiday dinners or more intimate gatherings.
Walls of glass surrounding the kitchen and dining areas fill the space with natural light while connecting it visually to the porch and backyard.

This thoughtful design ensures that both everyday meals and special occasions feel connected to the home’s open, airy atmosphere.
Living Areas That Blend Comfort and Style
The family room, anchored by a cozy fireplace, serves as the heart of the home. Its placement next to the kitchen allows for effortless entertaining and casual family time.
Large windows frame views of the porch and backyard, making the space feel bright and inviting.
Additional living spaces, including the loft and optional bonus rooms, offer flexibility to adapt the home to your family’s needs.
These areas can become media rooms, hobby spaces, or even a quiet retreat for reading or working, making the home feel larger and more functional than its footprint might suggest.
Design Features That Make a Statement
From the exterior to the interior, this home’s design features make it stand out. The truss entryway provides a dramatic focal point, while metal roofing accents and stone siding add texture and durability.
Inside, vaulted ceilings, walk-in closets, and expansive windows contribute to a feeling of spaciousness and luxury. Every detail has been considered, ensuring that the home is not only beautiful but functional.
The thoughtful layout also supports smart home technology integration, allowing lighting, climate, and security systems to operate seamlessly.
This modern convenience enhances comfort and provides peace of mind while complementing the home’s overall design aesthetic.
Flexibility for Future Needs
One of the greatest strengths of this house plan is its flexibility. Optional bonus spaces, additional loft areas, and multiple living areas allow the home to evolve with your family.
Need a home office? A workout space? A guest suite? This plan can accommodate all of that without compromising style or functionality.
Every bedroom has a walk-in closet, providing storage for growing families or frequent guests.
And the placement of rooms ensures privacy while keeping everyone connected to the main living spaces—a balance that’s often hard to achieve in large homes
This modern farmhouse plan delivers on every front: elegance, practicality, and lifestyle.

From the open great room to the gourmet kitchen, luxurious master suite, and versatile upper-floor bedrooms, every square foot has been designed with care.
Outdoor living areas, optional bonus spaces, and design features like vaulted ceilings, metal accents, and stone siding create a home that’s visually stunning and highly functional.
Perfectly suited for corner lots with a side-load garage, this home is a true blend of style, comfort, and practicality.
It’s ideal for entertaining, family living, and adapting to your needs over time.
If you’ve been searching for a home that combines timeless design with modern amenities, this modern farmhouse plan delivers everything you could hope for—and then some.
Building or buying a home isn’t just about picking the perfect house plan—it’s also about making smart long-term choices. From comparing mortgage rates to finding a trustworthy real estate agent, every decision adds value. Don’t forget to explore options like home insurance, home warranties, and potential refinance opportunities to protect your investment.
Want to boost your property value? Consider installing solar panels, upgrading to energy-efficient appliances, or integrating a smart home system. Plus, tools like interior design software can help you visualize and plan your dream space before the first brick is even laid.
Find More House Plans
By Bedrooms:
1 Bedroom • 2 Bedrooms • 3 Bedrooms • 4 Bedrooms • 5 Bedrooms • 6 Bedrooms • 7 Bedrooms • 8 Bedrooms • 9 Bedrooms • 10 Bedrooms
By Levels:
By Total Size:
Under 1,000 SF • 1,000 to 1,500 SF • 1,500 to 2,000 SF • 2,000 to 2,500 SF • 2,500 to 3,000 SF • 3,000 to 3,500 SF • 3,500 to 4,000 SF • 4,000 to 5,000 SF • 5,000 to 10,000 SF • 10,000 to 15,000 SF










