5-Bedroom 2-Story Contemporary Farmhouse With Spacious Outdoor Living (Floor Plan)

- 5,726 sq. ft.
- 5 Beds
- 5.5 Baths
- 2 Stories
- 5 Cars
If you’ve ever dreamed of a house that feels like a vacation resort but still works for everyday life, let me introduce you to this masterpiece.
Imagine a home that has five bedrooms, a five-car garage, a basketball court, fitness room, bonus spaces, and walls of glass that bring in light like nature’s spotlight.
Yep, this isn’t just a house—it’s practically an estate.
And the best part? It manages to feel both homey and jaw-dropping all at once.
So grab your coffee, or maybe a glass of wine if it’s been that kind of day, and let’s walk through this stunner together.


The Grand Entrance: Where First Impressions Are Everything
You know that feeling when you walk into a house and your jaw drops? That’s exactly what happens the second you step into this home’s circular foyer. It’s not just an entryway; it’s an event.
The grand design sets the tone right away—this is a home meant to impress neighbors, in-laws, and even the pickiest real estate agent who’s seen it all.
And while you might be busy calculating the building cost estimator in your head (because luxury does make you curious about numbers), the property value payoff here is undeniable.
With spaces like these, you’re not just buying a home—you’re making an investment that could rival your best home improvement loans.
The Heart of the Home: Kitchen + Family Room
If you’ve ever wished for a kitchen that actually feels like the center of the house, here’s your dream come true.
Not only does it come with two islands, but one has bar seating so your kids can do homework while you prepare dinner—or let’s be honest, while you order takeout and pretend you cooked.
There’s also a butler’s pantry and a walk-in food pantry that’s big enough to make any home remodeling contractor jealous.
Add in space for a second fridge and multiple dishwashers, and suddenly entertaining feels effortless.

Hosting Thanksgiving? No problem. Hosting a football party with thirty people? Still no problem.
The kitchen flows right into the family room, complete with a cozy fireplace. Thanks to walls of glass, this space opens to the covered outdoor lounge.
Picture grilling on the built-in barbecue porch while watching your kids shoot hoops in the half-court gym.
This is the kind of layout interior design software tries to capture, but seeing it in real life? Next-level.
The Master Suite: Your Private Getaway
Now let’s talk about the master suite—because honestly, it deserves its own spotlight. This suite isn’t just a bedroom; it’s practically a private wing.
A circular sitting nook, a fireplace, and a tray ceiling make it feel like you’ve booked the best room in a five-star resort.
The ensuite bathroom? Oversized shower, spa-like vibe, and a walk-in wardrobe that could fit half a department store.
If you’re thinking about resale or property value, this is the kind of feature that makes potential buyers’ eyes light up.

Even better, having a suite like this means you’ll probably never want to refinance mortgage your way into another house—because this one checks every box.
And since it opens directly to the porch, you can slip outside for morning coffee without even putting on shoes. That’s what I call living the dream.
Work, Study, and All the Extras
The left wing of the house also gives you a quiet study—perfect for working from home, managing your home equity loan paperwork, or daydreaming about future investments.
Honestly, it’s the kind of room that makes you feel more productive just by sitting in it.
But the extras don’t stop there. We’re talking about a game room with a wet bar, a media room for movie nights, and of course, that jaw-dropping half-court basketball gym.
Plus, there’s a fitness room, so you can cancel that gym membership and still meet your New Year’s resolutions (well, at least for January).
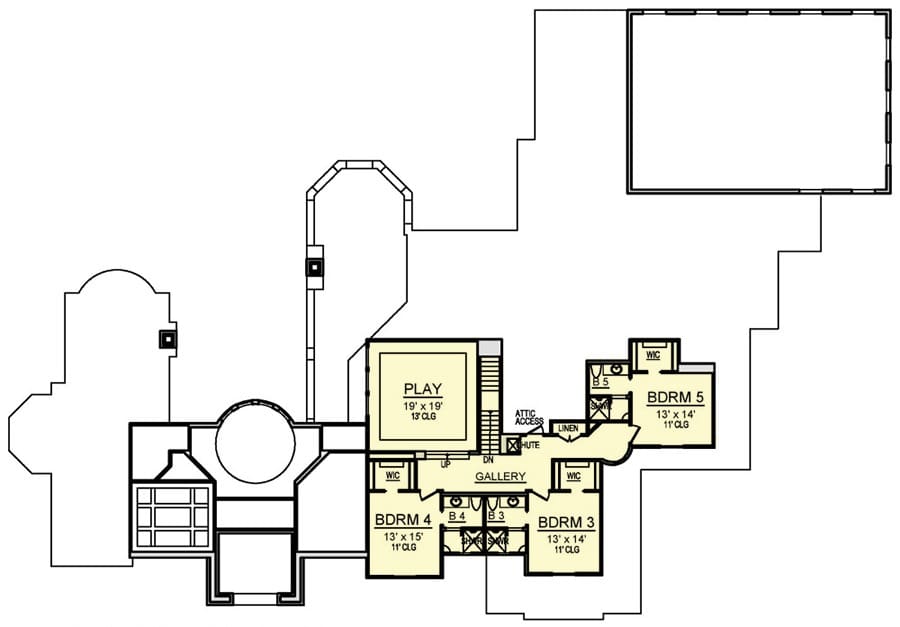
Bedrooms for Everyone
On the main level, you’ve got a guest suite that makes visitors feel like royalty. Upstairs, you’ll find three more bedroom suites, each with walk-in closets—because let’s be honest, nobody likes small closets.
Add in a large playroom upstairs, and suddenly you’ve got a kid-friendly zone that keeps the toys out of sight when company comes over.

And here’s a detail you’ll love: a central laundry chute. Whoever thought of this deserves an award.
No more negotiating with kids to carry laundry downstairs—it’s all streamlined. Honestly, if you’re calculating building costs, this feature alone is worth it for sanity points.
Outdoor Living Done Right
Now, let’s talk outdoor living, because this house takes it seriously. The covered porch comes with a built-in grill, perfect for weekend barbecues or late-night snacks.
With the family room and kitchen opening directly onto this space, indoor and outdoor living blend seamlessly.
This design is also where smart home technology and the best home security system come into play.
When your home feels this open and welcoming, you’ll want security and efficiency that keep everything safe and smooth.
And don’t worry about harsh weather or maintenance nightmares—pairing this setup with good home insurance and a solid home warranty means you’re covered for the long haul. Think of it as peace of mind wrapped around your investment.
The Five-Car Garage: Space and Functionality Combined
One of the most impressive aspects of this house plan is the attached five-car garage.

At over 1,600 square feet, this garage isn’t just for vehicles—it’s a multifunctional space.
Whether you want to store a classic car collection, keep recreational gear like kayaks and bikes, or even dedicate a corner to a home workshop, this garage makes it possible.
Its side-load orientation also makes the home suitable for a corner lot, enhancing both curb appeal and practicality.
Bonus Spaces That Adapt to Your Lifestyle
This plan includes optional bonus space, giving you the flexibility to add square footage when you’re ready.
Families often choose to finish this space as a home office, guest suite, or even a craft and hobby room.
The beauty here is adaptability—the design grows with you, allowing you to expand when your needs or lifestyle change.
Entertainment at Every Turn
If you’re looking for a home where fun is built right into the layout, this plan delivers.
The game room with wet bar is perfect for hosting friends, while the media room offers a dedicated spot for movie marathons or game-day watch parties.

The half-court basketball gym and fitness room set this home apart from others in its class, giving you the chance to enjoy sports and exercise without ever leaving the house.
Outdoor Living Designed for Everyday Luxury
This house plan takes outdoor living to another level. The covered lounge features a built-in grill, making it ideal for cookouts and summer evenings.
With walls of glass that connect the family room to the porch, the transition between indoors and outdoors feels seamless.
Whether you’re hosting a barbecue, enjoying coffee in the morning, or watching kids play in the yard, these spaces extend the living experience beyond the walls of the home.
Bedrooms With Comfort and Privacy
Upstairs, three additional bedroom suites provide comfort for family or guests. Each suite comes with its own walk-in closet, ensuring plenty of storage and personal space.
A large playroom anchors the second floor, making it a central hub for children’s activities or even a relaxed family lounge.
Downstairs, the guest suite provides privacy and convenience, especially for visiting relatives or long-term stays.

Every bedroom in this plan is designed to feel like its own retreat, striking a balance between togetherness and privacy.
Laundry and Everyday Practicality
A thoughtful touch in this home’s design is the central laundry chute, which simplifies one of the most time-consuming household tasks.
Instead of hauling baskets up and down stairs, clothes are delivered directly where you need them.
It’s these small, practical features that make daily life in a large home feel manageable and even enjoyable.
A Kitchen That Defines Convenience
The double-island kitchen deserves another spotlight in Part 2. While one island offers casual seating, the other provides ample prep space, perfect for cooking or entertaining.
The butler’s pantry and oversized walk-in pantry—complete with room for an additional refrigerator—make organization simple.
Combined with multiple dishwashers, this kitchen is designed to handle both quiet family meals and large gatherings with ease.

The Master Suite Retreat
While the upstairs rooms are designed for comfort, the master suite on the main floor truly shines.
A circular sitting nook offers a peaceful space for reading or morning coffee, while a private fireplace creates warmth and elegance.
The tray ceiling adds architectural interest, and direct access to the rear porch connects the suite to the outdoors.
The ensuite bath feels like a spa, complete with an oversized shower and a generous walk-in wardrobe. It’s not just a bedroom—it’s a private retreat designed for relaxation and luxury.
Flow and Function of the Main Floor
The open-concept layout ties together the kitchen, dining, and family room. The result is a space that feels expansive yet welcoming, with sightlines that encourage connection between family members and guests.
The study, located near the master suite, provides a quiet corner for focused work or reading.
Meanwhile, the placement of the guest suite on the main floor ensures that visitors have privacy without feeling removed from the home’s central spaces.

The flow of this plan balances elegance with functionality at every turn.
With over 5,700 square feet of heated space, this modern farmhouse plan blends elegance and practicality in equal measure.
The five bedrooms, multiple living areas, luxury master suite, and entertainment-focused amenities create a home designed for every stage of life.
The seamless connection between indoor and outdoor spaces, coupled with thoughtful touches like the laundry chute and bonus space, make this plan not just luxurious, but livable.
It’s more than just a house plan—it’s a vision of everyday comfort elevated by thoughtful design.
Building or buying a home isn’t just about picking the perfect house plan—it’s also about making smart long-term choices. From comparing mortgage rates to finding a trustworthy real estate agent, every decision adds value. Don’t forget to explore options like home insurance, home warranties, and potential refinance opportunities to protect your investment.
Want to boost your property value? Consider installing solar panels, upgrading to energy-efficient appliances, or integrating a smart home system. Plus, tools like interior design software can help you visualize and plan your dream space before the first brick is even laid.
Find More House Plans
By Bedrooms:
1 Bedroom • 2 Bedrooms • 3 Bedrooms • 4 Bedrooms • 5 Bedrooms • 6 Bedrooms • 7 Bedrooms • 8 Bedrooms • 9 Bedrooms • 10 Bedrooms
By Levels:
By Total Size:
Under 1,000 SF • 1,000 to 1,500 SF • 1,500 to 2,000 SF • 2,000 to 2,500 SF • 2,500 to 3,000 SF • 3,000 to 3,500 SF • 3,500 to 4,000 SF • 4,000 to 5,000 SF • 5,000 to 10,000 SF • 10,000 to 15,000 SF










