5-Bedroom 1-Story New American House with 2-Car Garage (Floor Plan)

Specifications:
- 2,882 Sq Ft
- 3 – 5 Beds
- 2.5 – 4.5 Baths
- 1 Stories
- 2 Cars
I’ve seen a lot of house plans in my time, but this one?
This 2,882-square-foot New American beauty takes “dream home” to another level—all on a single story.
It’s got just the right mix of open spaces, private retreats, and clever details that make daily life smoother.
So, grab your coffee (or maybe your building cost estimator) and let’s take a walk through this perfectly planned masterpiece together.



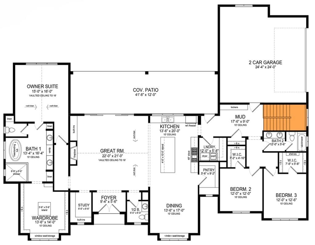
A Welcoming First Impression
From the moment I see the front, I know this house has personality.
The three shed dormers above the entry aren’t just decorative—they give the home that classic New American charm while keeping things fresh and modern.
The balance between warm materials, crisp lines, and a touch of symmetry makes the exterior both inviting and elegant.
This home’s curb appeal alone could boost its property value.
I can already picture pulling up the driveway after work, admiring the timeless façade, and feeling that comforting sense of pride.
The front porch feels like it’s saying, “Come on in,” and honestly, who could resist?
The Kitchen That Brings Everyone Together
Now let’s talk about the heart of this home—the kitchen.
If the saying “the kitchen is where life happens” had a floor plan, this would be it.
The massive 4′ by 10′ island is not just a centerpiece—it’s a gathering zone.
It’s where homework gets done, coffee is shared, and late-night snacks mysteriously disappear.
The open layout connects the kitchen to the vaulted great room, making it feel even larger.
From the stove, I can see the fireplace flickering, the back patio glowing with string lights, and the laughter of family drifting from one space to another.
The pantry, cleverly tucked nearby, gives me all the storage I need—without cluttering the space.
And here’s the part that really wins me over: those rear glass doors that open the entire great room to the 12’-deep covered patio.
It’s like the floor plan itself encourages indoor-outdoor living.
Hosting dinner parties or summer BBQs suddenly feels effortless.
A Great Room That Truly Deserves Its Name
When I step into the great room, it feels expansive but cozy at the same time.
The vaulted ceiling draws the eye up, adding a sense of openness, while the fireplace keeps the atmosphere grounded and warm.
It’s that ideal balance—grand yet intimate.
This is the kind of room that adapts to every season.
In summer, it’s bright and breezy thanks to the wide patio doors; in winter, it’s the perfect place to curl up with a blanket by the fire.
The flow between the great room and kitchen also makes entertaining natural and easy—whether I’m hosting friends or just enjoying a quiet night in.

A Private Slice of Heaven
The left wing of the house is entirely dedicated to the owner’s suite—and let me tell you, it’s the ultimate retreat.
I love how it’s tucked away from the other bedrooms for maximum privacy.
The bedroom itself is spacious enough to fit a sitting area, and the large windows fill the room with natural light.
But the real showstopper is the walk-in closet.
It’s not just big—it’s luxurious, featuring an island right in the middle that’s 3’6″ by 3’6″.
Imagine having a spot to organize accessories, fold laundry, or just admire your perfectly arranged wardrobe.
The ensuite bathroom feels just as indulgent.
With enough room for a soaking tub, double vanities, and a generous shower, it’s every bit the spa experience.
Honestly, this suite could convince anyone to stay home more often.
A Comfortable Wing for Family or Guests
On the other side of the house, two bedrooms share a well-designed bathroom.
Each has its own walk-in closet—because nobody should have to argue about storage space.
This thoughtful symmetry makes the area ideal for kids, guests, or even a home office setup.
I love how the layout ensures privacy for everyone without sacrificing connection.
Whether it’s early mornings or late nights, everyone gets their own space to unwind.
It’s family-friendly design done right.
A Quiet Hero of the Floor Plan
It might sound funny, but one of my favorite parts of this plan is the mudroom.
It connects directly from the 2-car garage and features two sets of built-in lockers.
That means no more tripping over shoes or searching for misplaced backpacks.
Everything has a place.
And right around the corner is the laundry room, cleverly tucked in the back of the home.
It’s out of sight but right where you need it, especially after a busy day.
I love when floor plans think about real life—and this one absolutely does.
The garage itself is no afterthought either.
With a storage bump-out, there’s plenty of space for tools, bikes, or that extra freezer everyone insists they don’t need until the holidays arrive.
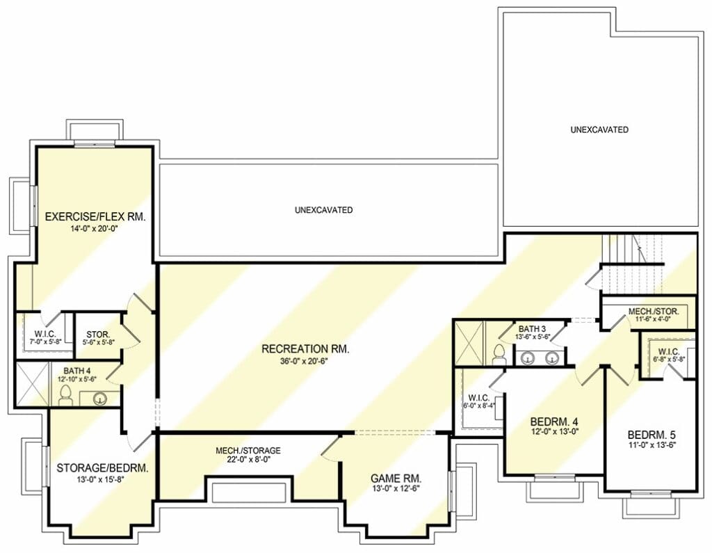
Expanding the Possibilities with the Basement
Now here’s where things get exciting: the lower-level expansion.
If you decide to finish the basement, you can add two more bedrooms, a large recreation area, a game room, and even a flexible space for whatever your lifestyle calls for.

It’s not just extra square footage—it’s extra freedom.
Want a movie theater?
Go for it.
A home gym?
Absolutely.
Maybe even a home office or creative studio.
The possibilities turn this home into one that can truly evolve as your needs change over time.
This flexibility also makes the plan a smart investment.
Whether you plan to stay forever or consider resale value down the road, that basement option ensures the home grows with you.
A Floor Plan That Thinks Ahead
Every square foot of this 2,882-square-foot design feels intentional.
The flow from one space to another is seamless—nothing feels wasted or cramped.
I appreciate how the public areas stay open and connected, while the private ones are calm and secluded.
The one-story layout makes life simple and accessible, but it doesn’t skimp on style or function.
From the vaulted ceilings to the oversized pantry, from the covered patio to the generous master suite—it’s the kind of plan that combines beauty with practicality.
The Perfect Blend of Function and Warmth
What makes this plan stand out to me is how livable it is.
Every area has purpose, but none of it feels forced.
The kitchen flows into the great room for easy hosting, the bedrooms strike a perfect balance of privacy and proximity, and the mudroom/laundry combo makes everyday routines a breeze.
And with that indoor-outdoor connection, the home feels alive—it breathes with you, whether you’re entertaining guests or enjoying a quiet morning coffee outside.
This New American plan isn’t just a house—it’s a lifestyle.
It’s designed for people who love open spaces but also appreciate comfort and organization.
It’s for families who want connection without chaos, and for homeowners who know that great design goes beyond looks—it’s about how a space feels.
From its welcoming façade to its flexible basement options, every inch of this plan proves that you don’t need multiple stories to live expansively.

So, if I were to picture my ideal home—the one that checks every box—it would look a lot like this.
Beautiful, balanced, and built to grow with me.
And who knows?
With a kitchen island that big and a closet island to match, I might never want to leave.
Building or buying a home isn’t just about picking the perfect house plan—it’s also about making smart long-term choices. From comparing mortgage rates to finding a trustworthy real estate agent, every decision adds value. Don’t forget to explore options like home insurance, home warranties, and potential refinance opportunities to protect your investment.
Want to boost your property value? Consider installing solar panels, upgrading to energy-efficient appliances, or integrating a smart home system. Plus, tools like interior design software can help you visualize and plan your dream space before the first brick is even laid.
Find More House Plans
By Bedrooms:
1 Bedroom • 2 Bedrooms • 3 Bedrooms • 4 Bedrooms • 5 Bedrooms • 6 Bedrooms • 7 Bedrooms • 8 Bedrooms • 9 Bedrooms • 10 Bedrooms
By Levels:
By Total Size:
Under 1,000 SF • 1,000 to 1,500 SF • 1,500 to 2,000 SF • 2,000 to 2,500 SF • 2,500 to 3,000 SF • 3,000 to 3,500 SF • 3,500 to 4,000 SF • 4,000 to 5,000 SF • 5,000 to 10,000 SF • 10,000 to 15,000 SF










