4-Bedroom Two-Story Transitional Modern Farmhouse with Guest Suite (Floor Plan)

Specifications:
- 4,052 Sq Ft
- 4 Beds
- 3.5 Baths
- 2 Stories
- 6 Cars
There are houses you admire from the street, and then there are houses you secretly imagine living in as soon as you step inside.
This 4,052-square-foot modern farmhouse falls into the second category.
With its clean transitional style, wraparound charm, and a floor plan that manages to balance luxury with practicality, it feels like the dream home you didn’t know you needed until now.
Let me take you through this house plan, room by room, and you’ll see why it’s not just a home—it’s an investment in everyday happiness.



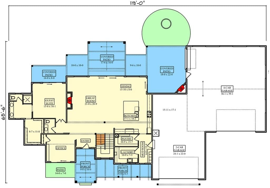
A Grand Welcome at the Front Porch
Nothing says “welcome home” like a wide, inviting front porch.
This farmhouse doesn’t skimp here—it gives you plenty of space to put out some rocking chairs, a bench, or even seasonal décor without looking cluttered.
Walking through the entry, you’re greeted by soaring ceilings and a sense that the space was designed with both style and flow in mind.
It’s the kind of entryway that makes you feel proud to invite over friends, even that picky real estate agent who always points out what other homes are missing.
The open sightlines ahead set the tone: this house was built for connection, comfort, and yes, a little bit of showing off.

Open-Concept Living that Feels Effortless
The great room and dining area are where this home truly shines.
Forget walls that separate and shrink—this is wide-open space, perfectly balanced to make everyday living and entertaining equally enjoyable.
With natural light pouring in from large windows, the area feels expansive without being overwhelming.
This open flow is also a smart move when you think about property value.
Modern buyers love flexible layouts, and open-concept spaces tend to pay off when it comes time to sell or even refinance mortgage terms.

And let’s be honest: nobody ever regretted having more room for family gatherings, board games, or that impromptu karaoke night.
A Kitchen That Works Hard (and Looks Gorgeous)
If the kitchen is the heart of the home, then this one is in marathon shape.
We’re talking a gourmet setup with professional-grade appliances and a huge center island that doubles as a prep station and a hangout zone.
The real star, though, might be the butler’s walk-in pantry—big enough to stash Costco runs, small appliances, and even your secret cookie stash.
It’s also the type of space where interior design software could really come in handy if you want to experiment with finishes, backsplash styles, or custom cabinet colors.

Practicality meets Pinterest board dreams.
And since it connects directly to the dining area and outdoor covered patio, you’re always just a few steps away from hosting the perfect dinner—or retreating to the backyard for s’mores by the outdoor fireplace.
Covered Patios Made for Relaxing
Speaking of patios, this plan doesn’t stop at one.
It gives you multiple outdoor living spaces, including covered areas that extend your living beyond the walls.
The built-in outdoor fireplace sets the scene for cozy fall nights, while the sheer square footage outside means you can comfortably host summer BBQs without feeling like guests are on top of each other.

For homeowners who think about long-term investment, these outdoor living perks can boost property value in ways a small deck never could.
Plus, if you’ve been browsing home improvement loans for upgrades, here’s the good news: this plan already comes packed with the kind of features people usually remodel to add later.
A Guest Suite that Feels Like Home
On the main level, you’ll find a fully functional in-law or guest suite.
This isn’t a cramped spare bedroom shoved into a corner—it’s a comfortable retreat with its own sense of privacy.
Whether you’ve got parents visiting, a friend staying over for a long weekend, or even an au pair, this suite gives them their own little slice of luxury.

Having this type of flexible living arrangement is also a smart move for families thinking long-term.
It can double as a home office or even a semi-independent living space, giving you options without needing a full remodel later.
And let’s face it—when mortgage rates rise, many families look for multi-generational housing options.
This home already has that box checked.
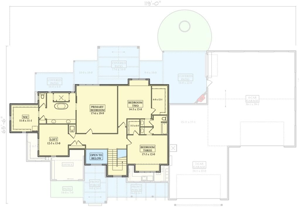
The Master Suite Retreat Upstairs
Heading upstairs, the master suite is the kind of place you actually look forward to retreating to at the end of a long day.

With its private bath, dual vanities, and soaking tub, it feels like a spa built right into your home.
The best part?
Direct access to the laundry room.
Whoever designed this clearly knew what kind of daily frustrations we all deal with—hauling baskets up and down stairs is officially a problem of the past.
This suite isn’t just a bedroom; it’s also a way to protect your sanity.
Good sleep, a private retreat, and functional touches all contribute to your quality of life.
And with features like this, your credit score might be the only thing standing between you and pre-approval for your dream home loan.

Bedrooms with Personality
The other upstairs bedrooms aren’t an afterthought either.
Two of them are connected by a Jack & Jill bath—perfect for kids who need their own space but can share amenities.
There’s also a loft area just steps away, giving the family an extra hangout spot without monopolizing the great room.
This kind of layout is practical if you’re thinking about resale, too.
Families buying later will see the value in these smart bedroom connections.
It’s the type of detail a building cost estimator can’t really measure but buyers immediately appreciate.

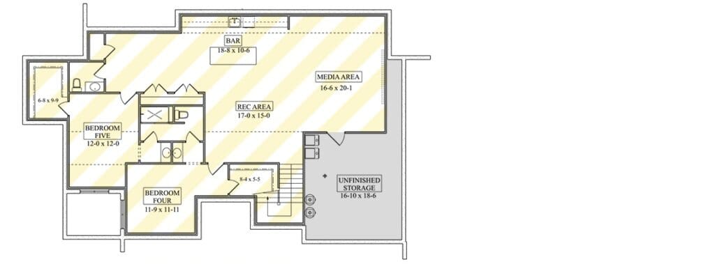
Game, Media, and More
Now, let’s talk fun.
The lower level offers game and rec rooms, a wet bar, and a media room.
Whether you’re into movie marathons, pool tournaments, or football Sundays, this house has the space to make it happen.
If you choose the optional finished lower level, it’s like unlocking bonus square footage you didn’t know you needed but will absolutely use.
This is also the place where smart home technology and the best home security system can really shine.
From controlling lighting for movie nights to keeping your investment safe, technology adds both convenience and peace of mind.

Six-Car Garage—Yes, Six
If you’re someone who loves cars, boats, or just believes in never parking in the driveway again, this six-car garage is basically a dream come true.
Beyond the sheer size, it’s a practical solution for storage, hobbies, or even creating your own workshop.
And let’s be honest, a garage like this could almost be considered an investment of its own.
When you buy a home with such a feature, you’re buying future flexibility.
That’s something no refinance mortgage or home equity loan can easily add later.

Built for Long-Term Value
Every detail in this modern farmhouse points to smart planning for both today and tomorrow.
The home office, the in-law suite, the loft, the media spaces—all of them add layers of functionality that raise property value and future-proof the home.
It’s also a house that makes sense from a financial perspective.
With home loan pre-approval, you know what’s possible, but pairing that with home insurance, a good home warranty, and even the occasional refinance down the line makes the purchase a solid long-term choice.
Think of it not just as a house but as a lifestyle investment.

This 4,052-square-foot transitional modern farmhouse is more than just a floor plan—it’s a story of how good design elevates everyday living.
From the grand front porch to the master retreat, from the game room to the six-car garage, it’s a home that balances comfort with wow-factor.
And while buying a house always involves serious considerations—mortgage rates, credit score, home insurance, maybe even chatting with a home remodeling contractor someday—the truth is, this home makes the decision to buy feel more like a dream than a chore.
It’s not just about walls and square footage; it’s about building a life, a future, and yes, an investment that pays off every single day.
Building or buying a home isn’t just about picking the perfect house plan—it’s also about making smart long-term choices. From comparing mortgage rates to finding a trustworthy real estate agent, every decision adds value. Don’t forget to explore options like home insurance, home warranties, and potential refinance opportunities to protect your investment.
Want to boost your property value? Consider installing solar panels, upgrading to energy-efficient appliances, or integrating a smart home system. Plus, tools like interior design software can help you visualize and plan your dream space before the first brick is even laid.
Find More House Plans
By Bedrooms:
1 Bedroom • 2 Bedrooms • 3 Bedrooms • 4 Bedrooms • 5 Bedrooms • 6 Bedrooms • 7 Bedrooms • 8 Bedrooms • 9 Bedrooms • 10 Bedrooms
By Levels:
By Total Size:
Under 1,000 SF • 1,000 to 1,500 SF • 1,500 to 2,000 SF • 2,000 to 2,500 SF • 2,500 to 3,000 SF • 3,000 to 3,500 SF • 3,500 to 4,000 SF • 4,000 to 5,000 SF • 5,000 to 10,000 SF • 10,000 to 15,000 SF










