4-Bedroom Two-Story Rustic Craftsman Home with Expansive Back Porch (Floor Plan)

Specifications:
- 5,530 Sq Ft
- 4 Beds
- 3.5 Baths
- 2 Stories
- 3 Cars
When I first saw this Rustic Craftsman plan, I felt like I’d stumbled upon the perfect combination of elegance and practicality.
With 5,530 square feet, four bedrooms, 3.5 baths, and two stories, this home layout was clearly designed to make everyday living—and entertaining—effortless.
From the expansive back porch to the clever room arrangements, the floor plan ensures there’s a space for every activity and every family member.


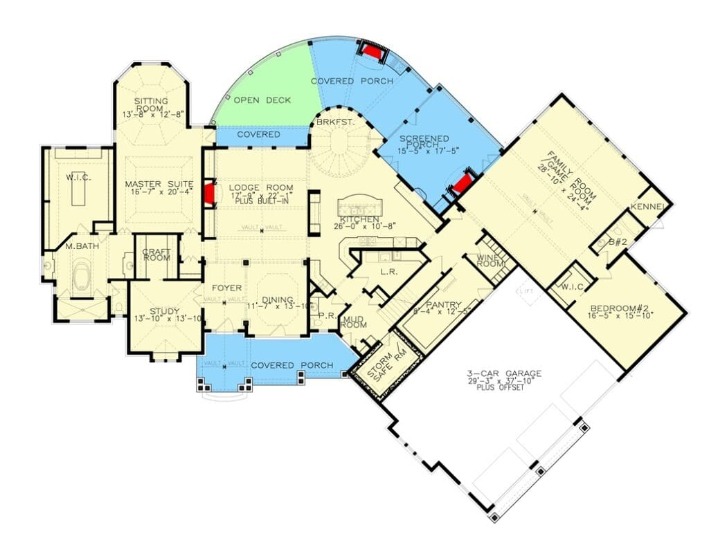
Front Elevation and Entryway Flow
The floor plan starts with an exterior that speaks volumes about the home’s style.
Decorated gables, cedar shake siding, stone accents, and arched windows give the façade a warm, inviting appeal.
Walking through the front door, the layout immediately opens up to multiple gathering areas, creating a sense of flow that guides guests naturally from the entry to the heart of the home.
The front entry sets the stage for both daily life and hosting occasions, showing how carefully the floor plan balances curb appeal and interior functionality.
Central Kitchen and Breakfast Nook Placement
At the core of the floor plan is a spacious central kitchen designed for more than one cook, making it perfect for family meals or holiday gatherings.
The circular breakfast nook is strategically placed to overlook the partially covered deck, allowing easy access for indoor-outdoor entertaining.
This layout demonstrates smart planning: the kitchen is connected to the dining area, living room, and outdoor porch, ensuring movement is seamless and spaces feel connected without being crowded.
Living and Gathering Spaces Arrangement
The floor plan includes multiple large gathering spaces, allowing the living room, dining area, and informal family room to coexist comfortably.
These areas are intentionally positioned near each other, yet maintain distinct boundaries for different activities.
This thoughtful layout makes it easy to host large parties or enjoy quiet evenings.
The elegant ceiling treatments further highlight the spatial separation while enhancing the open feel of the home.
Master Suite Wing Layout
The left wing of the home is entirely dedicated to the master suite, study, and craft room.
The floor plan places the master suite in a private corner, complete with a sitting nook, oversized ensuite shower, and massive walk-in closet.
The study is conveniently located nearby, with an attached craft room, giving homeowners functional workspace options without disrupting the flow of the main living areas.
This separation ensures privacy and tranquility while keeping everything within easy reach.
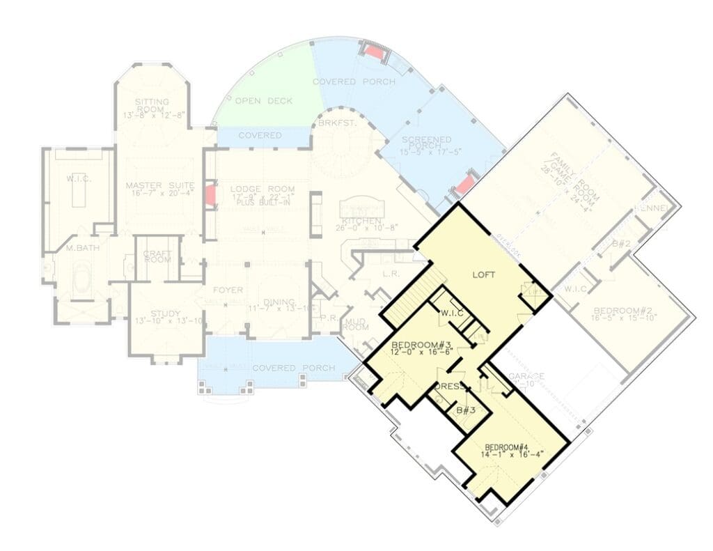
Secondary Bedrooms and Loft Configuration
On the opposite side of the home, the second bedroom is cleverly positioned behind the three-car garage, offering extra privacy.
Upstairs, bedrooms two and three share space with a loft, creating flexible living areas.
The floor plan thoughtfully balances private bedrooms with open communal areas, allowing family members to enjoy their own spaces without feeling disconnected from the rest of the home.
Outdoor Living Spaces in the Floor Plan
One of the floor plan’s most appealing features is the back porch and screened porch layout.
The partially covered deck extends living space outdoors, connecting seamlessly with the breakfast nook and central kitchen.
This arrangement encourages both casual and formal outdoor gatherings while maintaining privacy from the front of the house.
The floor plan ensures that outdoor spaces are an integral part of daily life, not just an afterthought.
Specialty Rooms and Functional Additions
The floor plan includes several specialty rooms, like a storm/safe room, wine room, kennel, and a sizable walk-in pantry.

Each space is placed thoughtfully to serve its function without disrupting daily living areas.
The wine room, for instance, is close enough to the kitchen for easy entertaining, while the storm room is accessible yet discreet.
This planning highlights the designer’s focus on combining luxury and practicality.
Garage and Utility Placement
A three-car garage is integrated into the floor plan with direct access to the home, making daily chores easier and improving overall functionality.
The garage placement also allows for storage, workspace, or even a small workshop without interfering with the main living areas.
This part of the layout shows how the floor plan considers convenience and usability in every corner of the house.
Flow Between Common Areas
The floor plan’s circulation is intuitive, with hallways and open spaces connecting all main living areas smoothly.
The kitchen, dining, and living rooms are positioned to allow effortless movement, while private spaces like bedrooms and the study are tucked away.
This flow is especially valuable when entertaining, as it allows guests to explore the home without feeling cramped or disrupting daily routines.
Loft and Upper-Level Layout
The second floor features a loft that acts as a versatile communal space connecting bedrooms two and three.
The floor plan places this loft centrally, creating a hub for games, media, or casual work.
The upper-level design demonstrates how thoughtful placement can make a multi-story home feel cohesive while maximizing usable space.
Pantry, Storage, and Utility Spaces
The sizable walk-in pantry, conveniently located near the kitchen, is a highlight of the floor plan for those who love organization.
Utility areas, storage closets, and specialty rooms like the craft room are all strategically placed to reduce clutter and improve day-to-day efficiency.
This careful arrangement ensures that the home feels open and welcoming, not crowded, even with multiple functional spaces included.
Integration of Modern Amenities
The floor plan accommodates modern needs with space for smart home technology, security systems, and functional home offices.
The study and craft room layout allow for interior design software setups or remote work without compromising living space.
Even pet care is considered with a dedicated kennel area, showing that the floor plan integrates lifestyle features seamlessly into daily routines.
Summary of Floor Plan Benefits
Looking at the full layout, this Rustic Craftsman plan balances beauty, function, and flexibility.
The master suite wing provides privacy, the kitchen and gathering areas encourage connection, and outdoor spaces are fully integrated for living and entertaining.
Bedrooms and lofts are placed for comfort and accessibility, while specialty rooms enhance daily life.
Every square foot of this floor plan serves a purpose, demonstrating a thoughtful combination of style and practicality.
This floor plan is ideal for families, entertainers, and anyone who appreciates smart design.

Every room has a clear purpose, the flow feels natural, and the integration of indoor and outdoor spaces creates an effortless lifestyle.
From the master suite wing to the loft and screened porch, this Rustic Craftsman plan proves that a house doesn’t just need to look beautiful—it needs to live beautifully.
Whether you’re evaluating space for future home improvement loans, planning remodeling projects, or considering a purchase as a long-term investment, this floor plan makes every decision easier.
Its spacious layout, functional specialty rooms, and thoughtfully placed living areas combine to create a home that is both practical and inviting.
Building or buying a home isn’t just about picking the perfect house plan—it’s also about making smart long-term choices. From comparing mortgage rates to finding a trustworthy real estate agent, every decision adds value. Don’t forget to explore options like home insurance, home warranties, and potential refinance opportunities to protect your investment.
Want to boost your property value? Consider installing solar panels, upgrading to energy-efficient appliances, or integrating a smart home system. Plus, tools like interior design software can help you visualize and plan your dream space before the first brick is even laid.
Find More House Plans
By Bedrooms:
1 Bedroom • 2 Bedrooms • 3 Bedrooms • 4 Bedrooms • 5 Bedrooms • 6 Bedrooms • 7 Bedrooms • 8 Bedrooms • 9 Bedrooms • 10 Bedrooms
By Levels:
By Total Size:
Under 1,000 SF • 1,000 to 1,500 SF • 1,500 to 2,000 SF • 2,000 to 2,500 SF • 2,500 to 3,000 SF • 3,000 to 3,500 SF • 3,500 to 4,000 SF • 4,000 to 5,000 SF • 5,000 to 10,000 SF • 10,000 to 15,000 SF










