4-Bedroom Single-Story Transitional Home with Spacious Porches and 3-Car Garage (Floor Plan)

Specifications:
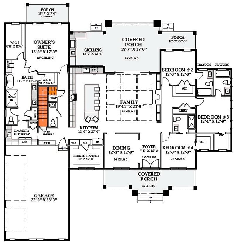
- 3,046 sq. ft.
- 4 Beds
- 4.5 Baths
- 1 Stories
- 3 Cars
If I’m being honest, this is the kind of house plan that makes me want to sit down with a coffee, stare at the floor plan, and start imagining where my furniture would go.
At 3,046 square feet, this 4-bedroom, 4.5-bath Transitional modern farmhouse checks just about every box—without feeling overdone or impractical.
It’s welcoming, smartly designed, and built for real life, not just pretty listing photos.
The first thing I notice is how naturally the open layout flows.
Nothing feels forced or oversized for the sake of bragging rights.


A Modern Farmhouse That Understands How People Actually Live
Instead, every square foot feels intentional, which matters whether you’re planning to buy your forever home or looking at this as a long-term investment with strong property value.
From the moment you step inside, sightlines stretch across the main living spaces. The family room, kitchen, and dining areas are all connected, making everyday living feel effortless.
This layout is also ideal if you’re keeping an eye on mortgage rates and trying to make sure your purchase delivers real value per square foot. You’re not paying for wasted space—you’re paying for livability.
A Family Room Designed for Real Life (and Real Comfort)
The family room centers around a cozy fireplace, which immediately gives the space warmth and personality.
I love that the fireplace isn’t tucked away as an afterthought—it’s part of the experience. Whether I’m entertaining friends or curling up on a quiet evening, this room feels like the heart of the home.
Even better, the kitchen island sink faces forward toward the family room. That may sound like a small thing, but it’s a big deal in everyday life.
I can cook, clean, and still be part of the conversation—or keep an eye on kids, pets, or the game on TV. It’s one of those thoughtful design choices that you only truly appreciate once you live with it.
A Kitchen That Balances Beauty and Function
This kitchen doesn’t just look good; it works hard. Between the walk-in food pantry and the butler’s pantry, storage is generous without overwhelming the space.
I can already picture stocking up after a big grocery run without feeling cramped, especially helpful if you’re planning ahead with a refinance mortgage or budgeting carefully based on a building cost estimator.
The butler’s pantry adds a layer of sophistication that’s perfect for entertaining. It keeps messes out of sight while maintaining a clean, polished main kitchen—something both homeowners and any real estate agent would happily point out during a showing.
Walls of Glass and Outdoor Living That Actually Get Used
One of my favorite features is the walls of glass lining the rear of the home. They flood the interior with natural light and create a seamless connection to the outdoor living spaces.
The views extend straight to the backyard and porches, making the entire home feel larger and more open.

The rear porch is especially impressive, with plenty of space for lounging, dining, and the ever-popular barbecue porch. This isn’t just a decorative outdoor area—it’s functional, usable, and perfect for year-round enjoyment.
Outdoor living like this isn’t just about lifestyle; it also enhances property value, especially when paired with thoughtful landscaping and lighting.
Split Bedrooms for Privacy and Peace of Mind
The split-bedroom layout is another feature I genuinely appreciate. The primary suite is separated from the secondary bedrooms, which means privacy for everyone.
Whether you’re hosting guests, raising a family, or working odd hours, this layout makes daily life smoother.
Each bedroom comes with its own walk-in closet—no exceptions. That’s not just a luxury; it’s a practical win that eliminates storage headaches and makes the home feel custom-built.
If you’re using interior design software to plan furniture layouts, you’ll love how flexible these rooms are.
A Master Suite That Feels Like a Retreat
The master suite is where this plan really shines. The tray ceiling adds architectural interest without feeling over-the-top, and the direct access to the back porch is a feature I can’t stop thinking about.
Morning coffee outside, late-night fresh air, or just a quiet moment alone—it’s all right there.
From a financial perspective, a primary suite like this supports long-term resale strength.
Buyers notice details like ceiling treatments and private porch access, especially when considering home insurance coverage and future home warranty options.
Study Space That Adapts to Your Lifestyle
The dedicated study offers flexibility that’s incredibly valuable today. It can be a home office, a quiet reading room, or even a hobby space.
If you’re working from home, this room makes it easier to justify a home loan pre-approval, knowing the plan already supports modern work-life needs.

And if your needs change down the road, the space adapts without requiring a full renovation or a home remodeling contractor to reconfigure walls.
Smart Design Choices That Protect Your Investment
This home is clearly designed with longevity in mind. From the open layout to the storage solutions, everything supports easy maintenance and future upgrades.
Adding smart home technology or the best home security system later won’t require structural changes—it fits naturally into the design.
That flexibility matters whether you’re watching your credit score closely or planning to tap into a home equity loan down the line. A home that evolves with you is always a smarter purchase.
Garage Placement That Makes a Big Difference
The 3-car, 773-square-foot side-load garage isn’t just spacious—it’s strategic. This layout makes the home ideal for a corner lot, improving curb appeal and site flexibility.
Front-facing garages can dominate a façade, but this design keeps the focus on architecture instead of asphalt.
That’s a subtle detail, but one that can positively influence resale conversations and long-term investment potential.
Optional Bonus Space That Grows With You
The optional bonus space is one of those features I always look for, even if I don’t plan to finish it right away. It’s there when you’re ready—whether that’s next year or ten years down the road.
Maybe it becomes a game room, a guest retreat, a home gym, or the ultimate teen hangout. The beauty is that you’re not paying to finish it before you need it.
From a budgeting standpoint, this flexibility is huge. It allows you to manage building costs strategically and avoid stretching finances unnecessarily, especially if you’re keeping a close eye on mortgage rates or planning future upgrades with home improvement loans instead of upfront expenses.
Bathrooms Where No One Has to Wait
With four full bathrooms and one half bath, this house plan eliminates one of the most common daily frustrations: waiting.

Every bedroom has convenient access to a bathroom, which makes mornings smoother and guests more comfortable.
It’s one of those things you don’t fully appreciate until you’ve lived in a home without enough bathrooms—and vowed never to do that again.
This kind of thoughtful planning also supports strong resale appeal. Buyers notice when a layout minimizes congestion, especially families comparing options with their real estate agent and trying to justify a purchase that feels both practical and indulgent.
Storage That Doesn’t Feel Like an Afterthought
Between walk-in closets in every bedroom, generous pantry space, and a well-sized garage, storage is handled intelligently here.
Nothing feels crammed or improvised. Instead, everything has a place, which makes daily living calmer and cleaner.
This matters not only for lifestyle but also for long-term value. Homes that feel organized and easy to maintain tend to hold their property value better over time.
And when paired with a solid home warranty and proper home insurance, it creates peace of mind that goes beyond aesthetics.
Light, Views, and a Connection to the Outdoors
I keep coming back to the walls of glass because they genuinely transform how the house feels throughout the day. Natural light pours in, reducing the need for artificial lighting and making the interior feel alive.
The visual connection to the backyard and porch creates a sense of openness that’s hard to replicate with square footage alone.
If you ever decide to enhance outdoor spaces—adding a firepit, outdoor kitchen upgrades, or landscaping—this home already supports that vision.
It’s easy to see how these features elevate both daily enjoyment and overall investment potential.

A Floor Plan That Makes Sense Financially
This plan strikes a balance between luxury and logic. It offers high-end features without excessive complexity, which can help keep construction and maintenance costs in check.
Whether you’re working with a building cost estimator or evaluating financing options, this layout makes the numbers easier to justify.
For buyers thinking long-term, the design also supports refinancing opportunities. A well-designed home with strong appeal can make a refinance mortgage more attractive down the road, especially if market conditions improve and equity grows.
Designed for Today’s Technology—and Tomorrow’s
The structure of this home makes it easy to integrate smart home technology without disruption.
From smart lighting and climate control to advanced security features, upgrades can be layered in over time. Installing the best home security system feels natural here, not forced or retrofitted.
That adaptability adds another layer of protection—not just for safety, but for resale. Buyers increasingly expect smart-ready homes, and this plan checks that box without locking you into specific systems too early.
A Layout That Supports Good Financial Decisions
What I appreciate most is how this house supports smart financial planning. Whether you’re preparing for home loan pre-approval, working to improve your credit score, or weighing the pros and cons of a home equity loan in the future, this plan aligns lifestyle goals with financial responsibility.
It’s a home you can confidently buy knowing it won’t box you in later. It grows with your family, your income, and your priorities.
Corner-Lot Friendly and Curb-Appeal Smart
The side-load garage does more than just look good—it opens up lot placement options and enhances curb appeal.
For anyone considering location flexibility or future resale, that’s a meaningful advantage. Corner lots often command attention, and this home is designed to take full advantage of that visibility.
That design foresight makes this plan easier to market, easier to sell, and easier to love—three things that matter whether you’re buying for now or for the long haul.

At the end of the day, this 3,046-square-foot modern farmhouse doesn’t just feel like a beautiful place to live—it feels like a smart decision.
It balances style, function, comfort, and flexibility in a way that works for real people with real budgets and real plans.
Whether you’re working closely with a real estate agent, exploring financing options, or simply dreaming about your next move, this home delivers on both emotional and practical levels.
It’s the kind of place where everyday life feels easier, weekends feel better, and the future feels well planned—without ever feeling rigid or overdesigned.
And honestly, that’s exactly what a great house plan should do.
Building or buying a home isn’t just about picking the perfect house plan—it’s also about making smart long-term choices. From comparing mortgage rates to finding a trustworthy real estate agent, every decision adds value. Don’t forget to explore options like home insurance, home warranties, and potential refinance opportunities to protect your investment.
Want to boost your property value? Consider installing solar panels, upgrading to energy-efficient appliances, or integrating a smart home system. Plus, tools like interior design software can help you visualize and plan your dream space before the first brick is even laid.
Find More House Plans
By Bedrooms:
1 Bedroom • 2 Bedrooms • 3 Bedrooms • 4 Bedrooms • 5 Bedrooms • 6 Bedrooms • 7 Bedrooms • 8 Bedrooms • 9 Bedrooms • 10 Bedrooms
By Levels:
By Total Size:
Under 1,000 SF • 1,000 to 1,500 SF • 1,500 to 2,000 SF • 2,000 to 2,500 SF • 2,500 to 3,000 SF • 3,000 to 3,500 SF • 3,500 to 4,000 SF • 4,000 to 5,000 SF • 5,000 to 10,000 SF • 10,000 to 15,000 SF










