4-Bedroom Single-Story Modern Farmhouse with Music Room (Floor Plan)

Specifications:
- 5,582 Sq Ft
- 4 Beds
- 4 Baths
- 1 Stories
- 3 Cars
Some homes whisper.
This one sings—literally.
With 4 bedrooms, 4 baths, and a music room right off the foyer, this 5,582 square-foot modern farmhouse isn’t just a house.
It’s a headliner.
If you’ve ever wanted a home that feels like it was designed for real life and a little bit of luxury, you’re in the right place.
So grab your imaginary cowboy hat (we’re doing farmhouse, after all), and let me take you on a tour of a place that might just hit all the right notes.


A Porch That Says, “Y’all Come In!”
Let’s start with that wrap-around front porch.
This thing doesn’t just invite you in—it practically opens the door and hands you sweet tea.
It wraps the home like a warm hug, making it the perfect spot for lazy Sunday mornings, chatting with neighbors, or dramatically watching the rain fall while contemplating life’s mysteries.
And here’s the kicker: first impressions matter—not just to guests but to future buyers.
A porch like this adds instant property value and is a smart investment from the get-go.
Plus, it gives your home that Hallmark movie charm, minus the snowstorm subplot.
Step Inside—Straight Into Style
You walk through double doors and immediately feel it: space, light, and personality.
And then, to the right—barn doors that slide open to reveal the pièce de résistance: a music room.
Whether you’re a jazz enthusiast, a rockstar in hiding, or someone who owns a keyboard just for show, having a music room is a flex.
It’s also incredibly versatile.
Need a quiet office, a library, or a place to display your vintage guitar collection (even if you only know three chords)?
Done.
And don’t overlook the financial benefits here.
Custom spaces like this one can be factored into a home equity loan or increase value when you’re ready to buy or sell.

It’s one of those features that makes refinance mortgage decisions easier later on.
The Great Room is, Well… Great
Now walk straight ahead into the great room, and prepare to feel like someone just turned the lights on in your whole life.
Oversized windows flood the space with natural light, making it the kind of room where you actually want to be in the morning—even before coffee.
This room flows right into the kitchen and dining area, and let me just say: if you’ve ever tried cooking Thanksgiving dinner in a galley kitchen, you’ll weep with joy here.
There’s room to move, mingle, and maybe even dance (looking at you, Friday night tacos and tunes).
And if you’re itching to customize, don’t forget that interior design software exists for a reason.
Plot out your dream kitchen island, pick the perfect backsplash, or figure out where the sectional goes before your moving truck even arrives.
Outdoor Living, Elevated
Off the dining area, you’ll find a covered deck that’s just begging for a grill and a few good friends.
This isn’t some flimsy little balcony—it’s a true outdoor extension of your living space.
Host dinner parties, enjoy Sunday brunch, or just sip wine while your dog pretends to guard the yard from squirrels.
And yes, outdoor features matter for resale and appraisal.
Want to justify a home improvement loan for an outdoor kitchen or a hot tub?
This deck makes it a no-brainer. (You’re welcome.)
A Master Suite with Maximum Zen
Tucked away on the left side of the home, the master suite isn’t just a bedroom—it’s a full-blown retreat.
This is where you unwind after a long day, recharge on weekends, and hide from your kids when they find your chocolate stash.

It’s private, spacious, and luxurious enough to make you cancel your hotel plans.
The en suite bathroom and walk-in closet are just the icing on the already dreamy cake.
And yes, spaces like this positively impact your home insurance coverage and make your house easier to market when the time comes.
Pro tip: before you fall in love (too late?), check your credit score and look into a home loan pre-approval.
Because spoiler alert—this home won’t stay available forever.
Extra Bedrooms and a Garage for All Your Stuff (and Cars)
On the other side of the house, a second bedroom is nestled quietly behind the four—yes, four—garage bays.
If you’re counting, that’s space for your cars, tools, bikes, and your partner’s inexplicable collection of extension cords.
The remaining two bedrooms are in the lower level, offering privacy and flexibility for guests, teenagers, or your in-laws (if you like them).
Thinking of tweaking the layout later?
A home remodeling contractor can help bring your ideas to life, and a building cost estimator will make sure you don’t go full HGTV and blow the budget.
Your New Favorite Place
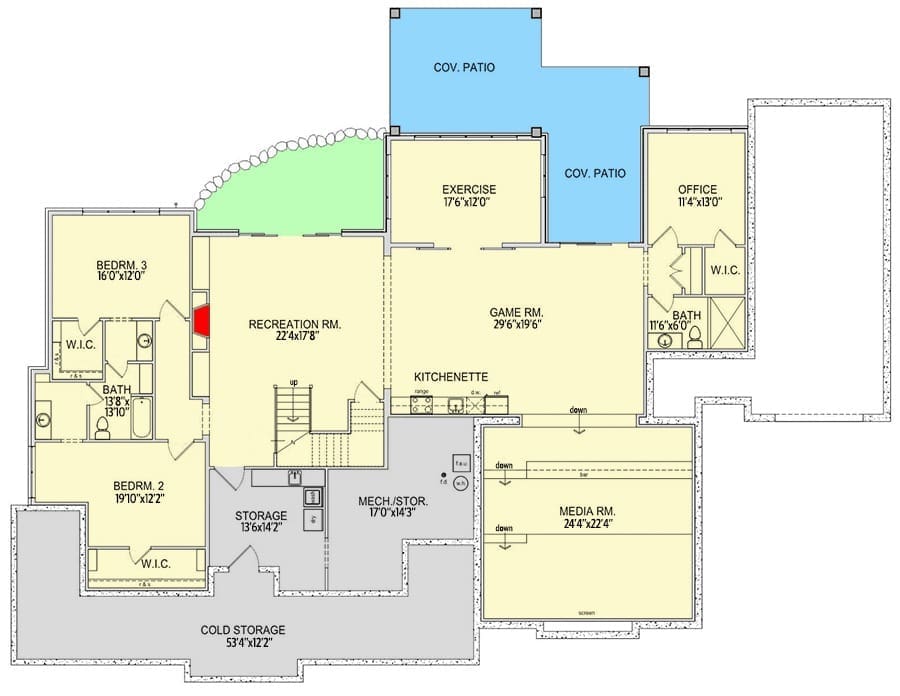
And now we descend into the lower level—aka paradise.
There’s a massive recreation/game room that leads directly into a media room with stadium seating.
Yes, you read that right—stadium seating.
As in, no one has to sit on a beanbag chair or strain to see the screen.
It’s a movie lover’s dream.

You’ll also find a home office (goodbye, awkward Zoom backgrounds), an exercise room (hello, resolution you’ll actually keep), and those two additional bedrooms we mentioned.
Sliding glass doors open to the covered patio and backyard, making it feel less like a basement and more like its own luxury apartment.
Honestly, it’s the kind of setup that could tempt you to purchase the whole home just for the basement.
Let’s Talk Dollars and Sense
This home might seem like a fantasy, but with the right financial moves, it’s completely within reach.
Stay on top of mortgage rates, talk to a trusted real estate agent, and explore financing options like a home equity loan or refinance mortgage if you’re upgrading from an existing home.
Protecting your investment is key too.
Look into a solid home warranty and the best home security system to give you peace of mind once you’ve moved in.
And if you’re upgrading from your current place?
You may have built up enough home equity to use as leverage—another reason to work with a knowledgeable agent and lender who understands your goals.
There are homes that check boxes.
And then there are homes like this one—homes that make you feel something.
From the wrap-around porch to the music room, from the sunlit great room to the luxurious basement, this modern farmhouse was designed with real life in mind.
It’s stylish without being stuffy, spacious without feeling overwhelming, and full of personality without sacrificing function.
Whether you’re raising a family, running a business, or finally chasing your dream of hosting movie nights with actual seating, this home has your back.

It’s not just a smart investment.
It’s the kind of place where life happens, memories are made, and your Spotify playlist finally gets the space it deserves.
So, are you ready to buy?
Because this modern farmhouse is ready to welcome you home—music and all.
Building or buying a home isn’t just about picking the perfect house plan—it’s also about making smart long-term choices. From comparing mortgage rates to finding a trustworthy real estate agent, every decision adds value. Don’t forget to explore options like home insurance, home warranties, and potential refinance opportunities to protect your investment.
Want to boost your property value? Consider installing solar panels, upgrading to energy-efficient appliances, or integrating a smart home system. Plus, tools like interior design software can help you visualize and plan your dream space before the first brick is even laid.
Find More House Plans
By Bedrooms:
1 Bedroom • 2 Bedrooms • 3 Bedrooms • 4 Bedrooms • 5 Bedrooms • 6 Bedrooms • 7 Bedrooms • 8 Bedrooms • 9 Bedrooms • 10 Bedrooms
By Levels:
By Total Size:
Under 1,000 SF • 1,000 to 1,500 SF • 1,500 to 2,000 SF • 2,000 to 2,500 SF • 2,500 to 3,000 SF • 3,000 to 3,500 SF • 3,500 to 4,000 SF • 4,000 to 5,000 SF • 5,000 to 10,000 SF • 10,000 to 15,000 SF










