4-Bedroom Single-Level Modern Farmhouse With Expansive Rear Porch and 4-Car Garage (Floor Plan)

Specifications:
- 3,310 Sq. Ft.
- 4 Beds
- 3.5 Baths
- 1 stories
- 4 Cars
You know that feeling when you walk into a place and immediately think, “Yep. This is it.
This is where I’m going to drink coffee in fuzzy socks while judging my neighbor’s lawn”? That’s exactly the vibe this modern farmhouse house plan gives off.
It’s got charm, functionality, and a layout that makes you want to host brunch just to show it off.
Whether you’re planning to buy your forever home or want to make a smart investment, this plan has all the goodies.
Let’s dive in—coffee not required but highly recommended.


Open Spaces and Bigger Possibilities
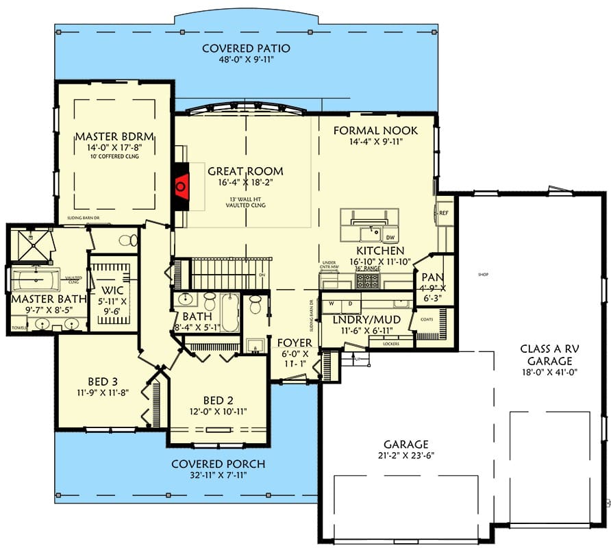
First things first: the open layout in this house is a total game-changer. It’s like the architects knew that you’d want to sip wine while chatting with friends in the living room and not be stuck stirring risotto in kitchen isolation.
The great room flows effortlessly into the kitchen and dining nook, so whether it’s Sunday dinner or a chaotic Tuesday with cereal for dinner, everything feels connected.
Now, if you’ve ever used a building cost estimator while dreaming about your future home, you know that open layouts can also be budget-friendly.

Less wall, more wow. And it boosts property value because let’s face it—everyone wants in on the open-concept action.
Cooking Up Comfort and Convenience
The kitchen is more than just a place to burn toast. With the sink in the island facing forward (hello, people-watching while doing dishes), it’s designed for both function and fun.
You’ll have a walk-in pantry to hide your snack hoarding tendencies and a butler’s pantry that says, “I entertain like a pro.”

And let’s be honest, a well-stocked pantry is basically a prepper’s dream come true.
Plus, that forward-facing garage? Perfect for hauling in groceries like a suburban ninja, and it even has space for your RV.
I mean, who doesn’t want room for spontaneous road trips or a mobile man cave?

The Heart of the Home: Family Room Vibes
Right off the kitchen sits the family room—complete with a fireplace that practically begs for fuzzy throws and oversized mugs of cocoa.
Whether you’re Netflixing, gaming, or just zoning out to the crackle of fire, this cozy space blends relaxation and connection.
Thanks to smart home technology, you can dim the lights or fire up your fireplace with a voice command.

Not only does that impress guests, but it also makes you feel just a tad like Tony Stark.
And let’s not forget—having the best home security system integrated into your smart setup keeps everything safe and sound.
Room to Breathe, Room to Grow
This plan comes with split bedrooms—which means you can actually enjoy your master suite in peace while the kids stage WWE reenactments in their own wing.

All bedrooms include walk-in closets, which means no more fighting for hanger space.
Even the laundry room is thoughtfully placed—right off the mudroom, so muddy cleats and grass-stained jeans don’t march their way into your sanctum.
The master suite is truly a retreat. It boasts a tray ceiling that adds elegance without the price tag of a chandelier collection.

Plus, you get private access to the back porch through glass sliders, which means spontaneous star-gazing is always on the table.
Want to turn it into a romantic escape? Queue up some mood lighting via your smart system and pretend you’re in a resort.
The Perks Keep Coming
Speaking of the outdoors, the massive covered patio (which stretches across the back of the house) and the dedicated barbecue porch practically beg for grilled burgers and lemonade.

There’s room for dining, lounging, or even sneaky naps in a hammock. And let’s not overlook how much outdoor living boosts your property value.
A well-landscaped backyard and stylish porch aren’t just photogenic—they’re investment gold.
I also love that the house features a forward-facing garage with an oversized bay.

It’s like the house is saying, “Yes, you CAN have your pickup truck, your SUV, and your fantasy RV.”
And just inside that garage, you get a functional drop zone that keeps backpacks, shoes, and clutter corralled like a boss.
It flows straight into a mud/laundry combo space, making it easy to toss dirty clothes right into the washer before anyone sees the evidence of your weekend hike.

Bonus Space equal Bonus Flexibility
This house also has optional bonus space you can finish whenever you’re ready—hello, future game room, guest suite, or epic home office.
If you’re thinking about resale value or long-term investment, having that bonus space ready to personalize is a big win.
Real estate agents will tell you it’s a feature that makes buyers perk up faster than a double espresso.

And if you’re financing your dream with a home equity loan or considering home improvement loans later to customize that bonus space, you’ll find it much easier when you’ve got a plan this versatile.
Plus, that home loan pre-approval will go down a whole lot smoother when lenders see how much thought has gone into the design.
Study Up
Another favorite? The private study tucked away near the front.

Whether you’re running a side hustle, managing your household budget, or just need a quiet place to Google “how to refinance mortgage without crying,” the study gives you a grown-up space for grown-up things.
It’s also a great buffer from the rest of the house when you need to take Zoom calls in peace.
If you’re planning your interior setup with interior design software , you’ll love the flexibility this study gives you.

Design it as a reading nook, a hobby zone, or a full-blown work-from-home command center. Just don’t let the cat sit on your keyboard all day.
Light, Bright, and Everything Right
Let’s talk windows. Or more specifically, walls of glass.
These aren’t your grandma’s windows—they’re expansive, light-gathering beauties that bring the outdoors in and make every room feel bigger and brighter.

They give your home that airy, magazine-worthy vibe that says, “Yes, I did clean this morning. Sort of.”
All that natural light doesn’t just make your house feel happier—it helps with energy efficiency and can even contribute to a better credit score .

And when paired with home insurance that covers storm damage, you can enjoy those views without worry.
More Room, More Wow
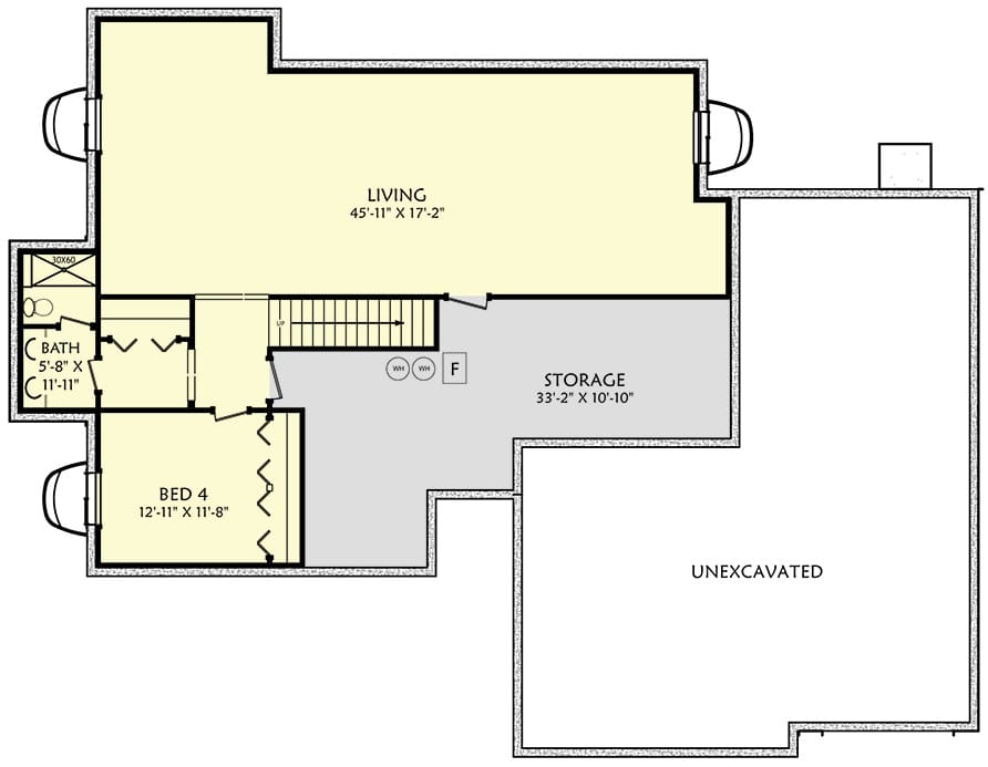
Let’s start with the generous living area downstairs. This isn’t your typical “throw a sofa in it and call it good” type of space.

We’re talking about a fully usable, multifunctional zone where teens can hang out, in-laws can have their own space, or you can finally build that retro arcade room you’ve been pretending you don’t want.
It’s also a fantastic setup for multigenerational living—or for those of us who want to throw guests downstairs when we’ve had enough socializing for one day.

Oh, and let’s not forget that the lower level comes with a full 4-fixture bathroom and a fourth bedroom.
Whether it’s for your teen who craves a little independence, your visiting parents who refuse to sleep on the couch, or a long-term guest who’s still “finding themselves,” everyone gets privacy, comfort, and easy access to all the essentials.

Living Outdoors, Loving Life
Let’s float back upstairs for a second and swoon again over the outdoor spaces.
This house is clearly designed for indoor-outdoor living, with a massive covered back patio that spans the width of the home.

Entertaining just got a whole lot easier. Hosting a summer barbecue? No problem.
Watching the rain fall while you sip something warm and pretend you’re in a movie? This porch delivers.

There’s also a dedicated barbecue porch that practically screams “grill master’s paradise.”
So if you’ve been looking for a house plan where your smoker, grill, and tongs get the royal treatment—this is it.

Increased outdoor living doesn’t just feel good; it’s one of the top features increasing in popularity post-2020.
Add in the best home security system, a few smart cameras, and some motion sensors, and now your space is not only relaxing but secure too. Win-win.

The Garage Situation Is… Glorious
Listen, garages don’t usually get much glory. But here? Oh, they shine.
This house includes a forward-facing side-load garage, which makes it an ideal choice for a corner lot (hello, curb appeal!).

It comfortably fits two vehicles and has an oversized bay, which is perfect for RVs, boats, or the home gym you swore you’d use.
This kind of flexibility is perfect for buyers looking to purchase a home that adapts to changing needs.

Planning a cross-country road trip in a fifth-wheel? No problem.
Launching a DIY garage workshop with every power tool known to mankind? Done. This garage is ready for all of it.

If you’re the spreadsheet type, then you’ll appreciate how this design balances cost with functionality.
It’s smart. It’s efficient. And it makes every dollar of your mortgage work harder.

Master Suite Goals
Let’s talk about that dreamy master suite one more time. Tucked at the back of the house for privacy and peace, it comes with all the bells and whistles.
We’re talking tray ceiling for a touch of architectural flair, glass sliders that open right onto the back porch , and a massive walk-in closet that will make your old wardrobe situation look like a sad game of Tetris.

When paired with a spa-inspired master bath, the suite becomes a sanctuary that makes every day feel like a vacation.
If you’ve got a home warranty, it’s even easier to relax knowing your fixtures and systems are covered should something go sideways.

Because nothing ruins a bubble bath vibe like a dripping faucet and the realization you’re out of plumber’s tape.
What I love most about this plan is how it adapts. Whether you’re a young couple buying your first home, a growing family needing room to sprawl, or empty nesters looking to live in style while hosting the grandkids, this house works.

It has the ease of a one-story plan with the bonus of additional downstairs living.
It offers privacy, community spaces, indoor coziness, and outdoor charm.
This isn’t just a house—it’s a long-term home. One that grows with you, supports your goals, and might just make you fall in love with adulting.
And in a world of unpredictable mortgage rates, housing markets, and backyard raccoons, it’s nice to know there’s still one thing you can count on: great design never goes out of style.
So, ready to start dreaming in farmhouse chic? Just don’t forget to invite me over for that first backyard barbecue. I’ll bring the lemonade and a very enthusiastic dog.
Building or buying a home isn’t just about picking the perfect house plan—it’s also about making smart long-term choices. From comparing mortgage rates to finding a trustworthy real estate agent, every decision adds value. Don’t forget to explore options like home insurance, home warranties, and potential refinance opportunities to protect your investment.
Want to boost your property value? Consider installing solar panels, upgrading to energy-efficient appliances, or integrating a smart home system. Plus, tools like interior design software can help you visualize and plan your dream space before the first brick is even laid.
Find More House Plans
By Bedrooms:
1 Bedroom • 2 Bedrooms • 3 Bedrooms • 4 Bedrooms • 5 Bedrooms • 6 Bedrooms • 7 Bedrooms • 8 Bedrooms • 9 Bedrooms • 10 Bedrooms
By Levels:
By Total Size:
Under 1,000 SF • 1,000 to 1,500 SF • 1,500 to 2,000 SF • 2,000 to 2,500 SF • 2,500 to 3,000 SF • 3,000 to 3,500 SF • 3,500 to 4,000 SF • 4,000 to 5,000 SF • 5,000 to 10,000 SF • 10,000 to 15,000 SF










