4-Bedroom One-Story Modern Farmhouse with Vaulted Great Room (Floor Plan)

Specifications:
- 2,500 Sq Ft
- 4 Beds
- 3.5 Baths
- 1 Stories
- 3 Cars
Have you ever walked into a house and instantly felt like you were home?
That’s exactly the kind of magic this 4-bed modern farmhouse plan conjures up.
It’s got the charm of grandma’s farmhouse, the practicality of your accountant uncle, and the style of that interior design influencer you secretly binge-watch.
Let me take you on a little tour of what 2,500 square feet of architectural genius looks like—and spoiler alert: it’s stunning.
Stay Tuned: Detailed Plan Video Awaits at the End of This Content!






Welcome Home – The Front Porch Life
First impressions matter, right?
And this farmhouse knows it.
The 45-foot wide front porch doesn’t just whisper “southern hospitality”—it practically yells it, in the most charming way.
Whether you’re sipping coffee at sunrise or waving at neighbors like you’re in a Hallmark movie, this porch sets the tone.
With today’s mortgage rates finally giving us something to smile about (sometimes), homes like this are becoming real options for buyers who thought they’d be stuck scrolling Zillow forever.
If you’re in the market to buy or purchase a property that makes your heart skip a beat, this plan is worth a look.
Vaulted Ceilings & Big Dreams
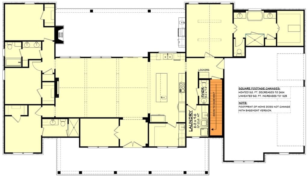
Step into the heart of the house—the great room.

Vaulted ceilings rise to an impressive 17 feet, accentuated by decorative beams that make you look up and say “Wow,” even if you’re not usually a ceiling person.
The open floor plan flows seamlessly into the dining area, which is perfect for everything from Thanksgiving dinners to Tuesday night takeout.
Natural light floods the space, enhancing every design choice (thank you, interior design software visionaries!).
This area isn’t just the center of the home, it’s where memories are made—and possibly where your cat will claim their new favorite nap spot.
Kitchen Goals
The kitchen is so thoughtfully designed it practically cooks for you.
An oversized island with a built-in sink and bar seating is perfect for early morning cereal or late-night snacks.
The adjacent walk-in pantry has enough space to store all your Costco hauls and then some.

Here’s where some smart home technology could really shine.
Imagine voice-controlled lighting, a smart fridge that tells you when your oat milk is low, or a coffee maker that starts brewing before your alarm even goes off.
This house is just begging for some intelligent upgrades.
And don’t worry—if you’re thinking about home improvement loans to give this space a tech boost, you’re not alone.
The kitchen is one of the most ROI-positive areas in any home when it comes to property value.
Bedrooms That Don’t Compromise
Let’s talk bedrooms—four of them, to be exact.
They’re not just boxes with beds.
These rooms are thoughtfully placed to balance privacy and practicality.

The master suite is its own little slice of paradise with vaulted ceilings, a massive walk-in closet, and a bathroom that feels more like a spa.
Freestanding tub, dual vanities, and a walk-in shower?
Yes, please.
And when it comes time to refinance your mortgage or take out a home equity loan, having a master suite like this adds undeniable value to your home.
The other three bedrooms are generously sized too—perfect for kids, guests, or that office you’ve been promising yourself. (Zoom background envy, here you come!)
Bathrooms Galore
Three and a half bathrooms mean you’ll never have to do the awkward hallway dance again.
The master bath is clearly the star, but the other full baths are well-equipped and stylish.
There’s even a half bath conveniently located near the laundry and entry—an often overlooked but much appreciated touch.

Storage & Functionality
This house doesn’t just shine in the spotlight areas—it nails the behind-the-scenes stuff too.
A mudroom with lockers, a spacious laundry room, and a dedicated storage room off the garage?
These aren’t luxuries—they’re lifesavers for busy families.
Speaking of the garage, it fits three cars (or two cars and a truly outrageous holiday decoration collection).
At 802 square feet, it’s basically a workshop, man cave, or crafting haven waiting to happen.
Don’t forget the home warranty—it’s the unsung hero that keeps your appliances and major systems protected.
A home like this, filled with high-end features, deserves that peace of mind.

Rear Porch Paradise
Out back, you’ve got a 547-square-foot rear porch just begging for a BBQ.
The outdoor fireplace makes it usable well into sweater season, and there’s even space for an outdoor kitchen.
This isn’t just a backyard; it’s an extension of your living space.
Plus, the porch’s direct access to the great room and master suite makes it ideal for entertaining—or sneaking out with a glass of wine when the kids are watching yet another loud cartoon inside.
Plan Dimensions That Make Sense
Let’s get practical for a second.
The home is 91 feet wide and just under 52 feet deep.
With one story and a 27-foot max ridge height, it offers curb appeal without the headache of stairs.
The 10-foot ceiling height throughout gives every room an open, breathable vibe that makes the whole home feel bigger than it already is.

Using a building cost estimator can give you a better idea of what constructing this beauty might run you.
Remember, the initial investment pays off long-term, especially in today’s fast-moving market.
Making It Yours – With Help From the Pros
Before you fall head over heels (too late?), remember to consult a good real estate agent.
They’ll help you navigate zoning, site placement, and the all-important home loan pre-approval.
It’s the adult version of asking for directions—worth it every time.
Also, consider your credit score.
A strong score opens more doors (literally and figuratively), making that dream farmhouse even more attainable.
If you’re not quite there yet, don’t stress—there are ways to boost your score, and your dream doesn’t have an expiration date.

And let’s not forget the finishing touches.
Whether you’re a DIYer with a Pinterest board for days or you’re calling in a home remodeling contractor, this plan is a blank canvas with a whole lot of potential.
Peace of Mind & Protection
Every dream home deserves protection.
That’s where home insurance and the best home security system come in.
You’ve put a lot into finding or building your perfect place—don’t leave it vulnerable.
Whether it’s a simple alarm system or full-on smart surveillance with motion sensors, cameras, and 24/7 monitoring, make sure your sanctuary stays safe.
This 4-bedroom modern farmhouse plan doesn’t just check boxes—it creates them.
Open living, spacious bedrooms, practical extras, and stylish design all wrapped into 2,500 square feet of warmth and wow.

Whether you’re buying your forever home or eyeing a solid investment, this layout makes sense emotionally and financially.
So grab your favorite throw blanket, dream up your ideal porch furniture, and picture yourself in this house.
With the right team, some savvy financing, and maybe a little elbow grease, it can go from plan to reality before you know it.
And hey—if you’re still undecided, just remember: vaulted ceilings and rear porches never go out of style.
Building or buying a home isn’t just about picking the perfect house plan—it’s also about making smart long-term choices. From comparing mortgage rates to finding a trustworthy real estate agent, every decision adds value. Don’t forget to explore options like home insurance, home warranties, and potential refinance opportunities to protect your investment.
Want to boost your property value? Consider installing solar panels, upgrading to energy-efficient appliances, or integrating a smart home system. Plus, tools like interior design software can help you visualize and plan your dream space before the first brick is even laid.
Find More House Plans
By Bedrooms:
1 Bedroom • 2 Bedrooms • 3 Bedrooms • 4 Bedrooms • 5 Bedrooms • 6 Bedrooms • 7 Bedrooms • 8 Bedrooms • 9 Bedrooms • 10 Bedrooms
By Levels:
By Total Size:
Under 1,000 SF • 1,000 to 1,500 SF • 1,500 to 2,000 SF • 2,000 to 2,500 SF • 2,500 to 3,000 SF • 3,000 to 3,500 SF • 3,500 to 4,000 SF • 4,000 to 5,000 SF • 5,000 to 10,000 SF • 10,000 to 15,000 SF










